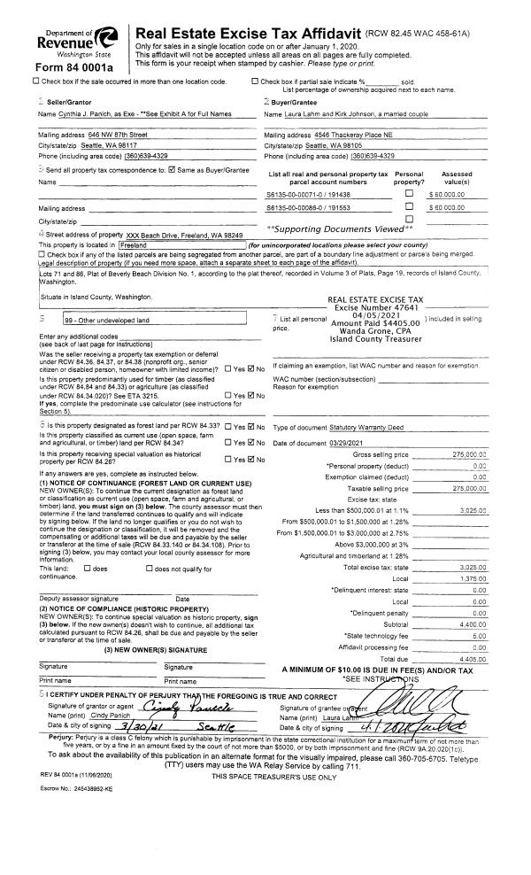
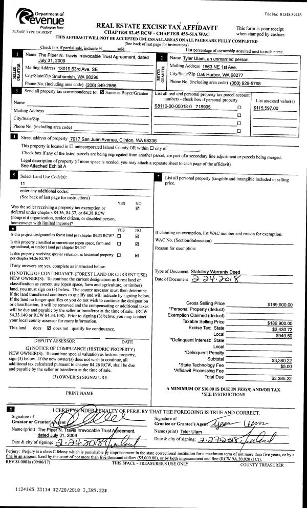
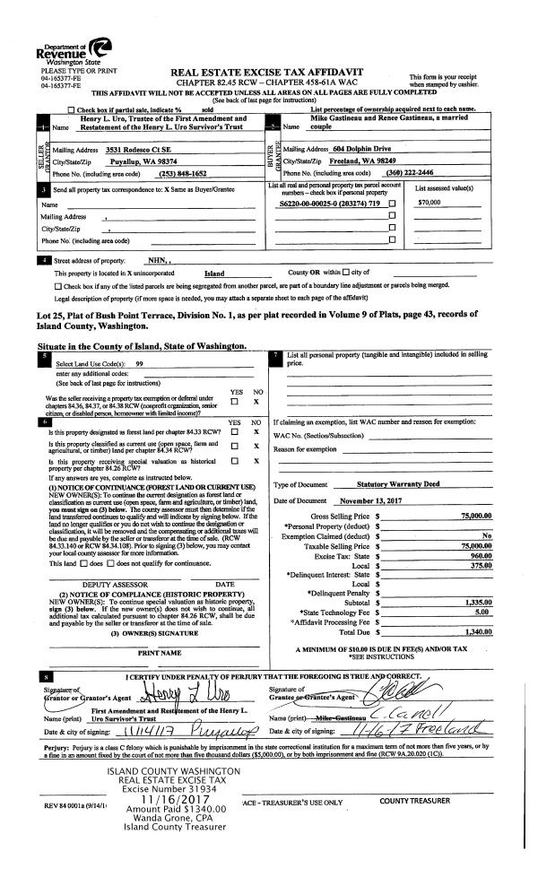
Property
Account |
| Property ID: | 807912 | Abbreviated Legal Description: | LOT 1 SP 282-05.32904.370-1150 V4 SP P157-158 AF#4169718 AC ADJ PER SURVEY |
| Geographic ID: | R32904-374-0990 | Agent Code: | |
| Type: | Real | | |
| Tax Area: | 712 - APPRAISER-S Whid Schl Dist, outside Langley, improved, greater than 1 acre | Land Use Code | 11 |
| Open Space: | N | DFL | N |
| Historic Property: | N | Remodel Property: | N |
| Multi-Family Redevelopment: | N | | |
| Township: | 29 | Section: | 04 |
| Range: | R3 |
Location |
| Address: | 3278 BROOKS HILL RD LANGLEY, WA 98260 | Mapsco: | |
| Neighborhood: | Cycle 4 | Map ID: | 730 |
| Neighborhood CD: | 4 |
Owner |
| Name: | EGERTON, GARY R | Owner ID: | 285113 |
| Mailing Address: | MARTHA A EGERTON 3278 BROOKSHILL RD #B LANGLEY, WA 98260 | % Ownership: | 100.0000000000% |
| | | Exemptions: | SNR/DSBL |
Taxes and Assessment Details
Values
| (+) Improvement Homesite Value: | + | $84,557 | |
| (+) Improvement Non-Homesite Value: | + | $121,929 | |
| (+) Land Homesite Value: | + | $380,000 | |
| (+) Land Non-Homesite Value: | + | $0 | |
| (+) Curr Use (HS): | + | $0 | $0 |
| (+) Curr Use (NHS): | + | $0 | $0 |
| | | -------------------------- | |
| (=) Market Value: | = | $586,486 | |
| (–) Productivity Loss: | – | $0 | |
| | | -------------------------- | |
| (=) Subtotal: | = | $586,486 | |
| (+) Senior Appraised Value: | + | $363,239 | |
| (+) Non-Senior Appraised Value: | + | $121,929 | |
| | | -------------------------- | |
| (=) Total Appraised Value: | = | $485,168 | |
| (–) Senior Exemption Loss: | – | $0 | |
| (–) Exemption Loss: | – | $0 | |
| | | -------------------------- | |
| (=) Taxable Value: | = | $485,168 | |
Taxing Jurisdiction
| Owner: | EGERTON, GARY R | | |
| % Ownership: | 100.0000000000% | | |
| Total Value: | $586,486 | | |
| Tax Area: | 712 - APPRAISER-S Whid Schl Dist, outside Langley, improved, greater than 1 acre |
| CF | Conservation Futures | 0.0316035091 | $586,486 | $485,168 | $15.33 | | |
| FIRE3 | Fire & Rescue Dist #3 S Whidbey GEN | 1.2004855531 | $586,486 | $485,168 | $582.44 | | |
| HOBOND | Hospital BOND | 0.0000000000 | $586,486 | $121,929 | $23.30 | | |
| HOGEN | Hospital GEN | 0.3902502903 | $586,486 | $485,168 | $189.34 | | |
| CE | County Current Expense | 0.3708482477 | $586,486 | $485,168 | $179.92 | | |
| CR | County Roads | 0.4584763726 | $586,486 | $485,168 | $222.44 | | |
| ISLANDEMS | Hospital GEN (EMS) | 0.5000000000 | $586,486 | $485,168 | $242.58 | | |
| LIB | Library Sno-Isle GEN | 0.3153421757 | $586,486 | $485,168 | $152.99 | | |
| PORTWHID | Port of S Whidbey GEN | 0.1094540357 | $586,486 | $485,168 | $53.10 | | |
| SCH206BOND | School 206 BOND | 0.3161759235 | $586,486 | $485,168 | $153.40 | | |
| SCH206MO | School 206 Enrichment | 0.0000000000 | $586,486 | $121,929 | $55.44 | | |
| ST | State School | 1.3035497053 | $586,486 | $485,168 | $632.44 | | |
| ST2 | State School Part 2 | 0.0000000000 | $586,486 | $121,929 | $99.61 | | |
| SWHIDPRBD | P & R S Whidbey BOND | 0.0000000000 | $586,486 | $121,929 | $1.86 | | |
| SWHIDPRBD2 | P & R S Whidbey BOND2 | 0.0000000000 | $586,486 | $121,929 | $1.69 | | |
| SWHIDPRMT | P & R S Whidbey GEN | 0.2053334452 | $586,486 | $485,168 | $99.62 | | |
| | Total Tax Rate: | 5.2015192582 | | | | | |
| | | | | Taxes w/Current Exemptions: | $2,705.50 | | |
| | | | | Taxes w/o Exemptions: | $3,925.62 | | |
Improvement / Building
| Improvement #1: | MANUFACTURED HOME | State Code: | Y | 1261.0 sqft | Value: | $84,557 |
| Bathrooms: | 0 | Bedrooms: | 0 | | Ceiling: | PLASTER PAINTED | Cooling: | EVAP NO DUCT | | Exterior Wall/Cover: | VINYL | Floor Covering: | CARPET 100% | | Floor Structure: | SLAB ON GRADE | Foundation: | SLAB | | Heating: | FHA ELECTRIC | Interior Finish: | PLASTER | | Plumbing Fixture Cnt: | 1 | Roof Slope: | FLAT | | Roof Structure/Cover: | CJ ALUMINIUM HEAVY |   |   |
|
| Improvement #2: | MANUFACTURED HOME | State Code: | Y | 947.5 sqft | Value: | $121,929 |
| Bathrooms: | 1 | Bedrooms: | 2 | | Ceiling: | PLASTER PAINTED | Cooling: | EVAP NO DUCT | | Exterior Wall/Cover: | VINYL | Floor Covering: | CARPET 100% | | Floor Structure: | SLAB ON GRADE | Foundation: | SLAB | | Heating: | FHA ELECTRIC | Interior Finish: | PLASTER | | Roof Slope: | FLAT | Roof Structure/Cover: | CJ ALUMINIUM HEAVY |
|
| | Type | Description | Class CD | Sub Class CD | Year Built | Area |
| | BAS | BASE/MAIN FLOOR | 4 | 0 | 2020 | 947.5 |
| | OWC | OPEN WOOD PORCH W/STEPS/ROOF/C | 4 | 0 | 2020 | 135.0 |
| | OWP | OPEN WOOD PORCH W/STEPS | 4 | 0 | 2020 | 80.0 |
Sketch
Property Image
Land
| 1 | 32 | AC (03.01-09.99) | 4.5700 | 0.00 | 0.00 | 0.00 | 1.00 | $380,000 | $0 |
Roll Value History
| 2026 | N/A | N/A | N/A | N/A | N/A |
| 2025 | $206,486 | $380,000 | $0 | $586,486 | $485,168 |
| 2024 | $211,898 | $350,000 | $0 | $561,898 | $487,761 |
| 2023 | $187,846 | $330,000 | $0 | $517,846 | $472,649 |
| 2022 | $173,333 | $290,000 | $0 | $463,333 | $463,333 |
| 2021 | $153,538 | $230,000 | $0 | $383,538 | $383,538 |
| 2020 | $128,425 | $190,000 | $0 | $318,425 | $318,425 |
| 2019 | $35,421 | $250,000 | $0 | $285,421 | $285,421 |
| 2018 | $35,421 | $210,000 | $0 | $245,421 | $245,421 |
| 2017 | $54,428 | $190,000 | $0 | $244,428 | $244,428 |
| 2016 | $56,293 | $135,000 | $0 | $191,293 | $191,293 |
| 2015 | $58,158 | $135,000 | $0 | $193,158 | $193,158 |
| 2014 | $43,705 | $123,390 | $0 | $167,095 | $167,095 |
| 2013 | $45,206 | $123,390 | $0 | $168,596 | $168,596 |
| 2012 | $46,707 | $123,390 | $0 | $170,097 | $170,097 |
| 2011 | $48,207 | $123,390 | $0 | $171,597 | $171,597 |
| 2010 | $48,602 | $123,390 | $0 | $171,992 | $171,992 |
| 2009 | $51,581 | $201,080 | $0 | $252,661 | $252,661 |
| 2008 | $100,107 | $146,240 | $0 | $246,347 | $246,347 |
| 2007 | $0 | $130,240 | $0 | $130,240 | $130,240 |
Deed and Sales History
| 1 | 05/16/2018 | WD | Warranty Deed | SECRETARY OF HOUSING AND URBAN DEVELOPMENT | EGERTON, GARY R | | | $205,000.00 | 34185 | 4444815 |
| 2 | 11/22/2017 | QCD | Quit Claim Deed | BANK OF AMERICA, NA | SECRETARY OF HOUSING AND URBAN DEVELOPMENT | | | $0.00 | 33408 | 4441374 |
| 3 | 03/30/2017 | DEEDINLIEU | Deed In Lieu Of Foreclosure | BERRY, MICHAEL J | BANK OF AMERICA, NA | | | $170,933.00 | 31769 | 4433590 |
| 4 | 05/26/2011 | WD | Warranty Deed | GORDON, CURTIS S | BERRY, MICHAEL J | | | $184,000.00 | 4578 | 4296062 |
| 5 | 05/19/2008 | EZ | Easement | GORDON, CURTIS S | GORDON, CURTIS S | | | $500.00 | 81378 | 4229834 |
| 6 | 01/26/2007 | WD | Warranty Deed | RUSWEL LLC, | GORDON, CURTIS S | | | $100,000.00 | 70355 | 4193204 |
| 7 | 01/01/1900 | OTHER | Other - Misc. Documents | Unknown | RUSWEL LLC, | | | $0.00 | 0 | 0 |
Payout Agreement
| No payout information available.. |