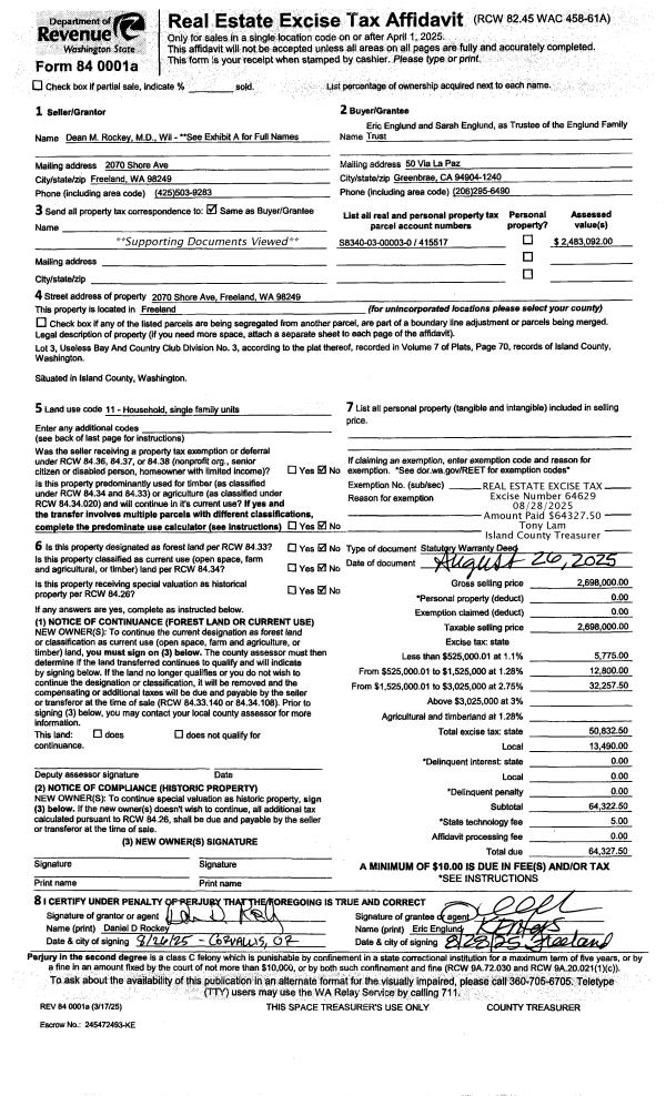
Property
Account |
| Property ID: | 808005 | Abbreviated Legal Description: | WEST COMMONS CONDO UNIT 2 BLDG 506-B 1/9 INT |
| Geographic ID: | S8523-00-00002-0 | Agent Code: | |
| Type: | Real | | |
| Tax Area: | 300 - APPRAISER-Cpvl Schl Dist, in Cpvl | Land Use Code | 14 |
| Open Space: | N | DFL | N |
| Historic Property: | N | Remodel Property: | N |
| Multi-Family Redevelopment: | N | | |
| Township: | | Section: | |
| Range: | |
Location |
| Address: | 506 NW KRUEGER ST BLDG 506B UNIT 2 COUPEVILLE, WA 98239 | Mapsco: | |
| Neighborhood: | Cycle 2 | Map ID: | 172 |
| Neighborhood CD: | 2 |
Owner |
| Name: | ROOMES, JOANN K | Owner ID: | 317091 |
| Mailing Address: | PO BOX 1196 COUPEVILLE, WA 98239 | % Ownership: | 100.0000000000% |
| | | Exemptions: | |
Taxes and Assessment Details
Values
| (+) Improvement Homesite Value: | + | $0 | |
| (+) Improvement Non-Homesite Value: | + | $322,348 | |
| (+) Land Homesite Value: | + | $0 | |
| (+) Land Non-Homesite Value: | + | $250,000 | |
| (+) Curr Use (HS): | + | $0 | $0 |
| (+) Curr Use (NHS): | + | $0 | $0 |
| | | -------------------------- | |
| (=) Market Value: | = | $572,348 | |
| (–) Productivity Loss: | – | $0 | |
| | | -------------------------- | |
| (=) Subtotal: | = | $572,348 | |
| (+) Senior Appraised Value: | + | $0 | |
| (+) Non-Senior Appraised Value: | + | $572,348 | |
| | | -------------------------- | |
| (=) Total Appraised Value: | = | $572,348 | |
| (–) Senior Exemption Loss: | – | $0 | |
| (–) Exemption Loss: | – | $0 | |
| | | -------------------------- | |
| (=) Taxable Value: | = | $572,348 | |
Taxing Jurisdiction
| Owner: | ROOMES, JOANN K | | |
| % Ownership: | 100.0000000000% | | |
| Total Value: | $572,348 | | |
| Tax Area: | 300 - APPRAISER-Cpvl Schl Dist, in Cpvl |
| CF | Conservation Futures | 0.0316035091 | $572,348 | $572,348 | $18.09 | | |
| CEM2 | Cemetery #2 | 0.0095056933 | $572,348 | $572,348 | $5.44 | | |
| COUP | City: Town of Coupeville | 0.8426414490 | $572,348 | $572,348 | $482.28 | | |
| FIRE5 | Fire & Rescue Dist #5 C Whidbey GEN | 1.2008080668 | $572,348 | $572,348 | $687.28 | | |
| FIRE5BOND | Fire & Rescue Dist #5 C Whidbey BOND | 0.1400090713 | $572,348 | $572,348 | $80.13 | | |
| HOBOND | Hospital BOND | 0.1910887512 | $572,348 | $572,348 | $109.37 | | |
| HOGEN | Hospital GEN | 0.3902502903 | $572,348 | $572,348 | $223.36 | | |
| CE | County Current Expense | 0.3708482477 | $572,348 | $572,348 | $212.25 | | |
| ISLANDEMS | Hospital GEN (EMS) | 0.5000000000 | $572,348 | $572,348 | $286.17 | | |
| LIB | Library Sno-Isle GEN | 0.3153421757 | $572,348 | $572,348 | $180.49 | | |
| LIBCAP | Library Sno-Isle BOND (Cap Fac Imp Area) | 0.0543427938 | $572,348 | $572,348 | $31.10 | | |
| POCOUP | Port of Coupeville GEN | 0.1093371703 | $572,348 | $572,348 | $62.58 | | |
| POCOUPIDD | Port of Coupeville IDD | 0.3409740022 | $572,348 | $572,348 | $195.16 | | |
| COUPSDTECH | School 204 CP (TECH) | 0.7545480007 | $572,348 | $572,348 | $431.86 | | |
| SCH204MO | School 204 Enrichment | 0.6716186034 | $572,348 | $572,348 | $384.40 | | |
| ST | State School | 1.3035497053 | $572,348 | $572,348 | $746.08 | | |
| ST2 | State School Part 2 | 0.8169543533 | $572,348 | $572,348 | $467.58 | | |
| | Total Tax Rate: | 8.0434218834 | | | | | |
| | | | | Taxes w/Current Exemptions: | $4,603.62 | | |
| | | | | Taxes w/o Exemptions: | $4,603.62 | | |
Improvement / Building
| Improvement #1: | RESIDENTIAL/COMMERCIAL | State Code: | A1 | 1238.0 sqft | Value: | $322,348 |
| Bathrooms: | 2 | Bedrooms: | 2 | | Ceiling: | DRYWALL PAINTED | Exterior Wall/Cover: | CEMENT FIBER | | Floor Covering: | HARDWOOD/CARP 80-20 | Floor Structure: | WOOD W/SUBFLOOR | | Foundation: | CONCRETE | Heating: | FHA GAS | | Interior Finish: | DRYWALL PAINT | Plumbing Fixture Cnt: | 10 | | Roof Slope: | 6" IN 12" | Roof Structure/Cover: | CJ ASPHALT |
|
| | Type | Description | Class CD | Sub Class CD | Year Built | Area |
| | BAS | BASE/MAIN FLOOR | 4 | 0 | 2007 | 787.0 |
| | DGR | DETACHED GARAGE | 4 | 0 | 2007 | 311.0 |
| | OWR | OPEN WOOD PORCH W/STEPS/ROOF | 4 | 0 | 2007 | 120.0 |
| | UPH | HALF STORY | 4 | 0 | 2007 | 451.0 |
| | COMA | Common Area Improvement | 4 | 0 | 2007 | 0.0 |
Sketch
Property Image
Land
| 1 | 61 | MULTIPLE RESIDENCES | 0.0605 | 2634.84 | 43.71 | 0.00 | 1.00 | $250,000 | $0 |
Roll Value History
| 2026 | N/A | N/A | N/A | N/A | N/A |
| 2025 | $322,348 | $250,000 | $0 | $572,348 | $572,348 |
| 2024 | $312,015 | $250,000 | $0 | $562,015 | $562,015 |
| 2023 | $315,459 | $250,000 | $0 | $565,459 | $565,459 |
| 2022 | $290,187 | $250,000 | $0 | $540,187 | $540,187 |
| 2021 | $257,004 | $150,000 | $0 | $407,004 | $407,004 |
| 2020 | $249,335 | $130,000 | $0 | $379,335 | $379,335 |
| 2019 | $182,726 | $170,000 | $0 | $352,726 | $352,726 |
| 2018 | $199,541 | $150,000 | $0 | $349,541 | $349,541 |
| 2017 | $200,503 | $71,141 | $0 | $271,644 | $271,644 |
| 2016 | $204,343 | $71,141 | $0 | $275,484 | $275,484 |
| 2015 | $174,500 | $71,141 | $0 | $245,641 | $245,641 |
| 2014 | $176,211 | $71,141 | $0 | $247,352 | $247,352 |
| 2013 | $154,715 | $71,141 | $0 | $225,856 | $225,856 |
| 2012 | $207,685 | $71,141 | $0 | $278,826 | $278,826 |
| 2011 | $207,685 | $71,141 | $0 | $278,826 | $278,826 |
| 2010 | $159,902 | $62,223 | $0 | $222,125 | $222,125 |
| 2009 | $172,716 | $78,930 | $0 | $251,646 | $251,646 |
| 2008 | $166,929 | $54,949 | $0 | $221,878 | $221,878 |
| 2007 | $131,989 | $91,722 | $0 | $223,711 | $223,711 |
Deed and Sales History
| 1 | 06/20/2025 | WD | Warranty Deed | WENTWORTH, MARY E | ROOMES, JOANN K | | | $650,000.00 | 63926 | 4587378 |
| 2 | 04/20/2017 | WD | Warranty Deed | DEANGELIS, JERI ELLEN | WENTWORTH, MARY E | | | $369,000.00 | 28968 | 4421141 |
| 3 | 08/31/2011 | WD | Warranty Deed | KELLEY, SEAN P | DEANGELIS, JERI ELLEN | | | $264,000.00 | 5448 | 4300727 |
| 4 | 08/24/2009 | WD | Warranty Deed | STUURMANS ENTERPRISES INC, | KELLEY, SEAN P | | | $279,000.00 | 92036 | 4259285 |
| 5 | 01/01/1900 | OTHER | Other - Misc. Documents | Unknown | STUURMANS ENTERPRISES INC, | | | $0.00 | 0 | 0 |
Payout Agreement
| No payout information available.. |