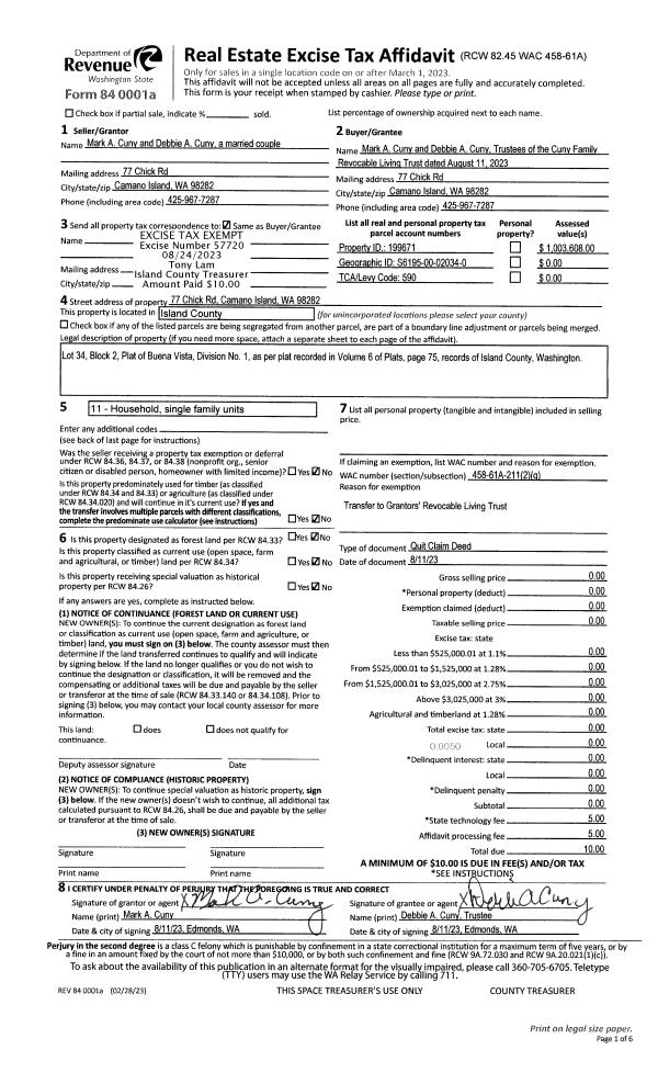
Property
Account |
| Property ID: | 808103 | Abbreviated Legal Description: | N/2 E/2 SW NE |
| Geographic ID: | R23330-365-3550 | Agent Code: | |
| Type: | Real | | |
| Tax Area: | 119 - APPRAISER-OH Schl Dist, outside OH, vacant & 50 acres or less | Land Use Code | 88 |
| Open Space: | N | DFL | Y |
| Historic Property: | N | Remodel Property: | N |
| Multi-Family Redevelopment: | N | | |
| Township: | 33 | Section: | 30 |
| Range: | R2 |
Location |
| Address: | 298 CARDWELL WAY OAK HARBOR, WA 98277 | Mapsco: | |
| Neighborhood: | Cycle 6 | Map ID: | 642 |
| Neighborhood CD: | 6 |
Owner |
| Name: | CARDWELL, BRET M | Owner ID: | 198729 |
| Mailing Address: | GELINE P CARDWELL 299 NW 7TH CT OAK HARBOR, WA 98277-4459 | % Ownership: | 100.0000000000% |
| | | Exemptions: | |
Taxes and Assessment Details
Values
| (+) Improvement Homesite Value: | + | $0 | |
| (+) Improvement Non-Homesite Value: | + | $0 | |
| (+) Land Homesite Value: | + | $0 | |
| (+) Land Non-Homesite Value: | + | $48,000 | |
| (+) Curr Use (HS): | + | $0 | $0 |
| (+) Curr Use (NHS): | + | $192,000 | $1,346 |
| | | -------------------------- | |
| (=) Market Value: | = | $240,000 | |
| (–) Productivity Loss: | – | $190,654 | |
| | | -------------------------- | |
| (=) Subtotal: | = | $49,346 | |
| (+) Senior Appraised Value: | + | $0 | |
| (+) Non-Senior Appraised Value: | + | $49,346 | |
| | | -------------------------- | |
| (=) Total Appraised Value: | = | $49,346 | |
| (–) Senior Exemption Loss: | – | $0 | |
| (–) Exemption Loss: | – | $0 | |
| | | -------------------------- | |
| (=) Taxable Value: | = | $49,346 | |
Taxing Jurisdiction
| Owner: | CARDWELL, BRET M | | |
| % Ownership: | 100.0000000000% | | |
| Total Value: | $240,000 | | |
| Tax Area: | 119 - APPRAISER-OH Schl Dist, outside OH, vacant & 50 acres or less |
| CF | Conservation Futures | 0.0316035091 | $49,346 | $49,346 | $1.56 | | |
| CEM1 | Cemetery #1 | 0.0040320932 | $49,346 | $49,346 | $0.20 | | |
| HOBOND | Hospital BOND | 0.1910887512 | $49,346 | $49,346 | $9.43 | | |
| HOGEN | Hospital GEN | 0.3902502903 | $49,346 | $49,346 | $19.26 | | |
| CE | County Current Expense | 0.3708482477 | $49,346 | $49,346 | $18.30 | | |
| CR | County Roads | 0.4584763726 | $49,346 | $49,346 | $22.62 | | |
| ISLANDEMS | Hospital GEN (EMS) | 0.5000000000 | $49,346 | $49,346 | $24.67 | | |
| LIB | Library Sno-Isle GEN | 0.3153421757 | $49,346 | $49,346 | $15.56 | | |
| NWHIDPRMT | P & R N Whidbey GEN | 0.2004466701 | $49,346 | $49,346 | $9.89 | | |
| SCH201MO | School 201 Enrichment | 1.8559231640 | $49,346 | $49,346 | $91.58 | | |
| ST | State School | 1.3035497053 | $49,346 | $49,346 | $64.32 | | |
| ST2 | State School Part 2 | 0.8169543533 | $49,346 | $49,346 | $40.31 | | |
| | Total Tax Rate: | 6.4385153325 | | | | | |
| | | | | Taxes w/Current Exemptions: | $317.70 | | |
| | | | | Taxes w/o Exemptions: | $317.70 | | |
Improvement / Building
| Improvement #1: | RESIDENTIAL | State Code: | Y | 2499.6 sqft | Value: | $0 |
| Bathrooms: | 2.5 | Bedrooms: | 4 | | Ceiling: | (NONE) | Exterior Wall/Cover: | (NONE) | | Floor Covering: | (NONE) | Floor Structure: | (NONE) | | Foundation: | (NONE) | Heating: | (NONE) | | Interior Finish: | (NONE) | Plumbing Fixture Cnt: | 12 | | Roof Slope: | 4" IN 12" | Roof Structure/Cover: | (NONE) |
|
| | Type | Description | Class CD | Sub Class CD | Year Built | Area |
| | BAS | BASE/MAIN FLOOR | 4 | 0 | 2024 | 1689.1 |
| | UPS | UPPER STORY | 4 | 0 | 2024 | 810.5 |
| | AGR | ATTACHED GARAGE | 4 | 0 | 2024 | 624.0 |
Sketch
Property Image
Land
| 1 | 35 | AC (10.00-30.99) | 4.1500 | 180774.00 | 0.00 | 0.00 | 1.00 | $99,600 | $772 |
| 2 | 35 | AC (10.00-30.99) | 2.0000 | 87120.00 | 0.00 | 0.00 | 1.00 | $48,000 | $0 |
| 3 | 35 | AC (10.00-30.99) | 3.8500 | 167706.00 | 0.00 | 0.00 | 1.00 | $92,400 | $574 |
Roll Value History
| 2026 | N/A | N/A | N/A | N/A | N/A |
| 2025 | $0 | $240,000 | $1,346 | $49,346 | $49,346 |
| 2024 | $0 | $220,000 | $1,354 | $45,354 | $45,354 |
| 2023 | $0 | $220,000 | $1,297 | $45,297 | $45,297 |
| 2022 | $0 | $220,000 | $1,297 | $45,297 | $45,297 |
| 2021 | $0 | $160,000 | $1,297 | $33,297 | $33,297 |
| 2020 | $0 | $160,000 | $1,297 | $33,297 | $33,297 |
| 2019 | $0 | $160,000 | $1,253 | $33,253 | $33,253 |
| 2018 | $0 | $140,000 | $1,237 | $29,237 | $29,237 |
| 2017 | $0 | $130,000 | $1,237 | $27,237 | $27,237 |
| 2016 | $0 | $130,000 | $808 | $26,808 | $26,808 |
| 2015 | $0 | $130,000 | $808 | $26,808 | $26,808 |
| 2014 | $0 | $130,000 | $808 | $26,808 | $26,808 |
| 2013 | $0 | $130,000 | $808 | $26,808 | $26,808 |
| 2012 | $0 | $68,000 | $808 | $808 | $808 |
| 2011 | $0 | $80,000 | $808 | $808 | $808 |
| 2010 | $0 | $80,000 | $808 | $808 | $808 |
| 2009 | $0 | $808 | $808 | $808 | $808 |
| 2008 | $0 | $128,000 | $808 | $808 | $808 |
| 2007 | $0 | $808 | $0 | $808 | $808 |
Deed and Sales History
| 1 | 08/22/2007 | SEG | DNU - Segregation | Unknown | LEAF, KERRY K | | | $0.00 | 80331 | 0 |
| 2 | 10/02/2006 | WD | Warranty Deed | LEAF, KERRY K | CARDWELL, BRET M | | | $140,620.00 | 64389 | 4183938 |
Payout Agreement
| No payout information available.. |