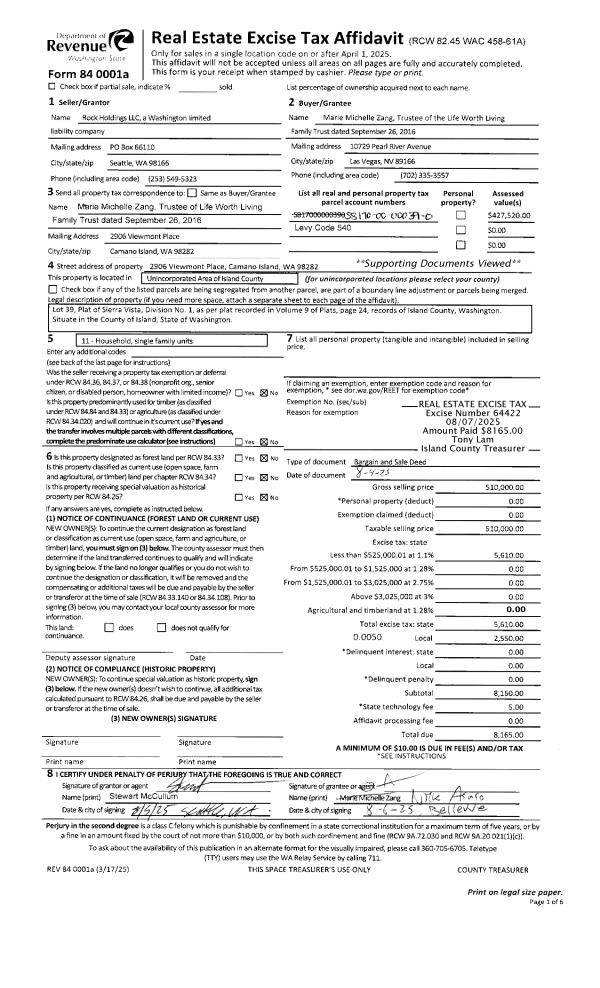
Property
Account |
| Property ID: | 808134 | Abbreviated Legal Description: | BG SECR GL5 S88*W ON SLN GL5 620.95' N1*W50' S88*W32.07' N1*W TO SLN WELCHER RD ELY ON SLN WELCHER RD TP LY N1*W FR TPB S1*E732.57' M/L TPB |
| Geographic ID: | R13112-306-3690 | Agent Code: | |
| Type: | Real | | |
| Tax Area: | 312 - APPRAISER-Cpvl Schl Dist, outside Cpvl, improved, greater than 1 acre | Land Use Code | 11 |
| Open Space: | N | DFL | N |
| Historic Property: | N | Remodel Property: | N |
| Multi-Family Redevelopment: | N | | |
| Township: | 31 | Section: | 12 |
| Range: | R1 |
Location |
| Address: | 139 W WELCHER RD COUPEVILLE, WA 98239 | Mapsco: | |
| Neighborhood: | Cycle 2 | Map ID: | 57 |
| Neighborhood CD: | 2 |
Owner |
| Name: | STRELOW, BRIAN | Owner ID: | 198782 |
| Mailing Address: | NICOLE STRELOW PO BOX 948 COUPEVILLE, WA 98239-0948 | % Ownership: | 100.0000000000% |
| | | Exemptions: | |
Taxes and Assessment Details
Values
| (+) Improvement Homesite Value: | + | $0 | |
| (+) Improvement Non-Homesite Value: | + | $934,636 | |
| (+) Land Homesite Value: | + | $0 | |
| (+) Land Non-Homesite Value: | + | $356,017 | |
| (+) Curr Use (HS): | + | $0 | $0 |
| (+) Curr Use (NHS): | + | $0 | $0 |
| | | -------------------------- | |
| (=) Market Value: | = | $1,290,653 | |
| (–) Productivity Loss: | – | $0 | |
| | | -------------------------- | |
| (=) Subtotal: | = | $1,290,653 | |
| (+) Senior Appraised Value: | + | $0 | |
| (+) Non-Senior Appraised Value: | + | $1,290,653 | |
| | | -------------------------- | |
| (=) Total Appraised Value: | = | $1,290,653 | |
| (–) Senior Exemption Loss: | – | $0 | |
| (–) Exemption Loss: | – | $0 | |
| | | -------------------------- | |
| (=) Taxable Value: | = | $1,290,653 | |
Taxing Jurisdiction
| Owner: | STRELOW, BRIAN | | |
| % Ownership: | 100.0000000000% | | |
| Total Value: | $1,290,653 | | |
| Tax Area: | 312 - APPRAISER-Cpvl Schl Dist, outside Cpvl, improved, greater than 1 acre |
| CF | Conservation Futures | 0.0316035091 | $1,290,653 | $1,290,653 | $40.79 | | |
| CEM2 | Cemetery #2 | 0.0095056933 | $1,290,653 | $1,290,653 | $12.27 | | |
| FIRE5 | Fire & Rescue Dist #5 C Whidbey GEN | 1.2008080668 | $1,290,653 | $1,290,653 | $1,549.83 | | |
| FIRE5BOND | Fire & Rescue Dist #5 C Whidbey BOND | 0.1400090713 | $1,290,653 | $1,290,653 | $180.70 | | |
| HOBOND | Hospital BOND | 0.1910887512 | $1,290,653 | $1,290,653 | $246.63 | | |
| HOGEN | Hospital GEN | 0.3902502903 | $1,290,653 | $1,290,653 | $503.68 | | |
| CE | County Current Expense | 0.3708482477 | $1,290,653 | $1,290,653 | $478.64 | | |
| CR | County Roads | 0.4584763726 | $1,290,653 | $1,290,653 | $591.73 | | |
| ISLANDEMS | Hospital GEN (EMS) | 0.5000000000 | $1,290,653 | $1,290,653 | $645.33 | | |
| LIB | Library Sno-Isle GEN | 0.3153421757 | $1,290,653 | $1,290,653 | $407.00 | | |
| LIBCAP | Library Sno-Isle BOND (Cap Fac Imp Area) | 0.0543427938 | $1,290,653 | $1,290,653 | $70.14 | | |
| POCOUP | Port of Coupeville GEN | 0.1093371703 | $1,290,653 | $1,290,653 | $141.12 | | |
| POCOUPIDD | Port of Coupeville IDD | 0.3409740022 | $1,290,653 | $1,290,653 | $440.08 | | |
| COUPSDTECH | School 204 CP (TECH) | 0.7545480007 | $1,290,653 | $1,290,653 | $973.86 | | |
| SCH204MO | School 204 Enrichment | 0.6716186034 | $1,290,653 | $1,290,653 | $866.83 | | |
| ST | State School | 1.3035497053 | $1,290,653 | $1,290,653 | $1,682.43 | | |
| ST2 | State School Part 2 | 0.8169543533 | $1,290,653 | $1,290,653 | $1,054.40 | | |
| | Total Tax Rate: | 7.6592568070 | | | | | |
| | | | | Taxes w/Current Exemptions: | $9,885.46 | | |
| | | | | Taxes w/o Exemptions: | $9,885.46 | | |
Improvement / Building
| Improvement #1: | RESIDENTIAL | State Code: | Y | 2481.0 sqft | Value: | $655,770 |
| Bathrooms: | 2.5 | Bedrooms: | 3 | | Ceiling: | DRYWALL PAINTED | Cooling: | HEAT PUMP/CONV/V | | Exterior Wall/Cover: | CEMENT FIBER | Floor Covering: | CERAMIC TILE/HWD 40/60 | | Floor Structure: | WOOD W/SUBFLOOR | Foundation: | CONCRETE | | Interior Finish: | DRYWALL PAINT | Plumbing Fixture Cnt: | 14 | | Roof Slope: | 8" IN 12" | Roof Structure/Cover: | CJ ASPHALT |
|
| | Type | Description | Class CD | Sub Class CD | Year Built | Area |
| | BAS | BASE/MAIN FLOOR | 4 | 0 | 2008 | 2481.0 |
| | oPOL | POLE BARN | 3 | 0 | 2008 | 1488.0 |
| | OP4 | OPEN PORCH W/CEILING-ROOF | 4 | 0 | 2008 | 55.0 |
| | OCP | OPEN CARPORT | 4 | 0 | 2008 | 320.0 |
| | OCP | OPEN CARPORT | 4 | 0 | 2008 | 240.0 |
| | ENP | ENCLOSED PORCH | 4 | 0 | 2008 | 338.0 |
| | AGR | ATTACHED GARAGE | 4 | 0 | 2008 | 768.0 |
| | OCP | OPEN CARPORT | 4 | 0 | 2008 | 432.0 |
| Improvement #2: | RESIDENTIAL | State Code: | Y | 981.0 sqft | Value: | $278,866 |
| Bathrooms: | 1 | Bedrooms: | 2 | | Ceiling: | DRYWALL PAINTED | Cooling: | HEAT PUMP/CONV/V | | Exterior Wall/Cover: | CEMENT FIBER | Floor Covering: | VINYL 100% | | Floor Structure: | WOOD ON WOOD JOIST | Foundation: | CONCRETE | | Interior Finish: | DRYWALL PAINT | Plumbing Fixture Cnt: | 8 | | Roof Slope: | 4" IN 12" | Roof Structure/Cover: | CJ ASPHALT |
|
| | Type | Description | Class CD | Sub Class CD | Year Built | Area |
| | BAS | BASE/MAIN FLOOR | 4 | 0 | 2017 | 981.0 |
| | AGR | ATTACHED GARAGE | 4 | 0 | 2017 | 660.0 |
| | OWC | OPEN WOOD PORCH W/STEPS/ROOF/C | 4 | 0 | 2017 | 144.0 |
| | OP4 | OPEN PORCH W/CEILING-ROOF | 4 | 0 | 2017 | 25.0 |
Sketch
Property Image
Land
| 1 | 91 | UNDEVELOPED LAND-METES AND BOUNDS | 9.9500 | 433422.00 | 0.00 | 0.00 | 1.00 | $136,017 | $0 |
| 2 | HS | HOMESITE | 1.0000 | 43560.00 | 0.00 | 0.00 | 1.00 | $220,000 | $0 |
Roll Value History
| 2026 | N/A | N/A | N/A | N/A | N/A |
| 2025 | $934,636 | $356,017 | $0 | $1,290,653 | $1,290,653 |
| 2024 | $915,393 | $310,000 | $0 | $1,225,393 | $1,225,393 |
| 2023 | $925,219 | $290,000 | $0 | $1,215,219 | $1,215,219 |
| 2022 | $846,706 | $260,000 | $0 | $1,106,706 | $1,106,706 |
| 2021 | $744,000 | $225,000 | $0 | $969,000 | $969,000 |
| 2020 | $723,249 | $215,000 | $0 | $938,249 | $938,249 |
| 2019 | $529,187 | $250,000 | $0 | $779,187 | $779,187 |
| 2018 | $514,022 | $220,000 | $0 | $734,022 | $734,022 |
| 2017 | $487,321 | $200,000 | $0 | $687,321 | $687,321 |
| 2016 | $367,098 | $140,000 | $0 | $507,098 | $507,098 |
| 2015 | $370,858 | $140,000 | $0 | $510,858 | $510,858 |
| 2014 | $374,618 | $140,000 | $0 | $514,618 | $514,618 |
| 2013 | $378,378 | $140,000 | $0 | $518,378 | $518,378 |
| 2012 | $382,137 | $147,825 | $0 | $529,962 | $529,962 |
| 2011 | $372,349 | $164,250 | $0 | $536,599 | $536,599 |
| 2010 | $383,527 | $164,250 | $0 | $547,777 | $547,777 |
| 2009 | $395,396 | $219,000 | $0 | $614,396 | $614,396 |
| 2008 | $0 | $623,229 | $0 | $623,229 | $623,229 |
Deed and Sales History
| 1 | 09/04/2007 | SEG | DNU - Segregation | Unknown | DRUMHELLER, GLENN W | | | $0.00 | 80337 | 0 |
| 2 | 04/10/2007 | WD | Warranty Deed | STRELOW, BRIAN | STRELOW, BRIAN | | | $0.00 | 71725 | 4202827 |
| 3 | 04/10/2007 | WD | Warranty Deed | DRUMHELLER, GLENN W | STRELOW, BRIAN | | | $159,000.00 | 71199 | 4199266 |
Payout Agreement
| No payout information available.. |