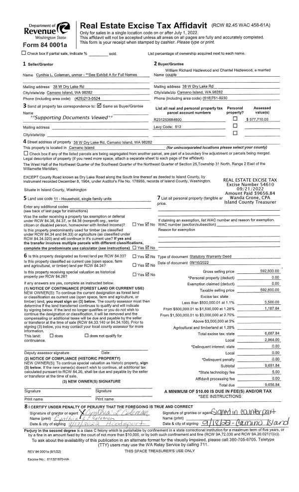
Property
Account |
| Property ID: | 808139 | Abbreviated Legal Description: | LOT 1 SP 121-98.13210.089-0430 V3 SP P227 AF#98027127 EX: BG SWCR SD LOT 1 SD CR SWCR SEC 10 N1*E ALG WLN SD LOT 1 806.42' S87*E541' S1*W806.46' TO SLN SD LOT 1 ALG SD SLN N87*W540.59' TPB |
| Geographic ID: | R13210-096-0860 | Agent Code: | |
| Type: | Real | | |
| Tax Area: | 112 - APPRAISER-OH Schl Dist, outside OH, improved, greater than 1 acre | Land Use Code | 83 |
| Open Space: | Y | DFL | N |
| Historic Property: | N | Remodel Property: | N |
| Multi-Family Redevelopment: | N | | |
| Township: | 32 | Section: | 10 |
| Range: | R1 |
Location |
| Address: | 1181 WATERLOO RD OAK HARBOR, WA 98277 | Mapsco: | |
| Neighborhood: | Cycle 1 | Map ID: | 116 |
| Neighborhood CD: | 1 |
Owner |
| Name: | KENNEY, LEIGH | Owner ID: | 307090 |
| Mailing Address: | JOHN D. CLINE 1181 WATERLOO RD OAK HARBOR, WA 98277 | % Ownership: | 100.0000000000% |
| | | Exemptions: | |
Taxes and Assessment Details
Values
| (+) Improvement Homesite Value: | + | $0 | |
| (+) Improvement Non-Homesite Value: | + | $624,935 | |
| (+) Land Homesite Value: | + | $0 | |
| (+) Land Non-Homesite Value: | + | $0 | |
| (+) Curr Use (HS): | + | $0 | $0 |
| (+) Curr Use (NHS): | + | $350,000 | $5,700 |
| | | -------------------------- | |
| (=) Market Value: | = | $974,935 | |
| (–) Productivity Loss: | – | $344,300 | |
| | | -------------------------- | |
| (=) Subtotal: | = | $630,635 | |
| (+) Senior Appraised Value: | + | $0 | |
| (+) Non-Senior Appraised Value: | + | $630,635 | |
| | | -------------------------- | |
| (=) Total Appraised Value: | = | $630,635 | |
| (–) Senior Exemption Loss: | – | $0 | |
| (–) Exemption Loss: | – | $0 | |
| | | -------------------------- | |
| (=) Taxable Value: | = | $630,635 | |
Taxing Jurisdiction
| Owner: | KENNEY, LEIGH | | |
| % Ownership: | 100.0000000000% | | |
| Total Value: | $974,935 | | |
| Tax Area: | 112 - APPRAISER-OH Schl Dist, outside OH, improved, greater than 1 acre |
| CF | Conservation Futures | 0.0316035091 | $630,635 | $630,635 | $19.93 | | |
| CEM1 | Cemetery #1 | 0.0040320932 | $630,635 | $630,635 | $2.54 | | |
| FIRE2 | Fire & Rescue Dist #2 N Whidbey GEN | 0.5475949600 | $630,635 | $630,635 | $345.33 | | |
| HOBOND | Hospital BOND | 0.1910887512 | $630,635 | $630,635 | $120.51 | | |
| HOGEN | Hospital GEN | 0.3902502903 | $630,635 | $630,635 | $246.11 | | |
| CE | County Current Expense | 0.3708482477 | $630,635 | $630,635 | $233.87 | | |
| CR | County Roads | 0.4584763726 | $630,635 | $630,635 | $289.13 | | |
| ISLANDEMS | Hospital GEN (EMS) | 0.5000000000 | $630,635 | $630,635 | $315.32 | | |
| LIB | Library Sno-Isle GEN | 0.3153421757 | $630,635 | $630,635 | $198.87 | | |
| NWHIDPRMT | P & R N Whidbey GEN | 0.2004466701 | $630,635 | $630,635 | $126.41 | | |
| SCH201MO | School 201 Enrichment | 1.8559231640 | $630,635 | $630,635 | $1,170.41 | | |
| ST | State School | 1.3035497053 | $630,635 | $630,635 | $822.06 | | |
| ST2 | State School Part 2 | 0.8169543533 | $630,635 | $630,635 | $515.20 | | |
| | Total Tax Rate: | 6.9861102925 | | | | | |
| | | | | Taxes w/Current Exemptions: | $4,405.69 | | |
| | | | | Taxes w/o Exemptions: | $4,405.69 | | |
Improvement / Building
| Improvement #1: | RESIDENTIAL | State Code: | Y | 2820.0 sqft | Value: | $624,935 |
| Bathrooms: | 2 | Bedrooms: | 3 | | Ceiling: | DRY WALL SPRAYED | Cooling: | HEAT PUMP/CONV/V | | Exterior Wall/Cover: | WOOD SIDING | Floor Covering: | CARPET/VINYL 60-40 | | Floor Structure: | WOOD W/SUBFLOOR | Foundation: | CONCRETE | | Interior Finish: | DRYWALL PAINT | Plumbing Fixture Cnt: | 9 | | Roof Slope: | 6" IN 12" | Roof Structure/Cover: | CJ ALUMINIUM HEAVY |
|
| | Type | Description | Class CD | Sub Class CD | Year Built | Area |
| | BAS | BASE/MAIN FLOOR | 4 | 0 | 1925 | 2820.0 |
| | OP1 | OPEN PORCH SLAB | 4 | 0 | 1925 | 2233.4 |
| | OWP | OPEN WOOD PORCH W/STEPS | 4 | 0 | 1925 | 278.6 |
| | OWC | OPEN WOOD PORCH W/STEPS/ROOF/C | 4 | 0 | 1925 | 42.0 |
| | UTY | STORAGE/UTILITY | 4 | 0 | 1925 | 2550.0 |
| | UTY | STORAGE/UTILITY | 4 | 0 | 1925 | 169.0 |
| | UTY | STORAGE/UTILITY | 4 | 0 | 1925 | 169.0 |
Sketch
Property Image
Land
| 1 | 83 | OPEN AGRICULTURE | 13.8300 | 602434.80 | 0.00 | 0.00 | 1.00 | $130,000 | $5,316 |
| 2 | HS | HOMESITE | 1.0000 | 43560.00 | 0.00 | 0.00 | 1.00 | $220,000 | $384 |
Roll Value History
| 2026 | N/A | N/A | N/A | N/A | N/A |
| 2025 | $624,935 | $350,000 | $5,700 | $630,635 | $630,635 |
| 2024 | $632,265 | $310,000 | $5,700 | $637,965 | $637,965 |
| 2023 | $602,945 | $290,000 | $5,700 | $608,645 | $608,645 |
| 2022 | $552,612 | $270,000 | $5,700 | $558,312 | $558,312 |
| 2021 | $486,285 | $255,000 | $5,700 | $491,985 | $491,985 |
| 2020 | $475,424 | $200,000 | $5,700 | $481,124 | $481,124 |
| 2019 | $369,699 | $230,000 | $5,700 | $375,399 | $375,399 |
| 2018 | $281,891 | $170,000 | $5,700 | $287,591 | $287,591 |
| 2017 | $242,908 | $200,000 | $5,700 | $248,608 | $248,608 |
| 2016 | $245,526 | $200,000 | $5,700 | $251,226 | $251,226 |
| 2015 | $248,145 | $200,000 | $5,700 | $253,845 | $253,845 |
| 2014 | $250,763 | $195,000 | $5,700 | $256,463 | $256,463 |
| 2013 | $253,381 | $214,294 | $5,700 | $259,081 | $259,081 |
| 2012 | $255,999 | $214,294 | $5,700 | $261,699 | $261,699 |
| 2011 | $258,746 | $252,110 | $6,075 | $264,821 | $264,821 |
| 2010 | $263,721 | $252,110 | $6,075 | $269,796 | $269,796 |
| 2009 | $134,024 | $151,268 | $6,075 | $279,217 | $279,217 |
| 2008 | $248,015 | $264,093 | $5,700 | $253,715 | $253,715 |
| 2007 | $0 | $0 | $0 | $256,861 | $256,861 |
Deed and Sales History
| 1 | 02/16/2022 | WD | Warranty Deed | HEISERMAN, WILLIAM H | KENNEY, LEIGH | | | $1,400,000.00 | 52143 | 4540732 |
|   | |
| 2 | 09/05/2007 | SEG | DNU - Segregation | Unknown | HEISERMAN, WILLIAM H | | | $0.00 | 80338 | 0 |
Payout Agreement
| No payout information available.. |