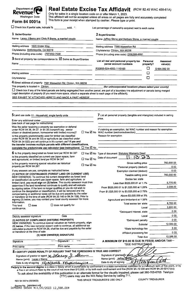
Property
Account |
| Property ID: | 808151 | Abbreviated Legal Description: | LOT 1 SP 391-05.32910.522-4610 V4 SP P205 & 206 AF# 4189804 |
| Geographic ID: | R32910-522-4990 | Agent Code: | |
| Type: | Real | | |
| Tax Area: | 712 - APPRAISER-S Whid Schl Dist, outside Langley, improved, greater than 1 acre | Land Use Code | 11 |
| Open Space: | N | DFL | N |
| Historic Property: | N | Remodel Property: | N |
| Multi-Family Redevelopment: | N | | |
| Township: | 29 | Section: | 10 |
| Range: | R3 |
Location |
| Address: | 5212 LANGLEY RD LANGLEY, WA 98260 | Mapsco: | |
| Neighborhood: | Cycle 4 | Map ID: | 757 |
| Neighborhood CD: | 4 |
Owner |
| Name: | MYSZKOWSKI, MARIAN | Owner ID: | 17609 |
| Mailing Address: | PO BOX 1375 LANGLEY, WA 98260-1375 | % Ownership: | 100.0000000000% |
| | | Exemptions: | |
Taxes and Assessment Details
Values
| (+) Improvement Homesite Value: | + | $0 | |
| (+) Improvement Non-Homesite Value: | + | $296,009 | |
| (+) Land Homesite Value: | + | $0 | |
| (+) Land Non-Homesite Value: | + | $370,000 | |
| (+) Curr Use (HS): | + | $0 | $0 |
| (+) Curr Use (NHS): | + | $0 | $0 |
| | | -------------------------- | |
| (=) Market Value: | = | $666,009 | |
| (–) Productivity Loss: | – | $0 | |
| | | -------------------------- | |
| (=) Subtotal: | = | $666,009 | |
| (+) Senior Appraised Value: | + | $0 | |
| (+) Non-Senior Appraised Value: | + | $666,009 | |
| | | -------------------------- | |
| (=) Total Appraised Value: | = | $666,009 | |
| (–) Senior Exemption Loss: | – | $0 | |
| (–) Exemption Loss: | – | $0 | |
| | | -------------------------- | |
| (=) Taxable Value: | = | $666,009 | |
Taxing Jurisdiction
| Owner: | MYSZKOWSKI, MARIAN | | |
| % Ownership: | 100.0000000000% | | |
| Total Value: | $666,009 | | |
| Tax Area: | 712 - APPRAISER-S Whid Schl Dist, outside Langley, improved, greater than 1 acre |
| CF | Conservation Futures | 0.0316035091 | $666,009 | $666,009 | $21.05 | | |
| FIRE3 | Fire & Rescue Dist #3 S Whidbey GEN | 1.2004855531 | $666,009 | $666,009 | $799.53 | | |
| HOBOND | Hospital BOND | 0.1910887512 | $666,009 | $666,009 | $127.27 | | |
| HOGEN | Hospital GEN | 0.3902502903 | $666,009 | $666,009 | $259.91 | | |
| CE | County Current Expense | 0.3708482477 | $666,009 | $666,009 | $246.99 | | |
| CR | County Roads | 0.4584763726 | $666,009 | $666,009 | $305.35 | | |
| ISLANDEMS | Hospital GEN (EMS) | 0.5000000000 | $666,009 | $666,009 | $333.00 | | |
| LIB | Library Sno-Isle GEN | 0.3153421757 | $666,009 | $666,009 | $210.02 | | |
| PORTWHID | Port of S Whidbey GEN | 0.1094540357 | $666,009 | $666,009 | $72.90 | | |
| SCH206BOND | School 206 BOND | 0.3161759235 | $666,009 | $666,009 | $210.58 | | |
| SCH206MO | School 206 Enrichment | 0.4547169547 | $666,009 | $666,009 | $302.85 | | |
| ST | State School | 1.3035497053 | $666,009 | $666,009 | $868.18 | | |
| ST2 | State School Part 2 | 0.8169543533 | $666,009 | $666,009 | $544.10 | | |
| SWHIDPRBD | P & R S Whidbey BOND | 0.0152817568 | $666,009 | $666,009 | $10.18 | | |
| SWHIDPRBD2 | P & R S Whidbey BOND2 | 0.0138911264 | $666,009 | $666,009 | $9.25 | | |
| SWHIDPRMT | P & R S Whidbey GEN | 0.2053334452 | $666,009 | $666,009 | $136.75 | | |
| | Total Tax Rate: | 6.6934522006 | | | | | |
| | | | | Taxes w/Current Exemptions: | $4,457.91 | | |
| | | | | Taxes w/o Exemptions: | $4,457.91 | | |
Improvement / Building
| Improvement #1: | RESIDENTIAL | State Code: | Y | 2700.0 sqft | Value: | $296,008 |
| Bathrooms: | 1.5 | Bedrooms: | 2 | | Ceiling: | DRY WALL SPRAYED | Cooling: | HEAT PUMP/CONV/V | | Exterior Wall/Cover: | ASBESTOES/ASPHALT | Floor Covering: | CARPET/VINYL 20-80 | | Floor Structure: | WOOD W/SUBFLOOR | Foundation: | CONCRETE BLOCKS | | Interior Finish: | DRYWALL PAINT | Plumbing Fixture Cnt: | 11 | | Roof Slope: | 6" IN 12" | Roof Structure/Cover: | CJ ALUMINIUM HEAVY |
|
| | Type | Description | Class CD | Sub Class CD | Year Built | Area |
| | BAS | BASE/MAIN FLOOR | 3 | 0 | 1955 | 1530.0 |
| | DWN | DOWNSTAIRS LIVING AREA | 3 | 0 | 1955 | 1170.0 |
| | OWR | OPEN WOOD PORCH W/STEPS/ROOF | 3 | 0 | 1955 | 80.0 |
| | BIG | BUILT IN GARAGE | 3 | 0 | 1955 | 360.0 |
| | OWP | OPEN WOOD PORCH W/STEPS | 3 | 0 | 1955 | 408.0 |
| | oGAR | GARAGE | 3 | 0 | 1955 | 0.0 |
| Improvement #2: | RESIDENTIAL | State Code: | Y | 1152.0 sqft | Value: | $1 |
| Bathrooms: | 1 | Bedrooms: | 1 | | Ceiling: | ACOUSTIC FURRED | Exterior Wall/Cover: | LOG TO 10" | | Floor Structure: | WOOD W/SUBFLOOR | Foundation: | WOOD BLOCKS | | Interior Finish: | DRYWALL PAINT | Plumbing Fixture Cnt: | 5 | | Roof Slope: | 5" IN 12" | Roof Structure/Cover: | (NONE) |
|
| | Type | Description | Class CD | Sub Class CD | Year Built | Area |
| | BAS | BASE/MAIN FLOOR | 2 | 0 | 1909 | 720.0 |
| | OWR | OPEN WOOD PORCH W/STEPS/ROOF | 2 | 0 | 1909 | 144.0 |
| | UPH | HALF STORY | 2 | 0 | 1909 | 432.0 |
Sketch
Property Image
Land
| 1 | 32 | AC (03.01-09.99) | 0.0000 | 0.00 | 0.00 | 0.00 | 1.00 | $370,000 | $0 |
Roll Value History
| 2026 | N/A | N/A | N/A | N/A | N/A |
| 2025 | $296,009 | $370,000 | $0 | $666,009 | $666,009 |
| 2024 | $300,263 | $350,000 | $0 | $650,263 | $650,263 |
| 2023 | $304,515 | $330,000 | $0 | $634,515 | $634,515 |
| 2022 | $280,533 | $280,000 | $0 | $560,533 | $560,533 |
| 2021 | $248,604 | $230,000 | $0 | $478,604 | $478,604 |
| 2020 | $232,490 | $190,000 | $0 | $422,490 | $422,490 |
| 2019 | $175,313 | $250,000 | $0 | $425,313 | $425,313 |
| 2018 | $175,893 | $210,000 | $0 | $385,893 | $385,893 |
| 2017 | $177,054 | $190,000 | $0 | $367,054 | $367,054 |
| 2016 | $165,477 | $165,000 | $0 | $330,477 | $330,477 |
| 2015 | $153,430 | $165,000 | $0 | $318,430 | $318,430 |
| 2014 | $157,268 | $207,680 | $0 | $364,948 | $364,948 |
| 2013 | $159,317 | $207,680 | $0 | $366,997 | $366,997 |
| 2012 | $160,102 | $207,680 | $0 | $367,782 | $367,782 |
| 2011 | $162,132 | $207,680 | $0 | $369,812 | $369,812 |
| 2010 | $179,295 | $207,680 | $0 | $386,975 | $386,975 |
| 2009 | $172,823 | $259,234 | $0 | $432,057 | $432,057 |
| 2008 | $188,259 | $279,070 | $0 | $467,329 | $467,329 |
| 2007 | $0 | $0 | $0 | $313,631 | $313,631 |
Deed and Sales History
| 1 | 01/01/1900 | OTHER | Other - Misc. Documents | Unknown | MYSZKOWSKI, MARIAN | | | $0.00 | 0 | 0 |
Payout Agreement
| No payout information available.. |