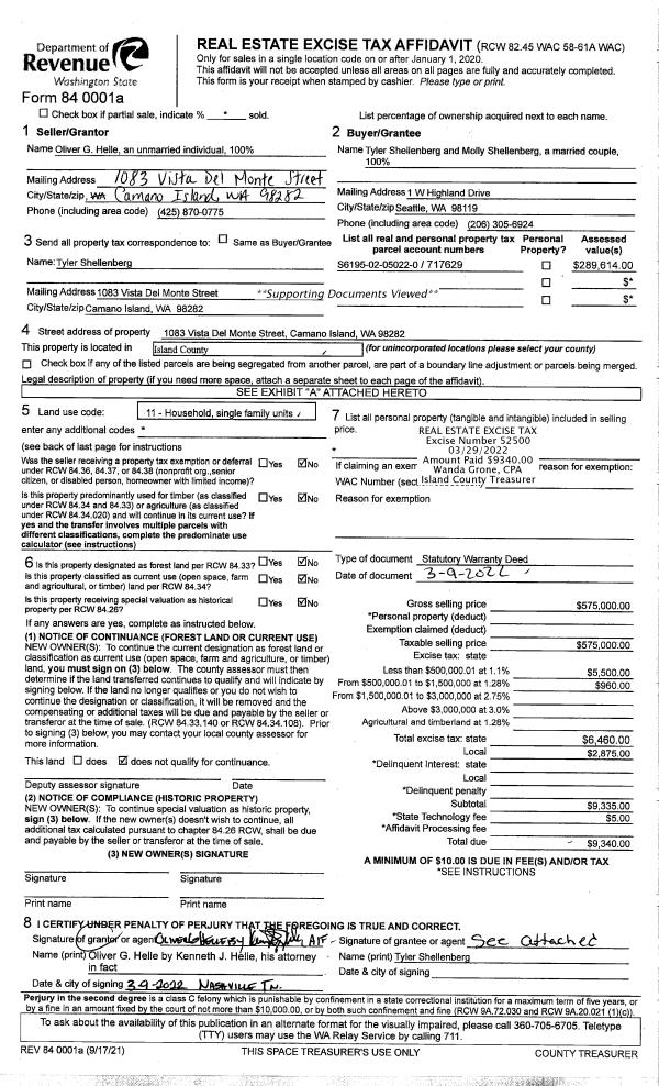
Property
Account |
| Property ID: | 808154 | Abbreviated Legal Description: | LOT 1 SP 243-06.33106.466-1580 V4 SP P203 & 204 AF# 4189163 |
| Geographic ID: | R33106-464-1300 | Agent Code: | |
| Type: | Real | | |
| Tax Area: | 592 - APPRAISER-Stan/Cam Schl Dist, Special Dist, improved, greater than 1 acre | Land Use Code | 39 |
| Open Space: | N | DFL | N |
| Historic Property: | N | Remodel Property: | N |
| Multi-Family Redevelopment: | N | | |
| Township: | 31 | Section: | 06 |
| Range: | R3 |
Location |
| Address: | 51 S EAST CAMANO DR CAMANO ISLAND, WA 98282 | Mapsco: | |
| Neighborhood: | 53cRR-necamano rd | Map ID: | 920 |
| Neighborhood CD: | 53cRRnecam |
Owner |
| Name: | AAA CAMANO STORAGE PHASE 2, LLC | Owner ID: | 283562 |
| Mailing Address: | 7802 76TH AVE NW GIG HARBOR, WA 98334 | % Ownership: | 100.0000000000% |
| | | Exemptions: | |
Taxes and Assessment Details
Values
| (+) Improvement Homesite Value: | + | $0 | |
| (+) Improvement Non-Homesite Value: | + | $86,986 | |
| (+) Land Homesite Value: | + | $0 | |
| (+) Land Non-Homesite Value: | + | $290,000 | |
| (+) Curr Use (HS): | + | $0 | $0 |
| (+) Curr Use (NHS): | + | $0 | $0 |
| | | -------------------------- | |
| (=) Market Value: | = | $376,986 | |
| (–) Productivity Loss: | – | $0 | |
| | | -------------------------- | |
| (=) Subtotal: | = | $376,986 | |
| (+) Senior Appraised Value: | + | $0 | |
| (+) Non-Senior Appraised Value: | + | $376,986 | |
| | | -------------------------- | |
| (=) Total Appraised Value: | = | $376,986 | |
| (–) Senior Exemption Loss: | – | $0 | |
| (–) Exemption Loss: | – | $0 | |
| | | -------------------------- | |
| (=) Taxable Value: | = | $376,986 | |
Taxing Jurisdiction
| Owner: | AAA CAMANO STORAGE PHASE 2, LLC | | |
| % Ownership: | 100.0000000000% | | |
| Total Value: | $376,986 | | |
| Tax Area: | 592 - APPRAISER-Stan/Cam Schl Dist, Special Dist, improved, greater than 1 acre |
| CF | Conservation Futures | 0.0316035091 | $376,986 | $376,986 | $11.91 | | |
| EMS1 | Fire & Rescue Dist #1 Camano GEN (EMS) | 0.3677864386 | $376,986 | $376,986 | $138.65 | | |
| FIRE1 | Fire & Rescue Dist #1 Camano GEN | 1.2502910536 | $376,986 | $376,986 | $471.34 | | |
| FIRE1BOND | Fire & Rescue Dist #1 Camano BOND | 0.1570001679 | $376,986 | $376,986 | $59.19 | | |
| CE | County Current Expense | 0.3708482477 | $376,986 | $376,986 | $139.80 | | |
| CR | County Roads | 0.4584763726 | $376,986 | $376,986 | $172.84 | | |
| LCIB | Library Sno-Isle BOND (Camano Island) | 0.0396325772 | $376,986 | $376,986 | $14.94 | | |
| LIB | Library Sno-Isle GEN | 0.3153421757 | $376,986 | $376,986 | $118.88 | | |
| SCH205_401 | School 205-401 Enrichment | 1.2698420524 | $376,986 | $376,986 | $478.71 | | |
| SCH205BOND | School 205-401 BOND | 0.9396497583 | $376,986 | $376,986 | $354.23 | | |
| ST | State School | 1.3035497053 | $376,986 | $376,986 | $491.42 | | |
| ST2 | State School Part 2 | 0.8169543533 | $376,986 | $376,986 | $307.98 | | |
| | Total Tax Rate: | 7.3209764117 | | | | | |
| | | | | Taxes w/Current Exemptions: | $2,759.89 | | |
| | | | | Taxes w/o Exemptions: | $2,759.89 | | |
Improvement / Building
| Improvement #1: | COMMERCIAL | State Code: | Y | 2400.0 sqft | Value: | $86,986 |
| Bathrooms: | 0 | Bedrooms: | 0 | | Ceiling: | PAINT OPEN FLOOR BAS | Exterior Wall/Cover: | STL/ALUM/SINGWL ST F | | Floor Covering: | CONCRETE SEALER | Floor Structure: | CONCRETE ON GROUND | | Foundation: | SLAB | Interior Finish: | WAREHOUSE DISTRIBUTE | | Plumbing Fixture Cnt: | 1 | Roof Structure/Cover: | METAL/OPEN WOOD |
|
Sketch
Property Image
Land
| 1 | 71 | INDUSTRIAL MANUFACTURING | 2.5000 | 108900.00 | 0.00 | 0.00 | 1.00 | $290,000 | $0 |
Roll Value History
| 2026 | N/A | N/A | N/A | N/A | N/A |
| 2025 | $86,986 | $290,000 | $0 | $376,986 | $376,986 |
| 2024 | $91,485 | $280,000 | $0 | $371,485 | $371,485 |
| 2023 | $95,985 | $230,000 | $0 | $325,985 | $325,985 |
| 2022 | $76,551 | $220,000 | $0 | $296,551 | $296,551 |
| 2021 | $76,551 | $190,000 | $0 | $266,551 | $266,551 |
| 2020 | $76,551 | $190,000 | $0 | $266,551 | $266,551 |
| 2019 | $73,160 | $190,000 | $0 | $263,160 | $263,160 |
| 2018 | $73,160 | $180,000 | $0 | $253,160 | $253,160 |
| 2017 | $94,828 | $160,000 | $0 | $254,828 | $254,828 |
| 2016 | $94,828 | $160,000 | $0 | $254,828 | $254,828 |
| 2015 | $100,344 | $189,525 | $0 | $289,869 | $289,869 |
| 2014 | $100,344 | $189,525 | $0 | $289,869 | $289,869 |
| 2013 | $100,344 | $189,525 | $0 | $289,869 | $289,869 |
| 2012 | $100,344 | $189,525 | $0 | $289,869 | $289,869 |
| 2011 | $100,344 | $189,525 | $0 | $289,869 | $289,869 |
| 2010 | $107,291 | $189,525 | $0 | $296,816 | $296,816 |
| 2009 | $109,550 | $189,525 | $0 | $299,075 | $299,075 |
| 2008 | $109,550 | $199,500 | $0 | $309,050 | $309,050 |
| 2007 | $0 | $0 | $0 | $309,383 | $309,383 |
Deed and Sales History
| 1 | 01/08/2018 | WD | Warranty Deed | BAUM, LAWRENCE F | AAA CAMANO STORAGE PHASE 2, LLC | | | $254,800.00 | 32583 | 4437346 |
| 2 | 01/01/1900 | OTHER | Other - Misc. Documents | Unknown | BAUM, LAWRENCE F | | | $0.00 | 0 | 0 |
Payout Agreement
| No payout information available.. |