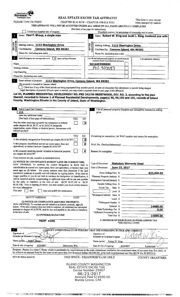
Property
Account |
| Property ID: | 808160 | Abbreviated Legal Description: | LOT 1 SP 72-05.32902.274-4790 V4 SP P175 AF# 4181757 |
| Geographic ID: | R32902-294-4880 | Agent Code: | |
| Type: | Real | | |
| Tax Area: | 712 - APPRAISER-S Whid Schl Dist, outside Langley, improved, greater than 1 acre | Land Use Code | 11 |
| Open Space: | N | DFL | N |
| Historic Property: | N | Remodel Property: | N |
| Multi-Family Redevelopment: | N | | |
| Township: | 29 | Section: | 02 |
| Range: | R3 |
Location |
| Address: | 4953 FIREWEED PLACE LANGLEY, WA 98260 | Mapsco: | |
| Neighborhood: | Cycle 4 | Map ID: | 722 |
| Neighborhood CD: | 4 |
Owner |
| Name: | BEZAIRE, STEPHEN P | Owner ID: | 279127 |
| Mailing Address: | JACQUELINE R BEZAIRE 4953 FIRE WEED POL LANGLEY, WA 98260-9238 | % Ownership: | 100.0000000000% |
| | | Exemptions: | |
Taxes and Assessment Details
Values
| (+) Improvement Homesite Value: | + | $0 | |
| (+) Improvement Non-Homesite Value: | + | $1,191,995 | |
| (+) Land Homesite Value: | + | $0 | |
| (+) Land Non-Homesite Value: | + | $370,000 | |
| (+) Curr Use (HS): | + | $0 | $0 |
| (+) Curr Use (NHS): | + | $0 | $0 |
| | | -------------------------- | |
| (=) Market Value: | = | $1,561,995 | |
| (–) Productivity Loss: | – | $0 | |
| | | -------------------------- | |
| (=) Subtotal: | = | $1,561,995 | |
| (+) Senior Appraised Value: | + | $0 | |
| (+) Non-Senior Appraised Value: | + | $1,561,995 | |
| | | -------------------------- | |
| (=) Total Appraised Value: | = | $1,561,995 | |
| (–) Senior Exemption Loss: | – | $0 | |
| (–) Exemption Loss: | – | $0 | |
| | | -------------------------- | |
| (=) Taxable Value: | = | $1,561,995 | |
Taxing Jurisdiction
| Owner: | BEZAIRE, STEPHEN P | | |
| % Ownership: | 100.0000000000% | | |
| Total Value: | $1,561,995 | | |
| Tax Area: | 712 - APPRAISER-S Whid Schl Dist, outside Langley, improved, greater than 1 acre |
| CF | Conservation Futures | 0.0316035091 | $1,561,995 | $1,561,995 | $49.36 | | |
| FIRE3 | Fire & Rescue Dist #3 S Whidbey GEN | 1.2004855531 | $1,561,995 | $1,561,995 | $1,875.15 | | |
| HOBOND | Hospital BOND | 0.1910887512 | $1,561,995 | $1,561,995 | $298.48 | | |
| HOGEN | Hospital GEN | 0.3902502903 | $1,561,995 | $1,561,995 | $609.57 | | |
| CE | County Current Expense | 0.3708482477 | $1,561,995 | $1,561,995 | $579.26 | | |
| CR | County Roads | 0.4584763726 | $1,561,995 | $1,561,995 | $716.14 | | |
| ISLANDEMS | Hospital GEN (EMS) | 0.5000000000 | $1,561,995 | $1,561,995 | $781.00 | | |
| LIB | Library Sno-Isle GEN | 0.3153421757 | $1,561,995 | $1,561,995 | $492.56 | | |
| PORTWHID | Port of S Whidbey GEN | 0.1094540357 | $1,561,995 | $1,561,995 | $170.97 | | |
| SCH206BOND | School 206 BOND | 0.3161759235 | $1,561,995 | $1,561,995 | $493.87 | | |
| SCH206MO | School 206 Enrichment | 0.4547169547 | $1,561,995 | $1,561,995 | $710.27 | | |
| ST | State School | 1.3035497053 | $1,561,995 | $1,561,995 | $2,036.14 | | |
| ST2 | State School Part 2 | 0.8169543533 | $1,561,995 | $1,561,995 | $1,276.08 | | |
| SWHIDPRBD | P & R S Whidbey BOND | 0.0152817568 | $1,561,995 | $1,561,995 | $23.87 | | |
| SWHIDPRBD2 | P & R S Whidbey BOND2 | 0.0138911264 | $1,561,995 | $1,561,995 | $21.70 | | |
| SWHIDPRMT | P & R S Whidbey GEN | 0.2053334452 | $1,561,995 | $1,561,995 | $320.73 | | |
| | Total Tax Rate: | 6.6934522006 | | | | | |
| | | | | Taxes w/Current Exemptions: | $10,455.15 | | |
| | | | | Taxes w/o Exemptions: | $10,455.15 | | |
Improvement / Building
| Improvement #1: | RESIDENTIAL | State Code: | Y | 3413.5 sqft | Value: | $902,688 |
| Bathrooms: | 2.75 | Bedrooms: | 3 | | Ceiling: | DRYWALL PAINTED | Exterior Wall/Cover: | WOOD SIDING | | Floor Covering: | HARDWOOD 100% | Floor Structure: | WOOD W/SUBFLOOR | | Foundation: | CONCRETE | Heating: | RADIANT FLOOR | | Interior Finish: | DRYWALL PAINT | Plumbing Fixture Cnt: | 14 | | Roof Slope: | 8" IN 12" | Roof Structure/Cover: | CJ ALUMINIUM HEAVY |
|
| | Type | Description | Class CD | Sub Class CD | Year Built | Area |
| | BAS | BASE/MAIN FLOOR | 5 | 0 | 2011 | 2505.5 |
| | UPH | HALF STORY | 5 | 0 | 2011 | 184.0 |
| | AGR | ATTACHED GARAGE | 5 | 0 | 2011 | 702.0 |
| | OWC | OPEN WOOD PORCH W/STEPS/ROOF/C | 5 | 0 | 2011 | 400.0 |
| | OP4 | OPEN PORCH W/CEILING-ROOF | 5 | 0 | 2011 | 156.0 |
| | OP3 | OPEN PORCH W/ROOF | 5 | 0 | 2011 | 588.0 |
| | UPS | UPPER STORY | 5 | 0 | 2011 | 724.0 |
| Improvement #2: | RESIDENTIAL | State Code: | Y | 780.0 sqft | Value: | $289,307 |
| Bathrooms: | 0.75 | Bedrooms: | 2 | | Ceiling: | DRYWALL PAINTED | Exterior Wall/Cover: | WOOD SIDING | | Floor Covering: | VINYL 100% | Floor Structure: | WOOD W/SUBFLOOR | | Foundation: | CONCRETE | Heating: | WALL HEAT ELECTRIC | | Interior Finish: | DRYWALL PAINT | Plumbing Fixture Cnt: | 6 | | Roof Slope: | 4" IN 12" | Roof Structure/Cover: | CJ ALUMINIUM HEAVY |
|
| | Type | Description | Class CD | Sub Class CD | Year Built | Area |
| | BAS | BASE/MAIN FLOOR | 4 | 0 | 2011 | 780.0 |
| | BAW | BALCONY WOOD RAIL | 4 | 0 | 2011 | 62.0 |
| | OCP | OPEN CARPORT | 4 | 0 | 2011 | 408.0 |
| | BIG | BUILT IN GARAGE | 4 | 0 | 2011 | 832.0 |
| | UTY | STORAGE/UTILITY | 4 | 0 | 2011 | 52.0 |
Sketch
Property Image
Land
| 1 | 17 | AC (01.01-02.00) | 0.0000 | 0.00 | 0.00 | 0.00 | 1.00 | $370,000 | $0 |
Roll Value History
| 2026 | N/A | N/A | N/A | N/A | N/A |
| 2025 | $1,191,995 | $370,000 | $0 | $1,561,995 | $1,561,995 |
| 2024 | $1,202,015 | $360,000 | $0 | $1,562,015 | $1,562,015 |
| 2023 | $1,212,698 | $360,000 | $0 | $1,572,698 | $1,572,698 |
| 2022 | $1,106,572 | $280,000 | $0 | $1,386,572 | $1,386,572 |
| 2021 | $970,152 | $260,000 | $0 | $1,230,152 | $1,230,152 |
| 2020 | $946,424 | $230,000 | $0 | $1,176,424 | $1,176,424 |
| 2019 | $781,445 | $260,000 | $0 | $1,041,445 | $1,041,445 |
| 2018 | $783,539 | $230,000 | $0 | $1,013,539 | $1,013,539 |
| 2017 | $787,730 | $170,000 | $0 | $957,730 | $957,730 |
| 2016 | $671,072 | $150,000 | $0 | $821,072 | $821,072 |
| 2015 | $678,134 | $139,500 | $0 | $817,634 | $817,634 |
| 2014 | $617,902 | $139,500 | $0 | $757,402 | $757,402 |
| 2013 | $619,620 | $139,500 | $0 | $759,120 | $759,120 |
| 2012 | $612,353 | $139,500 | $0 | $751,853 | $751,853 |
| 2011 | $488,958 | $155,000 | $0 | $643,958 | $643,958 |
| 2010 | $0 | $90,000 | $0 | $90,000 | $90,000 |
| 2009 | $0 | $165,000 | $0 | $165,000 | $165,000 |
| 2008 | $0 | $71,986 | $0 | $71,986 | $71,986 |
| 2007 | $0 | $0 | $0 | $71,986 | $71,986 |
Deed and Sales History
| 1 | 03/22/2017 | WD | Warranty Deed | READ, JIM | BEZAIRE, STEPHEN P | | | $1,050,000.00 | 28613 | 4419683 |
| 2 | 07/16/2010 | WD | Warranty Deed | JONES, TREVOR R | READ, JIM | | | $168,500.00 | 1815 | 4277565 |
| 3 | 11/14/2008 | WD | Warranty Deed | FISHMAN, PAUL A | JONES, TREVOR R | | | $154,320.00 | 82970 | 4240179 |
| 4 | 01/01/1900 | OTHER | Other - Misc. Documents | Unknown | FISHMAN, PAUL A | | | $0.00 | 0 | 0 |
Payout Agreement
| No payout information available.. |