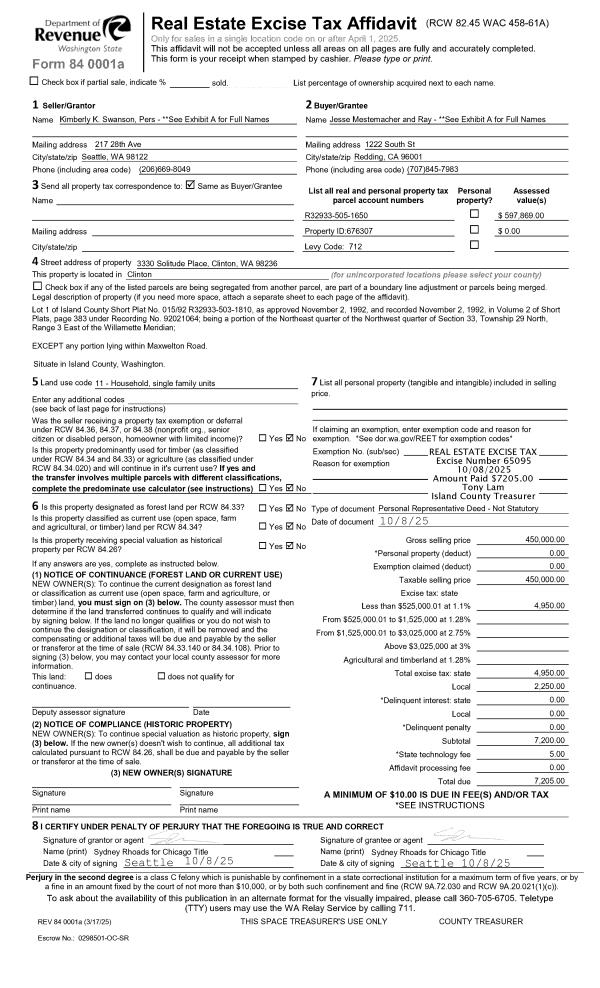
Property
Account |
| Property ID: | 808213 | Abbreviated Legal Description: | LOT A SP 288-03.13101.326-0460 V4 SP P76 AF#4122998 EX PT TO WA ST AF#4384311 |
| Geographic ID: | R13101-326-0570 | Agent Code: | |
| Type: | Real | | |
| Tax Area: | 312 - APPRAISER-Cpvl Schl Dist, outside Cpvl, improved, greater than 1 acre | Land Use Code | 11 |
| Open Space: | N | DFL | N |
| Historic Property: | N | Remodel Property: | N |
| Multi-Family Redevelopment: | N | | |
| Township: | 31 | Section: | 01 |
| Range: | R1 |
Location |
| Address: | 375 SAFARI ST COUPEVILLE, WA 98239 | Mapsco: | |
| Neighborhood: | Cycle 2 | Map ID: | 19 |
| Neighborhood CD: | 2 |
Owner |
| Name: | HARRIS, MICHAEL | Owner ID: | 302530 |
| Mailing Address: | KATHERINE MARY-MARGARET BASKIN 375 SAFARI ST COUPEVILLE, WA 98239 | % Ownership: | 100.0000000000% |
| | | Exemptions: | |
Taxes and Assessment Details
Values
| (+) Improvement Homesite Value: | + | $0 | |
| (+) Improvement Non-Homesite Value: | + | $184,124 | |
| (+) Land Homesite Value: | + | $0 | |
| (+) Land Non-Homesite Value: | + | $304,495 | |
| (+) Curr Use (HS): | + | $0 | $0 |
| (+) Curr Use (NHS): | + | $0 | $0 |
| | | -------------------------- | |
| (=) Market Value: | = | $488,619 | |
| (–) Productivity Loss: | – | $0 | |
| | | -------------------------- | |
| (=) Subtotal: | = | $488,619 | |
| (+) Senior Appraised Value: | + | $0 | |
| (+) Non-Senior Appraised Value: | + | $488,619 | |
| | | -------------------------- | |
| (=) Total Appraised Value: | = | $488,619 | |
| (–) Senior Exemption Loss: | – | $0 | |
| (–) Exemption Loss: | – | $0 | |
| | | -------------------------- | |
| (=) Taxable Value: | = | $488,619 | |
Taxing Jurisdiction
| Owner: | HARRIS, MICHAEL | | |
| % Ownership: | 100.0000000000% | | |
| Total Value: | $488,619 | | |
| Tax Area: | 312 - APPRAISER-Cpvl Schl Dist, outside Cpvl, improved, greater than 1 acre |
| CF | Conservation Futures | 0.0316035091 | $488,619 | $488,619 | $15.44 | | |
| CEM2 | Cemetery #2 | 0.0095056933 | $488,619 | $488,619 | $4.64 | | |
| FIRE5 | Fire & Rescue Dist #5 C Whidbey GEN | 1.2008080668 | $488,619 | $488,619 | $586.74 | | |
| FIRE5BOND | Fire & Rescue Dist #5 C Whidbey BOND | 0.1400090713 | $488,619 | $488,619 | $68.41 | | |
| HOBOND | Hospital BOND | 0.1910887512 | $488,619 | $488,619 | $93.37 | | |
| HOGEN | Hospital GEN | 0.3902502903 | $488,619 | $488,619 | $190.68 | | |
| CE | County Current Expense | 0.3708482477 | $488,619 | $488,619 | $181.20 | | |
| CR | County Roads | 0.4584763726 | $488,619 | $488,619 | $224.02 | | |
| ISLANDEMS | Hospital GEN (EMS) | 0.5000000000 | $488,619 | $488,619 | $244.31 | | |
| LIB | Library Sno-Isle GEN | 0.3153421757 | $488,619 | $488,619 | $154.08 | | |
| LIBCAP | Library Sno-Isle BOND (Cap Fac Imp Area) | 0.0543427938 | $488,619 | $488,619 | $26.55 | | |
| POCOUP | Port of Coupeville GEN | 0.1093371703 | $488,619 | $488,619 | $53.42 | | |
| POCOUPIDD | Port of Coupeville IDD | 0.3409740022 | $488,619 | $488,619 | $166.61 | | |
| COUPSDTECH | School 204 CP (TECH) | 0.7545480007 | $488,619 | $488,619 | $368.69 | | |
| SCH204MO | School 204 Enrichment | 0.6716186034 | $488,619 | $488,619 | $328.17 | | |
| ST | State School | 1.3035497053 | $488,619 | $488,619 | $636.94 | | |
| ST2 | State School Part 2 | 0.8169543533 | $488,619 | $488,619 | $399.18 | | |
| | Total Tax Rate: | 7.6592568070 | | | | | |
| | | | | Taxes w/Current Exemptions: | $3,742.45 | | |
| | | | | Taxes w/o Exemptions: | $3,742.45 | | |
Improvement / Building
| Improvement #1: | RESIDENTIAL | State Code: | Y | 1204.0 sqft | Value: | $184,124 |
| Bathrooms: | 2 | Bedrooms: | 3 | | Ceiling: | DRYWALL PAINTED | Exterior Wall/Cover: | CEMENT FIBER | | Floor Covering: | VINYL 100% | Floor Structure: | WOOD W/SUBFLOOR | | Foundation: | CONCRETE | Heating: | FHA GAS | | Interior Finish: | DRYWALL PAINT | Plumbing Fixture Cnt: | 9 | | Roof Slope: | 5" IN 12" | Roof Structure/Cover: | BEAM ASPHALT |
|
| | Type | Description | Class CD | Sub Class CD | Year Built | Area |
| | BAS | BASE/MAIN FLOOR | 3 | 0 | 1984 | 1204.0 |
| | AGR | ATTACHED GARAGE | 3 | 0 | 1984 | 308.0 |
Sketch
Property Image
Land
| 1 | HS | HOMESITE | 1.0000 | 43560.00 | 0.00 | 0.00 | 1.00 | $220,000 | $0 |
| 2 | 91 | UNDEVELOPED LAND-METES AND BOUNDS | 1.3700 | 59677.20 | 0.00 | 0.00 | 1.00 | $84,495 | $0 |
Roll Value History
| 2026 | N/A | N/A | N/A | N/A | N/A |
| 2025 | $184,124 | $304,495 | $0 | $488,619 | $488,619 |
| 2024 | $178,955 | $280,000 | $0 | $458,955 | $458,955 |
| 2023 | $181,740 | $270,000 | $0 | $451,740 | $451,740 |
| 2022 | $167,086 | $250,000 | $0 | $417,086 | $417,086 |
| 2021 | $147,483 | $150,000 | $0 | $297,483 | $297,483 |
| 2020 | $143,940 | $150,000 | $0 | $293,940 | $293,940 |
| 2019 | $101,757 | $180,000 | $0 | $281,757 | $281,757 |
| 2018 | $106,372 | $160,000 | $0 | $266,372 | $266,372 |
| 2017 | $100,294 | $130,000 | $0 | $230,294 | $230,294 |
| 2016 | $101,726 | $100,000 | $0 | $201,726 | $201,726 |
| 2015 | $103,159 | $54,825 | $0 | $157,984 | $157,984 |
| 2014 | $104,592 | $54,825 | $0 | $159,417 | $159,417 |
| 2013 | $106,024 | $54,825 | $0 | $160,849 | $160,849 |
| 2012 | $109,015 | $54,825 | $0 | $163,840 | $163,840 |
| 2011 | $110,448 | $64,500 | $0 | $174,948 | $174,948 |
| 2010 | $118,463 | $64,500 | $0 | $182,963 | $182,963 |
| 2009 | $123,682 | $60,000 | $0 | $183,682 | $183,682 |
| 2008 | $125,293 | $94,400 | $0 | $219,693 | $219,693 |
| 2007 | $0 | $0 | $0 | $200,684 | $200,684 |
Deed and Sales History
| 1 | 11/30/2021 | WD | Warranty Deed | MATLOCK, MELINDA | HARRIS, MICHAEL | | | $443,000.00 | 51530 | 4536932 |
| 2 | 03/12/2020 | QCD | Quit Claim Deed | MATLOCK, JOSHUA | MATLOCK, MELINDA | | | $0.00 | 47340 | 4513486 |
| 3 | 03/29/2016 | WD | Warranty Deed | ADAM, ANDREW J | MATLOCK, JOSHUA | | | $204,000.00 | 23750 | 4396817 |
| 4 | 07/21/2015 | WD | Warranty Deed | MATLOCK, JOSHUA | | | | | 20980 | 4384311 |
| 5 | 09/02/2011 | WD | Warranty Deed | OBLER TRUSTEE, PAUL | ADAM, ANDREW J | | | $175,000.00 | 5456 | 4300737 |
| 6 | 01/14/2005 | WD | Warranty Deed | SANDERS, BETTY BROWN | OBLER, TRUSTEE OF THE PAUL OBL | | | $160,000.00 | 50246 | 4123684 |
| 7 | 01/13/2005 | TRUSTEED | Trustee's Deed | BROWN TRUSTEE, H PATRICIA | SANDERS, BETTY BROWN | | | $0.00 | 50202 | 4123485 |
| 8 | 01/01/1900 | OTHER | Other - Misc. Documents | Unknown | BROWN TRUSTEE, H PATRICIA | | | $0.00 | 0 | 0 |
Payout Agreement
| No payout information available.. |