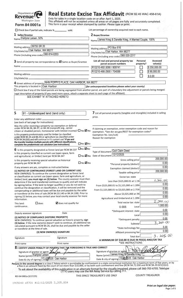
Property
Account |
| Property ID: | 808235 | Abbreviated Legal Description: | MADRONA BCH 2ND LOT 48 |
| Geographic ID: | S7440-02-00048-0 | Agent Code: | |
| Type: | Real | | |
| Tax Area: | 510 - APPRAISER-Stan/Cam Schl Dist, improved & 1 acre or less | Land Use Code | 11 |
| Open Space: | N | DFL | N |
| Historic Property: | N | Remodel Property: | N |
| Multi-Family Redevelopment: | N | | |
| Township: | | Section: | |
| Range: | |
Location |
| Address: | 234 MAPLE ST CAMANO ISLAND, WA 98282 | Mapsco: | |
| Neighborhood: | North Camano | Map ID: | 574 |
| Neighborhood CD: | 06-C |
Owner |
| Name: | FACHOLAS, ALEJANDRO ENRIQUE | Owner ID: | 311945 |
| Mailing Address: | JAMIE ANITA FACHOLAS 234 MAPLE ST CAMANO ISLAND, WA 98282 | % Ownership: | 100.0000000000% |
| | | Exemptions: | |
Taxes and Assessment Details
Values
| (+) Improvement Homesite Value: | + | $0 | |
| (+) Improvement Non-Homesite Value: | + | $332,644 | |
| (+) Land Homesite Value: | + | $0 | |
| (+) Land Non-Homesite Value: | + | $350,000 | |
| (+) Curr Use (HS): | + | $0 | $0 |
| (+) Curr Use (NHS): | + | $0 | $0 |
| | | -------------------------- | |
| (=) Market Value: | = | $682,644 | |
| (–) Productivity Loss: | – | $0 | |
| | | -------------------------- | |
| (=) Subtotal: | = | $682,644 | |
| (+) Senior Appraised Value: | + | $0 | |
| (+) Non-Senior Appraised Value: | + | $682,644 | |
| | | -------------------------- | |
| (=) Total Appraised Value: | = | $682,644 | |
| (–) Senior Exemption Loss: | – | $0 | |
| (–) Exemption Loss: | – | $0 | |
| | | -------------------------- | |
| (=) Taxable Value: | = | $682,644 | |
Taxing Jurisdiction
| Owner: | FACHOLAS, ALEJANDRO ENRIQUE | | |
| % Ownership: | 100.0000000000% | | |
| Total Value: | $682,644 | | |
| Tax Area: | 510 - APPRAISER-Stan/Cam Schl Dist, improved & 1 acre or less |
| CF | Conservation Futures | 0.0316035091 | $682,644 | $682,644 | $21.57 | | |
| EMS1 | Fire & Rescue Dist #1 Camano GEN (EMS) | 0.3677864386 | $682,644 | $682,644 | $251.07 | | |
| FIRE1 | Fire & Rescue Dist #1 Camano GEN | 1.2502910536 | $682,644 | $682,644 | $853.50 | | |
| FIRE1BOND | Fire & Rescue Dist #1 Camano BOND | 0.1570001679 | $682,644 | $682,644 | $107.18 | | |
| CE | County Current Expense | 0.3708482477 | $682,644 | $682,644 | $253.16 | | |
| CR | County Roads | 0.4584763726 | $682,644 | $682,644 | $312.98 | | |
| LCIB | Library Sno-Isle BOND (Camano Island) | 0.0396325772 | $682,644 | $682,644 | $27.05 | | |
| LIB | Library Sno-Isle GEN | 0.3153421757 | $682,644 | $682,644 | $215.27 | | |
| SCH205_401 | School 205-401 Enrichment | 1.2698420524 | $682,644 | $682,644 | $866.85 | | |
| SCH205BOND | School 205-401 BOND | 0.9396497583 | $682,644 | $682,644 | $641.45 | | |
| ST | State School | 1.3035497053 | $682,644 | $682,644 | $889.86 | | |
| ST2 | State School Part 2 | 0.8169543533 | $682,644 | $682,644 | $557.69 | | |
| | Total Tax Rate: | 7.3209764117 | | | | | |
| | | | | Taxes w/Current Exemptions: | $4,997.63 | | |
| | | | | Taxes w/o Exemptions: | $4,997.63 | | |
Improvement / Building
| Improvement #1: | RESIDENTIAL | State Code: | Y | 1114.0 sqft | Value: | $332,644 |
| Bathrooms: | 2 | Bedrooms: | 2 | | Ceiling: | DRYWALL PAINTED | Exterior Wall/Cover: | CEMENT FIBER | | Floor Covering: | HARDWOOD/CARP 60-40 | Floor Structure: | WOOD W/SUBFLOOR | | Foundation: | CONCRETE | Heating: | WALL HEAT ELECTRIC | | Interior Finish: | DRYWALL PAINT | Plumbing Fixture Cnt: | 10 | | Roof Slope: | 8" IN 12" | Roof Structure/Cover: | CJ ASPHALT |
|
| | Type | Description | Class CD | Sub Class CD | Year Built | Area |
| | BAS | BASE/MAIN FLOOR | 4 | 0 | 2014 | 640.0 |
| | UPS | UPPER STORY | 4 | 0 | 2014 | 474.0 |
| | DGR | DETACHED GARAGE | 4 | 0 | 2014 | 308.0 |
| | OWP | OPEN WOOD PORCH W/STEPS | 4 | 0 | 2014 | 162.0 |
| | OWP | OPEN WOOD PORCH W/STEPS | 4 | 0 | 2014 | 150.0 |
| | OWP | OPEN WOOD PORCH W/STEPS | 4 | 0 | 2014 | 56.0 |
| | OWR | OPEN WOOD PORCH W/STEPS/ROOF | 4 | 0 | 2014 | 121.0 |
| | OWP | OPEN WOOD PORCH W/STEPS | 4 | 0 | 2014 | 222.0 |
Sketch
Property Image
Land
| 1 | 12 | SQ (00000-06000) | 0.0000 | 5148.79 | 0.00 | 0.00 | 1.00 | $350,000 | $0 |
Roll Value History
| 2026 | N/A | N/A | N/A | N/A | N/A |
| 2025 | $332,644 | $350,000 | $0 | $682,644 | $682,644 |
| 2024 | $335,349 | $260,000 | $0 | $595,349 | $595,349 |
| 2023 | $338,052 | $260,000 | $0 | $598,052 | $598,052 |
| 2022 | $261,980 | $240,000 | $0 | $501,980 | $501,980 |
| 2021 | $229,678 | $160,000 | $0 | $389,678 | $389,678 |
| 2020 | $221,954 | $160,000 | $0 | $381,954 | $381,954 |
| 2019 | $156,894 | $170,000 | $0 | $326,894 | $326,894 |
| 2018 | $157,307 | $140,000 | $0 | $297,307 | $297,307 |
| 2017 | $158,129 | $120,000 | $0 | $278,129 | $278,129 |
| 2016 | $147,517 | $90,000 | $0 | $237,517 | $237,517 |
| 2015 | $149,037 | $66,400 | $0 | $215,437 | $215,437 |
| 2014 | $87,855 | $53,120 | $0 | $140,975 | $140,975 |
| 2013 | $0 | $53,120 | $0 | $53,120 | $53,120 |
| 2012 | $0 | $53,120 | $0 | $53,120 | $0 |
| 2011 | $0 | $53,120 | $0 | $53,120 | $0 |
| 2010 | $0 | $53,120 | $0 | $53,120 | $0 |
| 2009 | $0 | $50,000 | $0 | $50,000 | $0 |
| 2008 | $0 | $80,000 | $0 | $80,000 | $0 |
| 2007 | $0 | $0 | $0 | $4,000 | $0 |
Deed and Sales History
| 1 | 04/05/2024 | WD | Warranty Deed | SINGH-GAMA, JULIO | FACHOLAS, ALEJANDRO ENRIQUE | | | $650,000.00 | 59624 | 4571116 |
| 2 | 02/27/2023 | WD | Warranty Deed | ADAIR, HEIDI | SINGH-GAMA, JULIO | | | $599,000.00 | 55997 | 4557288 |
| 3 | 01/19/2017 | WD | Warranty Deed | LARSON, LANCE L | ADAIR, HEIDI | | | $289,000.00 | 27848 | 4415826 |
| 4 | 06/03/2014 | CCOMPROP | Create Community Property | MURPHY, KRISTIN L | LARSON, LANCE L | | | $0.00 | 14644 | 4356865 |
| 5 | 11/05/2013 | ESTSEPPROP | Establish Separate Property | MURPHY, KRISTIN L | MURPHY, KRISTIN L | | | $0.00 | 13364 | 4350977 |
| 6 | 11/05/2013 | WD | Warranty Deed | ISLAND COUNTY FIRE DISTRICT #1 | MURPHY, KRISTIN L | | | $38,000.00 | 13363 | 4350976 |
| 7 | 10/31/2007 | SEG | DNU - Segregation | Unknown | ISLAND COUNTY FIRE DIST ONE, | | | $0.00 | 80419 | 0 |
Payout Agreement
| No payout information available.. |