Property
Account |
| Property ID: | 808250 | Abbreviated Legal Description: | IN SE NE: BG PT INT E LN CO RD W/SLN OF N/2 N/2 SE NE NLY 70' ELY 120' SLY 70' TO SD SLN N/2 N/2 SE NE WLY 120' TPB TGW: BG INT ELN CO RD & NLN OF N165' OF SE NE SLY ALG ELN RD 72.5' ELY 120' NLY 72.5' WLY 120' TPB TGW: BG INT ELN CO RD W/SLN N/2 N/2 SE |
| Geographic ID: | R22922-362-4050 | Agent Code: | |
| Type: | Real | | |
| Tax Area: | 710 - APPRAISER-S Whid Schl Dist, outside Langley, improved & 1 acre or less | Land Use Code | 11 |
| Open Space: | N | DFL | N |
| Historic Property: | N | Remodel Property: | N |
| Multi-Family Redevelopment: | N | | |
| Township: | 29 | Section: | 22 |
| Range: | R2 |
Location |
| Address: | | Mapsco: | |
| Neighborhood: | Cycle 3 | Map ID: | 337 |
| Neighborhood CD: | 3 |
Owner |
| Name: | DOW, ADELE E | Owner ID: | 289233 |
| Mailing Address: | 6123 WAHL RD FREELAND, WA 98249 | % Ownership: | 100.0000000000% |
| | | Exemptions: | |
Taxes and Assessment Details
Values
| (+) Improvement Homesite Value: | + | $0 | |
| (+) Improvement Non-Homesite Value: | + | $123,124 | |
| (+) Land Homesite Value: | + | $0 | |
| (+) Land Non-Homesite Value: | + | $240,000 | |
| (+) Curr Use (HS): | + | $0 | $0 |
| (+) Curr Use (NHS): | + | $0 | $0 |
| | | -------------------------- | |
| (=) Market Value: | = | $363,124 | |
| (–) Productivity Loss: | – | $0 | |
| | | -------------------------- | |
| (=) Subtotal: | = | $363,124 | |
| (+) Senior Appraised Value: | + | $0 | |
| (+) Non-Senior Appraised Value: | + | $363,124 | |
| | | -------------------------- | |
| (=) Total Appraised Value: | = | $363,124 | |
| (–) Senior Exemption Loss: | – | $0 | |
| (–) Exemption Loss: | – | $0 | |
| | | -------------------------- | |
| (=) Taxable Value: | = | $363,124 | |
Taxing Jurisdiction
| Owner: | DOW, ADELE E | | |
| % Ownership: | 100.0000000000% | | |
| Total Value: | $363,124 | | |
| Tax Area: | 710 - APPRAISER-S Whid Schl Dist, outside Langley, improved & 1 acre or less |
| CF | Conservation Futures | 0.0316035091 | $363,124 | $363,124 | $11.48 | | |
| FIRE3 | Fire & Rescue Dist #3 S Whidbey GEN | 1.2004855531 | $363,124 | $363,124 | $435.93 | | |
| HOBOND | Hospital BOND | 0.1910887512 | $363,124 | $363,124 | $69.39 | | |
| HOGEN | Hospital GEN | 0.3902502903 | $363,124 | $363,124 | $141.71 | | |
| CE | County Current Expense | 0.3708482477 | $363,124 | $363,124 | $134.66 | | |
| CR | County Roads | 0.4584763726 | $363,124 | $363,124 | $166.48 | | |
| ISLANDEMS | Hospital GEN (EMS) | 0.5000000000 | $363,124 | $363,124 | $181.56 | | |
| LIB | Library Sno-Isle GEN | 0.3153421757 | $363,124 | $363,124 | $114.51 | | |
| PORTWHID | Port of S Whidbey GEN | 0.1094540357 | $363,124 | $363,124 | $39.75 | | |
| SCH206BOND | School 206 BOND | 0.3161759235 | $363,124 | $363,124 | $114.81 | | |
| SCH206MO | School 206 Enrichment | 0.4547169547 | $363,124 | $363,124 | $165.12 | | |
| ST | State School | 1.3035497053 | $363,124 | $363,124 | $473.35 | | |
| ST2 | State School Part 2 | 0.8169543533 | $363,124 | $363,124 | $296.66 | | |
| SWHIDPRBD | P & R S Whidbey BOND | 0.0152817568 | $363,124 | $363,124 | $5.55 | | |
| SWHIDPRBD2 | P & R S Whidbey BOND2 | 0.0138911264 | $363,124 | $363,124 | $5.04 | | |
| SWHIDPRMT | P & R S Whidbey GEN | 0.2053334452 | $363,124 | $363,124 | $74.56 | | |
| | Total Tax Rate: | 6.6934522006 | | | | | |
| | | | | Taxes w/Current Exemptions: | $2,430.56 | | |
| | | | | Taxes w/o Exemptions: | $2,430.56 | | |
Improvement / Building
| Improvement #1: | RESIDENTIAL | State Code: | Y | 720.0 sqft | Value: | $123,124 |
| Bathrooms: | 1 | Bedrooms: | 2 | | Ceiling: | ACOUSTIC FURRED | Exterior Wall/Cover: | PLY/HARDBOARD T-111 | | Floor Covering: | CARPET 100% | Floor Structure: | WOOD W/SUBFLOOR | | Foundation: | CONCRETE BLOCKS | Heating: | BASEBOARD ELECTRIC | | Interior Finish: | DRYWALL PAINT | Plumbing Fixture Cnt: | 6 | | Roof Slope: | 5" IN 12" | Roof Structure/Cover: | CJ ASPHALT |
|
| | Type | Description | Class CD | Sub Class CD | Year Built | Area |
| | BAS | BASE/MAIN FLOOR | 3 | 0 | 1965 | 720.0 |
| | OP1 | OPEN PORCH SLAB | 3 | 0 | 1965 | 43.0 |
| | DGR | DETACHED GARAGE | 3 | 0 | 1965 | 622.0 |
| | OWP | OPEN WOOD PORCH W/STEPS | 3 | 0 | 1965 | 140.0 |
| | oOBD | Out Buildings | 3 | 0 | 1965 | 0.0 |
Sketch
Property Image
Land
| 1 | 16 | AC (00.51-01.00) | 0.5800 | 25264.80 | 0.00 | 0.00 | 1.00 | $240,000 | $0 |
Roll Value History
| 2026 | N/A | N/A | N/A | N/A | N/A |
| 2025 | $123,124 | $240,000 | $0 | $363,124 | $363,124 |
| 2024 | $127,371 | $220,000 | $0 | $347,371 | $347,371 |
| 2023 | $129,442 | $240,000 | $0 | $369,442 | $369,442 |
| 2022 | $120,505 | $240,000 | $0 | $360,505 | $205,893 |
| 2021 | $108,374 | $160,000 | $0 | $268,374 | $205,893 |
| 2020 | $106,203 | $150,000 | $0 | $256,203 | $205,893 |
| 2019 | $75,624 | $170,000 | $0 | $245,624 | $205,893 |
| 2018 | $75,893 | $130,000 | $0 | $205,893 | $205,893 |
| 2017 | $76,432 | $110,000 | $0 | $186,432 | $64,037 |
| 2016 | $77,510 | $100,000 | $0 | $177,510 | $64,037 |
| 2015 | $78,588 | $80,000 | $0 | $158,588 | $63,435 |
| 2014 | $79,666 | $59,500 | $0 | $139,166 | $55,666 |
| 2013 | $81,411 | $59,500 | $0 | $140,911 | $56,364 |
| 2012 | $82,514 | $59,500 | $0 | $142,014 | $56,806 |
| 2011 | $83,616 | $70,000 | $0 | $153,616 | $61,446 |
| 2010 | $88,807 | $70,000 | $0 | $158,807 | $63,523 |
| 2009 | $92,232 | $75,000 | $0 | $167,232 | $64,037 |
| 2008 | $93,662 | $85,000 | $0 | $178,662 | $64,037 |
| 2007 | $0 | $0 | $0 | $190,189 | $64,037 |
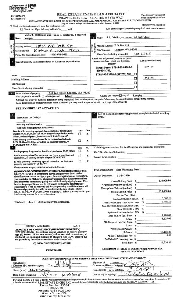
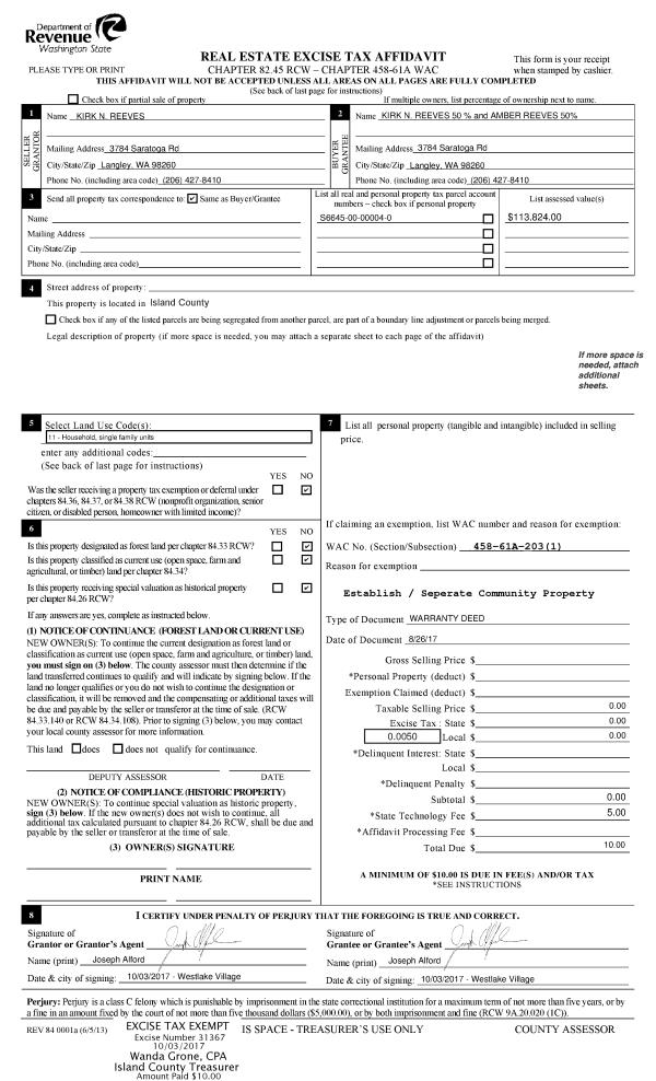
Deed and Sales History
| 1 | 04/12/2019 | TOD | Transfer On Death Deed | DOW, JACK | DOW, ADELE E | | | $0.00 | 33113 | 4395929 |
| 2 | 11/06/2007 | BLA | DNU - Boundary Line Adjustment | DOW, JACK | DOW, JACK | | | $0.00 | 80440 | 4211260 |
| 3 | 05/30/2004 | WD | Warranty Deed | Unknown | DOW, JACK | | | $145,900.00 | 42348 | 4102330 |
Payout Agreement
| No payout information available.. |