Property
Account |
| Property ID: | 808262 | Abbreviated Legal Description: | 9.4500 Acres ins Section 02s Township 28s Range R3s LOT B BLA 195-21 AF#4536453;s |
| Geographic ID: | R32802-180-4860 | Agent Code: | |
| Type: | Real | | |
| Tax Area: | 719 - APPRAISER-S Whid Schl Dist, outside Langley, vacant & 50 acres or less | Land Use Code | 88 |
| Open Space: | N | DFL | Y |
| Historic Property: | N | Remodel Property: | N |
| Multi-Family Redevelopment: | N | | |
| Township: | 28 | Section: | 02 |
| Range: | R3 |
Location |
| Address: | 7484 ROSEBERRY ST CLINTON, WA 98236 | Mapsco: | |
| Neighborhood: | Cycle 4 | Map ID: | 680 |
| Neighborhood CD: | 4 |
Owner |
| Name: | BLADES FAMILY TRUST | Owner ID: | 312331 |
| Mailing Address: | JACK BLADES TTEE MOLLIE BLADES TTEE 8212 OLYMPIC VIEW LN CLINTON, WA 98236 | % Ownership: | 100.0000000000% |
| | | Exemptions: | |
Taxes and Assessment Details
Values
| (+) Improvement Homesite Value: | + | $0 | |
| (+) Improvement Non-Homesite Value: | + | $0 | |
| (+) Land Homesite Value: | + | $0 | |
| (+) Land Non-Homesite Value: | + | $0 | |
| (+) Curr Use (HS): | + | $0 | $0 |
| (+) Curr Use (NHS): | + | $240,000 | $1,408 |
| | | -------------------------- | |
| (=) Market Value: | = | $240,000 | |
| (–) Productivity Loss: | – | $238,592 | |
| | | -------------------------- | |
| (=) Subtotal: | = | $1,408 | |
| (+) Senior Appraised Value: | + | $0 | |
| (+) Non-Senior Appraised Value: | + | $1,408 | |
| | | -------------------------- | |
| (=) Total Appraised Value: | = | $1,408 | |
| (–) Senior Exemption Loss: | – | $0 | |
| (–) Exemption Loss: | – | $0 | |
| | | -------------------------- | |
| (=) Taxable Value: | = | $1,408 | |
Taxing Jurisdiction
| Owner: | BLADES FAMILY TRUST | | |
| % Ownership: | 100.0000000000% | | |
| Total Value: | $240,000 | | |
| Tax Area: | 719 - APPRAISER-S Whid Schl Dist, outside Langley, vacant & 50 acres or less |
| CF | Conservation Futures | 0.0316035091 | $1,408 | $1,408 | $0.04 | | |
| HOBOND | Hospital BOND | 0.1910887512 | $1,408 | $1,408 | $0.27 | | |
| HOGEN | Hospital GEN | 0.3902502903 | $1,408 | $1,408 | $0.55 | | |
| CE | County Current Expense | 0.3708482477 | $1,408 | $1,408 | $0.52 | | |
| CR | County Roads | 0.4584763726 | $1,408 | $1,408 | $0.65 | | |
| ISLANDEMS | Hospital GEN (EMS) | 0.5000000000 | $1,408 | $1,408 | $0.70 | | |
| LIB | Library Sno-Isle GEN | 0.3153421757 | $1,408 | $1,408 | $0.44 | | |
| PORTWHID | Port of S Whidbey GEN | 0.1094540357 | $1,408 | $1,408 | $0.15 | | |
| SCH206BOND | School 206 BOND | 0.3161759235 | $1,408 | $1,408 | $0.45 | | |
| SCH206MO | School 206 Enrichment | 0.4547169547 | $1,408 | $1,408 | $0.64 | | |
| ST | State School | 1.3035497053 | $1,408 | $1,408 | $1.84 | | |
| ST2 | State School Part 2 | 0.8169543533 | $1,408 | $1,408 | $1.15 | | |
| SWHIDPRBD | P & R S Whidbey BOND | 0.0152817568 | $1,408 | $1,408 | $0.02 | | |
| SWHIDPRBD2 | P & R S Whidbey BOND2 | 0.0138911264 | $1,408 | $1,408 | $0.02 | | |
| SWHIDPRMT | P & R S Whidbey GEN | 0.2053334452 | $1,408 | $1,408 | $0.29 | | |
| | Total Tax Rate: | 5.4929666475 | | | | | |
| | | | | Taxes w/Current Exemptions: | $7.73 | | |
| | | | | Taxes w/o Exemptions: | $7.73 | | |
Improvement / Building
Sketch
| No sketches available for this property. |
Property Image
Land
| 1 | 32 | AC (03.01-09.99) | 9.4500 | 411642.00 | 0.00 | 0.00 | 1.00 | $240,000 | $1,408 |
Roll Value History
| 2026 | N/A | N/A | N/A | N/A | N/A |
| 2025 | $0 | $240,000 | $1,408 | $1,408 | $1,408 |
| 2024 | $0 | $230,000 | $1,418 | $1,418 | $1,418 |
| 2023 | $0 | $200,000 | $1,361 | $1,361 | $1,361 |
| 2022 | $0 | $170,000 | $1,361 | $1,361 | $1,361 |
| 2021 | $0 | $170,000 | $2,236 | $2,236 | $2,236 |
| 2020 | $0 | $170,000 | $2,236 | $2,236 | $2,236 |
| 2019 | $0 | $210,000 | $2,159 | $2,159 | $2,159 |
| 2018 | $0 | $150,000 | $2,128 | $2,128 | $2,128 |
| 2017 | $0 | $165,000 | $2,128 | $2,128 | $2,128 |
| 2016 | $0 | $165,000 | $1,569 | $1,569 | $1,569 |
| 2015 | $0 | $165,000 | $1,569 | $1,569 | $1,569 |
| 2014 | $0 | $158,406 | $1,569 | $1,569 | $1,569 |
| 2013 | $0 | $158,406 | $1,569 | $1,569 | $1,569 |
| 2012 | $0 | $158,406 | $1,569 | $1,569 | $1,569 |
| 2011 | $0 | $186,360 | $1,569 | $1,569 | $1,569 |
| 2010 | $0 | $186,360 | $1,569 | $1,569 | $1,569 |
| 2009 | $0 | $232,950 | $1,569 | $1,569 | $1,569 |
| 2008 | $0 | $186,360 | $1,569 | $1,569 | $1,569 |
| 2007 | $0 | $0 | $0 | $1,650 | $1,650 |
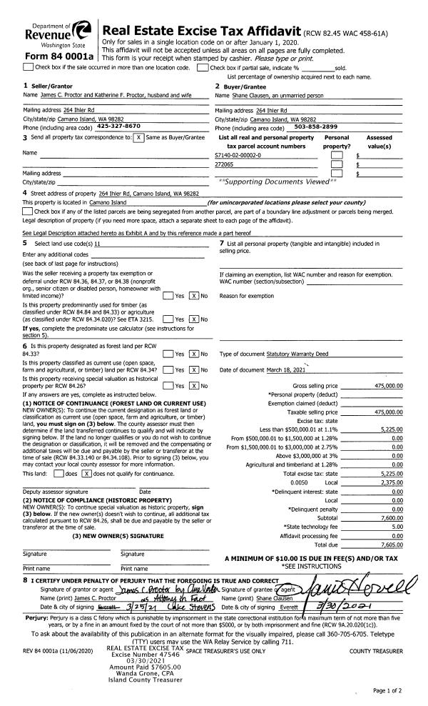
Deed and Sales History
| 1 | 05/09/2024 | WD | Warranty Deed | SERENITY COLLECTIVE LLC | BLADES FAMILY TRUST | | | $650,000.00 | 59936 | 4572280 |
|   | |
| 2 | 12/17/2020 | WD | Warranty Deed | MUENCHOW, ANN | SERENITY COLLECTIVE LLC | | | $200,000.00 | 46207 | 4505827 |
|   | |
| 3 | 11/13/2007 | SEG | DNU - Segregation | Unknown | MUENCHOW, ANN | | | $0.00 | 80452 | 0 |
Payout Agreement
| No payout information available.. |