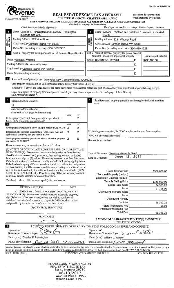
Property
Account |
| Property ID: | 808330 | Abbreviated Legal Description: | ROSE HILL PRD LOT 2 |
| Geographic ID: | S8517-00-00002-0 | Agent Code: | |
| Type: | Real | | |
| Tax Area: | 100 - APPRAISER-OH Schl Dist, in OH | Land Use Code | 11 |
| Open Space: | N | DFL | N |
| Historic Property: | N | Remodel Property: | N |
| Multi-Family Redevelopment: | N | | |
| Township: | | Section: | |
| Range: | |
Location |
| Address: | 45 NE MELROSE DR OAK HARBOR, WA 98277 | Mapsco: | |
| Neighborhood: | 6BcOH-melrose dr | Map ID: | 257 |
| Neighborhood CD: | 6BcOHmelro |
Owner |
| Name: | LEDFORD, KEVIN MICHEAL | Owner ID: | 300109 |
| Mailing Address: | 110 ROBERT'S RD WILLIAMSTON, SC 29697 | % Ownership: | 100.0000000000% |
| | | Exemptions: | |
Taxes and Assessment Details
Values
| (+) Improvement Homesite Value: | + | $0 | |
| (+) Improvement Non-Homesite Value: | + | $288,081 | |
| (+) Land Homesite Value: | + | $0 | |
| (+) Land Non-Homesite Value: | + | $130,000 | |
| (+) Curr Use (HS): | + | $0 | $0 |
| (+) Curr Use (NHS): | + | $0 | $0 |
| | | -------------------------- | |
| (=) Market Value: | = | $418,081 | |
| (–) Productivity Loss: | – | $0 | |
| | | -------------------------- | |
| (=) Subtotal: | = | $418,081 | |
| (+) Senior Appraised Value: | + | $0 | |
| (+) Non-Senior Appraised Value: | + | $418,081 | |
| | | -------------------------- | |
| (=) Total Appraised Value: | = | $418,081 | |
| (–) Senior Exemption Loss: | – | $0 | |
| (–) Exemption Loss: | – | $0 | |
| | | -------------------------- | |
| (=) Taxable Value: | = | $418,081 | |
Taxing Jurisdiction
| Owner: | LEDFORD, KEVIN MICHEAL | | |
| % Ownership: | 100.0000000000% | | |
| Total Value: | $418,081 | | |
| Tax Area: | 100 - APPRAISER-OH Schl Dist, in OH |
| CF | Conservation Futures | 0.0316035091 | $418,081 | $418,081 | $13.21 | | |
| CEM1 | Cemetery #1 | 0.0040320932 | $418,081 | $418,081 | $1.69 | | |
| COH | City of Oak Harbor | 2.3001546061 | $418,081 | $418,081 | $961.65 | | |
| OAKBOND | City of Oak Harbor BOND | 0.1926904192 | $418,081 | $418,081 | $80.56 | | |
| HOBOND | Hospital BOND | 0.1910887512 | $418,081 | $418,081 | $79.89 | | |
| HOGEN | Hospital GEN | 0.3902502903 | $418,081 | $418,081 | $163.16 | | |
| CE | County Current Expense | 0.3708482477 | $418,081 | $418,081 | $155.04 | | |
| ISLANDEMS | Hospital GEN (EMS) | 0.5000000000 | $418,081 | $418,081 | $209.04 | | |
| LIB | Library Sno-Isle GEN | 0.3153421757 | $418,081 | $418,081 | $131.84 | | |
| NWHIDPRMT | P & R N Whidbey GEN | 0.2004466701 | $418,081 | $418,081 | $83.80 | | |
| SCH201MO | School 201 Enrichment | 1.8559231640 | $418,081 | $418,081 | $775.93 | | |
| ST | State School | 1.3035497053 | $418,081 | $418,081 | $544.99 | | |
| ST2 | State School Part 2 | 0.8169543533 | $418,081 | $418,081 | $341.55 | | |
| | Total Tax Rate: | 8.4728839852 | | | | | |
| | | | | Taxes w/Current Exemptions: | $3,542.35 | | |
| | | | | Taxes w/o Exemptions: | $3,542.35 | | |
Improvement / Building
| Improvement #1: | RESIDENTIAL/COMMERCIAL | State Code: | Y | 1689.0 sqft | Value: | $288,081 |
| Bathrooms: | 2.5 | Bedrooms: | 3 | | Ceiling: | DRYWALL PAINTED | Cooling: | HEAT PUMP/CONV/V | | Exterior Wall/Cover: | CEMENT FIBER | Floor Covering: | CARPET/VINYL 80-20 | | Floor Structure: | WOOD W/SUBFLOOR | Foundation: | CONCRETE | | Interior Finish: | DRYWALL PAINT | Plumbing Fixture Cnt: | 11 | | Roof Slope: | 4" IN 12" | Roof Structure/Cover: | CJ ASPHALT |
|
| | Type | Description | Class CD | Sub Class CD | Year Built | Area |
| | BAS | BASE/MAIN FLOOR | 3 | 0 | 2014 | 747.0 |
| | OP4 | OPEN PORCH W/CEILING-ROOF | 3 | 0 | 2014 | 38.0 |
| | BIG | BUILT IN GARAGE | 3 | 0 | 2014 | 319.0 |
| | UPS | UPPER STORY | 3 | 0 | 2014 | 942.0 |
| | OP1 | OPEN PORCH SLAB | 3 | 0 | 2014 | 80.0 |
Sketch
Property Image
Land
| 1 | 12 | SQ (00000-06000) | 0.0400 | 1742.40 | 0.00 | 0.00 | 1.00 | $130,000 | $0 |
Roll Value History
| 2026 | N/A | N/A | N/A | N/A | N/A |
| 2025 | $288,081 | $130,000 | $0 | $418,081 | $418,081 |
| 2024 | $290,423 | $120,000 | $0 | $410,423 | $410,423 |
| 2023 | $292,765 | $120,000 | $0 | $412,765 | $412,765 |
| 2022 | $258,750 | $120,000 | $0 | $378,750 | $378,750 |
| 2021 | $226,840 | $100,000 | $0 | $326,840 | $326,840 |
| 2020 | $220,007 | $80,000 | $0 | $300,007 | $300,007 |
| 2019 | $160,615 | $105,000 | $0 | $265,615 | $265,615 |
| 2018 | $161,036 | $85,000 | $0 | $246,036 | $246,036 |
| 2017 | $161,879 | $40,000 | $0 | $201,879 | $201,879 |
| 2016 | $166,418 | $40,000 | $0 | $206,418 | $206,418 |
| 2015 | $168,135 | $40,000 | $0 | $208,135 | $208,135 |
| 2014 | $0 | $40,000 | $0 | $40,000 | $40,000 |
| 2013 | $0 | $40,000 | $0 | $40,000 | $40,000 |
| 2012 | $0 | $40,000 | $0 | $40,000 | $40,000 |
| 2011 | $0 | $40,000 | $0 | $40,000 | $40,000 |
| 2010 | $0 | $33,000 | $0 | $33,000 | $33,000 |
| 2009 | $0 | $40,000 | $0 | $40,000 | $40,000 |
| 2008 | $0 | $68,000 | $0 | $68,000 | $68,000 |
| 2007 | $0 | $0 | $0 | $15,125 | $15,125 |
Deed and Sales History
| 1 | 07/01/2021 | WD | Warranty Deed | CROMER, NAJMA L | LEDFORD, KEVIN MICHEAL | | | $429,000.00 | 49048 | 4523673 |
| 2 | 07/24/2017 | WD | Warranty Deed | BALESI, JACOB K | CROMER, NAJMA L | | | $262,500.00 | 30312 | 4426821 |
| 3 | 05/01/2015 | ESTSEPPROP | Establish Separate Property | BALESI, JACOB K | BALESI, JACOB K | | | $0.00 | 19436 | 4377816 |
| 4 | 05/01/2015 | WD | Warranty Deed | WALDRON CONSTRUCTION INC | BALESI, JACOB K | | | $205,620.00 | 19435 | 4377815 |
| 5 | 12/15/2006 | WD | Warranty Deed | CASA GRANDE APARTMENTS LLC, | WALDRON CONSTRUCTION INC, | | | $68,462.00 | 65248 | 4189611 |
| 6 | 01/01/1900 | OTHER | Other - Misc. Documents | Unknown | CASA GRANDE APARTMENTS LLC, | | | $0.00 | 0 | 0 |
Payout Agreement
| No payout information available.. |