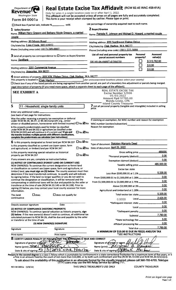
Property
Account |
| Property ID: | 808382 | Abbreviated Legal Description: | LOT 1 SP 78-05.33231.143-1700 V4 SP P189 & 190 AF# 4186589 |
| Geographic ID: | R33231-143-1590 | Agent Code: | |
| Type: | Real | | |
| Tax Area: | 592 - APPRAISER-Stan/Cam Schl Dist, Special Dist, improved, greater than 1 acre | Land Use Code | 11 |
| Open Space: | N | DFL | N |
| Historic Property: | N | Remodel Property: | N |
| Multi-Family Redevelopment: | N | | |
| Township: | 32 | Section: | 31 |
| Range: | R3 |
Location |
| Address: | | Mapsco: | |
| Neighborhood: | 53cRR-necamano rd | Map ID: | 992 |
| Neighborhood CD: | 53cRRnecam |
Owner |
| Name: | GRAY SISTERS LLC | Owner ID: | 199290 |
| Mailing Address: | 122 N EAST CAMANO DR CAMANO ISLAND, WA 98282-5516 | % Ownership: | 100.0000000000% |
| | | Exemptions: | |
Taxes and Assessment Details
Values
| (+) Improvement Homesite Value: | + | $0 | |
| (+) Improvement Non-Homesite Value: | + | $4,000 | |
| (+) Land Homesite Value: | + | $0 | |
| (+) Land Non-Homesite Value: | + | $140,000 | |
| (+) Curr Use (HS): | + | $0 | $0 |
| (+) Curr Use (NHS): | + | $0 | $0 |
| | | -------------------------- | |
| (=) Market Value: | = | $144,000 | |
| (–) Productivity Loss: | – | $0 | |
| | | -------------------------- | |
| (=) Subtotal: | = | $144,000 | |
| (+) Senior Appraised Value: | + | $0 | |
| (+) Non-Senior Appraised Value: | + | $144,000 | |
| | | -------------------------- | |
| (=) Total Appraised Value: | = | $144,000 | |
| (–) Senior Exemption Loss: | – | $0 | |
| (–) Exemption Loss: | – | $0 | |
| | | -------------------------- | |
| (=) Taxable Value: | = | $144,000 | |
Taxing Jurisdiction
| Owner: | GRAY SISTERS LLC | | |
| % Ownership: | 100.0000000000% | | |
| Total Value: | $144,000 | | |
| Tax Area: | 592 - APPRAISER-Stan/Cam Schl Dist, Special Dist, improved, greater than 1 acre |
| CF | Conservation Futures | 0.0316035091 | $144,000 | $144,000 | $4.55 | | |
| EMS1 | Fire & Rescue Dist #1 Camano GEN (EMS) | 0.3677864386 | $144,000 | $144,000 | $52.96 | | |
| FIRE1 | Fire & Rescue Dist #1 Camano GEN | 1.2502910536 | $144,000 | $144,000 | $180.04 | | |
| FIRE1BOND | Fire & Rescue Dist #1 Camano BOND | 0.1570001679 | $144,000 | $144,000 | $22.61 | | |
| CE | County Current Expense | 0.3708482477 | $144,000 | $144,000 | $53.40 | | |
| CR | County Roads | 0.4584763726 | $144,000 | $144,000 | $66.02 | | |
| LCIB | Library Sno-Isle BOND (Camano Island) | 0.0396325772 | $144,000 | $144,000 | $5.71 | | |
| LIB | Library Sno-Isle GEN | 0.3153421757 | $144,000 | $144,000 | $45.41 | | |
| SCH205_401 | School 205-401 Enrichment | 1.2698420524 | $144,000 | $144,000 | $182.86 | | |
| SCH205BOND | School 205-401 BOND | 0.9396497583 | $144,000 | $144,000 | $135.31 | | |
| ST | State School | 1.3035497053 | $144,000 | $144,000 | $187.71 | | |
| ST2 | State School Part 2 | 0.8169543533 | $144,000 | $144,000 | $117.64 | | |
| | Total Tax Rate: | 7.3209764117 | | | | | |
| | | | | Taxes w/Current Exemptions: | $1,054.22 | | |
| | | | | Taxes w/o Exemptions: | $1,054.22 | | |
Improvement / Building
| Improvement #1: | COMMERCIAL | State Code: | Y | 0.0 sqft | Value: | $4,000 |
Sketch
| No sketches available for this property. |
Property Image
Land
| 1 | 17 | AC (01.01-02.00) | 1.5600 | 67953.60 | 0.00 | 0.00 | 1.00 | $140,000 | $0 |
Roll Value History
| 2026 | N/A | N/A | N/A | N/A | N/A |
| 2025 | $4,000 | $140,000 | $0 | $144,000 | $144,000 |
| 2024 | $4,000 | $130,000 | $0 | $134,000 | $134,000 |
| 2023 | $4,000 | $120,000 | $0 | $124,000 | $124,000 |
| 2022 | $4,000 | $110,000 | $0 | $114,000 | $114,000 |
| 2021 | $4,000 | $100,000 | $0 | $104,000 | $104,000 |
| 2020 | $4,000 | $100,000 | $0 | $104,000 | $104,000 |
| 2019 | $4,000 | $100,000 | $0 | $104,000 | $104,000 |
| 2018 | $4,000 | $160,000 | $0 | $164,000 | $164,000 |
| 2017 | $4,000 | $160,000 | $0 | $164,000 | $164,000 |
| 2016 | $4,000 | $160,000 | $0 | $164,000 | $164,000 |
| 2015 | $0 | $125,970 | $0 | $125,970 | $125,970 |
| 2014 | $0 | $125,970 | $0 | $125,970 | $125,970 |
| 2013 | $0 | $125,970 | $0 | $125,970 | $125,970 |
| 2012 | $0 | $125,970 | $0 | $125,970 | $125,970 |
| 2011 | $0 | $125,970 | $0 | $125,970 | $125,970 |
| 2010 | $0 | $125,970 | $0 | $125,970 | $125,970 |
| 2009 | $0 | $125,970 | $0 | $125,970 | $125,970 |
| 2008 | $0 | $132,600 | $0 | $132,600 | $132,600 |
| 2007 | $0 | $0 | $0 | $157,365 | $157,365 |
Deed and Sales History
| 1 | 11/08/2007 | WD | Warranty Deed | GRAY TRUSTEE, JANET R | GRAY SISTERS LLC, | | | $0.00 | 73746 | 4216181 |
| 2 | 01/01/1900 | OTHER | Other - Misc. Documents | Unknown | GRAY TRUSTEE, JANET R | | | $0.00 | 0 | 0 |
Payout Agreement
| No payout information available.. |