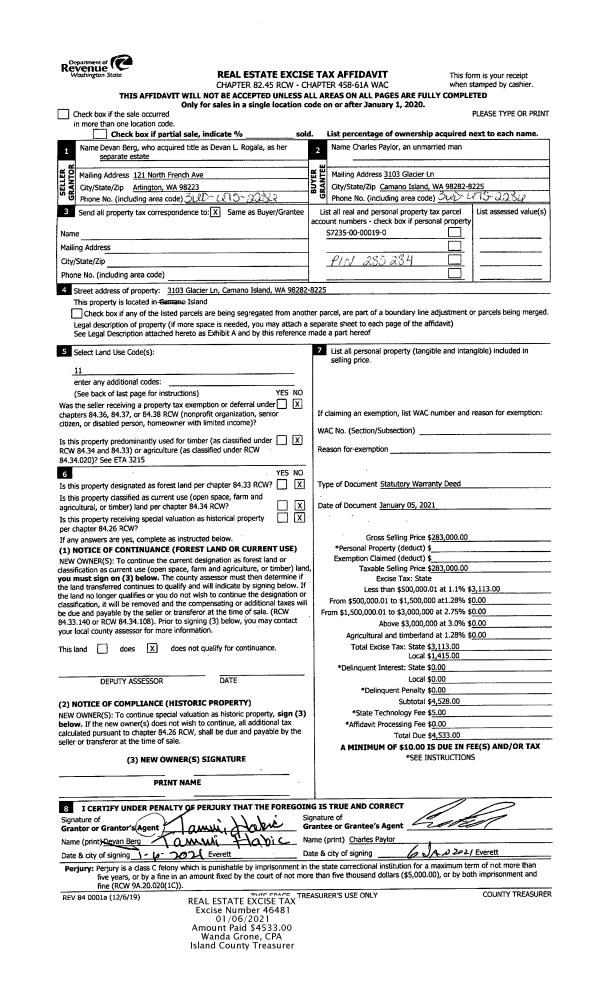
Property
Account |
| Property ID: | 808401 | Abbreviated Legal Description: | PT S/2 SE SE DESC: BG NWCR S/2 SE SE S89*E ALG NLN SD S/2 1320.85' M/L TO ELN SD S/2 S01*W ALG SD ELN 355.04' N89*W1019.82' N01*E97.06' N89*W300.01' TO WLN SD S/2 N01*E ALG SD S/2 257.83' TPB |
| Geographic ID: | R23029-047-4630 | Agent Code: | |
| Type: | Real | | |
| Tax Area: | 312 - APPRAISER-Cpvl Schl Dist, outside Cpvl, improved, greater than 1 acre | Land Use Code | 11 |
| Open Space: | N | DFL | N |
| Historic Property: | N | Remodel Property: | N |
| Multi-Family Redevelopment: | N | | |
| Township: | 30 | Section: | 29 |
| Range: | R2 |
Location |
| Address: | COUPEVILLE, WA 98239 | Mapsco: | |
| Neighborhood: | Cycle 3 | Map ID: | 426 |
| Neighborhood CD: | 3 |
Owner |
| Name: | JONES, STEVEN M | Owner ID: | 253145 |
| Mailing Address: | 1125 SHERWOOD LN GREENBANK, WA 98253 | % Ownership: | 100.0000000000% |
| | | Exemptions: | |
Taxes and Assessment Details
Values
| (+) Improvement Homesite Value: | + | $0 | |
| (+) Improvement Non-Homesite Value: | + | $16,346 | |
| (+) Land Homesite Value: | + | $0 | |
| (+) Land Non-Homesite Value: | + | $210,000 | |
| (+) Curr Use (HS): | + | $0 | $0 |
| (+) Curr Use (NHS): | + | $0 | $0 |
| | | -------------------------- | |
| (=) Market Value: | = | $226,346 | |
| (–) Productivity Loss: | – | $0 | |
| | | -------------------------- | |
| (=) Subtotal: | = | $226,346 | |
| (+) Senior Appraised Value: | + | $0 | |
| (+) Non-Senior Appraised Value: | + | $226,346 | |
| | | -------------------------- | |
| (=) Total Appraised Value: | = | $226,346 | |
| (–) Senior Exemption Loss: | – | $0 | |
| (–) Exemption Loss: | – | $0 | |
| | | -------------------------- | |
| (=) Taxable Value: | = | $226,346 | |
Taxing Jurisdiction
| Owner: | JONES, STEVEN M | | |
| % Ownership: | 100.0000000000% | | |
| Total Value: | $226,346 | | |
| Tax Area: | 312 - APPRAISER-Cpvl Schl Dist, outside Cpvl, improved, greater than 1 acre |
| CF | Conservation Futures | 0.0316035091 | $226,346 | $226,346 | $7.15 | | |
| CEM2 | Cemetery #2 | 0.0095056933 | $226,346 | $226,346 | $2.15 | | |
| FIRE5 | Fire & Rescue Dist #5 C Whidbey GEN | 1.2008080668 | $226,346 | $226,346 | $271.80 | | |
| FIRE5BOND | Fire & Rescue Dist #5 C Whidbey BOND | 0.1400090713 | $226,346 | $226,346 | $31.69 | | |
| HOBOND | Hospital BOND | 0.1910887512 | $226,346 | $226,346 | $43.25 | | |
| HOGEN | Hospital GEN | 0.3902502903 | $226,346 | $226,346 | $88.33 | | |
| CE | County Current Expense | 0.3708482477 | $226,346 | $226,346 | $83.94 | | |
| CR | County Roads | 0.4584763726 | $226,346 | $226,346 | $103.77 | | |
| ISLANDEMS | Hospital GEN (EMS) | 0.5000000000 | $226,346 | $226,346 | $113.17 | | |
| LIB | Library Sno-Isle GEN | 0.3153421757 | $226,346 | $226,346 | $71.38 | | |
| LIBCAP | Library Sno-Isle BOND (Cap Fac Imp Area) | 0.0543427938 | $226,346 | $226,346 | $12.30 | | |
| POCOUP | Port of Coupeville GEN | 0.1093371703 | $226,346 | $226,346 | $24.75 | | |
| POCOUPIDD | Port of Coupeville IDD | 0.3409740022 | $226,346 | $226,346 | $77.18 | | |
| COUPSDTECH | School 204 CP (TECH) | 0.7545480007 | $226,346 | $226,346 | $170.79 | | |
| SCH204MO | School 204 Enrichment | 0.6716186034 | $226,346 | $226,346 | $152.02 | | |
| ST | State School | 1.3035497053 | $226,346 | $226,346 | $295.05 | | |
| ST2 | State School Part 2 | 0.8169543533 | $226,346 | $226,346 | $184.91 | | |
| | Total Tax Rate: | 7.6592568070 | | | | | |
| | | | | Taxes w/Current Exemptions: | $1,733.63 | | |
| | | | | Taxes w/o Exemptions: | $1,733.63 | | |
Improvement / Building
| Improvement #1: | RESIDENTIAL | State Code: | Y | 0.0 sqft | Value: | $16,346 |
| | Type | Description | Class CD | Sub Class CD | Year Built | Area |
| | oUTI | UTILITY | 4 | 0 | 2020 | 320.0 |
| | OP3 | OPEN PORCH W/ROOF | 3 | 0 | 2020 | 64.0 |
Sketch
Property Image
Land
| 1 | 35 | AC (10.00-30.99) | 9.4246 | 410535.58 | 0.00 | 0.00 | 1.00 | $210,000 | $0 |
Roll Value History
| 2026 | N/A | N/A | N/A | N/A | N/A |
| 2025 | $16,346 | $210,000 | $0 | $226,346 | $226,346 |
| 2024 | $36,189 | $200,000 | $0 | $236,189 | $236,189 |
| 2023 | $36,476 | $180,000 | $0 | $216,476 | $216,476 |
| 2022 | $33,377 | $160,000 | $0 | $193,377 | $193,377 |
| 2021 | $29,551 | $160,000 | $0 | $189,551 | $189,551 |
| 2020 | $29,104 | $160,000 | $0 | $189,104 | $189,104 |
| 2019 | $0 | $160,000 | $0 | $160,000 | $160,000 |
| 2018 | $0 | $130,000 | $0 | $130,000 | $130,000 |
| 2017 | $0 | $130,000 | $0 | $130,000 | $130,000 |
| 2016 | $0 | $130,000 | $0 | $130,000 | $130,000 |
| 2015 | $0 | $130,000 | $0 | $130,000 | $130,000 |
| 2014 | $0 | $130,000 | $0 | $130,000 | $130,000 |
| 2013 | $0 | $131,170 | $0 | $131,170 | $131,170 |
| 2012 | $0 | $131,170 | $0 | $131,170 | $131,170 |
| 2011 | $0 | $131,170 | $0 | $131,170 | $131,170 |
| 2010 | $0 | $131,170 | $0 | $131,170 | $131,170 |
| 2009 | $0 | $201,800 | $0 | $201,800 | $201,800 |
| 2008 | $0 | $181,620 | $0 | $181,620 | $181,620 |
| 2007 | $0 | $0 | $0 | $59,956 | $59,956 |
Deed and Sales History
| 1 | 11/01/2019 | WD | Warranty Deed | EB HOLDINGS LTD | JONES, STEVEN M | | | $160,000.00 | 40997 | 4474948 |
| 2 | 12/05/2007 | SEG | DNU - Segregation | Unknown | E B HOLDINGS LTD, | | | $0.00 | 80499 | 0 |
Payout Agreement
| No payout information available.. |