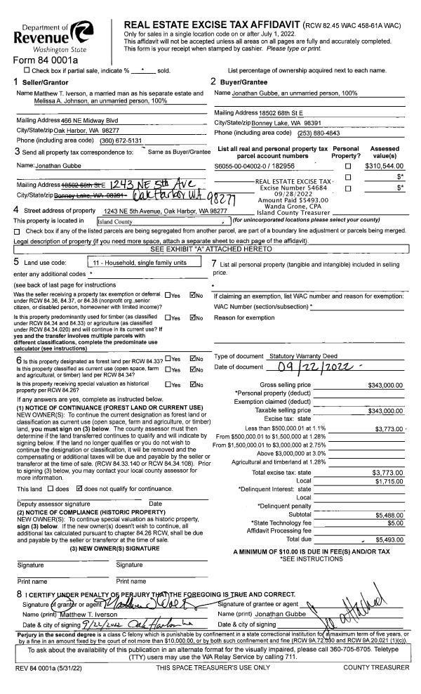
Property
Account |
| Property ID: | 80842 | Abbreviated Legal Description: | 189 - IN S/2 NE NE: BG NECR TR B CAM HTS#4 S37*E193.42' TPB S37*E221.44' E548.2' N177.28' W682.85' TPB TGW EZ |
| Geographic ID: | R23114-407-5020 | Agent Code: | |
| Type: | Real | | |
| Tax Area: | 512 - APPRAISER-Stan/Cam Schl Dist, improved, greater than 1 acre | Land Use Code | 11 |
| Open Space: | N | DFL | N |
| Historic Property: | N | Remodel Property: | N |
| Multi-Family Redevelopment: | N | | |
| Township: | 31 | Section: | 14 |
| Range: | R2 |
Location |
| Address: | 880 MOUNTAIN HOME LN CAMANO ISLAND, WA 98282 | Mapsco: | |
| Neighborhood: | Cycle 5 | Map ID: | 484 |
| Neighborhood CD: | 5 |
Owner |
| Name: | AKER, CHRISTOPHER | Owner ID: | 271237 |
| Mailing Address: | AMANDA AKER 880 MOUNTAIN HOME LN CAMANO ISLAND, WA 98282 | % Ownership: | 100.0000000000% |
| | | Exemptions: | |
Taxes and Assessment Details
Values
| (+) Improvement Homesite Value: | + | $0 | |
| (+) Improvement Non-Homesite Value: | + | $383,734 | |
| (+) Land Homesite Value: | + | $0 | |
| (+) Land Non-Homesite Value: | + | $290,000 | |
| (+) Curr Use (HS): | + | $0 | $0 |
| (+) Curr Use (NHS): | + | $0 | $0 |
| | | -------------------------- | |
| (=) Market Value: | = | $673,734 | |
| (–) Productivity Loss: | – | $0 | |
| | | -------------------------- | |
| (=) Subtotal: | = | $673,734 | |
| (+) Senior Appraised Value: | + | $0 | |
| (+) Non-Senior Appraised Value: | + | $673,734 | |
| | | -------------------------- | |
| (=) Total Appraised Value: | = | $673,734 | |
| (–) Senior Exemption Loss: | – | $0 | |
| (–) Exemption Loss: | – | $0 | |
| | | -------------------------- | |
| (=) Taxable Value: | = | $673,734 | |
Taxing Jurisdiction
| Owner: | AKER, CHRISTOPHER | | |
| % Ownership: | 100.0000000000% | | |
| Total Value: | $673,734 | | |
| Tax Area: | 512 - APPRAISER-Stan/Cam Schl Dist, improved, greater than 1 acre |
| CF | Conservation Futures | 0.0316035091 | $673,734 | $673,734 | $21.29 | | |
| EMS1 | Fire & Rescue Dist #1 Camano GEN (EMS) | 0.3677864386 | $673,734 | $673,734 | $247.79 | | |
| FIRE1 | Fire & Rescue Dist #1 Camano GEN | 1.2502910536 | $673,734 | $673,734 | $842.36 | | |
| FIRE1BOND | Fire & Rescue Dist #1 Camano BOND | 0.1570001679 | $673,734 | $673,734 | $105.78 | | |
| CE | County Current Expense | 0.3708482477 | $673,734 | $673,734 | $249.85 | | |
| CR | County Roads | 0.4584763726 | $673,734 | $673,734 | $308.89 | | |
| LCIB | Library Sno-Isle BOND (Camano Island) | 0.0396325772 | $673,734 | $673,734 | $26.70 | | |
| LIB | Library Sno-Isle GEN | 0.3153421757 | $673,734 | $673,734 | $212.46 | | |
| SCH205_401 | School 205-401 Enrichment | 1.2698420524 | $673,734 | $673,734 | $855.54 | | |
| SCH205BOND | School 205-401 BOND | 0.9396497583 | $673,734 | $673,734 | $633.07 | | |
| ST | State School | 1.3035497053 | $673,734 | $673,734 | $878.25 | | |
| ST2 | State School Part 2 | 0.8169543533 | $673,734 | $673,734 | $550.41 | | |
| | Total Tax Rate: | 7.3209764117 | | | | | |
| | | | | Taxes w/Current Exemptions: | $4,932.39 | | |
| | | | | Taxes w/o Exemptions: | $4,932.39 | | |
Improvement / Building
| Improvement #1: | RESIDENTIAL | State Code: | Y | 2319.7 sqft | Value: | $383,734 |
| Bathrooms: | 2 | Bedrooms: | 3 | | Ceiling: | DRYWALL PAINTED | Cooling: | HEAT PUMP/CONV/V | | Exterior Wall/Cover: | WOOD SIDING | Floor Covering: | CARPET/VINYL 80-20 | | Floor Structure: | WOOD W/SUBFLOOR | Foundation: | CONCRETE | | Interior Finish: | DRYWALL PAINT | Plumbing Fixture Cnt: | 11 | | Roof Slope: | 5" IN 12" | Roof Structure/Cover: | CJ ASPHALT |
|
| | Type | Description | Class CD | Sub Class CD | Year Built | Area |
| | BAS | BASE/MAIN FLOOR | 3 | 0 | 1988 | 1807.7 |
| | OP2 | OPEN PORCH W/STEPS | 3 | 0 | 1988 | 16.2 |
| | OP4 | OPEN PORCH W/CEILING-ROOF | 3 | 0 | 1988 | 68.1 |
| | AGR | ATTACHED GARAGE | 3 | 0 | 1988 | 572.0 |
| | UPS | UPPER STORY | 3 | 0 | 1988 | 512.0 |
| | OWP | OPEN WOOD PORCH W/STEPS | 3 | 0 | 1988 | 431.4 |
Sketch
Property Image
Land
| 1 | 18 | AC (02.01-03.00) | 2.5000 | 108900.00 | 0.00 | 0.00 | 1.00 | $290,000 | $0 |
Roll Value History
| 2026 | N/A | N/A | N/A | N/A | N/A |
| 2025 | $383,734 | $290,000 | $0 | $673,734 | $673,734 |
| 2024 | $388,455 | $280,000 | $0 | $668,455 | $668,455 |
| 2023 | $393,179 | $270,000 | $0 | $663,179 | $663,179 |
| 2022 | $360,310 | $260,000 | $0 | $620,310 | $620,310 |
| 2021 | $271,243 | $180,000 | $0 | $451,243 | $451,243 |
| 2020 | $265,080 | $150,000 | $0 | $415,080 | $415,080 |
| 2019 | $204,965 | $200,000 | $0 | $404,965 | $404,965 |
| 2018 | $205,637 | $180,000 | $0 | $385,637 | $385,637 |
| 2017 | $206,980 | $140,000 | $0 | $346,980 | $346,980 |
| 2016 | $209,669 | $140,000 | $0 | $349,669 | $349,669 |
| 2015 | $203,606 | $63,200 | $0 | $266,806 | $266,806 |
| 2014 | $206,228 | $63,200 | $0 | $269,428 | $269,428 |
| 2013 | $208,850 | $63,200 | $0 | $272,050 | $272,050 |
| 2012 | $211,472 | $63,200 | $0 | $274,672 | $274,672 |
| 2011 | $214,096 | $79,000 | $0 | $293,096 | $293,096 |
| 2010 | $215,961 | $79,000 | $0 | $294,961 | $294,961 |
| 2009 | $229,226 | $130,000 | $0 | $359,226 | $359,226 |
| 2008 | $232,205 | $113,740 | $0 | $345,945 | $345,945 |
| 2007 | $235,310 | $113,740 | $0 | $349,050 | $349,050 |
Deed and Sales History
| 1 | 06/23/2015 | WD | Warranty Deed | GANZ, MICHAEL J | AKER, CHRISTOPHER | | | $305,000.00 | 20228 | 4381123 |
| 2 | 03/14/2008 | QCD | Quit Claim Deed | GANZ, MICHAEL J | GANZ, MICHAEL J | | | $0.00 | 80709 | 4224798 |
| 3 | 03/11/2004 | DECREE | Divorce Decree/Legal Separation | GANZ, MICHAEL J | GANZ, MICHAEL J | | | $0.00 | 41334 | 4096335 |
| 4 | 10/01/1989 | WD | Warranty Deed | JENNINGS, JAMES L | GANZ, MICHAEL J | | | $97,500.00 | 94651 | 89015132 |
| 5 | 07/01/1987 | WD | Warranty Deed | HURLEY, SHANNON R | JENNINGS, JAMES L | | | $25,000.00 | 72178 | 87009843 |
| 6 | 04/01/1979 | OTHER | Other - Misc. Documents | Unknown | HURLEY, SHANNON R | | | $10,000.00 | 91823 | 351194 |
Payout Agreement
| No payout information available.. |