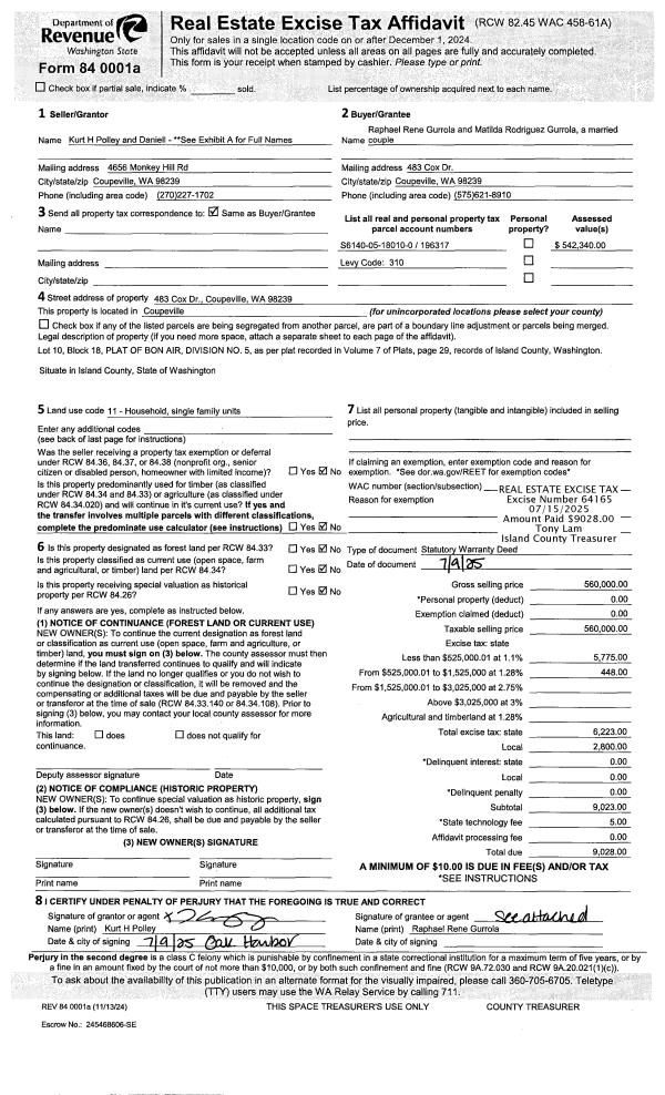
Property
Account |
| Property ID: | 808445 | Abbreviated Legal Description: | SUNSET TERR LOT B C-SP 6-01.8270.00.0C008-0 V4 SP P221 AF# 4194405 |
| Geographic ID: | S8270-00-0C008-2 | Agent Code: | |
| Type: | Real | | |
| Tax Area: | 300 - APPRAISER-Cpvl Schl Dist, in Cpvl | Land Use Code | 11 |
| Open Space: | N | DFL | N |
| Historic Property: | N | Remodel Property: | N |
| Multi-Family Redevelopment: | N | | |
| Township: | | Section: | |
| Range: | |
Location |
| Address: | 1080 NE PENNINGTON LOOP COUPEVILLE, WA 98239 | Mapsco: | |
| Neighborhood: | Cycle 2 | Map ID: | 177 |
| Neighborhood CD: | 2 |
Owner |
| Name: | GARDNER, JANET L | Owner ID: | 263933 |
| Mailing Address: | 1080 NE PENNINGTON LOOP COUPEVILLE, WA 98239 | % Ownership: | 100.0000000000% |
| | | Exemptions: | |
Taxes and Assessment Details
Values
| (+) Improvement Homesite Value: | + | $0 | |
| (+) Improvement Non-Homesite Value: | + | $368,830 | |
| (+) Land Homesite Value: | + | $0 | |
| (+) Land Non-Homesite Value: | + | $240,000 | |
| (+) Curr Use (HS): | + | $0 | $0 |
| (+) Curr Use (NHS): | + | $0 | $0 |
| | | -------------------------- | |
| (=) Market Value: | = | $608,830 | |
| (–) Productivity Loss: | – | $0 | |
| | | -------------------------- | |
| (=) Subtotal: | = | $608,830 | |
| (+) Senior Appraised Value: | + | $0 | |
| (+) Non-Senior Appraised Value: | + | $608,830 | |
| | | -------------------------- | |
| (=) Total Appraised Value: | = | $608,830 | |
| (–) Senior Exemption Loss: | – | $0 | |
| (–) Exemption Loss: | – | $0 | |
| | | -------------------------- | |
| (=) Taxable Value: | = | $608,830 | |
Taxing Jurisdiction
| Owner: | GARDNER, JANET L | | |
| % Ownership: | 100.0000000000% | | |
| Total Value: | $608,830 | | |
| Tax Area: | 300 - APPRAISER-Cpvl Schl Dist, in Cpvl |
| CF | Conservation Futures | 0.0316035091 | $608,830 | $608,830 | $19.24 | | |
| CEM2 | Cemetery #2 | 0.0095056933 | $608,830 | $608,830 | $5.79 | | |
| COUP | City: Town of Coupeville | 0.8426414490 | $608,830 | $608,830 | $513.03 | | |
| FIRE5 | Fire & Rescue Dist #5 C Whidbey GEN | 1.2008080668 | $608,830 | $608,830 | $731.09 | | |
| FIRE5BOND | Fire & Rescue Dist #5 C Whidbey BOND | 0.1400090713 | $608,830 | $608,830 | $85.24 | | |
| HOBOND | Hospital BOND | 0.1910887512 | $608,830 | $608,830 | $116.34 | | |
| HOGEN | Hospital GEN | 0.3902502903 | $608,830 | $608,830 | $237.60 | | |
| CE | County Current Expense | 0.3708482477 | $608,830 | $608,830 | $225.78 | | |
| ISLANDEMS | Hospital GEN (EMS) | 0.5000000000 | $608,830 | $608,830 | $304.42 | | |
| LIB | Library Sno-Isle GEN | 0.3153421757 | $608,830 | $608,830 | $191.99 | | |
| LIBCAP | Library Sno-Isle BOND (Cap Fac Imp Area) | 0.0543427938 | $608,830 | $608,830 | $33.09 | | |
| POCOUP | Port of Coupeville GEN | 0.1093371703 | $608,830 | $608,830 | $66.57 | | |
| POCOUPIDD | Port of Coupeville IDD | 0.3409740022 | $608,830 | $608,830 | $207.60 | | |
| COUPSDTECH | School 204 CP (TECH) | 0.7545480007 | $608,830 | $608,830 | $459.39 | | |
| SCH204MO | School 204 Enrichment | 0.6716186034 | $608,830 | $608,830 | $408.90 | | |
| ST | State School | 1.3035497053 | $608,830 | $608,830 | $793.64 | | |
| ST2 | State School Part 2 | 0.8169543533 | $608,830 | $608,830 | $497.39 | | |
| | Total Tax Rate: | 8.0434218834 | | | | | |
| | | | | Taxes w/Current Exemptions: | $4,897.10 | | |
| | | | | Taxes w/o Exemptions: | $4,897.10 | | |
Improvement / Building
| Improvement #1: | RESIDENTIAL | State Code: | Y | 1431.0 sqft | Value: | $368,830 |
| Bathrooms: | 2 | Bedrooms: | 1 | | Ceiling: | TONGUE & GROOVE | Exterior Wall/Cover: | SHINGLE | | Floor Covering: | COLORED CONCRETE | Floor Structure: | SLAB ON GRADE | | Foundation: | CONCRETE | Heating: | RADIANT FLOOR | | Interior Finish: | DRYWALL PAINT | Plumbing Fixture Cnt: | 11 | | Roof Slope: | 8" IN 12" | Roof Structure/Cover: | CJ ASPHALT |
|
| | Type | Description | Class CD | Sub Class CD | Year Built | Area |
| | BAS | BASE/MAIN FLOOR | 4 | 0 | 2008 | 1431.0 |
| | OP4 | OPEN PORCH W/CEILING-ROOF | 4 | 0 | 2008 | 30.0 |
| | OWC | OPEN WOOD PORCH W/STEPS/ROOF/C | 4 | 0 | 2008 | 238.0 |
| | UTY | STORAGE/UTILITY | 4 | | 2008 | 0.0 |
| | DGR | DETACHED GARAGE | 4 | 0 | 2008 | 384.0 |
| | OWR | OPEN WOOD PORCH W/STEPS/ROOF | 4 | 0 | 2008 | 72.0 |
Sketch
| No sketches available for this property. |
Property Image
Land
| 1 | 14 | SQ (08001-12000) | 0.2200 | 9583.20 | 0.00 | 0.00 | 1.00 | $240,000 | $0 |
Roll Value History
| 2026 | N/A | N/A | N/A | N/A | N/A |
| 2025 | $368,830 | $240,000 | $0 | $608,830 | $608,830 |
| 2024 | $361,254 | $225,000 | $0 | $586,254 | $586,254 |
| 2023 | $365,113 | $210,000 | $0 | $575,113 | $575,113 |
| 2022 | $336,795 | $200,000 | $0 | $536,795 | $536,795 |
| 2021 | $299,624 | $150,000 | $0 | $449,624 | $449,624 |
| 2020 | $290,942 | $130,000 | $0 | $420,942 | $420,942 |
| 2019 | $219,274 | $170,000 | $0 | $389,274 | $389,274 |
| 2018 | $205,027 | $150,000 | $0 | $355,027 | $355,027 |
| 2017 | $206,012 | $125,000 | $0 | $331,012 | $331,012 |
| 2016 | $207,985 | $115,000 | $0 | $322,985 | $322,985 |
| 2015 | $209,957 | $90,000 | $0 | $299,957 | $299,957 |
| 2014 | $211,929 | $85,000 | $0 | $296,929 | $296,929 |
| 2013 | $169,743 | $85,000 | $0 | $254,743 | $254,743 |
| 2012 | $161,446 | $90,950 | $0 | $252,396 | $252,396 |
| 2011 | $163,147 | $107,000 | $0 | $270,147 | $270,147 |
| 2010 | $92,325 | $107,000 | $0 | $199,325 | $199,325 |
| 2009 | $95,174 | $125,000 | $0 | $220,174 | $220,174 |
| 2008 | $96,135 | $120,000 | $0 | $216,135 | $216,135 |
| 2007 | $0 | $0 | $0 | $52,500 | $52,500 |
Deed and Sales History
| 1 | 09/30/2013 | WD | Warranty Deed | AVERY, SUSAN JANET | GARDNER, JANET L | | | $335,500.00 | 13074 | 4349411 |
| 2 | 11/06/2012 | WD | Warranty Deed | CAMPBELL TRUSTEE, ANNE S | AVERY, SUSAN JANET | | | $310,000.00 | 9559 | 4327913 |
| 3 | 10/25/2007 | WD | Warranty Deed | BYLER, SHEILAGH C | CAMPBELL TRUSTEE, ANNE S | | | $150,000.00 | 73586 | 4215132 |
| 4 | 01/01/1900 | OTHER | Other - Misc. Documents | Unknown | BYLER, SHEILAGH C | | | $0.00 | 0 | 0 |
Payout Agreement
| No payout information available.. |