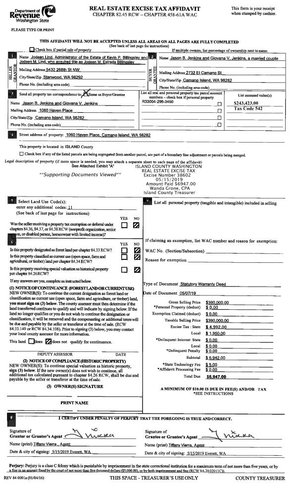
Property
Account |
| Property ID: | 808470 | Abbreviated Legal Description: | LOT 3 SP 32-05.23111.044-2700 V4 SP P193 & 194 AF# 4187924 |
| Geographic ID: | R23111-052-2710 | Agent Code: | |
| Type: | Real | | |
| Tax Area: | 512 - APPRAISER-Stan/Cam Schl Dist, improved, greater than 1 acre | Land Use Code | 11 |
| Open Space: | N | DFL | N |
| Historic Property: | N | Remodel Property: | N |
| Multi-Family Redevelopment: | N | | |
| Township: | 31 | Section: | 11 |
| Range: | R2 |
Location |
| Address: | 581 W CAMANO HILL RD CAMANO ISLAND, WA 98282 | Mapsco: | |
| Neighborhood: | Cycle 5 | Map ID: | 469 |
| Neighborhood CD: | 5 |
Owner |
| Name: | BOWMAN, BRADY | Owner ID: | 290096 |
| Mailing Address: | 581 W CAMANO HILL RD CAMANO ISLAND, WA 98282 | % Ownership: | 100.0000000000% |
| | | Exemptions: | |
Taxes and Assessment Details
Values
| (+) Improvement Homesite Value: | + | $0 | |
| (+) Improvement Non-Homesite Value: | + | $522,007 | |
| (+) Land Homesite Value: | + | $0 | |
| (+) Land Non-Homesite Value: | + | $330,000 | |
| (+) Curr Use (HS): | + | $0 | $0 |
| (+) Curr Use (NHS): | + | $0 | $0 |
| | | -------------------------- | |
| (=) Market Value: | = | $852,007 | |
| (–) Productivity Loss: | – | $0 | |
| | | -------------------------- | |
| (=) Subtotal: | = | $852,007 | |
| (+) Senior Appraised Value: | + | $0 | |
| (+) Non-Senior Appraised Value: | + | $852,007 | |
| | | -------------------------- | |
| (=) Total Appraised Value: | = | $852,007 | |
| (–) Senior Exemption Loss: | – | $0 | |
| (–) Exemption Loss: | – | $0 | |
| | | -------------------------- | |
| (=) Taxable Value: | = | $852,007 | |
Taxing Jurisdiction
| Owner: | BOWMAN, BRADY | | |
| % Ownership: | 100.0000000000% | | |
| Total Value: | $852,007 | | |
| Tax Area: | 512 - APPRAISER-Stan/Cam Schl Dist, improved, greater than 1 acre |
| CF | Conservation Futures | 0.0316035091 | $852,007 | $852,007 | $26.93 | | |
| EMS1 | Fire & Rescue Dist #1 Camano GEN (EMS) | 0.3677864386 | $852,007 | $852,007 | $313.36 | | |
| FIRE1 | Fire & Rescue Dist #1 Camano GEN | 1.2502910536 | $852,007 | $852,007 | $1,065.26 | | |
| FIRE1BOND | Fire & Rescue Dist #1 Camano BOND | 0.1570001679 | $852,007 | $852,007 | $133.77 | | |
| CE | County Current Expense | 0.3708482477 | $852,007 | $852,007 | $315.97 | | |
| CR | County Roads | 0.4584763726 | $852,007 | $852,007 | $390.63 | | |
| LCIB | Library Sno-Isle BOND (Camano Island) | 0.0396325772 | $852,007 | $852,007 | $33.77 | | |
| LIB | Library Sno-Isle GEN | 0.3153421757 | $852,007 | $852,007 | $268.67 | | |
| SCH205_401 | School 205-401 Enrichment | 1.2698420524 | $852,007 | $852,007 | $1,081.91 | | |
| SCH205BOND | School 205-401 BOND | 0.9396497583 | $852,007 | $852,007 | $800.59 | | |
| ST | State School | 1.3035497053 | $852,007 | $852,007 | $1,110.63 | | |
| ST2 | State School Part 2 | 0.8169543533 | $852,007 | $852,007 | $696.05 | | |
| | Total Tax Rate: | 7.3209764117 | | | | | |
| | | | | Taxes w/Current Exemptions: | $6,237.54 | | |
| | | | | Taxes w/o Exemptions: | $6,237.54 | | |
Improvement / Building
| Improvement #1: | RESIDENTIAL | State Code: | Y | 2976.0 sqft | Value: | $522,007 |
| Bathrooms: | 2.5 | Bedrooms: | 3 | | Ceiling: | DRYWALL PAINTED | Cooling: | HEAT PUMP/CONV/V | | Exterior Wall/Cover: | CEMENT FIBER | Floor Covering: | HARDWOOD/CARP 60-40 | | Floor Structure: | WOOD W/SUBFLOOR | Foundation: | CONCRETE | | Interior Finish: | DRYWALL PAINT | Plumbing Fixture Cnt: | 13 | | Roof Slope: | 8" IN 12" | Roof Structure/Cover: | CJ ASPHALT |
|
| | Type | Description | Class CD | Sub Class CD | Year Built | Area |
| | BAS | BASE/MAIN FLOOR | 3 | 0 | 2006 | 2072.0 |
| | OP4 | OPEN PORCH W/CEILING-ROOF | 3 | 0 | 2006 | 72.0 |
| | BIG | BUILT IN GARAGE | 3 | 0 | 2006 | 616.0 |
| | OWP | OPEN WOOD PORCH W/STEPS | 3 | 0 | 2006 | 360.0 |
| | DWN | DOWNSTAIRS LIVING AREA | 3 | 0 | 2006 | 904.0 |
| | UTY | STORAGE/UTILITY | 3 | 0 | 2006 | 2800.0 |
Sketch
Property Image
Land
| 1 | 32 | AC (03.01-09.99) | 5.2000 | 0.00 | 0.00 | 0.00 | 1.00 | $330,000 | $0 |
Roll Value History
| 2026 | N/A | N/A | N/A | N/A | N/A |
| 2025 | $522,007 | $330,000 | $0 | $852,007 | $852,007 |
| 2024 | $528,432 | $300,000 | $0 | $828,432 | $828,432 |
| 2023 | $534,857 | $290,000 | $0 | $824,857 | $824,857 |
| 2022 | $490,135 | $290,000 | $0 | $780,135 | $780,135 |
| 2021 | $427,897 | $190,000 | $0 | $617,897 | $617,897 |
| 2020 | $417,952 | $160,000 | $0 | $577,952 | $577,952 |
| 2019 | $335,605 | $230,000 | $0 | $565,605 | $565,605 |
| 2018 | $336,566 | $175,000 | $0 | $511,566 | $511,566 |
| 2017 | $338,489 | $150,000 | $0 | $488,489 | $488,489 |
| 2016 | $279,901 | $150,000 | $0 | $429,901 | $429,901 |
| 2015 | $282,643 | $116,480 | $0 | $399,123 | $399,123 |
| 2014 | $285,784 | $116,480 | $0 | $402,264 | $402,264 |
| 2013 | $288,925 | $116,480 | $0 | $405,405 | $405,405 |
| 2012 | $292,066 | $116,480 | $0 | $408,546 | $408,546 |
| 2011 | $295,205 | $145,600 | $0 | $440,805 | $440,805 |
| 2010 | $305,879 | $145,600 | $0 | $451,479 | $451,479 |
| 2009 | $360,702 | $166,400 | $0 | $527,102 | $527,102 |
| 2007 | $0 | $0 | $0 | $496,598 | $496,598 |
Deed and Sales History
| 1 | 05/30/2019 | WD | Warranty Deed | OKEEFE, JOHN | BOWMAN, BRADY | | | $585,000.00 | 38837 | 4464747 |
| 2 | 10/28/2009 | WD | Warranty Deed | H&R BLOCK BANK, | OKEEFE, JOHN | | | $257,500.00 | 92985 | 4264860 |
| 3 | 10/01/2008 | TRUSTEED | Trustee's Deed | JONES, DARRYL R | H&R BLOCK BANK, | | | $168,785.00 | 82596 | 4237829 |
| 4 | 12/13/2006 | QCD | Quit Claim Deed | CAMANO HOLDING CO , LLC, | JONES, DARRYL R | | | $0.00 | 65210 | 4189325 |
| 5 | 01/01/1900 | OTHER | Other - Misc. Documents | Unknown | CAMANO HOLDING CO , LLC, | | | $0.00 | 0 | 0 |
Payout Agreement
| No payout information available.. |