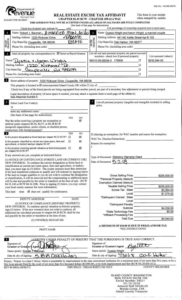
Property
Account |
| Property ID: | 808475 | Abbreviated Legal Description: | LOT 2 SP 356-05.03213.182-4750 V4 SP P244 AF# 4203050 |
| Geographic ID: | R03213-182-4670 | Agent Code: | |
| Type: | Real | | |
| Tax Area: | 110 - APPRAISER-OH Schl Dist, outside OH, improved & 1 acre or less | Land Use Code | 11 |
| Open Space: | N | DFL | N |
| Historic Property: | N | Remodel Property: | N |
| Multi-Family Redevelopment: | N | | |
| Township: | 32 | Section: | 13 |
| Range: | R0 |
Location |
| Address: | | Mapsco: | |
| Neighborhood: | Cycle 2 | Map ID: | 1 |
| Neighborhood CD: | 2 |
Owner |
| Name: | JACKSON, JEREMEY | Owner ID: | 285898 |
| Mailing Address: | SUZETTE JACKSON 687 MOBIUS LOOP OAK HARBOR, WA 98277 | % Ownership: | 100.0000000000% |
| | | Exemptions: | |
Taxes and Assessment Details
Values
| (+) Improvement Homesite Value: | + | $0 | |
| (+) Improvement Non-Homesite Value: | + | $718,901 | |
| (+) Land Homesite Value: | + | $0 | |
| (+) Land Non-Homesite Value: | + | $261,800 | |
| (+) Curr Use (HS): | + | $0 | $0 |
| (+) Curr Use (NHS): | + | $0 | $0 |
| | | -------------------------- | |
| (=) Market Value: | = | $980,701 | |
| (–) Productivity Loss: | – | $0 | |
| | | -------------------------- | |
| (=) Subtotal: | = | $980,701 | |
| (+) Senior Appraised Value: | + | $0 | |
| (+) Non-Senior Appraised Value: | + | $980,701 | |
| | | -------------------------- | |
| (=) Total Appraised Value: | = | $980,701 | |
| (–) Senior Exemption Loss: | – | $0 | |
| (–) Exemption Loss: | – | $0 | |
| | | -------------------------- | |
| (=) Taxable Value: | = | $980,701 | |
Taxing Jurisdiction
| Owner: | JACKSON, JEREMEY | | |
| % Ownership: | 100.0000000000% | | |
| Total Value: | $980,701 | | |
| Tax Area: | 110 - APPRAISER-OH Schl Dist, outside OH, improved & 1 acre or less |
| CF | Conservation Futures | 0.0316035091 | $980,701 | $980,701 | $30.99 | | |
| CEM1 | Cemetery #1 | 0.0040320932 | $980,701 | $980,701 | $3.95 | | |
| FIRE2 | Fire & Rescue Dist #2 N Whidbey GEN | 0.5475949600 | $980,701 | $980,701 | $537.03 | | |
| HOBOND | Hospital BOND | 0.1910887512 | $980,701 | $980,701 | $187.40 | | |
| HOGEN | Hospital GEN | 0.3902502903 | $980,701 | $980,701 | $382.72 | | |
| CE | County Current Expense | 0.3708482477 | $980,701 | $980,701 | $363.69 | | |
| CR | County Roads | 0.4584763726 | $980,701 | $980,701 | $449.63 | | |
| ISLANDEMS | Hospital GEN (EMS) | 0.5000000000 | $980,701 | $980,701 | $490.35 | | |
| LIB | Library Sno-Isle GEN | 0.3153421757 | $980,701 | $980,701 | $309.26 | | |
| NWHIDPRMT | P & R N Whidbey GEN | 0.2004466701 | $980,701 | $980,701 | $196.58 | | |
| SCH201MO | School 201 Enrichment | 1.8559231640 | $980,701 | $980,701 | $1,820.11 | | |
| ST | State School | 1.3035497053 | $980,701 | $980,701 | $1,278.39 | | |
| ST2 | State School Part 2 | 0.8169543533 | $980,701 | $980,701 | $801.19 | | |
| | Total Tax Rate: | 6.9861102925 | | | | | |
| | | | | Taxes w/Current Exemptions: | $6,851.29 | | |
| | | | | Taxes w/o Exemptions: | $6,851.29 | | |
Improvement / Building
| Improvement #1: | RESIDENTIAL | State Code: | Y | 1999.0 sqft | Value: | $718,901 |
| Bathrooms: | 2 | Bedrooms: | 2 | | Ceiling: | DRYWALL PAINTED | Cooling: | HEAT PUMP/CONV/V | | Exterior Wall/Cover: | CEMENT FIBER | Floor Covering: | CARPET/VINYL 20-80 | | Floor Structure: | WOOD W/SUBFLOOR | Foundation: | SLAB | | Interior Finish: | DRYWALL PAINT | Plumbing Fixture Cnt: | 12 | | Roof Slope: | 4" IN 12" | Roof Structure/Cover: | BEAM ALUMINUM HEAVY |
|
| | Type | Description | Class CD | Sub Class CD | Year Built | Area |
| | BAS | BASE/MAIN FLOOR | 4 | 0 | 2022 | 1999.0 |
| | AGR | ATTACHED GARAGE | 4 | 0 | 2022 | 1350.0 |
| | OP3 | OPEN PORCH W/ROOF | 4 | 0 | 2022 | 160.0 |
| | OP3 | OPEN PORCH W/ROOF | 4 | 0 | 2022 | 3720.0 |
| | OP3 | OPEN PORCH W/ROOF | 4 | 0 | 2022 | 120.0 |
Sketch
Property Image
Land
| 1 | HS | HOMESITE | 0.5900 | 25700.40 | 0.00 | 0.00 | 1.00 | $261,800 | $0 |
Roll Value History
| 2026 | N/A | N/A | N/A | N/A | N/A |
| 2025 | $718,901 | $261,800 | $0 | $980,701 | $980,701 |
| 2024 | $726,449 | $250,000 | $0 | $976,449 | $976,449 |
| 2023 | $219,390 | $130,000 | $0 | $349,390 | $349,390 |
| 2022 | $37,555 | $130,000 | $0 | $167,555 | $167,555 |
| 2021 | $0 | $90,000 | $0 | $90,000 | $90,000 |
| 2020 | $0 | $90,000 | $0 | $90,000 | $90,000 |
| 2019 | $0 | $90,000 | $0 | $90,000 | $90,000 |
| 2018 | $0 | $75,000 | $0 | $75,000 | $75,000 |
| 2017 | $0 | $90,000 | $0 | $90,000 | $90,000 |
| 2016 | $0 | $90,000 | $0 | $90,000 | $90,000 |
| 2015 | $0 | $90,000 | $0 | $90,000 | $90,000 |
| 2014 | $0 | $90,000 | $0 | $90,000 | $90,000 |
| 2013 | $0 | $90,000 | $0 | $90,000 | $90,000 |
| 2012 | $0 | $126,350 | $0 | $126,350 | $126,350 |
| 2011 | $0 | $126,350 | $0 | $126,350 | $126,350 |
| 2010 | $0 | $126,350 | $0 | $126,350 | $126,350 |
| 2009 | $0 | $139,500 | $0 | $139,500 | $139,500 |
| 2008 | $0 | $114,700 | $0 | $114,700 | $114,700 |
| 2007 | $0 | $0 | $0 | $18,051 | $18,051 |
Deed and Sales History
| 1 | 07/03/2018 | WD | Warranty Deed | HUMPHREY, PATRICIA T | JACKSON, JEREMEY | | | $82,000.00 | 34893 | 4447542 |
| 2 | 06/12/2007 | WD | Warranty Deed | VIEWRIDGE INVESTMENTS LLC, | HUMPHREY, PATRICIA T | | | $136,500.00 | 72024 | 4204979 |
| 3 | 01/01/1900 | OTHER | Other - Misc. Documents | Unknown | VIEWRIDGE INVESTMENTS LLC, | | | $0.00 | 0 | 0 |
Payout Agreement
| No payout information available.. |