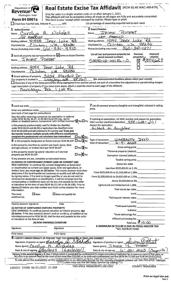
Property
Account |
| Property ID: | 808498 | Abbreviated Legal Description: | LOT 1 SP 233-05.23223.336-2530 V4 SP P250 & 251 AF# 4205117 |
| Geographic ID: | R23223-320-2510 | Agent Code: | |
| Type: | Real | | |
| Tax Area: | 512 - APPRAISER-Stan/Cam Schl Dist, improved, greater than 1 acre | Land Use Code | 11 |
| Open Space: | N | DFL | N |
| Historic Property: | N | Remodel Property: | N |
| Multi-Family Redevelopment: | N | | |
| Township: | 32 | Section: | 23 |
| Range: | R2 |
Location |
| Address: | 628 W NORTH CAMANO DR CAMANO ISLAND, WA 98282 | Mapsco: | |
| Neighborhood: | North Camano | Map ID: | 556 |
| Neighborhood CD: | 06-C |
Owner |
| Name: | CLEARY, MARK R | Owner ID: | 26125 |
| Mailing Address: | 628 W NORTH CAMANO DR CAMANO ISLAND, WA 98282-8608 | % Ownership: | 100.0000000000% |
| | | Exemptions: | |
Taxes and Assessment Details
Values
| (+) Improvement Homesite Value: | + | $0 | |
| (+) Improvement Non-Homesite Value: | + | $373,970 | |
| (+) Land Homesite Value: | + | $0 | |
| (+) Land Non-Homesite Value: | + | $305,000 | |
| (+) Curr Use (HS): | + | $0 | $0 |
| (+) Curr Use (NHS): | + | $0 | $0 |
| | | -------------------------- | |
| (=) Market Value: | = | $678,970 | |
| (–) Productivity Loss: | – | $0 | |
| | | -------------------------- | |
| (=) Subtotal: | = | $678,970 | |
| (+) Senior Appraised Value: | + | $0 | |
| (+) Non-Senior Appraised Value: | + | $678,970 | |
| | | -------------------------- | |
| (=) Total Appraised Value: | = | $678,970 | |
| (–) Senior Exemption Loss: | – | $0 | |
| (–) Exemption Loss: | – | $0 | |
| | | -------------------------- | |
| (=) Taxable Value: | = | $678,970 | |
Taxing Jurisdiction
| Owner: | CLEARY, MARK R | | |
| % Ownership: | 100.0000000000% | | |
| Total Value: | $678,970 | | |
| Tax Area: | 512 - APPRAISER-Stan/Cam Schl Dist, improved, greater than 1 acre |
| CF | Conservation Futures | 0.0316035091 | $678,970 | $678,970 | $21.46 | | |
| EMS1 | Fire & Rescue Dist #1 Camano GEN (EMS) | 0.3677864386 | $678,970 | $678,970 | $249.72 | | |
| FIRE1 | Fire & Rescue Dist #1 Camano GEN | 1.2502910536 | $678,970 | $678,970 | $848.91 | | |
| FIRE1BOND | Fire & Rescue Dist #1 Camano BOND | 0.1570001679 | $678,970 | $678,970 | $106.60 | | |
| CE | County Current Expense | 0.3708482477 | $678,970 | $678,970 | $251.79 | | |
| CR | County Roads | 0.4584763726 | $678,970 | $678,970 | $311.29 | | |
| LCIB | Library Sno-Isle BOND (Camano Island) | 0.0396325772 | $678,970 | $678,970 | $26.91 | | |
| LIB | Library Sno-Isle GEN | 0.3153421757 | $678,970 | $678,970 | $214.11 | | |
| SCH205_401 | School 205-401 Enrichment | 1.2698420524 | $678,970 | $678,970 | $862.18 | | |
| SCH205BOND | School 205-401 BOND | 0.9396497583 | $678,970 | $678,970 | $637.99 | | |
| ST | State School | 1.3035497053 | $678,970 | $678,970 | $885.07 | | |
| ST2 | State School Part 2 | 0.8169543533 | $678,970 | $678,970 | $554.69 | | |
| | Total Tax Rate: | 7.3209764117 | | | | | |
| | | | | Taxes w/Current Exemptions: | $4,970.72 | | |
| | | | | Taxes w/o Exemptions: | $4,970.72 | | |
Improvement / Building
| Improvement #1: | RESIDENTIAL | State Code: | Y | 2428.0 sqft | Value: | $373,970 |
| Bathrooms: | 3 | Bedrooms: | 4 | | Ceiling: | DRYWALL PAINTED | Exterior Wall/Cover: | PLY/HARDBOARD T-111 | | Floor Covering: | CARPET/VINYL 80-20 | Floor Structure: | WOOD W/SUBFLOOR | | Foundation: | CONCRETE | Heating: | WALL HEAT ELECTRIC | | Interior Finish: | DRYWALL PAINT | Plumbing Fixture Cnt: | 14 | | Roof Slope: | 5" IN 12" | Roof Structure/Cover: | CJ ASPHALT |
|
| | Type | Description | Class CD | Sub Class CD | Year Built | Area |
| | BAS | BASE/MAIN FLOOR | 3 | 0 | 1991 | 1214.0 |
| | AGR | ATTACHED GARAGE | 3 | 0 | 1991 | 748.0 |
| | UPS | UPPER STORY | 3 | 0 | 1991 | 1214.0 |
| | OWC | OPEN WOOD PORCH W/STEPS/ROOF/C | 3 | 0 | 1991 | 470.0 |
| | OWC | OPEN WOOD PORCH W/STEPS/ROOF/C | 3 | 0 | 1991 | 260.0 |
Sketch
Property Image
Land
| 1 | 17 | AC (01.01-02.00) | 0.0000 | 0.00 | 0.00 | 0.00 | 1.00 | $305,000 | $0 |
Roll Value History
| 2026 | N/A | N/A | N/A | N/A | N/A |
| 2025 | $373,970 | $305,000 | $0 | $678,970 | $678,970 |
| 2024 | $378,631 | $290,000 | $0 | $668,631 | $668,631 |
| 2023 | $383,292 | $290,000 | $0 | $673,292 | $673,292 |
| 2022 | $330,171 | $260,000 | $0 | $590,171 | $590,171 |
| 2021 | $290,796 | $230,000 | $0 | $520,796 | $520,796 |
| 2020 | $283,449 | $150,000 | $0 | $433,449 | $433,449 |
| 2019 | $217,315 | $180,000 | $0 | $397,315 | $397,315 |
| 2018 | $217,984 | $150,000 | $0 | $367,984 | $367,984 |
| 2017 | $219,321 | $120,000 | $0 | $339,321 | $339,321 |
| 2016 | $213,175 | $100,000 | $0 | $313,175 | $313,175 |
| 2015 | $216,018 | $100,000 | $0 | $316,018 | $316,018 |
| 2014 | $218,860 | $69,192 | $0 | $288,052 | $288,052 |
| 2013 | $221,701 | $69,192 | $0 | $290,893 | $290,893 |
| 2012 | $224,544 | $69,192 | $0 | $293,736 | $293,736 |
| 2011 | $227,386 | $86,490 | $0 | $313,876 | $313,876 |
| 2010 | $233,174 | $86,490 | $0 | $319,664 | $319,664 |
| 2009 | $243,259 | $100,000 | $0 | $343,259 | $343,259 |
| 2008 | $246,150 | $117,600 | $0 | $363,750 | $363,750 |
| 2007 | $0 | $0 | $0 | $319,742 | $319,742 |
Deed and Sales History
| 1 | 01/01/1900 | OTHER | Other - Misc. Documents | Unknown | CLEARY, MARK R | | | $0.00 | 0 | 0 |
Payout Agreement
| No payout information available.. |