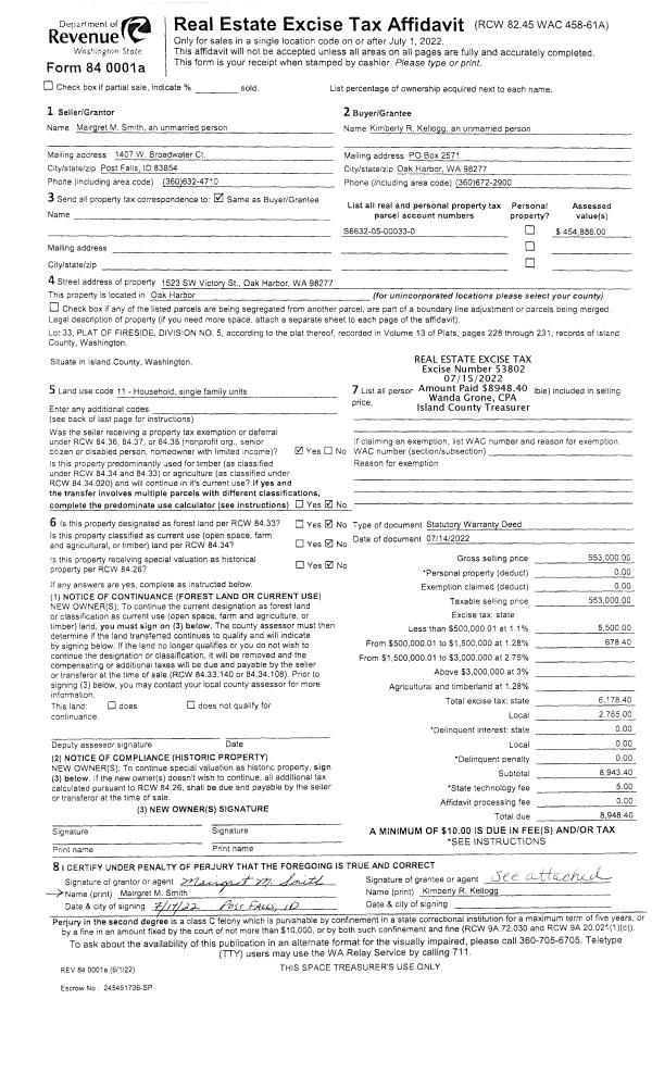
Property
Account |
| Property ID: | 808519 | Abbreviated Legal Description: | LOT 2 SP 438-06.33129.015-2540 & 6250.18.27001-0 AF# 4208998 |
| Geographic ID: | R33129-027-2530 | Agent Code: | |
| Type: | Real | | |
| Tax Area: | 510 - APPRAISER-Stan/Cam Schl Dist, improved & 1 acre or less | Land Use Code | 11 |
| Open Space: | N | DFL | N |
| Historic Property: | N | Remodel Property: | N |
| Multi-Family Redevelopment: | N | | |
| Township: | 31 | Section: | 29 |
| Range: | R3 |
Location |
| Address: | 1978 EAST CAMANO DR CAMANO ISLAND, WA 98282 | Mapsco: | |
| Neighborhood: | Cycle 5 | Map ID: | 933 |
| Neighborhood CD: | 5 |
Owner |
| Name: | ANGELL, COLBY D | Owner ID: | 296303 |
| Mailing Address: | SARAH K ANGELL 1978 SE CAMANO DR CAMANO ISLAND, WA 98282 | % Ownership: | 100.0000000000% |
| | | Exemptions: | |
Taxes and Assessment Details
Values
| (+) Improvement Homesite Value: | + | $0 | |
| (+) Improvement Non-Homesite Value: | + | $421,020 | |
| (+) Land Homesite Value: | + | $0 | |
| (+) Land Non-Homesite Value: | + | $240,000 | |
| (+) Curr Use (HS): | + | $0 | $0 |
| (+) Curr Use (NHS): | + | $0 | $0 |
| | | -------------------------- | |
| (=) Market Value: | = | $661,020 | |
| (–) Productivity Loss: | – | $0 | |
| | | -------------------------- | |
| (=) Subtotal: | = | $661,020 | |
| (+) Senior Appraised Value: | + | $0 | |
| (+) Non-Senior Appraised Value: | + | $661,020 | |
| | | -------------------------- | |
| (=) Total Appraised Value: | = | $661,020 | |
| (–) Senior Exemption Loss: | – | $0 | |
| (–) Exemption Loss: | – | $0 | |
| | | -------------------------- | |
| (=) Taxable Value: | = | $661,020 | |
Taxing Jurisdiction
| Owner: | ANGELL, COLBY D | | |
| % Ownership: | 100.0000000000% | | |
| Total Value: | $661,020 | | |
| Tax Area: | 510 - APPRAISER-Stan/Cam Schl Dist, improved & 1 acre or less |
| CF | Conservation Futures | 0.0316035091 | $661,020 | $661,020 | $20.89 | | |
| EMS1 | Fire & Rescue Dist #1 Camano GEN (EMS) | 0.3677864386 | $661,020 | $661,020 | $243.11 | | |
| FIRE1 | Fire & Rescue Dist #1 Camano GEN | 1.2502910536 | $661,020 | $661,020 | $826.47 | | |
| FIRE1BOND | Fire & Rescue Dist #1 Camano BOND | 0.1570001679 | $661,020 | $661,020 | $103.78 | | |
| CE | County Current Expense | 0.3708482477 | $661,020 | $661,020 | $245.14 | | |
| CR | County Roads | 0.4584763726 | $661,020 | $661,020 | $303.06 | | |
| LCIB | Library Sno-Isle BOND (Camano Island) | 0.0396325772 | $661,020 | $661,020 | $26.20 | | |
| LIB | Library Sno-Isle GEN | 0.3153421757 | $661,020 | $661,020 | $208.45 | | |
| SCH205_401 | School 205-401 Enrichment | 1.2698420524 | $661,020 | $661,020 | $839.39 | | |
| SCH205BOND | School 205-401 BOND | 0.9396497583 | $661,020 | $661,020 | $621.13 | | |
| ST | State School | 1.3035497053 | $661,020 | $661,020 | $861.67 | | |
| ST2 | State School Part 2 | 0.8169543533 | $661,020 | $661,020 | $540.02 | | |
| | Total Tax Rate: | 7.3209764117 | | | | | |
| | | | | Taxes w/Current Exemptions: | $4,839.31 | | |
| | | | | Taxes w/o Exemptions: | $4,839.31 | | |
Improvement / Building
| Improvement #1: | RESIDENTIAL | State Code: | Y | 1716.0 sqft | Value: | $421,020 |
| Bathrooms: | 2 | Bedrooms: | 3 | | Ceiling: | DRYWALL PAINTED | Cooling: | HEAT PUMP/CONV/V | | Exterior Wall/Cover: | CEMENT FIBER | Floor Covering: | CARPET/VINYL 20-80 | | Floor Structure: | WOOD W/SUBFLOOR | Foundation: | CONCRETE | | Interior Finish: | DRYWALL PAINT | Plumbing Fixture Cnt: | 10 | | Roof Slope: | 6" IN 12" | Roof Structure/Cover: | CJ ASPHALT |
|
| | Type | Description | Class CD | Sub Class CD | Year Built | Area |
| | BAS | BASE/MAIN FLOOR | 3 | 0 | 2020 | 1716.0 |
| | AGR | ATTACHED GARAGE | 3 | 0 | 2020 | 576.0 |
| | OP4 | OPEN PORCH W/CEILING-ROOF | 3 | 0 | 2020 | 24.0 |
| | DGR | DETACHED GARAGE | 3 | 0 | 2020 | 1040.0 |
Sketch
Property Image
Land
| 1 | 15 | SQ (12001-21780) | 0.0000 | 0.00 | 0.00 | 0.00 | 1.00 | $240,000 | $0 |
Roll Value History
| 2026 | N/A | N/A | N/A | N/A | N/A |
| 2025 | $421,020 | $240,000 | $0 | $661,020 | $661,020 |
| 2024 | $424,388 | $220,000 | $0 | $644,388 | $644,388 |
| 2023 | $427,756 | $210,000 | $0 | $637,756 | $637,756 |
| 2022 | $383,285 | $210,000 | $0 | $593,285 | $593,285 |
| 2021 | $298,567 | $150,000 | $0 | $448,567 | $448,567 |
| 2020 | $293,421 | $80,000 | $0 | $373,421 | $373,421 |
| 2019 | $0 | $80,000 | $0 | $80,000 | $80,000 |
| 2018 | $0 | $70,000 | $0 | $70,000 | $70,000 |
| 2017 | $0 | $70,000 | $0 | $70,000 | $70,000 |
| 2016 | $0 | $45,000 | $0 | $45,000 | $45,000 |
| 2015 | $0 | $50,000 | $0 | $50,000 | $50,000 |
| 2014 | $0 | $50,000 | $0 | $50,000 | $50,000 |
| 2013 | $0 | $53,120 | $0 | $53,120 | $53,120 |
| 2012 | $0 | $53,120 | $0 | $53,120 | $53,120 |
| 2011 | $0 | $53,120 | $0 | $53,120 | $53,120 |
| 2010 | $0 | $53,120 | $0 | $53,120 | $53,120 |
| 2009 | $0 | $80,000 | $0 | $80,000 | $80,000 |
| 2008 | $0 | $80,000 | $0 | $80,000 | $80,000 |
| 2007 | $0 | $0 | $0 | $37,729 | $37,729 |
Deed and Sales History
| 1 | 09/23/2020 | WD | Warranty Deed | HOSKINS, JEREMY | ANGELL, COLBY D | | | $500,000.00 | 44973 | 4497985 |
| 2 | 12/18/2019 | WD | Warranty Deed | PALMER, MARK L | HOSKINS, JEREMY | | | $77,500.00 | 41577 | 4478030 |
| 3 | 01/01/1900 | OTHER | Other - Misc. Documents | Unknown | PALMER, MARK L | | | $0.00 | 0 | 0 |
Payout Agreement
| No payout information available.. |