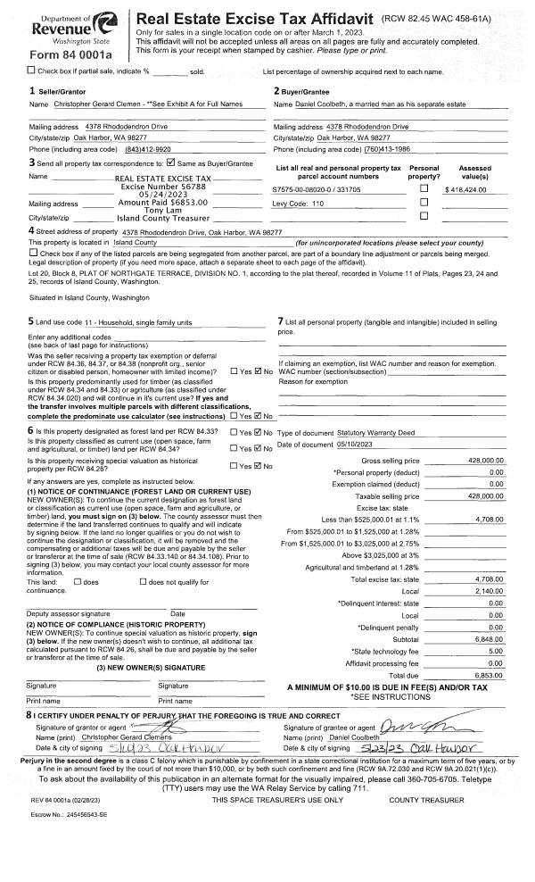
Property
Account |
| Property ID: | 808581 | Abbreviated Legal Description: | LOT 1 SP 457-05.23223.062-4940 V4 SP P213 & 214 AF# 4192687 AMENDED V4 SP P217-218 AF#4193597 |
| Geographic ID: | R23223-110-4950 | Agent Code: | |
| Type: | Real | | |
| Tax Area: | 519 - APPRAISER-Stan/Cam Schl Dist, vacant & 50 acres or less | Land Use Code | 91 |
| Open Space: | N | DFL | N |
| Historic Property: | N | Remodel Property: | N |
| Multi-Family Redevelopment: | N | | |
| Township: | 32 | Section: | 23 |
| Range: | R2 |
Location |
| Address: | 887 BIG SKY LN CAMANO ISLAND, WA 98282 | Mapsco: | |
| Neighborhood: | North Camano | Map ID: | 555 |
| Neighborhood CD: | 06-C |
Owner |
| Name: | WITHERS, JAYSON W | Owner ID: | 306916 |
| Mailing Address: | TONYA L. WITHERS PO BOX 1557 STANWOOD, WA 98292 | % Ownership: | 100.0000000000% |
| | | Exemptions: | |
Taxes and Assessment Details
Values
| (+) Improvement Homesite Value: | + | $0 | |
| (+) Improvement Non-Homesite Value: | + | $0 | |
| (+) Land Homesite Value: | + | $0 | |
| (+) Land Non-Homesite Value: | + | $260,000 | |
| (+) Curr Use (HS): | + | $0 | $0 |
| (+) Curr Use (NHS): | + | $0 | $0 |
| | | -------------------------- | |
| (=) Market Value: | = | $260,000 | |
| (–) Productivity Loss: | – | $0 | |
| | | -------------------------- | |
| (=) Subtotal: | = | $260,000 | |
| (+) Senior Appraised Value: | + | $0 | |
| (+) Non-Senior Appraised Value: | + | $260,000 | |
| | | -------------------------- | |
| (=) Total Appraised Value: | = | $260,000 | |
| (–) Senior Exemption Loss: | – | $0 | |
| (–) Exemption Loss: | – | $0 | |
| | | -------------------------- | |
| (=) Taxable Value: | = | $260,000 | |
Taxing Jurisdiction
| Owner: | WITHERS, JAYSON W | | |
| % Ownership: | 100.0000000000% | | |
| Total Value: | $260,000 | | |
| Tax Area: | 519 - APPRAISER-Stan/Cam Schl Dist, vacant & 50 acres or less |
| CF | Conservation Futures | 0.0316035091 | $260,000 | $260,000 | $8.22 | | |
| EMS1 | Fire & Rescue Dist #1 Camano GEN (EMS) | 0.3677864386 | $260,000 | $260,000 | $95.62 | | |
| CE | County Current Expense | 0.3708482477 | $260,000 | $260,000 | $96.42 | | |
| CR | County Roads | 0.4584763726 | $260,000 | $260,000 | $119.20 | | |
| LCIB | Library Sno-Isle BOND (Camano Island) | 0.0396325772 | $260,000 | $260,000 | $10.30 | | |
| LIB | Library Sno-Isle GEN | 0.3153421757 | $260,000 | $260,000 | $81.99 | | |
| SCH205_401 | School 205-401 Enrichment | 1.2698420524 | $260,000 | $260,000 | $330.16 | | |
| SCH205BOND | School 205-401 BOND | 0.9396497583 | $260,000 | $260,000 | $244.31 | | |
| ST | State School | 1.3035497053 | $260,000 | $260,000 | $338.92 | | |
| ST2 | State School Part 2 | 0.8169543533 | $260,000 | $260,000 | $212.41 | | |
| | Total Tax Rate: | 5.9136851902 | | | | | |
| | | | | Taxes w/Current Exemptions: | $1,537.55 | | |
| | | | | Taxes w/o Exemptions: | $1,537.55 | | |
Improvement / Building
Sketch
| No sketches available for this property. |
Property Image
Land
| 1 | 32 | AC (03.01-09.99) | 4.4000 | 0.00 | 0.00 | 0.00 | 1.00 | $260,000 | $0 |
Roll Value History
| 2026 | N/A | N/A | N/A | N/A | N/A |
| 2025 | $0 | $260,000 | $0 | $260,000 | $260,000 |
| 2024 | $0 | $240,000 | $0 | $240,000 | $240,000 |
| 2023 | $0 | $200,000 | $0 | $200,000 | $200,000 |
| 2022 | $0 | $180,000 | $0 | $180,000 | $180,000 |
| 2021 | $0 | $130,000 | $0 | $130,000 | $130,000 |
| 2020 | $0 | $130,000 | $0 | $130,000 | $130,000 |
| 2019 | $0 | $140,000 | $0 | $140,000 | $140,000 |
| 2018 | $0 | $120,000 | $0 | $120,000 | $120,000 |
| 2017 | $0 | $90,000 | $0 | $90,000 | $90,000 |
| 2016 | $0 | $90,000 | $0 | $90,000 | $90,000 |
| 2015 | $0 | $88,000 | $0 | $88,000 | $88,000 |
| 2014 | $0 | $88,000 | $0 | $88,000 | $88,000 |
| 2013 | $0 | $106,920 | $0 | $106,920 | $106,920 |
| 2012 | $0 | $106,920 | $0 | $106,920 | $106,920 |
| 2011 | $0 | $106,920 | $0 | $106,920 | $106,920 |
| 2010 | $0 | $106,920 | $0 | $106,920 | $106,920 |
| 2009 | $0 | $132,000 | $0 | $132,000 | $132,000 |
| 2008 | $0 | $145,200 | $0 | $145,200 | $145,200 |
| 2007 | $0 | $0 | $0 | $114,340 | $114,340 |
Deed and Sales History
| 1 | 08/29/2022 | WD | Warranty Deed | HALMANS, JEROME R | WITHERS, JAYSON W | | | $650,000.00 | 54390 | 4550572 |
|   | |
| 2 | 10/31/2012 | WD | Warranty Deed | WILLIAMS, R SCOTT | HALMANS, JEROME R | | | $239,150.00 | 9360 | 4326579 |
|   | |
| 3 | 06/29/2011 | WD | Warranty Deed | WAX, LARRY D & DELOY L | WILLIAMS, R SCOTT | | | $82,142.00 | 4848 | 4297421 |
| 4 | 01/01/1900 | OTHER | Other - Misc. Documents | Unknown | WAX, LARRY D & DELOY L | | | $0.00 | 0 | 0 |
Payout Agreement
| No payout information available.. |