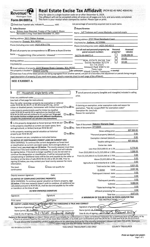
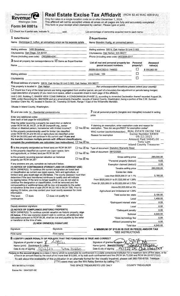
Property
Account |
| Property ID: | 808646 | Abbreviated Legal Description: | LOT 2 SP 261-04.23235.097-3600 V4 SP P225 & 226 AF# 4196304 |
| Geographic ID: | R23235-097-3800 | Agent Code: | |
| Type: | Real | | |
| Tax Area: | 512 - APPRAISER-Stan/Cam Schl Dist, improved, greater than 1 acre | Land Use Code | 11 |
| Open Space: | N | DFL | N |
| Historic Property: | N | Remodel Property: | N |
| Multi-Family Redevelopment: | N | | |
| Township: | 32 | Section: | 35 |
| Range: | R2 |
Location |
| Address: | 38 GILBERTSON RD CAMANO ISLAND, WA 98282 | Mapsco: | |
| Neighborhood: | North Camano | Map ID: | 576 |
| Neighborhood CD: | 06-C |
Owner |
| Name: | BERAN, WALTER A | Owner ID: | 313693 |
| Mailing Address: | ANGELA K BERAN 38 CHICK RD CAMANO ISLAND, WA 98282 | % Ownership: | 100.0000000000% |
| | | Exemptions: | |
Taxes and Assessment Details
Values
| (+) Improvement Homesite Value: | + | $0 | |
| (+) Improvement Non-Homesite Value: | + | $52,838 | |
| (+) Land Homesite Value: | + | $0 | |
| (+) Land Non-Homesite Value: | + | $260,000 | |
| (+) Curr Use (HS): | + | $0 | $0 |
| (+) Curr Use (NHS): | + | $0 | $0 |
| | | -------------------------- | |
| (=) Market Value: | = | $312,838 | |
| (–) Productivity Loss: | – | $0 | |
| | | -------------------------- | |
| (=) Subtotal: | = | $312,838 | |
| (+) Senior Appraised Value: | + | $0 | |
| (+) Non-Senior Appraised Value: | + | $312,838 | |
| | | -------------------------- | |
| (=) Total Appraised Value: | = | $312,838 | |
| (–) Senior Exemption Loss: | – | $0 | |
| (–) Exemption Loss: | – | $0 | |
| | | -------------------------- | |
| (=) Taxable Value: | = | $312,838 | |
Taxing Jurisdiction
| Owner: | BERAN, WALTER A | | |
| % Ownership: | 100.0000000000% | | |
| Total Value: | $312,838 | | |
| Tax Area: | 512 - APPRAISER-Stan/Cam Schl Dist, improved, greater than 1 acre |
| CF | Conservation Futures | 0.0316035091 | $312,838 | $312,838 | $9.89 | | |
| EMS1 | Fire & Rescue Dist #1 Camano GEN (EMS) | 0.3677864386 | $312,838 | $312,838 | $115.06 | | |
| FIRE1 | Fire & Rescue Dist #1 Camano GEN | 1.2502910536 | $312,838 | $312,838 | $391.14 | | |
| FIRE1BOND | Fire & Rescue Dist #1 Camano BOND | 0.1570001679 | $312,838 | $312,838 | $49.12 | | |
| CE | County Current Expense | 0.3708482477 | $312,838 | $312,838 | $116.02 | | |
| CR | County Roads | 0.4584763726 | $312,838 | $312,838 | $143.43 | | |
| LCIB | Library Sno-Isle BOND (Camano Island) | 0.0396325772 | $312,838 | $312,838 | $12.40 | | |
| LIB | Library Sno-Isle GEN | 0.3153421757 | $312,838 | $312,838 | $98.65 | | |
| SCH205_401 | School 205-401 Enrichment | 1.2698420524 | $312,838 | $312,838 | $397.25 | | |
| SCH205BOND | School 205-401 BOND | 0.9396497583 | $312,838 | $312,838 | $293.96 | | |
| ST | State School | 1.3035497053 | $312,838 | $312,838 | $407.80 | | |
| ST2 | State School Part 2 | 0.8169543533 | $312,838 | $312,838 | $255.57 | | |
| | Total Tax Rate: | 7.3209764117 | | | | | |
| | | | | Taxes w/Current Exemptions: | $2,290.29 | | |
| | | | | Taxes w/o Exemptions: | $2,290.29 | | |
Improvement / Building
| Improvement #1: | RESIDENTIAL | State Code: | Y | 0.0 sqft | Value: | $52,838 |
| | Type | Description | Class CD | Sub Class CD | Year Built | Area |
| | oCB2 | CABIN FIN | 3 | 0 | 2011 | 216.0 |
| | oUTI | UTILITY | 3 | 0 | 2011 | 219.2 |
| | oOP2 | SLAB/STEPS | 3 | | 2011 | 969.0 |
| | oCAR | CARPORT | 3 | | 2011 | 280.0 |
| | oSEP | SEPTIC | 3 | 0 | 2011 | 0.0 |
| | oUTI | UTILITY | 3 | 0 | 2011 | 80.0 |
Sketch
| No sketches available for this property. |
Property Image
Land
| 1 | 32 | AC (03.01-09.99) | 4.1700 | 0.00 | 0.00 | 0.00 | 1.00 | $260,000 | $0 |
Roll Value History
| 2026 | N/A | N/A | N/A | N/A | N/A |
| 2025 | $52,838 | $260,000 | $0 | $312,838 | $312,838 |
| 2024 | $4,160 | $240,000 | $0 | $244,160 | $244,160 |
| 2023 | $4,160 | $200,000 | $0 | $204,160 | $204,160 |
| 2022 | $4,160 | $180,000 | $0 | $184,160 | $184,160 |
| 2021 | $4,160 | $130,000 | $0 | $134,160 | $134,160 |
| 2020 | $4,160 | $130,000 | $0 | $134,160 | $134,160 |
| 2019 | $4,160 | $140,000 | $0 | $144,160 | $144,160 |
| 2018 | $4,160 | $120,000 | $0 | $124,160 | $124,160 |
| 2017 | $4,160 | $90,000 | $0 | $94,160 | $94,160 |
| 2016 | $0 | $90,000 | $0 | $90,000 | $90,000 |
| 2015 | $0 | $80,064 | $0 | $80,064 | $80,064 |
| 2014 | $0 | $80,064 | $0 | $80,064 | $80,064 |
| 2013 | $0 | $80,064 | $0 | $80,064 | $80,064 |
| 2012 | $0 | $80,064 | $0 | $80,064 | $80,064 |
| 2011 | $0 | $100,080 | $0 | $100,080 | $100,080 |
| 2010 | $0 | $100,080 | $0 | $100,080 | $100,080 |
| 2009 | $0 | $137,610 | $0 | $137,610 | $137,610 |
| 2008 | $0 | $137,610 | $0 | $137,610 | $137,610 |
| 2007 | $0 | $0 | $0 | $75,033 | $75,033 |
Deed and Sales History
| 1 | 08/27/2024 | WD | Warranty Deed | POLLOCK, GARY | BERAN, WALTER A | | | $360,000.00 | 61100 | 4576389 |
| 2 | 08/27/2010 | WD | Warranty Deed | LLOYD, JASON T | POLLOCK, GARY | | | $75,000.00 | 2206 | 4280344 |
| 3 | 06/11/2007 | WD | Warranty Deed | GREEN, WILLIAM L | LLOYD, JASON T | | | $180,000.00 | 72001 | 4204745 |
| 4 | 06/10/2007 | WD | Warranty Deed | LLOYD, JASON T | LLOYD, JASON T | | | $0.00 | 72429 | 4207335 |
| 5 | 01/01/1900 | OTHER | Other - Misc. Documents | Unknown | GREEN, WILLIAM L | | | $0.00 | 0 | 0 |
Payout Agreement
| No payout information available.. |