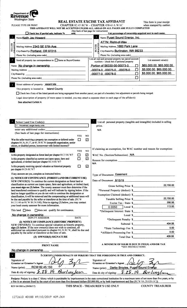
Property
Account |
| Property ID: | 808653 | Abbreviated Legal Description: | LOT 2 SP 303-05.13113.212-0650 AF# 4215611 |
| Geographic ID: | R13113-212-0750 | Agent Code: | |
| Type: | Real | | |
| Tax Area: | 312 - APPRAISER-Cpvl Schl Dist, outside Cpvl, improved, greater than 1 acre | Land Use Code | 11 |
| Open Space: | N | DFL | N |
| Historic Property: | N | Remodel Property: | N |
| Multi-Family Redevelopment: | N | | |
| Township: | 31 | Section: | 13 |
| Range: | R1 |
Location |
| Address: | 15151 SR 2O COUPEVILLE, WA 98239 | Mapsco: | |
| Neighborhood: | Cycle 2 | Map ID: | 58 |
| Neighborhood CD: | 2 |
Owner |
| Name: | FELLRATH, CLIFFORD E | Owner ID: | 267305 |
| Mailing Address: | KRISTINE FELLRATH 15151 SR 20 COUPEVILLE, WA 98239-4525 | % Ownership: | 100.0000000000% |
| | | Exemptions: | |
Taxes and Assessment Details
Values
| (+) Improvement Homesite Value: | + | $0 | |
| (+) Improvement Non-Homesite Value: | + | $692,235 | |
| (+) Land Homesite Value: | + | $0 | |
| (+) Land Non-Homesite Value: | + | $375,961 | |
| (+) Curr Use (HS): | + | $0 | $0 |
| (+) Curr Use (NHS): | + | $0 | $0 |
| | | -------------------------- | |
| (=) Market Value: | = | $1,068,196 | |
| (–) Productivity Loss: | – | $0 | |
| | | -------------------------- | |
| (=) Subtotal: | = | $1,068,196 | |
| (+) Senior Appraised Value: | + | $0 | |
| (+) Non-Senior Appraised Value: | + | $1,068,196 | |
| | | -------------------------- | |
| (=) Total Appraised Value: | = | $1,068,196 | |
| (–) Senior Exemption Loss: | – | $0 | |
| (–) Exemption Loss: | – | $0 | |
| | | -------------------------- | |
| (=) Taxable Value: | = | $1,068,196 | |
Taxing Jurisdiction
| Owner: | FELLRATH, CLIFFORD E | | |
| % Ownership: | 100.0000000000% | | |
| Total Value: | $1,068,196 | | |
| Tax Area: | 312 - APPRAISER-Cpvl Schl Dist, outside Cpvl, improved, greater than 1 acre |
| CF | Conservation Futures | 0.0316035091 | $1,068,196 | $1,068,196 | $33.76 | | |
| CEM2 | Cemetery #2 | 0.0095056933 | $1,068,196 | $1,068,196 | $10.15 | | |
| FIRE5 | Fire & Rescue Dist #5 C Whidbey GEN | 1.2008080668 | $1,068,196 | $1,068,196 | $1,282.70 | | |
| FIRE5BOND | Fire & Rescue Dist #5 C Whidbey BOND | 0.1400090713 | $1,068,196 | $1,068,196 | $149.56 | | |
| HOBOND | Hospital BOND | 0.1910887512 | $1,068,196 | $1,068,196 | $204.12 | | |
| HOGEN | Hospital GEN | 0.3902502903 | $1,068,196 | $1,068,196 | $416.86 | | |
| CE | County Current Expense | 0.3708482477 | $1,068,196 | $1,068,196 | $396.14 | | |
| CR | County Roads | 0.4584763726 | $1,068,196 | $1,068,196 | $489.74 | | |
| ISLANDEMS | Hospital GEN (EMS) | 0.5000000000 | $1,068,196 | $1,068,196 | $534.10 | | |
| LIB | Library Sno-Isle GEN | 0.3153421757 | $1,068,196 | $1,068,196 | $336.85 | | |
| LIBCAP | Library Sno-Isle BOND (Cap Fac Imp Area) | 0.0543427938 | $1,068,196 | $1,068,196 | $58.05 | | |
| POCOUP | Port of Coupeville GEN | 0.1093371703 | $1,068,196 | $1,068,196 | $116.79 | | |
| POCOUPIDD | Port of Coupeville IDD | 0.3409740022 | $1,068,196 | $1,068,196 | $364.23 | | |
| COUPSDTECH | School 204 CP (TECH) | 0.7545480007 | $1,068,196 | $1,068,196 | $806.01 | | |
| SCH204MO | School 204 Enrichment | 0.6716186034 | $1,068,196 | $1,068,196 | $717.42 | | |
| ST | State School | 1.3035497053 | $1,068,196 | $1,068,196 | $1,392.45 | | |
| ST2 | State School Part 2 | 0.8169543533 | $1,068,196 | $1,068,196 | $872.67 | | |
| | Total Tax Rate: | 7.6592568070 | | | | | |
| | | | | Taxes w/Current Exemptions: | $8,181.60 | | |
| | | | | Taxes w/o Exemptions: | $8,181.60 | | |
Improvement / Building
| Improvement #1: | RESIDENTIAL | State Code: | Y | 2757.0 sqft | Value: | $692,235 |
| Bathrooms: | 2.5 | Bedrooms: | 3 | | Ceiling: | DRYWALL PAINTED | Exterior Wall/Cover: | CEMENT FIBER | | Floor Covering: | CERAMIC TILE/HWD 40/60 | Floor Structure: | WOOD W/SUBFLOOR | | Foundation: | CONCRETE | Heating: | RADIANT FLOOR | | Interior Finish: | DRYWALL PAINT | Plumbing Fixture Cnt: | 14 | | Roof Slope: | 5" IN 12" | Roof Structure/Cover: | CJ ASPHALT |
|
| | Type | Description | Class CD | Sub Class CD | Year Built | Area |
| | BAS | BASE/MAIN FLOOR | 5 | 0 | 2006 | 2757.0 |
| | OWC | OPEN WOOD PORCH W/STEPS/ROOF/C | 5 | 0 | 2006 | 252.0 |
| | OP4 | OPEN PORCH W/CEILING-ROOF | 5 | 0 | 2006 | 96.0 |
| | AGR | ATTACHED GARAGE | 5 | 0 | 2006 | 816.0 |
| | OWP | OPEN WOOD PORCH W/STEPS | 5 | 0 | 2006 | 448.0 |
Sketch
Property Image
Land
| 1 | HS | HOMESITE | 1.0000 | 43560.00 | 0.00 | 0.00 | 1.00 | $340,000 | $0 |
| 2 | 91 | UNDEVELOPED LAND-METES AND BOUNDS | 4.7800 | 208216.80 | 0.00 | 0.00 | 1.00 | $35,961 | $0 |
Roll Value History
| 2026 | N/A | N/A | N/A | N/A | N/A |
| 2025 | $692,235 | $375,961 | $0 | $1,068,196 | $1,068,196 |
| 2024 | $668,433 | $360,000 | $0 | $1,028,433 | $1,028,433 |
| 2023 | $676,367 | $350,000 | $0 | $1,026,367 | $1,026,367 |
| 2022 | $619,636 | $310,000 | $0 | $929,636 | $929,636 |
| 2021 | $545,083 | $260,000 | $0 | $805,083 | $805,083 |
| 2020 | $530,961 | $240,000 | $0 | $770,961 | $770,961 |
| 2019 | $429,650 | $250,000 | $0 | $679,650 | $679,650 |
| 2018 | $414,441 | $250,000 | $0 | $664,441 | $664,441 |
| 2017 | $416,809 | $250,000 | $0 | $666,809 | $666,809 |
| 2016 | $421,544 | $250,000 | $0 | $671,544 | $671,544 |
| 2015 | $426,282 | $260,100 | $0 | $686,382 | $686,382 |
| 2014 | $431,018 | $260,100 | $0 | $691,118 | $691,118 |
| 2013 | $435,754 | $260,100 | $0 | $695,854 | $695,854 |
| 2012 | $446,086 | $260,100 | $0 | $706,186 | $706,186 |
| 2011 | $450,692 | $289,000 | $0 | $739,692 | $739,692 |
| 2010 | $454,983 | $289,000 | $0 | $743,983 | $743,983 |
| 2009 | $474,371 | $317,900 | $0 | $792,271 | $792,271 |
| 2008 | $480,097 | $317,900 | $0 | $797,997 | $797,997 |
| 2007 | $0 | $0 | $0 | $683,599 | $683,599 |
Deed and Sales History
| 1 | 07/23/2014 | WD | Warranty Deed | JACOBS, MARSHA | FELLRATH, CLIFFORD E | | | $775,000.00 | 16175 | 4362982 |
| 2 | 01/01/1900 | OTHER | Other - Misc. Documents | Unknown | JACOBS, MARSHA | | | $0.00 | 0 | 0 |
Payout Agreement
| No payout information available.. |