Property
Account |
| Property ID: | 808660 | Abbreviated Legal Description: | LOT 2 SP 156-02.23132.439-1640 V4 SP P224 AF# 4194720 |
| Geographic ID: | R23132-423-1680 | Agent Code: | |
| Type: | Real | | |
| Tax Area: | 312 - APPRAISER-Cpvl Schl Dist, outside Cpvl, improved, greater than 1 acre | Land Use Code | 11 |
| Open Space: | N | DFL | N |
| Historic Property: | N | Remodel Property: | N |
| Multi-Family Redevelopment: | N | | |
| Township: | 31 | Section: | 32 |
| Range: | R2 |
Location |
| Address: | 600 ISLAND RIDGE WAY COUPEVILLE, WA 98239 | Mapsco: | |
| Neighborhood: | Cycle 2 | Map ID: | 528 |
| Neighborhood CD: | 2 |
Owner |
| Name: | TRAUTT, JOSEPH P | Owner ID: | 279787 |
| Mailing Address: | CATHERINE M TRAUTT 600 ISLAND RIDGE WAY COUPEVILLE, WA 98239 | % Ownership: | 100.0000000000% |
| | | Exemptions: | |
Taxes and Assessment Details
Values
| (+) Improvement Homesite Value: | + | $0 | |
| (+) Improvement Non-Homesite Value: | + | $305,325 | |
| (+) Land Homesite Value: | + | $0 | |
| (+) Land Non-Homesite Value: | + | $340,148 | |
| (+) Curr Use (HS): | + | $0 | $0 |
| (+) Curr Use (NHS): | + | $0 | $0 |
| | | -------------------------- | |
| (=) Market Value: | = | $645,473 | |
| (–) Productivity Loss: | – | $0 | |
| | | -------------------------- | |
| (=) Subtotal: | = | $645,473 | |
| (+) Senior Appraised Value: | + | $0 | |
| (+) Non-Senior Appraised Value: | + | $645,473 | |
| | | -------------------------- | |
| (=) Total Appraised Value: | = | $645,473 | |
| (–) Senior Exemption Loss: | – | $0 | |
| (–) Exemption Loss: | – | $0 | |
| | | -------------------------- | |
| (=) Taxable Value: | = | $645,473 | |
Taxing Jurisdiction
| Owner: | TRAUTT, JOSEPH P | | |
| % Ownership: | 100.0000000000% | | |
| Total Value: | $645,473 | | |
| Tax Area: | 312 - APPRAISER-Cpvl Schl Dist, outside Cpvl, improved, greater than 1 acre |
| CF | Conservation Futures | 0.0316035091 | $645,473 | $645,473 | $20.40 | | |
| CEM2 | Cemetery #2 | 0.0095056933 | $645,473 | $645,473 | $6.14 | | |
| FIRE5 | Fire & Rescue Dist #5 C Whidbey GEN | 1.2008080668 | $645,473 | $645,473 | $775.09 | | |
| FIRE5BOND | Fire & Rescue Dist #5 C Whidbey BOND | 0.1400090713 | $645,473 | $645,473 | $90.37 | | |
| HOBOND | Hospital BOND | 0.1910887512 | $645,473 | $645,473 | $123.34 | | |
| HOGEN | Hospital GEN | 0.3902502903 | $645,473 | $645,473 | $251.90 | | |
| CE | County Current Expense | 0.3708482477 | $645,473 | $645,473 | $239.37 | | |
| CR | County Roads | 0.4584763726 | $645,473 | $645,473 | $295.93 | | |
| ISLANDEMS | Hospital GEN (EMS) | 0.5000000000 | $645,473 | $645,473 | $322.74 | | |
| LIB | Library Sno-Isle GEN | 0.3153421757 | $645,473 | $645,473 | $203.54 | | |
| LIBCAP | Library Sno-Isle BOND (Cap Fac Imp Area) | 0.0543427938 | $645,473 | $645,473 | $35.08 | | |
| POCOUP | Port of Coupeville GEN | 0.1093371703 | $645,473 | $645,473 | $70.57 | | |
| POCOUPIDD | Port of Coupeville IDD | 0.3409740022 | $645,473 | $645,473 | $220.09 | | |
| COUPSDTECH | School 204 CP (TECH) | 0.7545480007 | $645,473 | $645,473 | $487.04 | | |
| SCH204MO | School 204 Enrichment | 0.6716186034 | $645,473 | $645,473 | $433.51 | | |
| ST | State School | 1.3035497053 | $645,473 | $645,473 | $841.41 | | |
| ST2 | State School Part 2 | 0.8169543533 | $645,473 | $645,473 | $527.32 | | |
| | Total Tax Rate: | 7.6592568070 | | | | | |
| | | | | Taxes w/Current Exemptions: | $4,943.84 | | |
| | | | | Taxes w/o Exemptions: | $4,943.84 | | |
Improvement / Building
| Improvement #1: | MANUFACTURED HOME | State Code: | Y | 2240.0 sqft | Value: | $305,325 |
| Bathrooms: | 1 | Bedrooms: | 2 | | Ceiling: | PLASTER PAINTED | Cooling: | EVAP NO DUCT | | Exterior Wall/Cover: | VINYL | Floor Covering: | CARPET 100% | | Floor Structure: | SLAB ON GRADE | Foundation: | SLAB | | Heating: | FHA ELECTRIC | Interior Finish: | PLASTER | | Plumbing Fixture Cnt: | 1 | Roof Slope: | FLAT | | Roof Structure/Cover: | CJ ALUMINIUM HEAVY |   |   |
|
| | Type | Description | Class CD | Sub Class CD | Year Built | Area |
| | BAS | BASE/MAIN FLOOR | 5 | 0 | 2018 | 2240.0 |
| | OWP | OPEN WOOD PORCH W/STEPS | 5 | 0 | 2018 | 48.0 |
| | OWP | OPEN WOOD PORCH W/STEPS | 5 | 0 | 2018 | 34.0 |
| | oPOL | POLE BARN | 4 | 0 | 2023 | 1200.0 |
Sketch
| No sketches available for this property. |
Property Image
Land
| 1 | HS | HOMESITE | 1.0000 | 43560.00 | 0.00 | 0.00 | 1.00 | $220,000 | $0 |
| 2 | 91 | UNDEVELOPED LAND-METES AND BOUNDS | 4.0300 | 175546.80 | 0.00 | 0.00 | 1.00 | $120,148 | $0 |
Roll Value History
| 2026 | N/A | N/A | N/A | N/A | N/A |
| 2025 | $305,325 | $340,148 | $0 | $645,473 | $645,473 |
| 2024 | $242,348 | $290,000 | $0 | $532,348 | $532,348 |
| 2023 | $215,224 | $280,000 | $0 | $495,224 | $495,224 |
| 2022 | $174,566 | $250,000 | $0 | $424,566 | $424,566 |
| 2021 | $153,369 | $170,000 | $0 | $323,369 | $323,369 |
| 2020 | $150,367 | $160,000 | $0 | $310,367 | $310,367 |
| 2019 | $165,197 | $125,000 | $0 | $290,197 | $290,197 |
| 2018 | $0 | $75,000 | $0 | $75,000 | $75,000 |
| 2017 | $0 | $75,000 | $0 | $75,000 | $75,000 |
| 2016 | $0 | $75,000 | $0 | $75,000 | $75,000 |
| 2015 | $0 | $85,510 | $0 | $85,510 | $85,510 |
| 2014 | $0 | $85,510 | $508 | $508 | $508 |
| 2013 | $0 | $85,510 | $508 | $508 | $508 |
| 2012 | $0 | $85,510 | $508 | $508 | $508 |
| 2011 | $0 | $100,600 | $508 | $508 | $508 |
| 2010 | $0 | $100,600 | $508 | $508 | $508 |
| 2009 | $0 | $105,630 | $508 | $508 | $508 |
| 2008 | $0 | $0 | $0 | $0 | $0 |
| 2007 | $0 | $100,600 | $508 | $508 | $508 |
Deed and Sales History
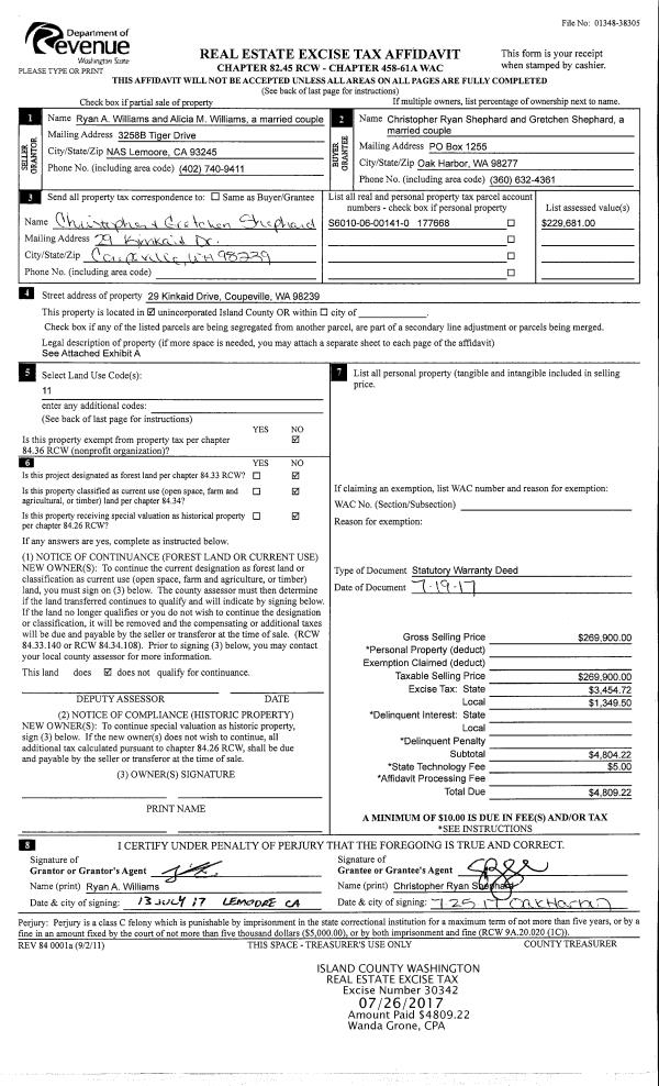
| 1 | 05/04/2017 | WD | Warranty Deed | LIVENGOOD ALSKOG PLLC | TRAUTT, JOSEPH P | | | $75,000.00 | 29192 | 4422089 |
| 2 | 07/16/2015 | DEEDINLIEU | Deed In Lieu Of Foreclosure | WALLACE, JAY | LIVENGOOD ALSKOG PLLC | | | $0.00 | 23028 | 4393537 |
| 3 | 01/01/1900 | OTHER | Other - Misc. Documents | Unknown | WALLACE, JAY | | | $0.00 | 0 | 0 |
Payout Agreement
| No payout information available.. |