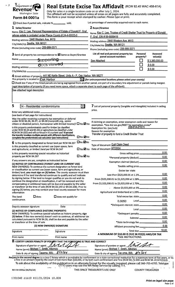
Property
Account |
| Property ID: | 808673 | Abbreviated Legal Description: | LOT 2 SP 278-07.23317.306-1900 AF# 4216572 |
| Geographic ID: | R23317-301-1870 | Agent Code: | |
| Type: | Real | | |
| Tax Area: | 112 - APPRAISER-OH Schl Dist, outside OH, improved, greater than 1 acre | Land Use Code | 11 |
| Open Space: | N | DFL | N |
| Historic Property: | N | Remodel Property: | N |
| Multi-Family Redevelopment: | N | | |
| Township: | 33 | Section: | 17 |
| Range: | R2 |
Location |
| Address: | 547 SAWMILL RD OAK HARBOR, WA 98277 | Mapsco: | |
| Neighborhood: | Cycle 6 | Map ID: | 602 |
| Neighborhood CD: | 6 |
Owner |
| Name: | BRAWNER, CHARLES M | Owner ID: | 315669 |
| Mailing Address: | DEBORAH M STICKNEY 547 SAWMILL RD OAK HARBOR, WA 98277 | % Ownership: | 100.0000000000% |
| | | Exemptions: | |
Taxes and Assessment Details
Values
| (+) Improvement Homesite Value: | + | $0 | |
| (+) Improvement Non-Homesite Value: | + | $535,029 | |
| (+) Land Homesite Value: | + | $0 | |
| (+) Land Non-Homesite Value: | + | $340,000 | |
| (+) Curr Use (HS): | + | $0 | $0 |
| (+) Curr Use (NHS): | + | $0 | $0 |
| | | -------------------------- | |
| (=) Market Value: | = | $875,029 | |
| (–) Productivity Loss: | – | $0 | |
| | | -------------------------- | |
| (=) Subtotal: | = | $875,029 | |
| (+) Senior Appraised Value: | + | $0 | |
| (+) Non-Senior Appraised Value: | + | $875,029 | |
| | | -------------------------- | |
| (=) Total Appraised Value: | = | $875,029 | |
| (–) Senior Exemption Loss: | – | $0 | |
| (–) Exemption Loss: | – | $0 | |
| | | -------------------------- | |
| (=) Taxable Value: | = | $875,029 | |
Taxing Jurisdiction
| Owner: | BRAWNER, CHARLES M | | |
| % Ownership: | 100.0000000000% | | |
| Total Value: | $875,029 | | |
| Tax Area: | 112 - APPRAISER-OH Schl Dist, outside OH, improved, greater than 1 acre |
| CF | Conservation Futures | 0.0316035091 | $875,029 | $875,029 | $27.65 | | |
| CEM1 | Cemetery #1 | 0.0040320932 | $875,029 | $875,029 | $3.53 | | |
| FIRE2 | Fire & Rescue Dist #2 N Whidbey GEN | 0.5475949600 | $875,029 | $875,029 | $479.16 | | |
| HOBOND | Hospital BOND | 0.1910887512 | $875,029 | $875,029 | $167.21 | | |
| HOGEN | Hospital GEN | 0.3902502903 | $875,029 | $875,029 | $341.48 | | |
| CE | County Current Expense | 0.3708482477 | $875,029 | $875,029 | $324.50 | | |
| CR | County Roads | 0.4584763726 | $875,029 | $875,029 | $401.18 | | |
| ISLANDEMS | Hospital GEN (EMS) | 0.5000000000 | $875,029 | $875,029 | $437.51 | | |
| LIB | Library Sno-Isle GEN | 0.3153421757 | $875,029 | $875,029 | $275.93 | | |
| NWHIDPRMT | P & R N Whidbey GEN | 0.2004466701 | $875,029 | $875,029 | $175.40 | | |
| SCH201MO | School 201 Enrichment | 1.8559231640 | $875,029 | $875,029 | $1,623.99 | | |
| ST | State School | 1.3035497053 | $875,029 | $875,029 | $1,140.64 | | |
| ST2 | State School Part 2 | 0.8169543533 | $875,029 | $875,029 | $714.86 | | |
| | Total Tax Rate: | 6.9861102925 | | | | | |
| | | | | Taxes w/Current Exemptions: | $6,113.04 | | |
| | | | | Taxes w/o Exemptions: | $6,113.04 | | |
Improvement / Building
| Improvement #1: | RESIDENTIAL | State Code: | Y | 2104.1 sqft | Value: | $535,029 |
| Bathrooms: | 2.75 | Bedrooms: | 4 | | Ceiling: | DRYWALL PAINTED | Exterior Wall/Cover: | CEMENT FIBER | | Floor Covering: | CARPET/VINYL 20-80 | Floor Structure: | WOOD W/SUBFLOOR | | Foundation: | CONCRETE | Heating: | FHA ELECTRIC | | Interior Finish: | DRYWALL PAINT | Plumbing Fixture Cnt: | 14 | | Roof Slope: | 4" IN 12" | Roof Structure/Cover: | CJ ASPHALT |
|
| | Type | Description | Class CD | Sub Class CD | Year Built | Area |
| | BAS | BASE/MAIN FLOOR | 4 | 0 | 2019 | 1526.0 |
| | UPS | UPPER STORY | 4 | 0 | 2019 | 578.1 |
| | AGR | ATTACHED GARAGE | 4 | 0 | 2019 | 936.0 |
| | OWP | OPEN WOOD PORCH W/STEPS | 4 | 0 | 2019 | 310.0 |
| | OWC | OPEN WOOD PORCH W/STEPS/ROOF/C | 4 | 0 | 2019 | 248.0 |
| | OWC | OPEN WOOD PORCH W/STEPS/ROOF/C | 4 | 0 | 2019 | 70.0 |
| | UTY | STORAGE/UTILITY | 4 | 0 | 2019 | 912.0 |
Sketch
Property Image
Land
| 1 | 32 | AC (03.01-09.99) | 4.9700 | 0.00 | 0.00 | 0.00 | 1.00 | $340,000 | $0 |
Roll Value History
| 2026 | N/A | N/A | N/A | N/A | N/A |
| 2025 | $535,029 | $340,000 | $0 | $875,029 | $875,029 |
| 2024 | $464,900 | $280,000 | $0 | $744,900 | $744,900 |
| 2023 | $468,590 | $270,000 | $0 | $738,590 | $738,590 |
| 2022 | $393,335 | $240,000 | $0 | $633,335 | $633,335 |
| 2021 | $348,250 | $175,000 | $0 | $523,250 | $523,250 |
| 2020 | $342,010 | $150,000 | $0 | $492,010 | $492,010 |
| 2019 | $5,000 | $90,000 | $0 | $95,000 | $95,000 |
| 2018 | $0 | $90,000 | $0 | $90,000 | $90,000 |
| 2017 | $0 | $80,000 | $0 | $80,000 | $80,000 |
| 2016 | $0 | $80,000 | $0 | $80,000 | $80,000 |
| 2015 | $0 | $60,000 | $0 | $60,000 | $60,000 |
| 2014 | $0 | $75,000 | $0 | $75,000 | $75,000 |
| 2013 | $0 | $64,610 | $0 | $64,610 | $64,610 |
| 2012 | $0 | $99,400 | $0 | $99,400 | $99,400 |
| 2011 | $0 | $99,400 | $0 | $99,400 | $99,400 |
| 2010 | $0 | $99,400 | $0 | $99,400 | $99,400 |
| 2009 | $0 | $114,310 | $0 | $114,310 | $114,310 |
| 2008 | $0 | $124,250 | $0 | $124,250 | $124,250 |
| 2007 | $0 | $0 | $0 | $84,500 | $84,500 |
Deed and Sales History
| 1 | 02/24/2025 | WD | Warranty Deed | ROBERTS, ERICK A | BRAWNER, CHARLES M | | | $915,000.00 | 62735 | 4582933 |
| 2 | 04/24/2020 | WD | Warranty Deed | S. ALBERT CONSTRUCTION, LLC | ROBERTS, ERICK A | | | $598,797.00 | 42881 | 4485797 |
| 3 | 10/23/2018 | WD | Warranty Deed | DARNELL, GREGORY W | S. ALBERT CONSTRUCTION, LLC | | | $100,000.00 | 36412 | 4453946 |
| 4 | 01/01/1900 | OTHER | Other - Misc. Documents | Unknown | DARNELL, GREGORY W | | | $0.00 | 0 | 0 |
Payout Agreement
| No payout information available.. |