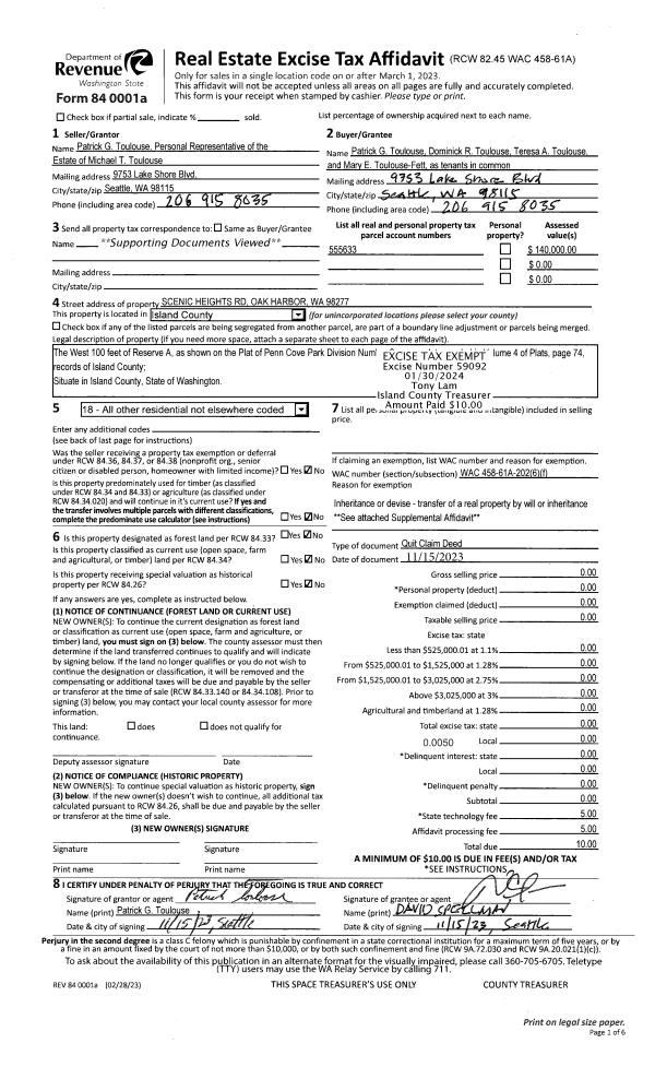
Property
Account |
| Property ID: | 808700 | Abbreviated Legal Description: | IN GL4 DESC: BG SWCR GL4 S83*E ALG SLN GL4 330' TPB N3*W124.11' N89*E133.51' TO WLN DECKER AVE S3*E ALG SD WLN 201.31' TO NLN SANDY PT RD N89*W ALG SD NLN 130.67' N3*W75.98' TPB |
| Geographic ID: | R32902-291-0550 | Agent Code: | |
| Type: | Real | | |
| Tax Area: | 700 - APPRAISER-S Whid Schl Dist, in town of Langley | Land Use Code | 11 |
| Open Space: | N | DFL | N |
| Historic Property: | N | Remodel Property: | N |
| Multi-Family Redevelopment: | N | | |
| Township: | 29 | Section: | 02 |
| Range: | R3 |
Location |
| Address: | 843 DECKER AVE LANGLEY, WA 98260 | Mapsco: | |
| Neighborhood: | City of Langley | Map ID: | 721 |
| Neighborhood CD: | 04-L |
Owner |
| Name: | HENSRUDE TTEE, GREGOR A | Owner ID: | 306569 |
| Mailing Address: | 843 DECKER AVE LANGLEY, WA 98260 | % Ownership: | 100.0000000000% |
| | | Exemptions: | |
Taxes and Assessment Details
Values
| (+) Improvement Homesite Value: | + | $0 | |
| (+) Improvement Non-Homesite Value: | + | $150,910 | |
| (+) Land Homesite Value: | + | $0 | |
| (+) Land Non-Homesite Value: | + | $280,000 | |
| (+) Curr Use (HS): | + | $0 | $0 |
| (+) Curr Use (NHS): | + | $0 | $0 |
| | | -------------------------- | |
| (=) Market Value: | = | $430,910 | |
| (–) Productivity Loss: | – | $0 | |
| | | -------------------------- | |
| (=) Subtotal: | = | $430,910 | |
| (+) Senior Appraised Value: | + | $0 | |
| (+) Non-Senior Appraised Value: | + | $430,910 | |
| | | -------------------------- | |
| (=) Total Appraised Value: | = | $430,910 | |
| (–) Senior Exemption Loss: | – | $0 | |
| (–) Exemption Loss: | – | $0 | |
| | | -------------------------- | |
| (=) Taxable Value: | = | $430,910 | |
Taxing Jurisdiction
| Owner: | HENSRUDE TTEE, GREGOR A | | |
| % Ownership: | 100.0000000000% | | |
| Total Value: | $430,910 | | |
| Tax Area: | 700 - APPRAISER-S Whid Schl Dist, in town of Langley |
| CF | Conservation Futures | 0.0316035091 | $430,910 | $430,910 | $13.62 | | |
| LANG | City of Langley | 1.0093520762 | $430,910 | $430,910 | $434.94 | | |
| LANGBOND | City of Langley BOND | 1.0326110892 | $430,910 | $430,910 | $444.96 | | |
| FIRE3 | Fire & Rescue Dist #3 S Whidbey GEN | 1.2004855531 | $430,910 | $430,910 | $517.30 | | |
| HOBOND | Hospital BOND | 0.1910887512 | $430,910 | $430,910 | $82.34 | | |
| HOGEN | Hospital GEN | 0.3902502903 | $430,910 | $430,910 | $168.16 | | |
| CE | County Current Expense | 0.3708482477 | $430,910 | $430,910 | $159.80 | | |
| ISLANDEMS | Hospital GEN (EMS) | 0.5000000000 | $430,910 | $430,910 | $215.46 | | |
| LIB | Library Sno-Isle GEN | 0.3153421757 | $430,910 | $430,910 | $135.88 | | |
| PORTWHID | Port of S Whidbey GEN | 0.1094540357 | $430,910 | $430,910 | $47.16 | | |
| SCH206BOND | School 206 BOND | 0.3161759235 | $430,910 | $430,910 | $136.24 | | |
| SCH206MO | School 206 Enrichment | 0.4547169547 | $430,910 | $430,910 | $195.94 | | |
| ST | State School | 1.3035497053 | $430,910 | $430,910 | $561.71 | | |
| ST2 | State School Part 2 | 0.8169543533 | $430,910 | $430,910 | $352.03 | | |
| SWHIDPRBD | P & R S Whidbey BOND | 0.0152817568 | $430,910 | $430,910 | $6.59 | | |
| SWHIDPRBD2 | P & R S Whidbey BOND2 | 0.0138911264 | $430,910 | $430,910 | $5.99 | | |
| SWHIDPRMT | P & R S Whidbey GEN | 0.2053334452 | $430,910 | $430,910 | $88.48 | | |
| | Total Tax Rate: | 8.2769389934 | | | | | |
| | | | | Taxes w/Current Exemptions: | $3,566.60 | | |
| | | | | Taxes w/o Exemptions: | $3,566.60 | | |
Improvement / Building
| Improvement #1: | RESIDENTIAL | State Code: | Y | 1161.0 sqft | Value: | $150,910 |
| Bathrooms: | 1 | Bedrooms: | 2 | | Ceiling: | ACOUSTIC FURRED | Cooling: | HEAT PUMP/CONV/V | | Exterior Wall/Cover: | WOOD SIDING | Floor Covering: | CARPET/VINYL 60-40 | | Floor Structure: | WOOD W/SUBFLOOR | Foundation: | WOOD BLOCKS | | Interior Finish: | DRYWALL PAINT | Plumbing Fixture Cnt: | 6 | | Roof Slope: | 6" IN 12" | Roof Structure/Cover: | CJ ASPHALT |
|
| | Type | Description | Class CD | Sub Class CD | Year Built | Area |
| | BAS | BASE/MAIN FLOOR | 3 | 0 | 1947 | 1161.0 |
| | OWP | OPEN WOOD PORCH W/STEPS | 3 | 0 | 1947 | 39.0 |
| | OWP | OPEN WOOD PORCH W/STEPS | 3 | 0 | 1947 | 63.8 |
| | OWC | OPEN WOOD PORCH W/STEPS/ROOF/C | 3 | 0 | 1947 | 32.0 |
| | oGAR | GARAGE | 3 | 0 | 1947 | 0.0 |
Sketch
Property Image
Land
| 1 | 16 | AC (00.51-01.00) | 0.0000 | 0.00 | 0.00 | 0.00 | 1.00 | $280,000 | $0 |
Roll Value History
| 2026 | N/A | N/A | N/A | N/A | N/A |
| 2025 | $150,910 | $280,000 | $0 | $430,910 | $430,910 |
| 2024 | $153,140 | $280,000 | $0 | $433,140 | $433,140 |
| 2023 | $155,367 | $280,000 | $0 | $435,367 | $435,367 |
| 2022 | $142,802 | $240,000 | $0 | $382,802 | $382,802 |
| 2021 | $126,063 | $210,000 | $0 | $336,063 | $336,063 |
| 2020 | $79,481 | $210,000 | $0 | $289,481 | $289,481 |
| 2019 | $57,215 | $230,000 | $0 | $287,215 | $287,215 |
| 2018 | $57,415 | $160,000 | $0 | $217,415 | $217,415 |
| 2017 | $57,816 | $160,000 | $0 | $217,816 | $217,816 |
| 2016 | $58,614 | $130,000 | $0 | $188,614 | $188,614 |
| 2015 | $59,414 | $130,000 | $0 | $189,414 | $189,414 |
| 2014 | $30,340 | $139,500 | $0 | $169,840 | $169,840 |
| 2013 | $31,072 | $139,500 | $0 | $170,572 | $170,572 |
| 2012 | $31,804 | $139,500 | $0 | $171,304 | $171,304 |
| 2011 | $32,000 | $155,000 | $0 | $187,000 | $187,000 |
| 2010 | $34,732 | $155,000 | $0 | $189,732 | $189,732 |
| 2009 | $35,764 | $160,000 | $0 | $195,764 | $195,764 |
| 2008 | $35,928 | $159,500 | $0 | $195,428 | $195,428 |
| 2007 | $0 | $0 | $0 | $195,428 | $195,428 |
Deed and Sales History
| 1 | 09/22/2022 | QCD | Quit Claim Deed | HENSRUDE, GREGOR A | HENSRUDE TTEE, GREGOR A | | | $0.00 | 55064 | 4553382 |
| 2 | 08/10/2018 | QCD | Quit Claim Deed | HENSRUDE, GREGOR A | HENSRUDE, GREGOR A | | | $0.00 | 35505 | 4450059 |
| 3 | 08/13/2018 | WD | Warranty Deed | HENNING, HANNAH | HENSRUDE, GREGOR A | | | $302,500.00 | 35504 | 4450058 |
| 4 | 08/15/2018 | QCD | Quit Claim Deed | HENNING, HANNAH | HENNING, HANNAH | | | $0.00 | 35502 | 4450057 |
| 5 | 11/08/2016 | TOD | Transfer On Death Deed | SULLIVAN, LAURA | HENNING, HANNAH | | | $0.00 | 30948 | 4411094 |
| 6 | 05/16/2014 | QCD | Quit Claim Deed | SULLIVAN, FRANK | SULLIVAN, LAURA | | | $0.00 | 15333 | 4359583 |
| 7 | 03/06/2006 | ESTSEPPROP | Establish Separate Property | SULLIVAN, FRANK | SULLIVAN, FRANK | | | $0.00 | 62714 | 4173920 |
| 8 | 03/05/2008 | BLA | DNU - Boundary Line Adjustment | Unknown | SULLIVAN, FRANK | | | $0.00 | 80626 | 4159991 |
Payout Agreement
| No payout information available.. |