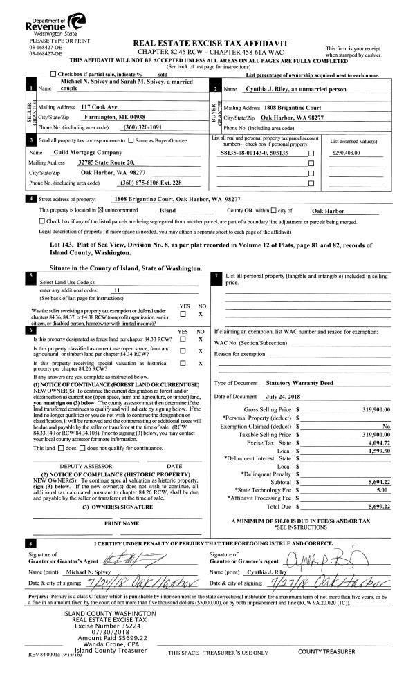
Property
Account |
| Property ID: | 808728 | Abbreviated Legal Description: | SW NW SW |
| Geographic ID: | R23106-175-0370 | Agent Code: | |
| Type: | Real | | |
| Tax Area: | 319 - APPRAISER-Cpvl Schl Dist, outside Cpvl, vacant & 50 acres or less | Land Use Code | 88 |
| Open Space: | N | DFL | Y |
| Historic Property: | N | Remodel Property: | N |
| Multi-Family Redevelopment: | N | | |
| Township: | 31 | Section: | 06 |
| Range: | R2 |
Location |
| Address: | 264 WHIDBEY RIDGE LN COUPEVILLE, WA 98239 | Mapsco: | |
| Neighborhood: | Cycle 2 | Map ID: | 459 |
| Neighborhood CD: | 2 |
Owner |
| Name: | RHED RHYDER WOOD LLC | Owner ID: | 287608 |
| Mailing Address: | PO BOX 1411 COUPEVILLE, WA 98239 | % Ownership: | 100.0000000000% |
| | | Exemptions: | |
Taxes and Assessment Details
Values
| (+) Improvement Homesite Value: | + | $0 | |
| (+) Improvement Non-Homesite Value: | + | $0 | |
| (+) Land Homesite Value: | + | $0 | |
| (+) Land Non-Homesite Value: | + | $0 | |
| (+) Curr Use (HS): | + | $0 | $0 |
| (+) Curr Use (NHS): | + | $266,324 | $934 |
| | | -------------------------- | |
| (=) Market Value: | = | $266,324 | |
| (–) Productivity Loss: | – | $265,390 | |
| | | -------------------------- | |
| (=) Subtotal: | = | $934 | |
| (+) Senior Appraised Value: | + | $0 | |
| (+) Non-Senior Appraised Value: | + | $934 | |
| | | -------------------------- | |
| (=) Total Appraised Value: | = | $934 | |
| (–) Senior Exemption Loss: | – | $0 | |
| (–) Exemption Loss: | – | $0 | |
| | | -------------------------- | |
| (=) Taxable Value: | = | $934 | |
Taxing Jurisdiction
| Owner: | RHED RHYDER WOOD LLC | | |
| % Ownership: | 100.0000000000% | | |
| Total Value: | $266,324 | | |
| Tax Area: | 319 - APPRAISER-Cpvl Schl Dist, outside Cpvl, vacant & 50 acres or less |
| CF | Conservation Futures | 0.0316035091 | $934 | $934 | $0.03 | | |
| CEM2 | Cemetery #2 | 0.0095056933 | $934 | $934 | $0.01 | | |
| HOBOND | Hospital BOND | 0.1910887512 | $934 | $934 | $0.18 | | |
| HOGEN | Hospital GEN | 0.3902502903 | $934 | $934 | $0.36 | | |
| CE | County Current Expense | 0.3708482477 | $934 | $934 | $0.35 | | |
| CR | County Roads | 0.4584763726 | $934 | $934 | $0.43 | | |
| ISLANDEMS | Hospital GEN (EMS) | 0.5000000000 | $934 | $934 | $0.47 | | |
| LIB | Library Sno-Isle GEN | 0.3153421757 | $934 | $934 | $0.29 | | |
| LIBCAP | Library Sno-Isle BOND (Cap Fac Imp Area) | 0.0543427938 | $934 | $934 | $0.05 | | |
| POCOUP | Port of Coupeville GEN | 0.1093371703 | $934 | $934 | $0.10 | | |
| POCOUPIDD | Port of Coupeville IDD | 0.3409740022 | $934 | $934 | $0.32 | | |
| COUPSDTECH | School 204 CP (TECH) | 0.7545480007 | $934 | $934 | $0.70 | | |
| SCH204MO | School 204 Enrichment | 0.6716186034 | $934 | $934 | $0.63 | | |
| ST | State School | 1.3035497053 | $934 | $934 | $1.22 | | |
| ST2 | State School Part 2 | 0.8169543533 | $934 | $934 | $0.76 | | |
| | Total Tax Rate: | 6.3184396689 | | | | | |
| | | | | Taxes w/Current Exemptions: | $5.90 | | |
| | | | | Taxes w/o Exemptions: | $5.90 | | |
Improvement / Building
Sketch
| No sketches available for this property. |
Property Image
Land
| 1 | 35 | AC (10.00-30.99) | 11.1200 | 484387.20 | 0.00 | 0.00 | 1.00 | $266,324 | $934 |
Roll Value History
| 2026 | N/A | N/A | N/A | N/A | N/A |
| 2025 | $0 | $266,324 | $934 | $934 | $934 |
| 2024 | $0 | $250,000 | $934 | $934 | $934 |
| 2023 | $0 | $240,000 | $901 | $901 | $901 |
| 2022 | $0 | $200,000 | $901 | $901 | $901 |
| 2021 | $0 | $170,000 | $901 | $901 | $901 |
| 2020 | $0 | $150,000 | $901 | $901 | $901 |
| 2019 | $0 | $150,000 | $867 | $867 | $867 |
| 2018 | $0 | $100,000 | $856 | $856 | $856 |
| 2017 | $0 | $75,000 | $856 | $856 | $856 |
| 2016 | $0 | $75,000 | $1,123 | $1,123 | $1,123 |
| 2015 | $0 | $122,876 | $1,123 | $1,123 | $1,123 |
| 2014 | $0 | $122,876 | $1,123 | $1,123 | $1,123 |
| 2013 | $0 | $122,876 | $1,123 | $1,123 | $1,123 |
| 2012 | $0 | $122,876 | $1,123 | $1,123 | $1,123 |
| 2011 | $0 | $144,560 | $1,123 | $1,123 | $1,123 |
| 2010 | $0 | $144,560 | $1,123 | $1,123 | $1,123 |
| 2008 | $0 | $166,800 | $1,123 | $1,123 | $1,123 |
| 2007 | $0 | $0 | $0 | $1,106 | $1,106 |
Deed and Sales History
| 1 | 11/02/2018 | QCD | Quit Claim Deed | KEOHANE, TIMOTHY J | RHED RHYDER WOOD LLC | | | $0.00 | 36705 | 4455243 |
| 2 | 06/19/2018 | WD | Warranty Deed | KEEVA, JOSEPH W | KEOHANE, TIMOTHY J | | | $105,000.00 | 34858 | 4447445 |
|   | |
| 3 | 03/01/2010 | ESTSEPPROP | Establish Separate Property | KEEVA JTWROS, JOSEPH W | KEEVA, JOSEPH W | | | $0.00 | 527 | 4269870 |
| 4 | 03/14/2008 | SEG | DNU - Segregation | Unknown | KEEVA, JOSEPH W | | | $0.00 | 80642 | 0 |
| 5 | 02/27/2007 | QCD | Quit Claim Deed | KEEVA, JOSEPH W | KEEVA JTWROS, JOSEPH W | | | $0.00 | 92273 | 4260817 |
Payout Agreement
| No payout information available.. |