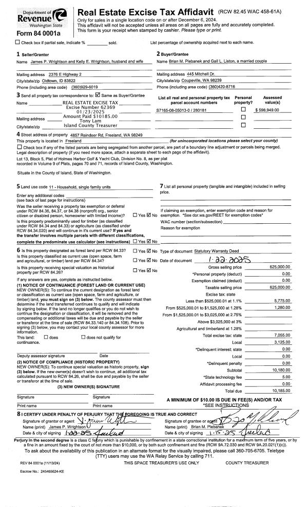
Property
Account |
| Property ID: | 808757 | Abbreviated Legal Description: | LOT 3 SP 134-07.23120.101-0540 AF.4224390 EX PT TO IS CO AF.4299213 & AF.4386479 |
| Geographic ID: | R23120-098-0790 | Agent Code: | |
| Type: | Real | | |
| Tax Area: | 319 - APPRAISER-Cpvl Schl Dist, outside Cpvl, vacant & 50 acres or less | Land Use Code | 91 |
| Open Space: | N | DFL | N |
| Historic Property: | N | Remodel Property: | N |
| Multi-Family Redevelopment: | N | | |
| Township: | 31 | Section: | 20 |
| Range: | R2 |
Location |
| Address: | | Mapsco: | |
| Neighborhood: | Cycle 2 | Map ID: | 497 |
| Neighborhood CD: | 2 |
Owner |
| Name: | PETSCHE, KRISTINE | Owner ID: | 195927 |
| Mailing Address: | 51 PINE ST UNIT 103 EDMONDS, WA 98026 | % Ownership: | 100.0000000000% |
| | | Exemptions: | |
Taxes and Assessment Details
Values
| (+) Improvement Homesite Value: | + | $0 | |
| (+) Improvement Non-Homesite Value: | + | $0 | |
| (+) Land Homesite Value: | + | $0 | |
| (+) Land Non-Homesite Value: | + | $159,557 | |
| (+) Curr Use (HS): | + | $0 | $0 |
| (+) Curr Use (NHS): | + | $0 | $0 |
| | | -------------------------- | |
| (=) Market Value: | = | $159,557 | |
| (–) Productivity Loss: | – | $0 | |
| | | -------------------------- | |
| (=) Subtotal: | = | $159,557 | |
| (+) Senior Appraised Value: | + | $0 | |
| (+) Non-Senior Appraised Value: | + | $159,557 | |
| | | -------------------------- | |
| (=) Total Appraised Value: | = | $159,557 | |
| (–) Senior Exemption Loss: | – | $0 | |
| (–) Exemption Loss: | – | $0 | |
| | | -------------------------- | |
| (=) Taxable Value: | = | $159,557 | |
Taxing Jurisdiction
| Owner: | PETSCHE, KRISTINE | | |
| % Ownership: | 100.0000000000% | | |
| Total Value: | $159,557 | | |
| Tax Area: | 319 - APPRAISER-Cpvl Schl Dist, outside Cpvl, vacant & 50 acres or less |
| CF | Conservation Futures | 0.0316035091 | $159,557 | $159,557 | $5.04 | | |
| CEM2 | Cemetery #2 | 0.0095056933 | $159,557 | $159,557 | $1.52 | | |
| HOBOND | Hospital BOND | 0.1910887512 | $159,557 | $159,557 | $30.49 | | |
| HOGEN | Hospital GEN | 0.3902502903 | $159,557 | $159,557 | $62.27 | | |
| CE | County Current Expense | 0.3708482477 | $159,557 | $159,557 | $59.17 | | |
| CR | County Roads | 0.4584763726 | $159,557 | $159,557 | $73.15 | | |
| ISLANDEMS | Hospital GEN (EMS) | 0.5000000000 | $159,557 | $159,557 | $79.78 | | |
| LIB | Library Sno-Isle GEN | 0.3153421757 | $159,557 | $159,557 | $50.32 | | |
| LIBCAP | Library Sno-Isle BOND (Cap Fac Imp Area) | 0.0543427938 | $159,557 | $159,557 | $8.67 | | |
| POCOUP | Port of Coupeville GEN | 0.1093371703 | $159,557 | $159,557 | $17.45 | | |
| POCOUPIDD | Port of Coupeville IDD | 0.3409740022 | $159,557 | $159,557 | $54.40 | | |
| COUPSDTECH | School 204 CP (TECH) | 0.7545480007 | $159,557 | $159,557 | $120.39 | | |
| SCH204MO | School 204 Enrichment | 0.6716186034 | $159,557 | $159,557 | $107.16 | | |
| ST | State School | 1.3035497053 | $159,557 | $159,557 | $207.99 | | |
| ST2 | State School Part 2 | 0.8169543533 | $159,557 | $159,557 | $130.35 | | |
| | Total Tax Rate: | 6.3184396689 | | | | | |
| | | | | Taxes w/Current Exemptions: | $1,008.15 | | |
| | | | | Taxes w/o Exemptions: | $1,008.15 | | |
Improvement / Building
Sketch
| No sketches available for this property. |
Property Image
Land
| 1 | 32 | AC (03.01-09.99) | 5.3000 | 230868.00 | 0.00 | 0.00 | 1.00 | $159,557 | $0 |
Roll Value History
| 2026 | N/A | N/A | N/A | N/A | N/A |
| 2025 | $0 | $159,557 | $0 | $159,557 | $159,557 |
| 2024 | $0 | $140,000 | $0 | $140,000 | $140,000 |
| 2023 | $0 | $140,000 | $0 | $140,000 | $140,000 |
| 2022 | $0 | $130,000 | $0 | $130,000 | $130,000 |
| 2021 | $0 | $130,000 | $0 | $130,000 | $130,000 |
| 2020 | $0 | $120,000 | $0 | $120,000 | $120,000 |
| 2019 | $0 | $125,000 | $0 | $125,000 | $125,000 |
| 2018 | $0 | $75,000 | $0 | $75,000 | $75,000 |
| 2017 | $0 | $55,000 | $0 | $55,000 | $55,000 |
| 2016 | $0 | $75,000 | $0 | $75,000 | $75,000 |
| 2015 | $0 | $106,200 | $0 | $106,200 | $106,200 |
| 2014 | $0 | $106,200 | $0 | $106,200 | $106,200 |
| 2013 | $0 | $106,200 | $0 | $106,200 | $106,200 |
| 2012 | $0 | $106,200 | $0 | $106,200 | $106,200 |
| 2011 | $0 | $106,200 | $0 | $106,200 | $106,200 |
| 2010 | $0 | $106,200 | $0 | $106,200 | $106,200 |
| 2009 | $0 | $138,670 | $0 | $138,670 | $138,670 |
| 2008 | $0 | $141,500 | $0 | $141,500 | $141,500 |
| 2007 | $0 | $0 | $0 | $45,020 | $45,020 |
Deed and Sales History
| 1 | 04/29/2019 | EZ | Easement | PETSCHE, KRISTINE | ISLAND COUNTY PUBLIC WORKS | | | $0.00 | 38252 | 4462235 |
| 2 | 09/03/2015 | WD | Warranty Deed | PETSCHE, KRISTINE | PETSCHE, KRISTINE | | | $0.00 | 21463 | 4386479 |
| 3 | 01/01/1900 | OTHER | Other - Misc. Documents | Unknown | PETSCHE, KRISTINE | | | $0.00 | 0 | 0 |
Payout Agreement
| No payout information available.. |