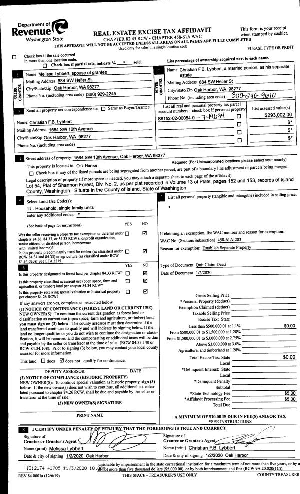
Property
Account |
| Property ID: | 808800 | Abbreviated Legal Description: | LOT A SP 301-99.23017.033-5040 AF# 4227176 |
| Geographic ID: | R23017-048-5010 | Agent Code: | |
| Type: | Real | | |
| Tax Area: | 312 - APPRAISER-Cpvl Schl Dist, outside Cpvl, improved, greater than 1 acre | Land Use Code | 11 |
| Open Space: | N | DFL | N |
| Historic Property: | N | Remodel Property: | N |
| Multi-Family Redevelopment: | N | | |
| Township: | 30 | Section: | 17 |
| Range: | R2 |
Location |
| Address: | 3575 OLD COUNTY RD GREENBANK, WA 98253 | Mapsco: | |
| Neighborhood: | Cycle 3 | Map ID: | 385 |
| Neighborhood CD: | 3 |
Owner |
| Name: | MICHAEL, ROBERT D / GLENDA J | Owner ID: | 83261 |
| Mailing Address: | PO BOX 63 GREENBANK, WA 98253-0063 | % Ownership: | 100.0000000000% |
| | | Exemptions: | |
Taxes and Assessment Details
Values
| (+) Improvement Homesite Value: | + | $0 | |
| (+) Improvement Non-Homesite Value: | + | $344,936 | |
| (+) Land Homesite Value: | + | $0 | |
| (+) Land Non-Homesite Value: | + | $350,000 | |
| (+) Curr Use (HS): | + | $0 | $0 |
| (+) Curr Use (NHS): | + | $0 | $0 |
| | | -------------------------- | |
| (=) Market Value: | = | $694,936 | |
| (–) Productivity Loss: | – | $0 | |
| | | -------------------------- | |
| (=) Subtotal: | = | $694,936 | |
| (+) Senior Appraised Value: | + | $0 | |
| (+) Non-Senior Appraised Value: | + | $694,936 | |
| | | -------------------------- | |
| (=) Total Appraised Value: | = | $694,936 | |
| (–) Senior Exemption Loss: | – | $0 | |
| (–) Exemption Loss: | – | $0 | |
| | | -------------------------- | |
| (=) Taxable Value: | = | $694,936 | |
Taxing Jurisdiction
| Owner: | MICHAEL, ROBERT D / GLENDA J | | |
| % Ownership: | 100.0000000000% | | |
| Total Value: | $694,936 | | |
| Tax Area: | 312 - APPRAISER-Cpvl Schl Dist, outside Cpvl, improved, greater than 1 acre |
| CF | Conservation Futures | 0.0316035091 | $694,936 | $694,936 | $21.96 | | |
| CEM2 | Cemetery #2 | 0.0095056933 | $694,936 | $694,936 | $6.61 | | |
| FIRE5 | Fire & Rescue Dist #5 C Whidbey GEN | 1.2008080668 | $694,936 | $694,936 | $834.48 | | |
| FIRE5BOND | Fire & Rescue Dist #5 C Whidbey BOND | 0.1400090713 | $694,936 | $694,936 | $97.30 | | |
| HOBOND | Hospital BOND | 0.1910887512 | $694,936 | $694,936 | $132.79 | | |
| HOGEN | Hospital GEN | 0.3902502903 | $694,936 | $694,936 | $271.20 | | |
| CE | County Current Expense | 0.3708482477 | $694,936 | $694,936 | $257.72 | | |
| CR | County Roads | 0.4584763726 | $694,936 | $694,936 | $318.61 | | |
| ISLANDEMS | Hospital GEN (EMS) | 0.5000000000 | $694,936 | $694,936 | $347.47 | | |
| LIB | Library Sno-Isle GEN | 0.3153421757 | $694,936 | $694,936 | $219.14 | | |
| LIBCAP | Library Sno-Isle BOND (Cap Fac Imp Area) | 0.0543427938 | $694,936 | $694,936 | $37.76 | | |
| POCOUP | Port of Coupeville GEN | 0.1093371703 | $694,936 | $694,936 | $75.98 | | |
| POCOUPIDD | Port of Coupeville IDD | 0.3409740022 | $694,936 | $694,936 | $236.96 | | |
| COUPSDTECH | School 204 CP (TECH) | 0.7545480007 | $694,936 | $694,936 | $524.36 | | |
| SCH204MO | School 204 Enrichment | 0.6716186034 | $694,936 | $694,936 | $466.73 | | |
| ST | State School | 1.3035497053 | $694,936 | $694,936 | $905.88 | | |
| ST2 | State School Part 2 | 0.8169543533 | $694,936 | $694,936 | $567.73 | | |
| | Total Tax Rate: | 7.6592568070 | | | | | |
| | | | | Taxes w/Current Exemptions: | $5,322.68 | | |
| | | | | Taxes w/o Exemptions: | $5,322.68 | | |
Improvement / Building
| Improvement #1: | RESIDENTIAL | State Code: | Y | 1771.0 sqft | Value: | $344,936 |
| Bathrooms: | 1.75 | Bedrooms: | 2 | | Ceiling: | DRYWALL PAINTED | Exterior Wall/Cover: | SHINGLE | | Floor Covering: | CARPET 100% | Floor Structure: | SLAB ON GRADE | | Foundation: | CONCRETE | Heating: | RAD HOT WATER-GAS | | Interior Finish: | DRYWALL PAINT | Plumbing Fixture Cnt: | 9 | | Roof Slope: | 5" IN 12" | Roof Structure/Cover: | CJ ASPHALT |
|
| | Type | Description | Class CD | Sub Class CD | Year Built | Area |
| | BAS | BASE/MAIN FLOOR | 3 | 0 | 1997 | 1339.0 |
| | OP1 | OPEN PORCH SLAB | 3 | 0 | 1997 | 520.0 |
| | OP2 | OPEN PORCH W/STEPS | 3 | 0 | 1997 | 237.0 |
| | OP3 | OPEN PORCH W/ROOF | 3 | 0 | 1997 | 70.0 |
| | AGR | ATTACHED GARAGE | 3 | 0 | 1997 | 624.0 |
| | LOF | LOFT | 3 | 0 | 2016 | 432.0 |
| | DGR | DETACHED GARAGE | 3 | 0 | 2016 | 1045.2 |
| | CPD | OPEN CARPORT DIRT FLOOR | 3 | 0 | 1997 | 478.0 |
| | ENP | ENCLOSED PORCH | 3 | 0 | 1997 | 140.0 |
Sketch
Property Image
Land
| 1 | 32 | AC (03.01-09.99) | 5.1000 | 0.00 | 0.00 | 0.00 | 1.00 | $350,000 | $0 |
Roll Value History
| 2026 | N/A | N/A | N/A | N/A | N/A |
| 2025 | $344,936 | $350,000 | $0 | $694,936 | $694,936 |
| 2024 | $349,080 | $340,000 | $0 | $689,080 | $689,080 |
| 2023 | $353,222 | $320,000 | $0 | $673,222 | $673,222 |
| 2022 | $323,585 | $260,000 | $0 | $583,585 | $583,585 |
| 2021 | $284,651 | $230,000 | $0 | $514,651 | $514,651 |
| 2020 | $277,478 | $180,000 | $0 | $457,478 | $457,478 |
| 2019 | $173,368 | $230,000 | $0 | $403,368 | $403,368 |
| 2018 | $173,839 | $220,000 | $0 | $393,839 | $393,839 |
| 2017 | $174,780 | $160,000 | $0 | $334,780 | $334,780 |
| 2016 | $172,012 | $165,000 | $0 | $337,012 | $337,012 |
| 2015 | $152,272 | $150,000 | $0 | $302,272 | $302,272 |
| 2014 | $154,084 | $150,000 | $0 | $304,084 | $304,084 |
| 2013 | $153,965 | $169,830 | $0 | $323,795 | $323,795 |
| 2012 | $155,786 | $169,830 | $0 | $325,616 | $325,616 |
| 2011 | $157,605 | $188,700 | $0 | $346,305 | $346,305 |
| 2010 | $163,887 | $188,700 | $0 | $352,587 | $352,587 |
| 2009 | $171,043 | $198,900 | $0 | $369,943 | $369,943 |
| 2008 | $173,282 | $172,125 | $0 | $345,407 | $345,407 |
Deed and Sales History
| 1 | 01/01/1900 | OTHER | Other - Misc. Documents | Unknown | MICHAEL, ROBERT D / GLENDA J | | | $0.00 | 0 | 0 |
Payout Agreement
| No payout information available.. |