Property
Account |
| Property ID: | 808808 | Abbreviated Legal Description: | LOT 1 SP 36-05.23224.317-4710 AF# 4227851 |
| Geographic ID: | R23224-337-4710 | Agent Code: | |
| Type: | Real | | |
| Tax Area: | 512 - APPRAISER-Stan/Cam Schl Dist, improved, greater than 1 acre | Land Use Code | 11 |
| Open Space: | N | DFL | N |
| Historic Property: | N | Remodel Property: | N |
| Multi-Family Redevelopment: | N | | |
| Township: | 32 | Section: | 24 |
| Range: | R2 |
Location |
| Address: | 1043 CLEARWATER PLACE CAMANO ISLAND, WA 98282 | Mapsco: | |
| Neighborhood: | North Camano | Map ID: | 561 |
| Neighborhood CD: | 06-C |
Owner |
| Name: | JACOBSEN, KYLE | Owner ID: | 299640 |
| Mailing Address: | RANDI JACOBSEN 1043 CLEARWATER PL CAMANO ISLAND, WA 98282 | % Ownership: | 100.0000000000% |
| | | Exemptions: | |
Taxes and Assessment Details
Values
| (+) Improvement Homesite Value: | + | $0 | |
| (+) Improvement Non-Homesite Value: | + | $493,115 | |
| (+) Land Homesite Value: | + | $0 | |
| (+) Land Non-Homesite Value: | + | $310,000 | |
| (+) Curr Use (HS): | + | $0 | $0 |
| (+) Curr Use (NHS): | + | $0 | $0 |
| | | -------------------------- | |
| (=) Market Value: | = | $803,115 | |
| (–) Productivity Loss: | – | $0 | |
| | | -------------------------- | |
| (=) Subtotal: | = | $803,115 | |
| (+) Senior Appraised Value: | + | $0 | |
| (+) Non-Senior Appraised Value: | + | $803,115 | |
| | | -------------------------- | |
| (=) Total Appraised Value: | = | $803,115 | |
| (–) Senior Exemption Loss: | – | $0 | |
| (–) Exemption Loss: | – | $0 | |
| | | -------------------------- | |
| (=) Taxable Value: | = | $803,115 | |
Taxing Jurisdiction
| Owner: | JACOBSEN, KYLE | | |
| % Ownership: | 100.0000000000% | | |
| Total Value: | $803,115 | | |
| Tax Area: | 512 - APPRAISER-Stan/Cam Schl Dist, improved, greater than 1 acre |
| CF | Conservation Futures | 0.0316035091 | $803,115 | $803,115 | $25.38 | | |
| EMS1 | Fire & Rescue Dist #1 Camano GEN (EMS) | 0.3677864386 | $803,115 | $803,115 | $295.37 | | |
| FIRE1 | Fire & Rescue Dist #1 Camano GEN | 1.2502910536 | $803,115 | $803,115 | $1,004.13 | | |
| FIRE1BOND | Fire & Rescue Dist #1 Camano BOND | 0.1570001679 | $803,115 | $803,115 | $126.09 | | |
| CE | County Current Expense | 0.3708482477 | $803,115 | $803,115 | $297.83 | | |
| CR | County Roads | 0.4584763726 | $803,115 | $803,115 | $368.21 | | |
| LCIB | Library Sno-Isle BOND (Camano Island) | 0.0396325772 | $803,115 | $803,115 | $31.83 | | |
| LIB | Library Sno-Isle GEN | 0.3153421757 | $803,115 | $803,115 | $253.26 | | |
| SCH205_401 | School 205-401 Enrichment | 1.2698420524 | $803,115 | $803,115 | $1,019.83 | | |
| SCH205BOND | School 205-401 BOND | 0.9396497583 | $803,115 | $803,115 | $754.65 | | |
| ST | State School | 1.3035497053 | $803,115 | $803,115 | $1,046.90 | | |
| ST2 | State School Part 2 | 0.8169543533 | $803,115 | $803,115 | $656.11 | | |
| | Total Tax Rate: | 7.3209764117 | | | | | |
| | | | | Taxes w/Current Exemptions: | $5,879.59 | | |
| | | | | Taxes w/o Exemptions: | $5,879.59 | | |
Improvement / Building
| Improvement #1: | RESIDENTIAL | State Code: | Y | 3159.5 sqft | Value: | $493,115 |
| Bathrooms: | 3.25 | Bedrooms: | 4 | | Ceiling: | DRYWALL PAINTED | Exterior Wall/Cover: | CEMENT FIBER | | Floor Covering: | CARPET/VINYL 60-40 | Floor Structure: | WOOD W/SUBFLOOR | | Foundation: | CONCRETE | Heating: | FHA GAS | | Interior Finish: | DRYWALL PAINT | Plumbing Fixture Cnt: | 17 | | Roof Slope: | 5" IN 12" | Roof Structure/Cover: | CJ ASPHALT |
|
| | Type | Description | Class CD | Sub Class CD | Year Built | Area |
| | BAS | BASE/MAIN FLOOR | 3 | 0 | 2021 | 2259.4 |
| | AGR | ATTACHED GARAGE | 3 | 0 | 2021 | 1024.0 |
| | DWN | DOWNSTAIRS LIVING AREA | 3 | 0 | 2021 | 900.1 |
| | OWC | OPEN WOOD PORCH W/STEPS/ROOF/C | 3 | 0 | 2021 | 392.6 |
| | OWC | OPEN WOOD PORCH W/STEPS/ROOF/C | 3 | 0 | 2021 | 96.0 |
| | OWP | OPEN WOOD PORCH W/STEPS | 3 | 0 | 2021 | 49.0 |
Sketch
Property Image
Land
| 1 | 18 | AC (02.01-03.00) | 2.4700 | 107593.20 | 0.00 | 0.00 | 1.00 | $310,000 | $0 |
Roll Value History
| 2026 | N/A | N/A | N/A | N/A | N/A |
| 2025 | $493,115 | $310,000 | $0 | $803,115 | $803,115 |
| 2024 | $497,029 | $300,000 | $0 | $797,029 | $797,029 |
| 2023 | $502,246 | $300,000 | $0 | $802,246 | $802,246 |
| 2022 | $463,040 | $260,000 | $0 | $723,040 | $723,040 |
| 2021 | $410,864 | $190,000 | $0 | $600,864 | $600,864 |
| 2020 | $0 | $80,000 | $0 | $80,000 | $80,000 |
| 2019 | $0 | $100,000 | $0 | $100,000 | $100,000 |
| 2018 | $0 | $100,000 | $0 | $100,000 | $100,000 |
| 2017 | $0 | $100,000 | $0 | $100,000 | $100,000 |
| 2016 | $0 | $100,000 | $0 | $100,000 | $100,000 |
| 2015 | $0 | $100,000 | $0 | $100,000 | $100,000 |
| 2014 | $0 | $100,000 | $0 | $100,000 | $100,000 |
| 2013 | $0 | $93,000 | $0 | $93,000 | $93,000 |
| 2012 | $0 | $93,000 | $0 | $93,000 | $93,000 |
| 2011 | $0 | $93,000 | $0 | $93,000 | $93,000 |
| 2010 | $0 | $93,000 | $0 | $93,000 | $93,000 |
| 2009 | $0 | $95,000 | $0 | $95,000 | $95,000 |
| 2008 | $0 | $1 | $0 | $1 | $1 |
Deed and Sales History
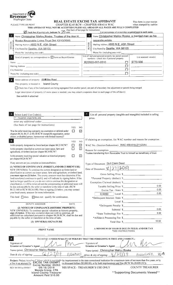
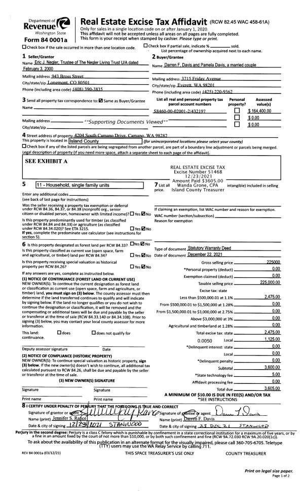
| 1 | 05/27/2021 | WD | Warranty Deed | STACK DESIGN & CONSTRUCTION, LLC | JACOBSEN, KYLE | | | $550,000.00 | 48520 | 4520840 |
| 2 | 08/27/2019 | WD | Warranty Deed | D & J LAKESIDE LLC | STACK DESIGN & CONSTRUCTION, LLC | | | $70,000.00 | 40245 | 4471303 |
| 3 | 01/01/1900 | OTHER | Other - Misc. Documents | Unknown | D & J LAKESIDE LLC, | | | $0.00 | 0 | 0 |
Payout Agreement
| No payout information available.. |