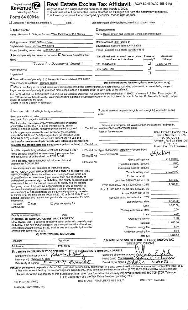
Property
Account |
| Property ID: | 808894 | Abbreviated Legal Description: | 1979 SKYLINE HOMETTE 13X56 VIN 03950881M |
| Geographic ID: | M91100000103-2 | Agent Code: | |
| Type: | Mobile Home | | |
| Tax Area: | 100 - APPRAISER-OH Schl Dist, in OH | Land Use Code | 11 |
| Open Space: | N | DFL | N |
| Historic Property: | N | Remodel Property: | N |
| Multi-Family Redevelopment: | N | | |
| Township: | | Section: | |
| Range: | |
Location |
| Address: | 700 NW CROSBY AVE # 103 OAK HARBOR, WA 98277 | Mapsco: | |
| Neighborhood: | Cycle 1 | Map ID: | |
| Neighborhood CD: | 1 |
Owner |
| Name: | WEST, ASHLEY | Owner ID: | 293428 |
| Mailing Address: | 700 NW CROSBY AVE #103 OAK HARBOR, WA 98277 | % Ownership: | 100.0000000000% |
| | | Exemptions: | |
Taxes and Assessment Details
Values
| (+) Improvement Homesite Value: | + | $0 | |
| (+) Improvement Non-Homesite Value: | + | $8,205 | |
| (+) Land Homesite Value: | + | $0 | |
| (+) Land Non-Homesite Value: | + | $0 | |
| (+) Curr Use (HS): | + | $0 | $0 |
| (+) Curr Use (NHS): | + | $0 | $0 |
| | | -------------------------- | |
| (=) Market Value: | = | $8,205 | |
| (–) Productivity Loss: | – | $0 | |
| | | -------------------------- | |
| (=) Subtotal: | = | $8,205 | |
| (+) Senior Appraised Value: | + | $0 | |
| (+) Non-Senior Appraised Value: | + | $8,205 | |
| | | -------------------------- | |
| (=) Total Appraised Value: | = | $8,205 | |
| (–) Senior Exemption Loss: | – | $0 | |
| (–) Exemption Loss: | – | $0 | |
| | | -------------------------- | |
| (=) Taxable Value: | = | $8,205 | |
Taxing Jurisdiction
| Owner: | WEST, ASHLEY | | |
| % Ownership: | 100.0000000000% | | |
| Total Value: | $8,205 | | |
| Tax Area: | 100 - APPRAISER-OH Schl Dist, in OH |
| CF | Conservation Futures | 0.0316035091 | $8,205 | $8,205 | $0.26 | | |
| CEM1 | Cemetery #1 | 0.0040320932 | $8,205 | $8,205 | $0.03 | | |
| COH | City of Oak Harbor | 2.3001546061 | $8,205 | $8,205 | $18.87 | | |
| OAKBOND | City of Oak Harbor BOND | 0.1926904192 | $8,205 | $8,205 | $1.58 | | |
| HOBOND | Hospital BOND | 0.1910887512 | $8,205 | $8,205 | $1.57 | | |
| HOGEN | Hospital GEN | 0.3902502903 | $8,205 | $8,205 | $3.20 | | |
| CE | County Current Expense | 0.3708482477 | $8,205 | $8,205 | $3.04 | | |
| ISLANDEMS | Hospital GEN (EMS) | 0.5000000000 | $8,205 | $8,205 | $4.10 | | |
| LIB | Library Sno-Isle GEN | 0.3153421757 | $8,205 | $8,205 | $2.59 | | |
| NWHIDPRMT | P & R N Whidbey GEN | 0.2004466701 | $8,205 | $8,205 | $1.64 | | |
| SCH201MO | School 201 Enrichment | 1.8559231640 | $8,205 | $8,205 | $15.23 | | |
| ST | State School | 1.3035497053 | $8,205 | $8,205 | $10.70 | | |
| ST2 | State School Part 2 | 0.8169543533 | $8,205 | $8,205 | $6.70 | | |
| | Total Tax Rate: | 8.4728839852 | | | | | |
| | | | | Taxes w/Current Exemptions: | $69.51 | | |
| | | | | Taxes w/o Exemptions: | $69.51 | | |
Improvement / Building
| Improvement #1: | MANUFACTURED HOME | State Code: | Y | 728.0 sqft | Value: | $8,205 |
| Bathrooms: | 1 | Bedrooms: | 2 | | Ceiling: | PLASTER PAINTED | Exterior Wall/Cover: | VINYL | | Floor Covering: | CARPET 100% | Floor Structure: | SLAB ON GRADE | | Foundation: | SLAB | Heating: | FHA ELECTRIC | | Interior Finish: | PLASTER | Plumbing Fixture Cnt: | 1 | | Roof Slope: | FLAT | Roof Structure/Cover: | CJ ALUMINIUM HEAVY |
|
Sketch
Property Image
Land
No land segments exist for this property.
Roll Value History
| 2026 | N/A | N/A | N/A | N/A | N/A |
| 2025 | $8,205 | $0 | $0 | $8,205 | $8,205 |
| 2024 | $8,791 | $0 | $0 | $8,791 | $8,791 |
| 2023 | $7,178 | $0 | $0 | $7,178 | $7,178 |
| 2022 | $6,919 | $0 | $0 | $6,919 | $6,919 |
| 2021 | $6,380 | $0 | $0 | $6,380 | $6,380 |
| 2020 | $6,725 | $0 | $0 | $6,725 | $6,725 |
| 2019 | $5,577 | $0 | $0 | $5,577 | $5,577 |
| 2018 | $5,856 | $0 | $0 | $5,856 | $5,856 |
| 2017 | $5,471 | $0 | $0 | $5,471 | $5,471 |
| 2016 | $5,824 | $0 | $0 | $5,824 | $5,824 |
| 2015 | $6,176 | $0 | $0 | $6,176 | $6,176 |
| 2014 | $6,706 | $0 | $0 | $6,706 | $6,706 |
| 2013 | $7,059 | $0 | $0 | $7,059 | $7,059 |
| 2012 | $7,412 | $0 | $0 | $7,412 | $7,412 |
| 2011 | $11,055 | $0 | $0 | $11,055 | $11,055 |
| 2010 | $8,373 | $0 | $0 | $8,373 | $8,373 |
| 2009 | $9,844 | $0 | $0 | $9,844 | $9,844 |
| 2008 | $10,011 | $0 | $0 | $10,011 | $10,011 |
| 2007 | $0 | $0 | $0 | $10,011 | $10,011 |
Deed and Sales History
| 1 | 02/10/2020 | MANHOME | Manufactured Home | STRONG, CALUM | WEST, ASHLEY | | | $2,300.00 | 42051 | |
| 2 | 03/27/2017 | MANHOME | Manufactured Home | JOT LLC | STRONG, CALUM | | | $1,500.00 | 28594 | |
| 3 | 10/31/2016 | MANHOME | Manufactured Home | DENAULT, SHAWN | JOT LLC | | | $0.00 | 26727 | |
| 4 | 06/02/2014 | MANHOME | Manufactured Home | JOHNSON, TOM | DENAULT, SHAWN | | | $7,000.00 | 15467 | |
Payout Agreement
| No payout information available.. |