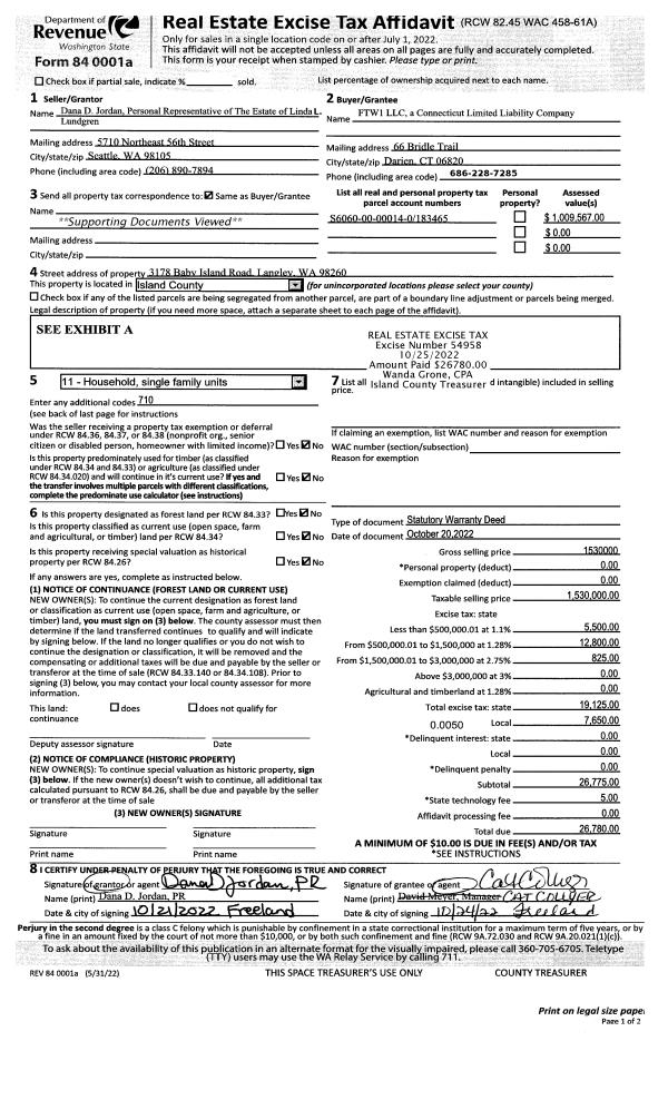
Property
Account |
| Property ID: | 808900 | Abbreviated Legal Description: | LOT 2 SP337-07.33119.185-2360 AF#4231270 |
| Geographic ID: | R33119-181-2440 | Agent Code: | |
| Type: | Real | | |
| Tax Area: | 512 - APPRAISER-Stan/Cam Schl Dist, improved, greater than 1 acre | Land Use Code | 11 |
| Open Space: | N | DFL | N |
| Historic Property: | N | Remodel Property: | N |
| Multi-Family Redevelopment: | N | | |
| Township: | 31 | Section: | 19 |
| Range: | R3 |
Location |
| Address: | | Mapsco: | |
| Neighborhood: | Cycle 5 | Map ID: | 929 |
| Neighborhood CD: | 5 |
Owner |
| Name: | MONROE, MICHAEL GEOFFREY | Owner ID: | 286266 |
| Mailing Address: | LYNN ELAINE MONROE 1454 CRESTVIEW DR CAMANO ISLAND, WA 98282 | % Ownership: | 100.0000000000% |
| | | Exemptions: | |
Taxes and Assessment Details
Values
| (+) Improvement Homesite Value: | + | $0 | |
| (+) Improvement Non-Homesite Value: | + | $512,959 | |
| (+) Land Homesite Value: | + | $0 | |
| (+) Land Non-Homesite Value: | + | $350,000 | |
| (+) Curr Use (HS): | + | $0 | $0 |
| (+) Curr Use (NHS): | + | $0 | $0 |
| | | -------------------------- | |
| (=) Market Value: | = | $862,959 | |
| (–) Productivity Loss: | – | $0 | |
| | | -------------------------- | |
| (=) Subtotal: | = | $862,959 | |
| (+) Senior Appraised Value: | + | $0 | |
| (+) Non-Senior Appraised Value: | + | $862,959 | |
| | | -------------------------- | |
| (=) Total Appraised Value: | = | $862,959 | |
| (–) Senior Exemption Loss: | – | $0 | |
| (–) Exemption Loss: | – | $0 | |
| | | -------------------------- | |
| (=) Taxable Value: | = | $862,959 | |
Taxing Jurisdiction
| Owner: | MONROE, MICHAEL GEOFFREY | | |
| % Ownership: | 100.0000000000% | | |
| Total Value: | $862,959 | | |
| Tax Area: | 512 - APPRAISER-Stan/Cam Schl Dist, improved, greater than 1 acre |
| CF | Conservation Futures | 0.0316035091 | $862,959 | $862,959 | $27.27 | | |
| EMS1 | Fire & Rescue Dist #1 Camano GEN (EMS) | 0.3677864386 | $862,959 | $862,959 | $317.38 | | |
| FIRE1 | Fire & Rescue Dist #1 Camano GEN | 1.2502910536 | $862,959 | $862,959 | $1,078.95 | | |
| FIRE1BOND | Fire & Rescue Dist #1 Camano BOND | 0.1570001679 | $862,959 | $862,959 | $135.48 | | |
| CE | County Current Expense | 0.3708482477 | $862,959 | $862,959 | $320.03 | | |
| CR | County Roads | 0.4584763726 | $862,959 | $862,959 | $395.65 | | |
| LCIB | Library Sno-Isle BOND (Camano Island) | 0.0396325772 | $862,959 | $862,959 | $34.20 | | |
| LIB | Library Sno-Isle GEN | 0.3153421757 | $862,959 | $862,959 | $272.13 | | |
| SCH205_401 | School 205-401 Enrichment | 1.2698420524 | $862,959 | $862,959 | $1,095.82 | | |
| SCH205BOND | School 205-401 BOND | 0.9396497583 | $862,959 | $862,959 | $810.88 | | |
| ST | State School | 1.3035497053 | $862,959 | $862,959 | $1,124.91 | | |
| ST2 | State School Part 2 | 0.8169543533 | $862,959 | $862,959 | $705.00 | | |
| | Total Tax Rate: | 7.3209764117 | | | | | |
| | | | | Taxes w/Current Exemptions: | $6,317.70 | | |
| | | | | Taxes w/o Exemptions: | $6,317.70 | | |
Improvement / Building
| Improvement #1: | RESIDENTIAL | State Code: | Y | 1935.0 sqft | Value: | $512,959 |
| Bathrooms: | 3 | Bedrooms: | 3 | | Ceiling: | DRYWALL PAINTED | Exterior Wall/Cover: | WOOD SIDING | | Floor Covering: | HARDWOOD/CARP 80-20 | Floor Structure: | WOOD W/SUBFLOOR | | Foundation: | CONCRETE | Heating: | WALL HEAT ELECTRIC | | Interior Finish: | DRYWALL PAINT | Plumbing Fixture Cnt: | 14 | | Roof Slope: | 12" IN 12" | Roof Structure/Cover: | BEAM ASPHALT |
|
| | Type | Description | Class CD | Sub Class CD | Year Built | Area |
| | BAS | BASE/MAIN FLOOR | 4 | 0 | 1990 | 1563.0 |
| | OP4 | OPEN PORCH W/CEILING-ROOF | 4 | 0 | 1990 | 36.0 |
| | OP4 | OPEN PORCH W/CEILING-ROOF | 4 | 0 | 1990 | 36.0 |
| | AGR | ATTACHED GARAGE | 4 | 0 | 1990 | 624.0 |
| | UPS | UPPER STORY | 4 | 0 | 1990 | 252.0 |
| | BAW | BALCONY WOOD RAIL | 4 | 0 | 1990 | 32.0 |
| | OWP | OPEN WOOD PORCH W/STEPS | 4 | 0 | 1990 | 507.1 |
| | LOF | LOFT | 4 | 0 | 1990 | 120.0 |
| | CPD | OPEN CARPORT DIRT FLOOR | 4 | 0 | 1990 | 490.0 |
| | UTY | STORAGE/UTILITY | 4 | 0 | 1990 | 1800.0 |
Sketch
Property Image
Land
| 1 | 18 | AC (02.01-03.00) | 2.5000 | 108900.00 | 0.00 | 0.00 | 1.00 | $350,000 | $0 |
Roll Value History
| 2026 | N/A | N/A | N/A | N/A | N/A |
| 2025 | $512,959 | $350,000 | $0 | $862,959 | $862,959 |
| 2024 | $519,121 | $340,000 | $0 | $859,121 | $859,121 |
| 2023 | $525,283 | $330,000 | $0 | $855,283 | $855,283 |
| 2022 | $481,248 | $320,000 | $0 | $801,248 | $801,248 |
| 2021 | $413,624 | $210,000 | $0 | $623,624 | $623,624 |
| 2020 | $402,403 | $200,000 | $0 | $602,403 | $602,403 |
| 2019 | $297,922 | $250,000 | $0 | $547,922 | $547,922 |
| 2018 | $245,669 | $210,000 | $0 | $455,669 | $455,669 |
| 2017 | $247,217 | $135,000 | $0 | $382,217 | $382,217 |
| 2016 | $250,305 | $90,000 | $0 | $340,305 | $340,305 |
| 2015 | $225,863 | $90,000 | $0 | $315,863 | $315,863 |
| 2014 | $228,441 | $90,000 | $0 | $318,441 | $318,441 |
| 2013 | $231,017 | $83,328 | $0 | $314,345 | $314,345 |
| 2012 | $233,595 | $83,328 | $0 | $316,923 | $316,923 |
| 2011 | $236,172 | $104,160 | $0 | $340,332 | $340,332 |
| 2010 | $245,139 | $104,160 | $0 | $349,299 | $349,299 |
| 2009 | $243,174 | $140,000 | $0 | $383,174 | $383,174 |
| 2008 | $188,038 | $166,751 | $0 | $354,789 | $354,789 |
Deed and Sales History
| 1 | 07/19/2018 | WD | Warranty Deed | HOORT, ERIC C | MONROE, MICHAEL GEOFFREY | | | $575,000.00 | 35279 | 4449141 |
| 2 | 09/12/2011 | WD | Warranty Deed | FRASER TRUSTEE, ROBERT L | HOORT, ERIC C | | | $434,000.00 | 5561 | 4301262 |
| 3 | 01/01/1900 | OTHER | Other - Misc. Documents | Unknown | FRASER TRUSTEE, ROBERT L | | | $0.00 | 0 | 0 |
Payout Agreement
| No payout information available.. |