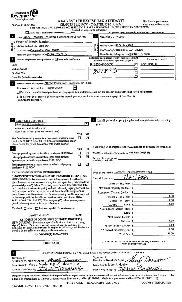
Property
Account |
| Property ID: | 808910 | Abbreviated Legal Description: | IN NW NW: BG CM NECR NW NW N88*W661.58' S01*W ALG WLN E/2 150' TPB S1*W ALG SD WLN 266.52' TO NLN OF S900' NW NW N88*W ALG SD NLN 150' TO NWCR OF E150' OF S900' W/2 NW NW S1*W ALG WLN OF E150' OF S900' 333.17' S88*E526.90' TO LN WEST & 250' FR W R/W LN HE |
| Geographic ID: | R13334-477-0780 | Agent Code: | |
| Type: | Real | | |
| Tax Area: | 112 - APPRAISER-OH Schl Dist, outside OH, improved, greater than 1 acre | Land Use Code | 11 |
| Open Space: | N | DFL | N |
| Historic Property: | N | Remodel Property: | N |
| Multi-Family Redevelopment: | N | | |
| Township: | 33 | Section: | 34 |
| Range: | R1 |
Location |
| Address: | 2795 HELLER RD OAK HARBOR, WA 98277 | Mapsco: | |
| Neighborhood: | Cycle 1 | Map ID: | 254 |
| Neighborhood CD: | 1 |
Owner |
| Name: | VANPELT, MATTHEW D | Owner ID: | 281614 |
| Mailing Address: | DEBRA VANPELT 2795 HELLER RD OAK HARBOR, WA 98277-9215 | % Ownership: | 100.0000000000% |
| | | Exemptions: | |
Taxes and Assessment Details
Values
| (+) Improvement Homesite Value: | + | $0 | |
| (+) Improvement Non-Homesite Value: | + | $626,244 | |
| (+) Land Homesite Value: | + | $0 | |
| (+) Land Non-Homesite Value: | + | $320,000 | |
| (+) Curr Use (HS): | + | $0 | $0 |
| (+) Curr Use (NHS): | + | $0 | $0 |
| | | -------------------------- | |
| (=) Market Value: | = | $946,244 | |
| (–) Productivity Loss: | – | $0 | |
| | | -------------------------- | |
| (=) Subtotal: | = | $946,244 | |
| (+) Senior Appraised Value: | + | $0 | |
| (+) Non-Senior Appraised Value: | + | $946,244 | |
| | | -------------------------- | |
| (=) Total Appraised Value: | = | $946,244 | |
| (–) Senior Exemption Loss: | – | $0 | |
| (–) Exemption Loss: | – | $0 | |
| | | -------------------------- | |
| (=) Taxable Value: | = | $946,244 | |
Taxing Jurisdiction
| Owner: | VANPELT, MATTHEW D | | |
| % Ownership: | 100.0000000000% | | |
| Total Value: | $946,244 | | |
| Tax Area: | 112 - APPRAISER-OH Schl Dist, outside OH, improved, greater than 1 acre |
| CF | Conservation Futures | 0.0316035091 | $946,244 | $946,244 | $29.90 | | |
| CEM1 | Cemetery #1 | 0.0040320932 | $946,244 | $946,244 | $3.82 | | |
| FIRE2 | Fire & Rescue Dist #2 N Whidbey GEN | 0.5475949600 | $946,244 | $946,244 | $518.16 | | |
| HOBOND | Hospital BOND | 0.1910887512 | $946,244 | $946,244 | $180.82 | | |
| HOGEN | Hospital GEN | 0.3902502903 | $946,244 | $946,244 | $369.27 | | |
| CE | County Current Expense | 0.3708482477 | $946,244 | $946,244 | $350.91 | | |
| CR | County Roads | 0.4584763726 | $946,244 | $946,244 | $433.83 | | |
| ISLANDEMS | Hospital GEN (EMS) | 0.5000000000 | $946,244 | $946,244 | $473.12 | | |
| LIB | Library Sno-Isle GEN | 0.3153421757 | $946,244 | $946,244 | $298.39 | | |
| NWHIDPRMT | P & R N Whidbey GEN | 0.2004466701 | $946,244 | $946,244 | $189.67 | | |
| SCH201MO | School 201 Enrichment | 1.8559231640 | $946,244 | $946,244 | $1,756.16 | | |
| ST | State School | 1.3035497053 | $946,244 | $946,244 | $1,233.48 | | |
| ST2 | State School Part 2 | 0.8169543533 | $946,244 | $946,244 | $773.04 | | |
| | Total Tax Rate: | 6.9861102925 | | | | | |
| | | | | Taxes w/Current Exemptions: | $6,610.57 | | |
| | | | | Taxes w/o Exemptions: | $6,610.57 | | |
Improvement / Building
| Improvement #1: | RESIDENTIAL | State Code: | Y | 2466.4 sqft | Value: | $626,244 |
| Bathrooms: | 1.75 | Bedrooms: | 3 | | Ceiling: | DRYWALL PAINTED | Exterior Wall/Cover: | CEMENT FIBER | | Floor Covering: | CERAMIC TILE/CPT 40-60 | Floor Structure: | WOOD W/SUBFLOOR | | Foundation: | CONCRETE | Heating: | FHA GAS | | Interior Finish: | DRYWALL PAINT | Plumbing Fixture Cnt: | 12 | | Roof Slope: | 6" IN 12" | Roof Structure/Cover: | CJ ASPHALT |
|
| | Type | Description | Class CD | Sub Class CD | Year Built | Area |
| | BAS | BASE/MAIN FLOOR | 4 | 0 | 2004 | 2466.4 |
| | UTY | STORAGE/UTILITY | 4 | 0 | 2004 | 1728.0 |
| | AGR | ATTACHED GARAGE | 4 | 0 | 2004 | 490.6 |
| | OWP | OPEN WOOD PORCH W/STEPS | 4 | 0 | 2004 | 417.2 |
| | OWC | OPEN WOOD PORCH W/STEPS/ROOF/C | 4 | 0 | 2004 | 385.1 |
| | OWC | OPEN WOOD PORCH W/STEPS/ROOF/C | 4 | 0 | 2004 | 238.4 |
Sketch
Property Image
Land
| 1 | 32 | AC (03.01-09.99) | 6.3300 | 275734.80 | 0.00 | 0.00 | 1.00 | $320,000 | $0 |
Roll Value History
| 2026 | N/A | N/A | N/A | N/A | N/A |
| 2025 | $626,244 | $320,000 | $0 | $946,244 | $946,244 |
| 2024 | $633,504 | $300,000 | $0 | $933,504 | $933,504 |
| 2023 | $618,982 | $300,000 | $0 | $918,982 | $918,982 |
| 2022 | $567,075 | $260,000 | $0 | $827,075 | $827,075 |
| 2021 | $498,838 | $220,000 | $0 | $718,838 | $718,838 |
| 2020 | $486,335 | $175,000 | $0 | $661,335 | $661,335 |
| 2019 | $366,788 | $230,000 | $0 | $596,788 | $596,788 |
| 2018 | $367,817 | $190,000 | $0 | $557,817 | $557,817 |
| 2017 | $340,257 | $160,000 | $0 | $500,257 | $500,257 |
| 2016 | $343,686 | $160,000 | $0 | $503,686 | $503,686 |
| 2015 | $347,115 | $150,000 | $0 | $497,115 | $497,115 |
| 2014 | $350,544 | $142,425 | $0 | $492,969 | $492,969 |
| 2013 | $353,978 | $142,425 | $0 | $496,403 | $496,403 |
| 2012 | $357,405 | $142,425 | $0 | $499,830 | $499,830 |
| 2011 | $360,591 | $158,250 | $0 | $518,841 | $518,841 |
| 2010 | $367,255 | $158,250 | $0 | $525,505 | $525,505 |
| 2009 | $382,654 | $158,250 | $0 | $540,904 | $540,904 |
| 2008 | $439,907 | $162,705 | $0 | $602,612 | $602,612 |
| 2007 | $0 | $0 | $0 | $609,176 | $609,176 |
Deed and Sales History
| 1 | 12/22/2020 | QCD | Quit Claim Deed | VANPELT, MATTHEW D | VANPELT, MATTHEW D | | | $0.00 | 46314 | 4506423 |
| 2 | 08/21/2017 | WD | Warranty Deed | SOPTICH, MARK H | VANPELT, MATTHEW D | | | $560,000.00 | 30796 | 4428950 |
| 3 | 07/21/2008 | WD | Warranty Deed | COOK, DARIN D | SOPTICH, MARK H | | | $540,000.00 | 81949 | 4233602 |
| 4 | 07/02/2008 | BLA | DNU - Boundary Line Adjustment | Unknown | COOK, DARIN D | | | $0.00 | 80810 | 4180285 |
Payout Agreement
| No payout information available.. |