Property
Account |
| Property ID: | 808911 | Abbreviated Legal Description: | LOT 1 SP175-07.23328-496-2680 AF#4231856 EX: BG NWCR SD LOT 1 S88*E ALG NLN 10' S2*E(W)198.69' N88*W5.99' TO WLN SD LOT 1 N1*E ALG SD WLN 198.60' M/L TPB |
| Geographic ID: | R23328-496-2510 | Agent Code: | |
| Type: | Real | | |
| Tax Area: | 112 - APPRAISER-OH Schl Dist, outside OH, improved, greater than 1 acre | Land Use Code | 11 |
| Open Space: | N | DFL | N |
| Historic Property: | N | Remodel Property: | N |
| Multi-Family Redevelopment: | N | | |
| Township: | 33 | Section: | 28 |
| Range: | R2 |
Location |
| Address: | 993 BUNCH LN OAK HARBOR, WA 98277 | Mapsco: | |
| Neighborhood: | Cycle 6 | Map ID: | 633 |
| Neighborhood CD: | 6 |
Owner |
| Name: | HENNAGIR, DEBRA | Owner ID: | 286635 |
| Mailing Address: | BRIAN TURNER 993 BUNCH LN OAK HARBOR, WA 98277 | % Ownership: | 100.0000000000% |
| | | Exemptions: | |
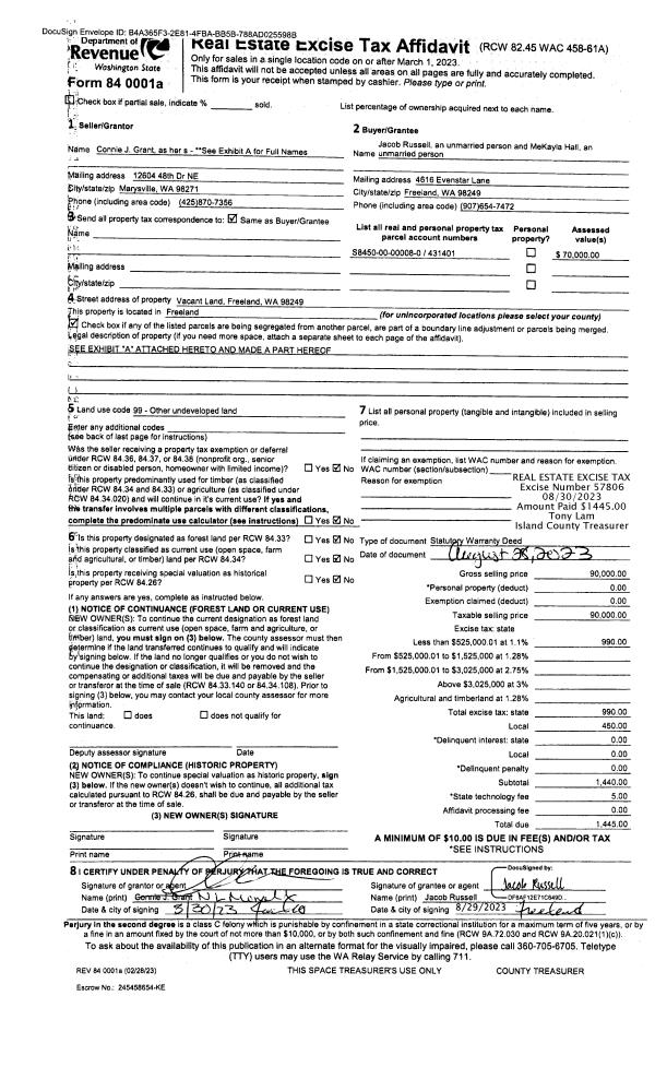
Taxes and Assessment Details
Values
| (+) Improvement Homesite Value: | + | $0 | |
| (+) Improvement Non-Homesite Value: | + | $261,715 | |
| (+) Land Homesite Value: | + | $0 | |
| (+) Land Non-Homesite Value: | + | $300,000 | |
| (+) Curr Use (HS): | + | $0 | $0 |
| (+) Curr Use (NHS): | + | $0 | $0 |
| | | -------------------------- | |
| (=) Market Value: | = | $561,715 | |
| (–) Productivity Loss: | – | $0 | |
| | | -------------------------- | |
| (=) Subtotal: | = | $561,715 | |
| (+) Senior Appraised Value: | + | $0 | |
| (+) Non-Senior Appraised Value: | + | $561,715 | |
| | | -------------------------- | |
| (=) Total Appraised Value: | = | $561,715 | |
| (–) Senior Exemption Loss: | – | $0 | |
| (–) Exemption Loss: | – | $0 | |
| | | -------------------------- | |
| (=) Taxable Value: | = | $561,715 | |
Taxing Jurisdiction
| Owner: | HENNAGIR, DEBRA | | |
| % Ownership: | 100.0000000000% | | |
| Total Value: | $561,715 | | |
| Tax Area: | 112 - APPRAISER-OH Schl Dist, outside OH, improved, greater than 1 acre |
| CF | Conservation Futures | 0.0316035091 | $561,715 | $561,715 | $17.75 | | |
| CEM1 | Cemetery #1 | 0.0040320932 | $561,715 | $561,715 | $2.26 | | |
| FIRE2 | Fire & Rescue Dist #2 N Whidbey GEN | 0.5475949600 | $561,715 | $561,715 | $307.59 | | |
| HOBOND | Hospital BOND | 0.1910887512 | $561,715 | $561,715 | $107.34 | | |
| HOGEN | Hospital GEN | 0.3902502903 | $561,715 | $561,715 | $219.21 | | |
| CE | County Current Expense | 0.3708482477 | $561,715 | $561,715 | $208.31 | | |
| CR | County Roads | 0.4584763726 | $561,715 | $561,715 | $257.53 | | |
| ISLANDEMS | Hospital GEN (EMS) | 0.5000000000 | $561,715 | $561,715 | $280.86 | | |
| LIB | Library Sno-Isle GEN | 0.3153421757 | $561,715 | $561,715 | $177.13 | | |
| NWHIDPRMT | P & R N Whidbey GEN | 0.2004466701 | $561,715 | $561,715 | $112.59 | | |
| SCH201MO | School 201 Enrichment | 1.8559231640 | $561,715 | $561,715 | $1,042.50 | | |
| ST | State School | 1.3035497053 | $561,715 | $561,715 | $732.22 | | |
| ST2 | State School Part 2 | 0.8169543533 | $561,715 | $561,715 | $458.90 | | |
| | Total Tax Rate: | 6.9861102925 | | | | | |
| | | | | Taxes w/Current Exemptions: | $3,924.19 | | |
| | | | | Taxes w/o Exemptions: | $3,924.19 | | |
Improvement / Building
| Improvement #1: | MANUFACTURED HOME | State Code: | Y | 1820.0 sqft | Value: | $261,715 |
| Bathrooms: | 1 | Bedrooms: | 2 | | Ceiling: | PLASTER PAINTED | Cooling: | EVAP NO DUCT | | Exterior Wall/Cover: | VINYL | Floor Covering: | CARPET 100% | | Floor Structure: | SLAB ON GRADE | Foundation: | SLAB | | Heating: | FHA ELECTRIC | Interior Finish: | PLASTER | | Plumbing Fixture Cnt: | 1 | Roof Slope: | FLAT | | Roof Structure/Cover: | CJ ALUMINIUM HEAVY |   |   |
|
| | Type | Description | Class CD | Sub Class CD | Year Built | Area |
| | BAS | BASE/MAIN FLOOR | 4 | 0 | 2018 | 1820.0 |
| | OWP | OPEN WOOD PORCH W/STEPS | 4 | 0 | 2018 | 24.0 |
| | UTY | STORAGE/UTILITY | 4 | 0 | 2018 | 420.0 |
| | UTY | STORAGE/UTILITY | 4 | 0 | 2019 | 2160.0 |
| | OWP | OPEN WOOD PORCH W/STEPS | 4 | 0 | 2018 | 28.0 |
| | OWP | OPEN WOOD PORCH W/STEPS | 4 | 0 | 2018 | 24.0 |
Sketch
Property Image
Land
| 1 | 32 | AC (03.01-09.99) | 5.0100 | 218235.60 | 0.00 | 0.00 | 1.00 | $300,000 | $0 |
Roll Value History
| 2026 | N/A | N/A | N/A | N/A | N/A |
| 2025 | $261,715 | $300,000 | $0 | $561,715 | $561,715 |
| 2024 | $263,624 | $280,000 | $0 | $543,624 | $543,624 |
| 2023 | $242,132 | $270,000 | $0 | $512,132 | $512,132 |
| 2022 | $257,132 | $240,000 | $0 | $497,132 | $497,132 |
| 2021 | $225,975 | $160,000 | $0 | $385,975 | $385,975 |
| 2020 | $221,554 | $140,000 | $0 | $361,554 | $361,554 |
| 2019 | $176,423 | $200,000 | $0 | $376,423 | $376,423 |
| 2018 | $96,492 | $170,000 | $0 | $266,492 | $266,492 |
| 2017 | $0 | $110,000 | $0 | $110,000 | $110,000 |
| 2016 | $0 | $80,000 | $0 | $80,000 | $80,000 |
| 2015 | $0 | $60,000 | $0 | $60,000 | $60,000 |
| 2014 | $0 | $75,000 | $0 | $75,000 | $75,000 |
| 2013 | $0 | $65,000 | $0 | $65,000 | $65,000 |
| 2012 | $0 | $71,000 | $0 | $71,000 | $71,000 |
| 2011 | $0 | $71,000 | $0 | $71,000 | $71,000 |
| 2010 | $0 | $71,000 | $0 | $71,000 | $71,000 |
| 2009 | $0 | $74,500 | $0 | $74,500 | $74,500 |
| 2008 | $0 | $117,600 | $0 | $117,600 | $117,600 |
Deed and Sales History
| 1 | 08/23/2018 | WD | Warranty Deed | WESTGATE MOBILE HOMES, INC. | HENNAGIR, DEBRA | | | $359,452.00 | 35647 | 4450687 |
| 2 | 10/12/2016 | WD | Warranty Deed | WESTGATE MOBILE HOMES, INC. | WESTGATE MOBILE HOMES, INC. | | | $0.00 | 26963 | 4411652 |
| 3 | 10/12/2016 | WD | Warranty Deed | HORTON, PAUL M | WESTGATE MOBILE HOMES, INC. | | | $72,000.00 | 26718 | 4410354 |
| 4 | 10/12/2016 | QCD | Quit Claim Deed | HORTON, PAUL & MERILEE | HORTON, PAUL M | | | $0.00 | 26715 | 4410351 |
Payout Agreement
| No payout information available.. |