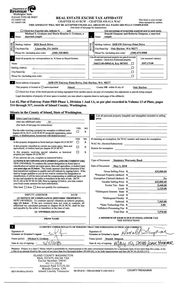
Property
Account |
| Property ID: | 808912 | Abbreviated Legal Description: | LOT2 SP 175-07.23328.496-2680 AF#4231856 |
| Geographic ID: | R23328-496-2850 | Agent Code: | |
| Type: | Real | | |
| Tax Area: | 112 - APPRAISER-OH Schl Dist, outside OH, improved, greater than 1 acre | Land Use Code | 11 |
| Open Space: | N | DFL | N |
| Historic Property: | N | Remodel Property: | N |
| Multi-Family Redevelopment: | N | | |
| Township: | 33 | Section: | 28 |
| Range: | R2 |
Location |
| Address: | 1021 BUNCH LN OAK HARBOR, WA 98277 | Mapsco: | |
| Neighborhood: | Cycle 6 | Map ID: | 634 |
| Neighborhood CD: | 6 |
Owner |
| Name: | WESSEL, MARK KEVIN | Owner ID: | 286603 |
| Mailing Address: | 1021 BUNCH LN OAK HARBOR, WA 98277 | % Ownership: | 100.0000000000% |
| | | Exemptions: | |
Taxes and Assessment Details
Values
| (+) Improvement Homesite Value: | + | $0 | |
| (+) Improvement Non-Homesite Value: | + | $229,818 | |
| (+) Land Homesite Value: | + | $0 | |
| (+) Land Non-Homesite Value: | + | $300,000 | |
| (+) Curr Use (HS): | + | $0 | $0 |
| (+) Curr Use (NHS): | + | $0 | $0 |
| | | -------------------------- | |
| (=) Market Value: | = | $529,818 | |
| (–) Productivity Loss: | – | $0 | |
| | | -------------------------- | |
| (=) Subtotal: | = | $529,818 | |
| (+) Senior Appraised Value: | + | $0 | |
| (+) Non-Senior Appraised Value: | + | $529,818 | |
| | | -------------------------- | |
| (=) Total Appraised Value: | = | $529,818 | |
| (–) Senior Exemption Loss: | – | $0 | |
| (–) Exemption Loss: | – | $0 | |
| | | -------------------------- | |
| (=) Taxable Value: | = | $529,818 | |
Taxing Jurisdiction
| Owner: | WESSEL, MARK KEVIN | | |
| % Ownership: | 100.0000000000% | | |
| Total Value: | $529,818 | | |
| Tax Area: | 112 - APPRAISER-OH Schl Dist, outside OH, improved, greater than 1 acre |
| CF | Conservation Futures | 0.0316035091 | $529,818 | $529,818 | $16.74 | | |
| CEM1 | Cemetery #1 | 0.0040320932 | $529,818 | $529,818 | $2.14 | | |
| FIRE2 | Fire & Rescue Dist #2 N Whidbey GEN | 0.5475949600 | $529,818 | $529,818 | $290.13 | | |
| HOBOND | Hospital BOND | 0.1910887512 | $529,818 | $529,818 | $101.24 | | |
| HOGEN | Hospital GEN | 0.3902502903 | $529,818 | $529,818 | $206.76 | | |
| CE | County Current Expense | 0.3708482477 | $529,818 | $529,818 | $196.48 | | |
| CR | County Roads | 0.4584763726 | $529,818 | $529,818 | $242.91 | | |
| ISLANDEMS | Hospital GEN (EMS) | 0.5000000000 | $529,818 | $529,818 | $264.91 | | |
| LIB | Library Sno-Isle GEN | 0.3153421757 | $529,818 | $529,818 | $167.07 | | |
| NWHIDPRMT | P & R N Whidbey GEN | 0.2004466701 | $529,818 | $529,818 | $106.20 | | |
| SCH201MO | School 201 Enrichment | 1.8559231640 | $529,818 | $529,818 | $983.30 | | |
| ST | State School | 1.3035497053 | $529,818 | $529,818 | $690.64 | | |
| ST2 | State School Part 2 | 0.8169543533 | $529,818 | $529,818 | $432.84 | | |
| | Total Tax Rate: | 6.9861102925 | | | | | |
| | | | | Taxes w/Current Exemptions: | $3,701.36 | | |
| | | | | Taxes w/o Exemptions: | $3,701.36 | | |
Improvement / Building
| Improvement #1: | MANUFACTURED HOME | State Code: | Y | 2160.0 sqft | Value: | $229,818 |
| Bathrooms: | 1 | Bedrooms: | 2 | | Ceiling: | PLASTER PAINTED | Cooling: | EVAP NO DUCT | | Exterior Wall/Cover: | VINYL | Floor Covering: | CARPET 100% | | Floor Structure: | SLAB ON GRADE | Foundation: | SLAB | | Heating: | FHA ELECTRIC | Interior Finish: | PLASTER | | Plumbing Fixture Cnt: | 1 | Roof Slope: | FLAT | | Roof Structure/Cover: | CJ ALUMINIUM HEAVY |   |   |
|
| | Type | Description | Class CD | Sub Class CD | Year Built | Area |
| | BAS | BASE/MAIN FLOOR | 5 | 0 | 2018 | 2160.0 |
| | UTY | STORAGE/UTILITY | 5 | 0 | 2018 | 864.0 |
| | OWP | OPEN WOOD PORCH W/STEPS | 5 | 0 | 2018 | 15.0 |
| | OWP | OPEN WOOD PORCH W/STEPS | 5 | 0 | 2018 | 48.0 |
Sketch
Property Image
Land
| 1 | 32 | AC (03.01-09.99) | 5.0000 | 0.00 | 0.00 | 0.00 | 1.00 | $300,000 | $0 |
Roll Value History
| 2026 | N/A | N/A | N/A | N/A | N/A |
| 2025 | $229,818 | $300,000 | $0 | $529,818 | $529,818 |
| 2024 | $232,128 | $280,000 | $0 | $512,128 | $512,128 |
| 2023 | $206,117 | $270,000 | $0 | $476,117 | $476,117 |
| 2022 | $187,451 | $240,000 | $0 | $427,451 | $427,451 |
| 2021 | $164,691 | $160,000 | $0 | $324,691 | $324,691 |
| 2020 | $139,984 | $140,000 | $0 | $279,984 | $279,984 |
| 2019 | $111,453 | $200,000 | $0 | $311,453 | $311,453 |
| 2018 | $0 | $110,000 | $0 | $110,000 | $110,000 |
| 2017 | $0 | $110,000 | $0 | $110,000 | $110,000 |
| 2016 | $0 | $80,000 | $0 | $80,000 | $80,000 |
| 2015 | $0 | $60,000 | $0 | $60,000 | $60,000 |
| 2014 | $0 | $75,000 | $0 | $75,000 | $75,000 |
| 2013 | $0 | $65,000 | $0 | $65,000 | $65,000 |
| 2012 | $0 | $71,000 | $0 | $71,000 | $71,000 |
| 2011 | $0 | $71,000 | $0 | $71,000 | $71,000 |
| 2010 | $0 | $71,000 | $0 | $71,000 | $71,000 |
| 2009 | $0 | $74,500 | $0 | $74,500 | $74,500 |
| 2008 | $0 | $117,600 | $0 | $117,600 | $117,600 |
Deed and Sales History
| 1 | 08/23/2018 | QCD | Quit Claim Deed | WESSEL, MARK KEVIN | WESSEL, MARK KEVIN | | | $0.00 | 35617 | 4450567 |
| 2 | 08/23/2018 | WD | Warranty Deed | WESTGATE MOBILE HOMES, INC. | WESSEL, MARK KEVIN | | | $322,400.00 | 35616 | 4450566 |
| 3 | 10/11/2016 | WD | Warranty Deed | HORTON, PAUL M | WESTGATE MOBILE HOMES, INC. | | | $72,000.00 | 26717 | 4410351 |
| 4 | 10/12/2016 | QCD | Quit Claim Deed | HORTON, PAUL & MERILEE | HORTON, PAUL M | | | $0.00 | 26715 | 4410351 |
Payout Agreement
| No payout information available.. |