Property
Account |
| Property ID: | 808972 | Abbreviated Legal Description: | PT SW DESC: PT NW SW LY ELY OF ST HWY 20 ALSO S390' OF W469.29' OF NE SW EX PT LY IN ST HWY 20 |
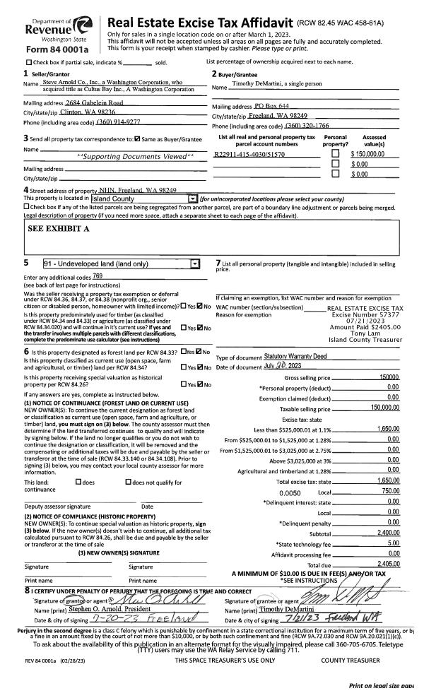
| Geographic ID: | R13302-151-1520 | Agent Code: | |
| Type: | Real | | |
| Tax Area: | 112 - APPRAISER-OH Schl Dist, outside OH, improved, greater than 1 acre | Land Use Code | 11 |
| Open Space: | N | DFL | N |
| Historic Property: | N | Remodel Property: | N |
| Multi-Family Redevelopment: | N | | |
| Township: | 33 | Section: | 02 |
| Range: | R1 |
Location |
| Address: | | Mapsco: | |
| Neighborhood: | Cycle 6 | Map ID: | 193 |
| Neighborhood CD: | 6 |
Owner |
| Name: | HENNI, ROBERT KARL | Owner ID: | 200168 |
| Mailing Address: | SUSAN LEE HENNI 39592 SR 20 OAK HARBOR, WA 98277-7948 | % Ownership: | 100.0000000000% |
| | | Exemptions: | SNR/DSBL |
Taxes and Assessment Details
Values
| (+) Improvement Homesite Value: | + | $211,536 | |
| (+) Improvement Non-Homesite Value: | + | $0 | |
| (+) Land Homesite Value: | + | $300,000 | |
| (+) Land Non-Homesite Value: | + | $0 | |
| (+) Curr Use (HS): | + | $0 | $0 |
| (+) Curr Use (NHS): | + | $0 | $0 |
| | | -------------------------- | |
| (=) Market Value: | = | $511,536 | |
| (–) Productivity Loss: | – | $0 | |
| | | -------------------------- | |
| (=) Subtotal: | = | $511,536 | |
| (+) Senior Appraised Value: | + | $239,914 | |
| (+) Non-Senior Appraised Value: | + | $0 | |
| | | -------------------------- | |
| (=) Total Appraised Value: | = | $239,914 | |
| (–) Senior Exemption Loss: | – | $143,948 | |
| (–) Exemption Loss: | – | $0 | |
| | | -------------------------- | |
| (=) Taxable Value: | = | $95,966 | |
Taxing Jurisdiction
| Owner: | HENNI, ROBERT KARL | | |
| % Ownership: | 100.0000000000% | | |
| Total Value: | $511,536 | | |
| Tax Area: | 112 - APPRAISER-OH Schl Dist, outside OH, improved, greater than 1 acre |
| CF | Conservation Futures | 0.0316035091 | $511,536 | $95,966 | $3.03 | | |
| CEM1 | Cemetery #1 | 0.0040320932 | $511,536 | $95,966 | $0.39 | | |
| FIRE2 | Fire & Rescue Dist #2 N Whidbey GEN | 0.5475949600 | $511,536 | $95,966 | $52.55 | | |
| HOBOND | Hospital BOND | 0.0000000000 | $511,536 | $0 | $0.00 | | |
| HOGEN | Hospital GEN | 0.3902502903 | $511,536 | $95,966 | $37.45 | | |
| CE | County Current Expense | 0.3708482477 | $511,536 | $95,966 | $35.59 | | |
| CR | County Roads | 0.4584763726 | $511,536 | $95,966 | $44.00 | | |
| ISLANDEMS | Hospital GEN (EMS) | 0.5000000000 | $511,536 | $95,966 | $47.98 | | |
| LIB | Library Sno-Isle GEN | 0.3153421757 | $511,536 | $95,966 | $30.26 | | |
| NWHIDPRMT | P & R N Whidbey GEN | 0.2004466701 | $511,536 | $95,966 | $19.24 | | |
| SCH201MO | School 201 Enrichment | 0.0000000000 | $511,536 | $0 | $0.00 | | |
| ST | State School | 1.3035497053 | $511,536 | $95,966 | $125.10 | | |
| ST2 | State School Part 2 | 0.0000000000 | $511,536 | $0 | $0.00 | | |
| | Total Tax Rate: | 4.1221440240 | | | | | |
| | | | | Taxes w/Current Exemptions: | $395.59 | | |
| | | | | Taxes w/o Exemptions: | $3,573.65 | | |
Improvement / Building
| Improvement #1: | RESIDENTIAL | State Code: | Y | 2692.0 sqft | Value: | $211,536 |
| Bathrooms: | 2 | Bedrooms: | 5 | | Ceiling: | DRYWALL PAINTED | Exterior Wall/Cover: | COMMON BRICK VENEER | | Floor Covering: | VINYL 100% | Floor Structure: | WOOD W/SUBFLOOR | | Foundation: | CONCRETE | Heating: | RAD HOT WATER-OIL | | Interior Finish: | DRYWALL PAINT | Plumbing Fixture Cnt: | 9 | | Roof Slope: | 12" IN 12" | Roof Structure/Cover: | CJ ASPHALT |
|
| | Type | Description | Class CD | Sub Class CD | Year Built | Area |
| | BAS | BASE/MAIN FLOOR | 3 | 0 | 1959 | 1312.0 |
| | UB6 | BASEMENT UNFINISHED 6" | 3 | 0 | 1959 | 627.0 |
| | OP2 | OPEN PORCH W/STEPS | 3 | 0 | 1959 | 16.0 |
| | OP2 | OPEN PORCH W/STEPS | 3 | 0 | 1959 | 32.0 |
| | OP3 | OPEN PORCH W/ROOF | 3 | 0 | 1959 | 154.0 |
| | AGR | ATTACHED GARAGE | 3 | 0 | 1959 | 308.0 |
| | UPH | HALF STORY | 3 | 0 | 1959 | 750.0 |
| | DWN | DOWNSTAIRS LIVING AREA | 3 | 0 | 1959 | 630.0 |
Sketch
Property Image
Land
| 1 | 32 | AC (03.01-09.99) | 5.0100 | 0.00 | 0.00 | 0.00 | 1.00 | $300,000 | $0 |
Roll Value History
| 2026 | N/A | N/A | N/A | N/A | N/A |
| 2025 | $211,536 | $300,000 | $0 | $511,536 | $95,966 |
| 2024 | $216,210 | $280,000 | $0 | $496,210 | $95,966 |
| 2023 | $220,885 | $270,000 | $0 | $490,885 | $95,966 |
| 2022 | $204,239 | $240,000 | $0 | $444,239 | $95,966 |
| 2021 | $181,287 | $175,000 | $0 | $356,287 | $95,966 |
| 2020 | $178,799 | $140,000 | $0 | $318,799 | $95,966 |
| 2019 | $142,123 | $200,000 | $0 | $342,123 | $95,966 |
| 2018 | $142,815 | $175,000 | $0 | $317,815 | $95,966 |
| 2017 | $135,291 | $140,000 | $0 | $275,291 | $95,966 |
| 2016 | $124,019 | $140,000 | $0 | $264,019 | $95,966 |
| 2015 | $126,773 | $120,000 | $0 | $246,773 | $95,966 |
| 2014 | $129,529 | $112,725 | $0 | $242,254 | $95,966 |
| 2013 | $132,285 | $121,743 | $0 | $254,028 | $95,966 |
| 2012 | $135,042 | $121,743 | $0 | $256,785 | $95,966 |
| 2011 | $137,797 | $135,270 | $0 | $273,067 | $95,966 |
| 2010 | $151,533 | $135,270 | $0 | $286,803 | $95,966 |
| 2009 | $159,037 | $60,120 | $0 | $219,157 | $87,663 |
| 2008 | $68,693 | $168,178 | $0 | $236,871 | $94,748 |
| 2007 | $0 | $0 | $0 | $239,914 | $94,748 |
Deed and Sales History
| 1 | 07/28/2008 | SEG | DNU - Segregation | Unknown | HENNI, GEORGIA | | | $0.00 | 80849 | 0 |
| 2 | 06/11/2008 | PRD | Personal Representatives Deed | HENNI, GEORGIA | HENNI, ROBERT KARL | | | $0.00 | 81537 | 4230887 |
Payout Agreement
| No payout information available.. |