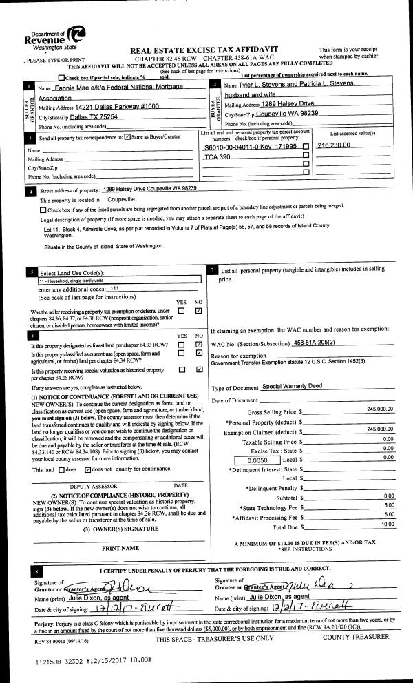
Property
Account |
| Property ID: | 808998 | Abbreviated Legal Description: | LOT 4 SP 114-07.23303.106-3430 & .213-3750 AF#4223329 |
| Geographic ID: | R23306-179-3840 | Agent Code: | |
| Type: | Real | | |
| Tax Area: | 119 - APPRAISER-OH Schl Dist, outside OH, vacant & 50 acres or less | Land Use Code | 91 |
| Open Space: | N | DFL | N |
| Historic Property: | N | Remodel Property: | N |
| Multi-Family Redevelopment: | N | | |
| Township: | 33 | Section: | 06 |
| Range: | R2 |
Location |
| Address: | | Mapsco: | |
| Neighborhood: | Cycle 6 | Map ID: | 587 |
| Neighborhood CD: | 6 |
Owner |
| Name: | CHO, EUNYOUNG | Owner ID: | 283463 |
| Mailing Address: | 2028 W SYCAMORE ST SAN BERNARDINO, CA 92407 | % Ownership: | 100.0000000000% |
| | | Exemptions: | |
Taxes and Assessment Details
Values
| (+) Improvement Homesite Value: | + | $0 | |
| (+) Improvement Non-Homesite Value: | + | $0 | |
| (+) Land Homesite Value: | + | $0 | |
| (+) Land Non-Homesite Value: | + | $170,000 | |
| (+) Curr Use (HS): | + | $0 | $0 |
| (+) Curr Use (NHS): | + | $0 | $0 |
| | | -------------------------- | |
| (=) Market Value: | = | $170,000 | |
| (–) Productivity Loss: | – | $0 | |
| | | -------------------------- | |
| (=) Subtotal: | = | $170,000 | |
| (+) Senior Appraised Value: | + | $0 | |
| (+) Non-Senior Appraised Value: | + | $170,000 | |
| | | -------------------------- | |
| (=) Total Appraised Value: | = | $170,000 | |
| (–) Senior Exemption Loss: | – | $0 | |
| (–) Exemption Loss: | – | $0 | |
| | | -------------------------- | |
| (=) Taxable Value: | = | $170,000 | |
Taxing Jurisdiction
| Owner: | CHO, EUNYOUNG | | |
| % Ownership: | 100.0000000000% | | |
| Total Value: | $170,000 | | |
| Tax Area: | 119 - APPRAISER-OH Schl Dist, outside OH, vacant & 50 acres or less |
| CF | Conservation Futures | 0.0316035091 | $170,000 | $170,000 | $5.37 | | |
| CEM1 | Cemetery #1 | 0.0040320932 | $170,000 | $170,000 | $0.69 | | |
| HOBOND | Hospital BOND | 0.1910887512 | $170,000 | $170,000 | $32.49 | | |
| HOGEN | Hospital GEN | 0.3902502903 | $170,000 | $170,000 | $66.34 | | |
| CE | County Current Expense | 0.3708482477 | $170,000 | $170,000 | $63.04 | | |
| CR | County Roads | 0.4584763726 | $170,000 | $170,000 | $77.94 | | |
| ISLANDEMS | Hospital GEN (EMS) | 0.5000000000 | $170,000 | $170,000 | $85.00 | | |
| LIB | Library Sno-Isle GEN | 0.3153421757 | $170,000 | $170,000 | $53.61 | | |
| NWHIDPRMT | P & R N Whidbey GEN | 0.2004466701 | $170,000 | $170,000 | $34.08 | | |
| SCH201MO | School 201 Enrichment | 1.8559231640 | $170,000 | $170,000 | $315.51 | | |
| ST | State School | 1.3035497053 | $170,000 | $170,000 | $221.60 | | |
| ST2 | State School Part 2 | 0.8169543533 | $170,000 | $170,000 | $138.88 | | |
| | Total Tax Rate: | 6.4385153325 | | | | | |
| | | | | Taxes w/Current Exemptions: | $1,094.55 | | |
| | | | | Taxes w/o Exemptions: | $1,094.55 | | |
Improvement / Building
Sketch
| No sketches available for this property. |
Property Image
Land
| 1 | 32 | AC (03.01-09.99) | 4.9000 | 0.00 | 0.00 | 0.00 | 1.00 | $170,000 | $0 |
Roll Value History
| 2026 | N/A | N/A | N/A | N/A | N/A |
| 2025 | $0 | $170,000 | $0 | $170,000 | $170,000 |
| 2024 | $0 | $150,000 | $0 | $150,000 | $150,000 |
| 2023 | $0 | $140,000 | $0 | $140,000 | $140,000 |
| 2022 | $0 | $100,000 | $0 | $100,000 | $100,000 |
| 2021 | $0 | $90,000 | $0 | $90,000 | $90,000 |
| 2020 | $0 | $90,000 | $0 | $90,000 | $90,000 |
| 2019 | $0 | $90,000 | $0 | $90,000 | $90,000 |
| 2018 | $0 | $90,000 | $0 | $90,000 | $90,000 |
| 2017 | $0 | $80,000 | $0 | $80,000 | $80,000 |
| 2016 | $0 | $80,000 | $0 | $80,000 | $80,000 |
| 2015 | $0 | $70,000 | $0 | $70,000 | $70,000 |
| 2014 | $0 | $98,000 | $0 | $98,000 | $98,000 |
| 2013 | $0 | $98,000 | $0 | $98,000 | $98,000 |
| 2012 | $0 | $98,000 | $0 | $98,000 | $98,000 |
| 2011 | $0 | $98,000 | $0 | $98,000 | $98,000 |
| 2010 | $0 | $98,000 | $0 | $98,000 | $98,000 |
| 2009 | $0 | $112,700 | $0 | $112,700 | $112,700 |
| 2008 | $0 | $0 | $0 | $103,510 | $103,510 |
Deed and Sales History
| 1 | 12/29/2017 | QCD | Quit Claim Deed | CHO, EUNYOUNG | CHO, EUNYOUNG | | | $0.00 | 32480 | 4436739 |
| 2 | 01/02/2018 | WD | Warranty Deed | VALDEZ, RYAN R | CHO, EUNYOUNG | | | $105,000.00 | 32481 | 4436739 |
| 3 | 01/10/2017 | CHGOFIDENT | DNU - Change In Identity | TIMBERLAND PROPERTIES LLC | VALDEZ, RYAN R | | | $0.00 | 27716 | 4415071 |
| 4 | 05/22/2008 | QCD | Quit Claim Deed | TIMBERLAND PROPERTIES LLC, | TIMBERLAND PROPERTIES LLC, | | | $0.00 | 82003 | 4234023 |
| 5 | 01/01/1900 | OTHER | Other - Misc. Documents | Unknown | TIMBERLAND PROPERTIES LLC, | | | $0.00 | 0 | 0 |
Payout Agreement
| No payout information available.. |