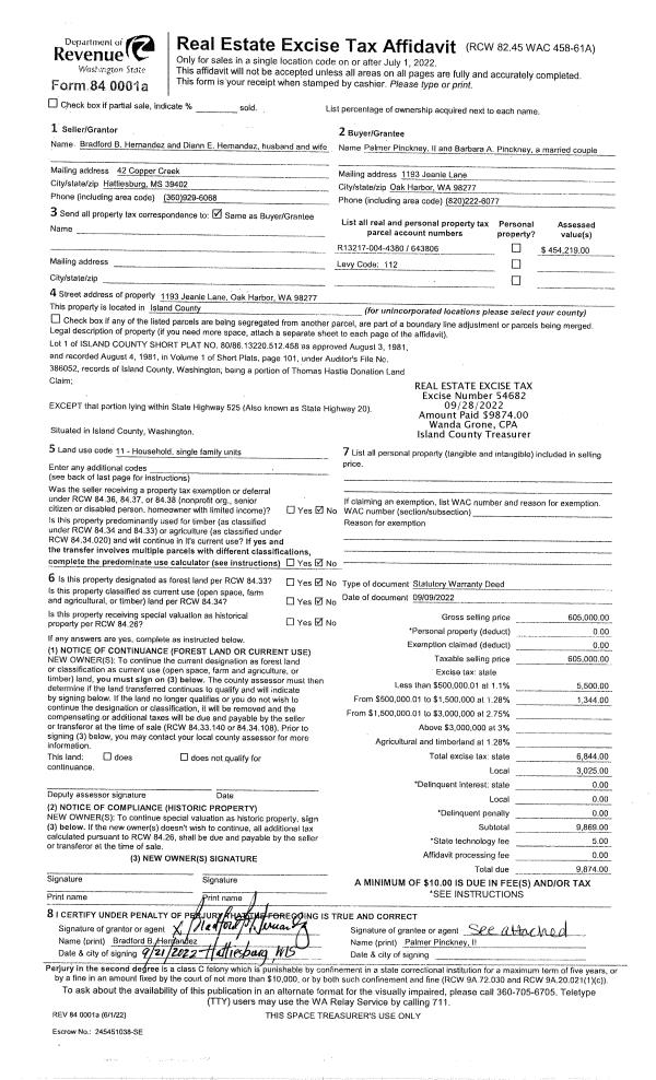
Property
Account |
| Property ID: | 80913 | Abbreviated Legal Description: | 187 - IN S/2 NE NE:BG NE CR TR B CAM HTS #4 E233.15' TPB E567.3' N133.84' N75* W482.38' N79*W102.43' S285. 2' TPB |
| Geographic ID: | R23114-444-5000 | Agent Code: | |
| Type: | Real | | |
| Tax Area: | 512 - APPRAISER-Stan/Cam Schl Dist, improved, greater than 1 acre | Land Use Code | 11 |
| Open Space: | N | DFL | N |
| Historic Property: | N | Remodel Property: | N |
| Multi-Family Redevelopment: | N | | |
| Township: | 31 | Section: | 14 |
| Range: | R2 |
Location |
| Address: | 425 FORREST WAY CAMANO ISLAND, WA 98282 | Mapsco: | |
| Neighborhood: | Cycle 5 | Map ID: | 484 |
| Neighborhood CD: | 5 |
Owner |
| Name: | BLOUNT, DWAYNE A / KRISTY L | Owner ID: | 58178 |
| Mailing Address: | 425 FORREST WAY CAMANO ISLAND, WA 98282-6532 | % Ownership: | 100.0000000000% |
| | | Exemptions: | |
Taxes and Assessment Details
Values
| (+) Improvement Homesite Value: | + | $0 | |
| (+) Improvement Non-Homesite Value: | + | $330,323 | |
| (+) Land Homesite Value: | + | $0 | |
| (+) Land Non-Homesite Value: | + | $290,000 | |
| (+) Curr Use (HS): | + | $0 | $0 |
| (+) Curr Use (NHS): | + | $0 | $0 |
| | | -------------------------- | |
| (=) Market Value: | = | $620,323 | |
| (–) Productivity Loss: | – | $0 | |
| | | -------------------------- | |
| (=) Subtotal: | = | $620,323 | |
| (+) Senior Appraised Value: | + | $0 | |
| (+) Non-Senior Appraised Value: | + | $620,323 | |
| | | -------------------------- | |
| (=) Total Appraised Value: | = | $620,323 | |
| (–) Senior Exemption Loss: | – | $0 | |
| (–) Exemption Loss: | – | $0 | |
| | | -------------------------- | |
| (=) Taxable Value: | = | $620,323 | |
Taxing Jurisdiction
| Owner: | BLOUNT, DWAYNE A / KRISTY L | | |
| % Ownership: | 100.0000000000% | | |
| Total Value: | $620,323 | | |
| Tax Area: | 512 - APPRAISER-Stan/Cam Schl Dist, improved, greater than 1 acre |
| CF | Conservation Futures | 0.0316035091 | $620,323 | $620,323 | $19.60 | | |
| EMS1 | Fire & Rescue Dist #1 Camano GEN (EMS) | 0.3677864386 | $620,323 | $620,323 | $228.15 | | |
| FIRE1 | Fire & Rescue Dist #1 Camano GEN | 1.2502910536 | $620,323 | $620,323 | $775.58 | | |
| FIRE1BOND | Fire & Rescue Dist #1 Camano BOND | 0.1570001679 | $620,323 | $620,323 | $97.39 | | |
| CE | County Current Expense | 0.3708482477 | $620,323 | $620,323 | $230.05 | | |
| CR | County Roads | 0.4584763726 | $620,323 | $620,323 | $284.40 | | |
| LCIB | Library Sno-Isle BOND (Camano Island) | 0.0396325772 | $620,323 | $620,323 | $24.58 | | |
| LIB | Library Sno-Isle GEN | 0.3153421757 | $620,323 | $620,323 | $195.61 | | |
| SCH205_401 | School 205-401 Enrichment | 1.2698420524 | $620,323 | $620,323 | $787.71 | | |
| SCH205BOND | School 205-401 BOND | 0.9396497583 | $620,323 | $620,323 | $582.89 | | |
| ST | State School | 1.3035497053 | $620,323 | $620,323 | $808.62 | | |
| ST2 | State School Part 2 | 0.8169543533 | $620,323 | $620,323 | $506.78 | | |
| | Total Tax Rate: | 7.3209764117 | | | | | |
| | | | | Taxes w/Current Exemptions: | $4,541.36 | | |
| | | | | Taxes w/o Exemptions: | $4,541.36 | | |
Improvement / Building
| Improvement #1: | RESIDENTIAL | State Code: | Y | 2184.0 sqft | Value: | $330,323 |
| Bathrooms: | 2 | Bedrooms: | 2 | | Ceiling: | TONGUE & GROOVE | Exterior Wall/Cover: | LOG TO 10" | | Floor Covering: | CARPET/VINYL 80-20 | Floor Structure: | WOOD W/SUBFLOOR | | Foundation: | CONCRETE | Interior Finish: | DRYWALL PAINT | | Plumbing Fixture Cnt: | 9 | Roof Slope: | 5" IN 12" | | Roof Structure/Cover: | BEAM WOOD SHAKES |   |   |
|
| | Type | Description | Class CD | Sub Class CD | Year Built | Area |
| | BAS | BASE/MAIN FLOOR | 4 | 0 | 1980 | 1209.0 |
| | UB8 | BASEMENT UNFINISHED 8" | 4 | 0 | 1980 | 399.0 |
| | DWN | DOWNSTAIRS LIVING AREA | 4 | 0 | 1980 | 810.0 |
| | OCP | OPEN CARPORT | 4 | 0 | 1980 | 237.1 |
| | OWP | OPEN WOOD PORCH W/STEPS | 4 | 0 | 1980 | 657.3 |
| | OWR | OPEN WOOD PORCH W/STEPS/ROOF | 4 | 0 | 1980 | 26.9 |
| | LOF | LOFT | 4 | 0 | 1980 | 165.0 |
| | OCP | OPEN CARPORT | 4 | 0 | 1980 | 336.0 |
| | DGR | DETACHED GARAGE | 4 | 0 | 1980 | 1440.0 |
Sketch
Property Image
Land
| 1 | 18 | AC (02.01-03.00) | 2.7200 | 118483.20 | 0.00 | 0.00 | 1.00 | $290,000 | $0 |
Roll Value History
| 2026 | N/A | N/A | N/A | N/A | N/A |
| 2025 | $330,323 | $290,000 | $0 | $620,323 | $620,323 |
| 2024 | $355,431 | $280,000 | $0 | $635,431 | $635,431 |
| 2023 | $360,322 | $270,000 | $0 | $630,322 | $630,322 |
| 2022 | $332,749 | $260,000 | $0 | $592,749 | $592,749 |
| 2021 | $252,076 | $180,000 | $0 | $432,076 | $432,076 |
| 2020 | $246,979 | $150,000 | $0 | $396,979 | $396,979 |
| 2019 | $185,658 | $200,000 | $0 | $385,658 | $385,658 |
| 2018 | $186,269 | $180,000 | $0 | $366,269 | $366,269 |
| 2017 | $187,465 | $140,000 | $0 | $327,465 | $327,465 |
| 2016 | $189,905 | $140,000 | $0 | $329,905 | $329,905 |
| 2015 | $180,365 | $63,200 | $0 | $243,565 | $243,565 |
| 2014 | $182,749 | $63,200 | $0 | $245,949 | $245,949 |
| 2013 | $185,132 | $63,200 | $0 | $248,332 | $248,332 |
| 2012 | $187,514 | $63,200 | $0 | $250,714 | $250,714 |
| 2011 | $189,898 | $79,000 | $0 | $268,898 | $268,898 |
| 2010 | $204,737 | $79,000 | $0 | $283,737 | $283,737 |
| 2009 | $217,520 | $130,000 | $0 | $347,520 | $347,520 |
| 2008 | $214,890 | $124,080 | $0 | $338,970 | $338,970 |
| 2007 | $218,283 | $124,080 | $0 | $342,363 | $342,363 |
Deed and Sales History
| 1 | 02/01/1997 | WD | Warranty Deed | ESPERSON, SAM H | BLOUNT, DWAYNE A | | | $190,000.00 | 70639 | 97002910 |
| 2 | 05/01/1978 | OTHER | Other - Misc. Documents | Unknown | ESPERSON, SAM H | | | $10,000.00 | 82285 | 333019 |
Payout Agreement
| No payout information available.. |