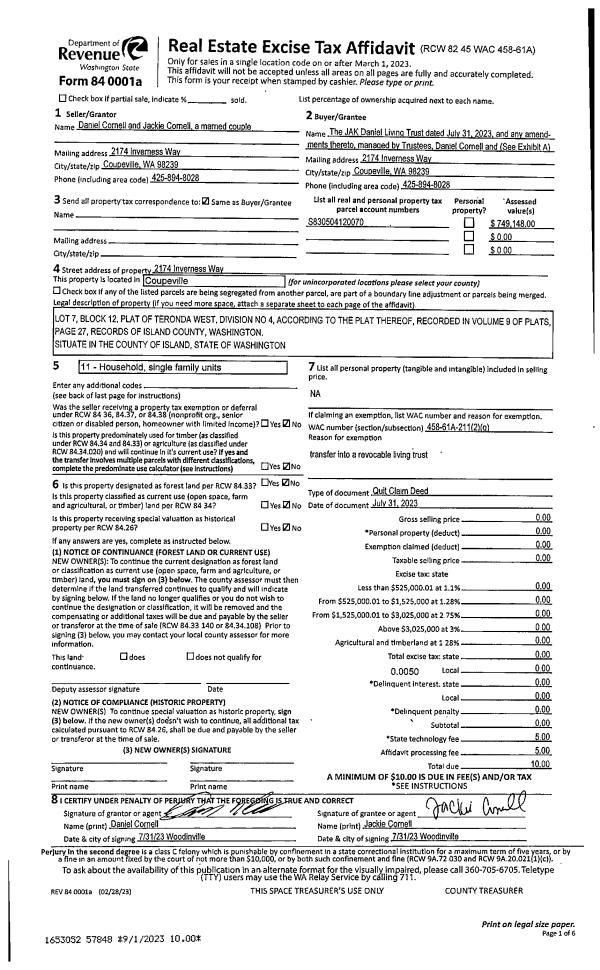
Property
Account |
| Property ID: | 809174 | Abbreviated Legal Description: | TRACT 3-1 OH-BSP 4-00001.13326.051-2830 BINDING SITE PLANS AF#4163839 |
| Geographic ID: | R13326-066-2640 | Agent Code: | |
| Type: | Real | | |
| Tax Area: | 100 - APPRAISER-OH Schl Dist, in OH | Land Use Code | 64 |
| Open Space: | N | DFL | N |
| Historic Property: | N | Remodel Property: | N |
| Multi-Family Redevelopment: | N | | |
| Township: | 33 | Section: | 26 |
| Range: | R1 |
Location |
| Address: | 1751 NE GOLDIE ST OAK HARBOR, WA 98277 | Mapsco: | |
| Neighborhood: | 6AcOH-goldie rd | Map ID: | 231 |
| Neighborhood CD: | 6AcOHgolde |
Owner |
| Name: | SIGLER TTEE, BERNARD J | Owner ID: | 293504 |
| Mailing Address: | 1751 NE GOLDIE ST OAK HARBOR, WA 98277 | % Ownership: | 100.0000000000% |
| | | Exemptions: | |
Taxes and Assessment Details
Values
| (+) Improvement Homesite Value: | + | $0 | |
| (+) Improvement Non-Homesite Value: | + | $196,627 | |
| (+) Land Homesite Value: | + | $0 | |
| (+) Land Non-Homesite Value: | + | $213,662 | |
| (+) Curr Use (HS): | + | $0 | $0 |
| (+) Curr Use (NHS): | + | $0 | $0 |
| | | -------------------------- | |
| (=) Market Value: | = | $410,289 | |
| (–) Productivity Loss: | – | $0 | |
| | | -------------------------- | |
| (=) Subtotal: | = | $410,289 | |
| (+) Senior Appraised Value: | + | $0 | |
| (+) Non-Senior Appraised Value: | + | $410,289 | |
| | | -------------------------- | |
| (=) Total Appraised Value: | = | $410,289 | |
| (–) Senior Exemption Loss: | – | $0 | |
| (–) Exemption Loss: | – | $0 | |
| | | -------------------------- | |
| (=) Taxable Value: | = | $410,289 | |
Taxing Jurisdiction
| Owner: | SIGLER TTEE, BERNARD J | | |
| % Ownership: | 100.0000000000% | | |
| Total Value: | $410,289 | | |
| Tax Area: | 100 - APPRAISER-OH Schl Dist, in OH |
| CF | Conservation Futures | 0.0316035091 | $410,289 | $410,289 | $12.97 | | |
| CEM1 | Cemetery #1 | 0.0040320932 | $410,289 | $410,289 | $1.65 | | |
| COH | City of Oak Harbor | 2.3001546061 | $410,289 | $410,289 | $943.73 | | |
| OAKBOND | City of Oak Harbor BOND | 0.1926904192 | $410,289 | $410,289 | $79.06 | | |
| HOBOND | Hospital BOND | 0.1910887512 | $410,289 | $410,289 | $78.40 | | |
| HOGEN | Hospital GEN | 0.3902502903 | $410,289 | $410,289 | $160.12 | | |
| CE | County Current Expense | 0.3708482477 | $410,289 | $410,289 | $152.15 | | |
| ISLANDEMS | Hospital GEN (EMS) | 0.5000000000 | $410,289 | $410,289 | $205.14 | | |
| LIB | Library Sno-Isle GEN | 0.3153421757 | $410,289 | $410,289 | $129.38 | | |
| NWHIDPRMT | P & R N Whidbey GEN | 0.2004466701 | $410,289 | $410,289 | $82.24 | | |
| SCH201MO | School 201 Enrichment | 1.8559231640 | $410,289 | $410,289 | $761.46 | | |
| ST | State School | 1.3035497053 | $410,289 | $410,289 | $534.83 | | |
| ST2 | State School Part 2 | 0.8169543533 | $410,289 | $410,289 | $335.19 | | |
| | Total Tax Rate: | 8.4728839852 | | | | | |
| | | | | Taxes w/Current Exemptions: | $3,476.32 | | |
| | | | | Taxes w/o Exemptions: | $3,476.32 | | |
Improvement / Building
| Improvement #1: | COMMERCIAL | State Code: | F1 | 8956.0 sqft | Value: | $196,627 |
| Bathrooms: | 0 | Bedrooms: | 0 | | Ceiling: | PAINT OPEN FLOOR BAS | Exterior Wall/Cover: | STL/ALUM/SINGWL ST F | | Floor Covering: | CONCRETE SEALER | Floor Structure: | CONCRETE ON GROUND | | Foundation: | SLAB | Heating: | SPACE HEATERS | | Interior Finish: | SERVICE GARAGE | Plumbing Fixture Cnt: | 1 | | Roof Structure/Cover: | METAL/OPEN STEEL |   |   |
|
| | Type | Description | Class CD | Sub Class CD | Year Built | Area |
| | BAS | BASE/MAIN FLOOR | 2 | 0 | 1976 | 8776.0 |
| | STG | STORAGE | 2 | 0 | 1976 | 180.0 |
| | oPV1 | PV/ASPH 2" | 2 | 0 | 1976 | 649.0 |
| | OP1 | OPEN PORCH SLAB | 2 | 0 | 1976 | 75.9 |
| | OP1 | OPEN PORCH SLAB | 2 | 0 | 1976 | 120.0 |
Sketch
Property Image
Land
| 1 | 71 | INDUSTRIAL MANUFACTURING | 1.0900 | 47480.40 | 0.00 | 0.00 | 1.00 | $213,662 | $0 |
Roll Value History
| 2026 | N/A | N/A | N/A | N/A | N/A |
| 2025 | $196,627 | $213,662 | $0 | $410,289 | $410,289 |
| 2024 | $219,083 | $213,662 | $0 | $432,745 | $432,745 |
| 2023 | $241,541 | $189,922 | $0 | $431,463 | $431,463 |
| 2022 | $172,514 | $237,402 | $0 | $409,916 | $409,916 |
| 2021 | $171,463 | $237,402 | $0 | $408,865 | $408,865 |
| 2020 | $171,339 | $237,402 | $0 | $408,741 | $408,741 |
| 2019 | $197,158 | $189,922 | $0 | $387,080 | $387,080 |
| 2018 | $197,178 | $166,181 | $0 | $363,359 | $363,359 |
| 2017 | $197,219 | $107,305 | $0 | $304,524 | $304,524 |
| 2016 | $207,748 | $107,305 | $0 | $315,053 | $315,053 |
| 2015 | $207,748 | $107,305 | $0 | $315,053 | $315,053 |
| 2014 | $207,748 | $107,305 | $0 | $315,053 | $315,053 |
| 2013 | $192,220 | $107,305 | $0 | $299,525 | $299,525 |
| 2012 | $192,220 | $107,305 | $0 | $299,525 | $299,525 |
| 2011 | $192,220 | $107,305 | $0 | $299,525 | $299,525 |
| 2010 | $211,406 | $107,305 | $0 | $318,711 | $318,711 |
| 2009 | $218,994 | $117,276 | $0 | $336,270 | $336,270 |
| 2008 | $103,260 | $229,838 | $0 | $333,098 | $333,098 |
| 2007 | $0 | $0 | $0 | $340,686 | $340,686 |
Deed and Sales History
| 1 | 02/12/2020 | WD | Warranty Deed | SIGLER TTEE, BERNARD J | SIGLER TTEE, BERNARD J | | | $330,004.00 | 42119 | 4481444 |
|   | |
| 2 | 03/06/2019 | QCD | Quit Claim Deed | SIGLER, BERNARD J | SIGLER TTEE, BERNARD J | | | $0.00 | 38796 | 4464591 |
| 3 | 01/01/1900 | OTHER | Other - Misc. Documents | Unknown | SIGLER, BERNARD J | | | $0.00 | 0 | 0 |
Payout Agreement
| No payout information available.. |