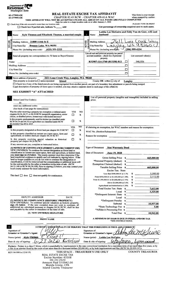
Property
Account |
| Property ID: | 809207 | Abbreviated Legal Description: | LOT 1 SP 144-07.23203.207-2330 AF#4236053 EX N 49.05' TGW & SUB TO ANY EASEMENTS |
| Geographic ID: | R23203-169-2330 | Agent Code: | |
| Type: | Real | | |
| Tax Area: | 112 - APPRAISER-OH Schl Dist, outside OH, improved, greater than 1 acre | Land Use Code | 11 |
| Open Space: | N | DFL | N |
| Historic Property: | N | Remodel Property: | N |
| Multi-Family Redevelopment: | N | | |
| Township: | 32 | Section: | 03 |
| Range: | R2 |
Location |
| Address: | 2119 CHINOOK RIDGE #1984 OAK HARBOR, WA 98277 | Mapsco: | |
| Neighborhood: | Cycle 6 | Map ID: | 540 |
| Neighborhood CD: | 6 |
Owner |
| Name: | GARCIA, RAPHAEL M | Owner ID: | 293231 |
| Mailing Address: | DEBORAH L GARCIA PO BOX 2606 OAK HARBOR, WA 98277 | % Ownership: | 100.0000000000% |
| | | Exemptions: | |
Taxes and Assessment Details
Values
| (+) Improvement Homesite Value: | + | $0 | |
| (+) Improvement Non-Homesite Value: | + | $627,745 | |
| (+) Land Homesite Value: | + | $0 | |
| (+) Land Non-Homesite Value: | + | $380,000 | |
| (+) Curr Use (HS): | + | $0 | $0 |
| (+) Curr Use (NHS): | + | $0 | $0 |
| | | -------------------------- | |
| (=) Market Value: | = | $1,007,745 | |
| (–) Productivity Loss: | – | $0 | |
| | | -------------------------- | |
| (=) Subtotal: | = | $1,007,745 | |
| (+) Senior Appraised Value: | + | $0 | |
| (+) Non-Senior Appraised Value: | + | $1,007,745 | |
| | | -------------------------- | |
| (=) Total Appraised Value: | = | $1,007,745 | |
| (–) Senior Exemption Loss: | – | $0 | |
| (–) Exemption Loss: | – | $0 | |
| | | -------------------------- | |
| (=) Taxable Value: | = | $1,007,745 | |
Taxing Jurisdiction
| Owner: | GARCIA, RAPHAEL M | | |
| % Ownership: | 100.0000000000% | | |
| Total Value: | $1,007,745 | | |
| Tax Area: | 112 - APPRAISER-OH Schl Dist, outside OH, improved, greater than 1 acre |
| CF | Conservation Futures | 0.0316035091 | $1,007,745 | $1,007,745 | $31.85 | | |
| CEM1 | Cemetery #1 | 0.0040320932 | $1,007,745 | $1,007,745 | $4.06 | | |
| FIRE2 | Fire & Rescue Dist #2 N Whidbey GEN | 0.5475949600 | $1,007,745 | $1,007,745 | $551.84 | | |
| HOBOND | Hospital BOND | 0.1910887512 | $1,007,745 | $1,007,745 | $192.57 | | |
| HOGEN | Hospital GEN | 0.3902502903 | $1,007,745 | $1,007,745 | $393.27 | | |
| CE | County Current Expense | 0.3708482477 | $1,007,745 | $1,007,745 | $373.72 | | |
| CR | County Roads | 0.4584763726 | $1,007,745 | $1,007,745 | $462.03 | | |
| ISLANDEMS | Hospital GEN (EMS) | 0.5000000000 | $1,007,745 | $1,007,745 | $503.87 | | |
| LIB | Library Sno-Isle GEN | 0.3153421757 | $1,007,745 | $1,007,745 | $317.78 | | |
| NWHIDPRMT | P & R N Whidbey GEN | 0.2004466701 | $1,007,745 | $1,007,745 | $202.00 | | |
| SCH201MO | School 201 Enrichment | 1.8559231640 | $1,007,745 | $1,007,745 | $1,870.30 | | |
| ST | State School | 1.3035497053 | $1,007,745 | $1,007,745 | $1,313.65 | | |
| ST2 | State School Part 2 | 0.8169543533 | $1,007,745 | $1,007,745 | $823.28 | | |
| | Total Tax Rate: | 6.9861102925 | | | | | |
| | | | | Taxes w/Current Exemptions: | $7,040.22 | | |
| | | | | Taxes w/o Exemptions: | $7,040.22 | | |
Improvement / Building
| Improvement #1: | RESIDENTIAL | State Code: | Y | 2385.5 sqft | Value: | $627,745 |
| Bathrooms: | 2.5 | Bedrooms: | 3 | | Ceiling: | DRYWALL PAINTED | Cooling: | HEAT PUMP/CONV/V | | Exterior Wall/Cover: | PLY/HARDBOARD T-111 | Floor Covering: | CARPET/VINYL 60-40 | | Floor Structure: | WOOD W/SUBFLOOR | Foundation: | CONCRETE | | Interior Finish: | DRYWALL PAINT | Plumbing Fixture Cnt: | 14 | | Roof Slope: | 6" IN 12" | Roof Structure/Cover: | CJ ASPHALT |
|
| | Type | Description | Class CD | Sub Class CD | Year Built | Area |
| | BAS | BASE/MAIN FLOOR | 4 | 0 | 2021 | 2385.5 |
| | AGR | ATTACHED GARAGE | 4 | 0 | 2021 | 484.0 |
| | OWC | OPEN WOOD PORCH W/STEPS/ROOF/C | 4 | 0 | 2021 | 150.0 |
| | OWC | OPEN WOOD PORCH W/STEPS/ROOF/C | 4 | 0 | 2021 | 682.2 |
| | UTY | STORAGE/UTILITY | 4 | 0 | 2021 | 1440.0 |
| | ATU | ATTIC UNFINISHED | 4 | 0 | 2021 | 792.0 |
Sketch
Property Image
Land
| 1 | 32 | AC (03.01-09.99) | 5.0000 | 217800.00 | 0.00 | 0.00 | 1.00 | $380,000 | $0 |
Roll Value History
| 2026 | N/A | N/A | N/A | N/A | N/A |
| 2025 | $627,745 | $380,000 | $0 | $1,007,745 | $1,007,745 |
| 2024 | $632,726 | $340,000 | $0 | $972,726 | $972,726 |
| 2023 | $639,370 | $320,000 | $0 | $959,370 | $959,370 |
| 2022 | $592,524 | $320,000 | $0 | $912,524 | $912,524 |
| 2021 | $405,440 | $190,000 | $0 | $595,440 | $595,440 |
| 2020 | $0 | $90,000 | $0 | $90,000 | $90,000 |
| 2019 | $0 | $110,000 | $0 | $110,000 | $110,000 |
| 2018 | $0 | $110,000 | $0 | $110,000 | $110,000 |
| 2017 | $0 | $110,000 | $0 | $110,000 | $110,000 |
| 2016 | $0 | $80,000 | $0 | $80,000 | $80,000 |
| 2015 | $0 | $60,000 | $0 | $60,000 | $60,000 |
| 2014 | $0 | $75,000 | $0 | $75,000 | $75,000 |
| 2013 | $0 | $65,000 | $0 | $65,000 | $65,000 |
| 2012 | $0 | $99,800 | $0 | $99,800 | $99,800 |
| 2011 | $0 | $99,800 | $0 | $99,800 | $99,800 |
| 2010 | $0 | $99,800 | $0 | $99,800 | $99,800 |
| 2009 | $0 | $154,980 | $0 | $154,980 | $154,980 |
| 2008 | $0 | $0 | $0 | $59,966 | $59,966 |
Deed and Sales History
| 1 | 01/16/2020 | WD | Warranty Deed | VALLEY HIGH INVESTMENTS INC | GARCIA, RAPHAEL M | | | $262,500.00 | 41820 | 4479475 |
| 2 | 07/06/2010 | BLA | DNU - Boundary Line Adjustment | VALLEY HIGH INVESTMTS INC, | VALLEY HIGH INVESTMTS INC, | | | $0.00 | 81787 | 4256843 |
| 3 | 01/01/1900 | OTHER | Other - Misc. Documents | Unknown | VALLEY HIGH INVESTMTS INC, | | | $0.00 | 0 | 0 |
Payout Agreement
| No payout information available.. |