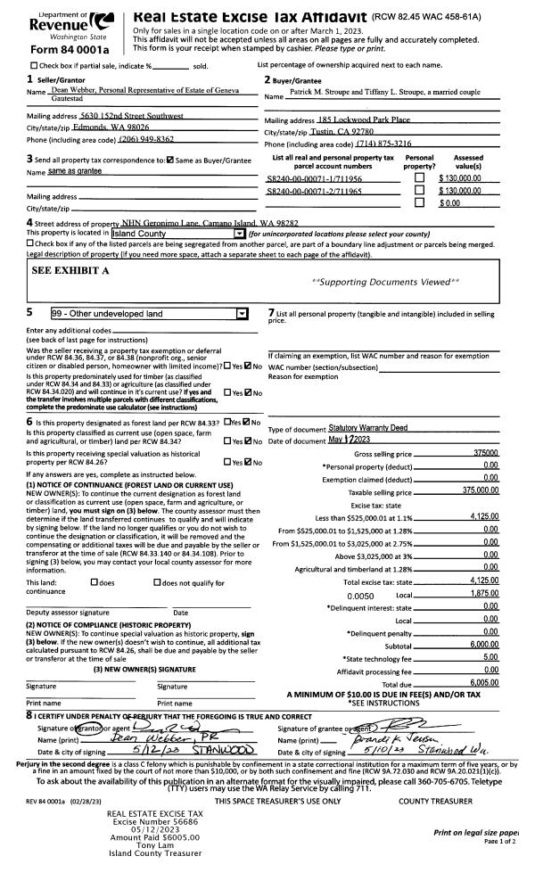
Property
Account |
| Property ID: | 809208 | Abbreviated Legal Description: | LOT 2 SP 144-07.23203.207-2330 AF#4236053 TGW N 49.05' OF E/2 LOT 1 SD SP 144-07 EX PT DESC: BG NWCR SD LOT 2 SD SP 144-07 S1*W ALG WLN OF SD LOT 2 312.29' TO NLN OF SOCKEYE RIDGE WY & TPB CONT S1*W ALG WLN SD LOT 2 495.41' TO PT ON SLN N 49.05' OF LOT |
| Geographic ID: | R23203-226-2490 | Agent Code: | |
| Type: | Real | | |
| Tax Area: | 112 - APPRAISER-OH Schl Dist, outside OH, improved, greater than 1 acre | Land Use Code | 11 |
| Open Space: | N | DFL | N |
| Historic Property: | N | Remodel Property: | N |
| Multi-Family Redevelopment: | N | | |
| Township: | 32 | Section: | 03 |
| Range: | R2 |
Location |
| Address: | 2175 SOCKEYE RIDGE WAY OAK HARBOR, WA 98277 | Mapsco: | |
| Neighborhood: | Cycle 6 | Map ID: | 540 |
| Neighborhood CD: | 6 |
Owner |
| Name: | FROST, PETER J | Owner ID: | 274225 |
| Mailing Address: | DIANE M FROST 2175 SOCKEYE RIDGE WAY OAK HARBOR, WA 98277 | % Ownership: | 100.0000000000% |
| | | Exemptions: | |
Taxes and Assessment Details
Values
| (+) Improvement Homesite Value: | + | $986,696 | |
| (+) Improvement Non-Homesite Value: | + | $0 | |
| (+) Land Homesite Value: | + | $0 | |
| (+) Land Non-Homesite Value: | + | $380,000 | |
| (+) Curr Use (HS): | + | $0 | $0 |
| (+) Curr Use (NHS): | + | $0 | $0 |
| | | -------------------------- | |
| (=) Market Value: | = | $1,366,696 | |
| (–) Productivity Loss: | – | $0 | |
| | | -------------------------- | |
| (=) Subtotal: | = | $1,366,696 | |
| (+) Senior Appraised Value: | + | $0 | |
| (+) Non-Senior Appraised Value: | + | $1,366,696 | |
| | | -------------------------- | |
| (=) Total Appraised Value: | = | $1,366,696 | |
| (–) Senior Exemption Loss: | – | $0 | |
| (–) Exemption Loss: | – | $0 | |
| | | -------------------------- | |
| (=) Taxable Value: | = | $1,366,696 | |
Taxing Jurisdiction
| Owner: | FROST, PETER J | | |
| % Ownership: | 100.0000000000% | | |
| Total Value: | $1,366,696 | | |
| Tax Area: | 112 - APPRAISER-OH Schl Dist, outside OH, improved, greater than 1 acre |
| CF | Conservation Futures | 0.0316035091 | $1,366,696 | $1,366,696 | $43.19 | | |
| CEM1 | Cemetery #1 | 0.0040320932 | $1,366,696 | $1,366,696 | $5.51 | | |
| FIRE2 | Fire & Rescue Dist #2 N Whidbey GEN | 0.5475949600 | $1,366,696 | $1,366,696 | $748.40 | | |
| HOBOND | Hospital BOND | 0.1910887512 | $1,366,696 | $1,366,696 | $261.16 | | |
| HOGEN | Hospital GEN | 0.3902502903 | $1,366,696 | $1,366,696 | $533.35 | | |
| CE | County Current Expense | 0.3708482477 | $1,366,696 | $1,366,696 | $506.84 | | |
| CR | County Roads | 0.4584763726 | $1,366,696 | $1,366,696 | $626.60 | | |
| ISLANDEMS | Hospital GEN (EMS) | 0.5000000000 | $1,366,696 | $1,366,696 | $683.35 | | |
| LIB | Library Sno-Isle GEN | 0.3153421757 | $1,366,696 | $1,366,696 | $430.98 | | |
| NWHIDPRMT | P & R N Whidbey GEN | 0.2004466701 | $1,366,696 | $1,366,696 | $273.95 | | |
| SCH201MO | School 201 Enrichment | 1.8559231640 | $1,366,696 | $1,366,696 | $2,536.48 | | |
| ST | State School | 1.3035497053 | $1,366,696 | $1,366,696 | $1,781.56 | | |
| ST2 | State School Part 2 | 0.8169543533 | $1,366,696 | $1,366,696 | $1,116.53 | | |
| | Total Tax Rate: | 6.9861102925 | | | | | |
| | | | | Taxes w/Current Exemptions: | $9,547.90 | | |
| | | | | Taxes w/o Exemptions: | $9,547.90 | | |
Improvement / Building
| Improvement #1: | RESIDENTIAL | State Code: | Y | 3097.4 sqft | Value: | $986,696 |
| Bathrooms: | 3.5 | Bedrooms: | 3 | | Ceiling: | DRYWALL PAINTED | Cooling: | HEAT PUMP/CONV/V | | Exterior Wall/Cover: | CEMENT FIBER | Floor Covering: | HARDWOOD 100% | | Floor Structure: | WOOD W/SUBFLOOR | Foundation: | CONCRETE | | Interior Finish: | DRYWALL PAINT | Plumbing Fixture Cnt: | 15 | | Roof Slope: | 3" IN 12" | Roof Structure/Cover: | CJ ALUMINIUM HEAVY |
|
| | Type | Description | Class CD | Sub Class CD | Year Built | Area |
| | BAS | BASE/MAIN FLOOR | 5 | 0 | 2017 | 3097.4 |
| | OP4 | OPEN PORCH W/CEILING-ROOF | 5 | 0 | 2017 | 744.9 |
| | DGR | DETACHED GARAGE | 5 | 0 | 2017 | 1666.0 |
| | OP3 | OPEN PORCH W/ROOF | 5 | 0 | 2017 | 127.8 |
| | OP4 | OPEN PORCH W/CEILING-ROOF | 5 | 0 | 2017 | 256.0 |
| | OP4 | OPEN PORCH W/CEILING-ROOF | 5 | 0 | 2017 | 198.0 |
Sketch
Property Image
Land
| 1 | 32 | AC (03.01-09.99) | 5.5400 | 241322.40 | 0.00 | 0.00 | 1.00 | $380,000 | $0 |
Roll Value History
| 2026 | N/A | N/A | N/A | N/A | N/A |
| 2025 | $986,696 | $380,000 | $0 | $1,366,696 | $1,366,696 |
| 2024 | $994,718 | $340,000 | $0 | $1,334,718 | $1,334,718 |
| 2023 | $1,002,742 | $320,000 | $0 | $1,322,742 | $1,322,742 |
| 2022 | $855,005 | $320,000 | $0 | $1,175,005 | $1,175,005 |
| 2021 | $749,404 | $240,000 | $0 | $989,404 | $989,404 |
| 2020 | $729,623 | $160,000 | $0 | $889,623 | $889,623 |
| 2019 | $629,453 | $220,000 | $0 | $849,453 | $849,453 |
| 2018 | $334,437 | $245,000 | $0 | $579,437 | $579,437 |
| 2017 | $30,726 | $100,000 | $0 | $130,726 | $130,726 |
| 2016 | $0 | $60,000 | $0 | $60,000 | $60,000 |
| 2015 | $0 | $60,000 | $0 | $60,000 | $60,000 |
| 2014 | $0 | $83,100 | $0 | $83,100 | $83,100 |
| 2013 | $0 | $74,620 | $0 | $74,620 | $74,620 |
| 2012 | $0 | $111,000 | $0 | $111,000 | $111,000 |
| 2011 | $0 | $111,000 | $0 | $111,000 | $111,000 |
| 2010 | $0 | $111,000 | $0 | $111,000 | $111,000 |
| 2009 | $0 | $154,980 | $0 | $154,980 | $154,980 |
| 2008 | $0 | $0 | $0 | $59,966 | $59,966 |
Deed and Sales History
| 1 | 03/25/2016 | WD | Warranty Deed | VALLEY HIGH INVESTMENTS INC | FROST, PETER J | | | $290,000.00 | 23705 | 4396648 |
| 2 | 07/06/2010 | BLA | DNU - Boundary Line Adjustment | VALLEY HIGH INVESTMTS INC, | VALLEY HIGH INVESTMTS INC, | | | $0.00 | 81787 | 4256843 |
| 3 | 01/01/1900 | OTHER | Other - Misc. Documents | Unknown | VALLEY HIGH INVESTMTS INC, | | | $0.00 | 0 | 0 |
Payout Agreement
| No payout information available.. |