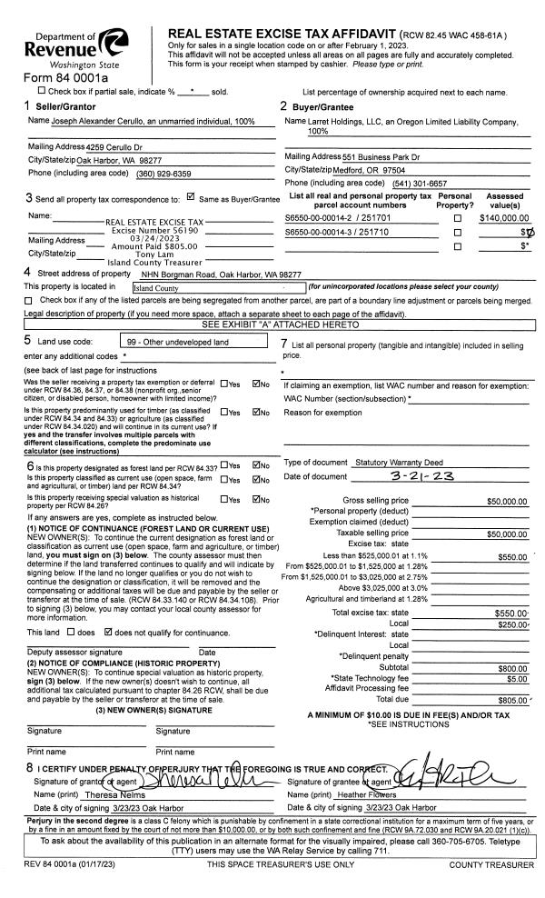
Property
Account |
| Property ID: | 809214 | Abbreviated Legal Description: | N681.35' OF W/2 E/2 SE SE ALSO N813.75' OF E/2 E/2 SE SE |
| Geographic ID: | R13313-094-4960 | Agent Code: | |
| Type: | Real | | |
| Tax Area: | 119 - APPRAISER-OH Schl Dist, outside OH, vacant & 50 acres or less | Land Use Code | 91 |
| Open Space: | N | DFL | N |
| Historic Property: | N | Remodel Property: | N |
| Multi-Family Redevelopment: | N | | |
| Township: | 33 | Section: | 13 |
| Range: | R1 |
Location |
| Address: | OAK HARBOR, WA 98277 | Mapsco: | |
| Neighborhood: | Cycle 6 | Map ID: | 210 |
| Neighborhood CD: | 6 |
Owner |
| Name: | MILES SAND AND GRAVEL COMPANY | Owner ID: | 262113 |
| Mailing Address: | 400 VALLEY AVE NE PUYALLUP, WA 98372-2516 | % Ownership: | 100.0000000000% |
| | | Exemptions: | |
Taxes and Assessment Details
Values
| (+) Improvement Homesite Value: | + | $0 | |
| (+) Improvement Non-Homesite Value: | + | $0 | |
| (+) Land Homesite Value: | + | $0 | |
| (+) Land Non-Homesite Value: | + | $97,662 | |
| (+) Curr Use (HS): | + | $0 | $0 |
| (+) Curr Use (NHS): | + | $0 | $0 |
| | | -------------------------- | |
| (=) Market Value: | = | $97,662 | |
| (–) Productivity Loss: | – | $0 | |
| | | -------------------------- | |
| (=) Subtotal: | = | $97,662 | |
| (+) Senior Appraised Value: | + | $0 | |
| (+) Non-Senior Appraised Value: | + | $97,662 | |
| | | -------------------------- | |
| (=) Total Appraised Value: | = | $97,662 | |
| (–) Senior Exemption Loss: | – | $0 | |
| (–) Exemption Loss: | – | $0 | |
| | | -------------------------- | |
| (=) Taxable Value: | = | $97,662 | |
Taxing Jurisdiction
| Owner: | MILES SAND AND GRAVEL COMPANY | | |
| % Ownership: | 100.0000000000% | | |
| Total Value: | $97,662 | | |
| Tax Area: | 119 - APPRAISER-OH Schl Dist, outside OH, vacant & 50 acres or less |
| CF | Conservation Futures | 0.0316035091 | $97,662 | $97,662 | $3.09 | | |
| CEM1 | Cemetery #1 | 0.0040320932 | $97,662 | $97,662 | $0.39 | | |
| HOBOND | Hospital BOND | 0.1910887512 | $97,662 | $97,662 | $18.66 | | |
| HOGEN | Hospital GEN | 0.3902502903 | $97,662 | $97,662 | $38.11 | | |
| CE | County Current Expense | 0.3708482477 | $97,662 | $97,662 | $36.22 | | |
| CR | County Roads | 0.4584763726 | $97,662 | $97,662 | $44.78 | | |
| ISLANDEMS | Hospital GEN (EMS) | 0.5000000000 | $97,662 | $97,662 | $48.83 | | |
| LIB | Library Sno-Isle GEN | 0.3153421757 | $97,662 | $97,662 | $30.80 | | |
| NWHIDPRMT | P & R N Whidbey GEN | 0.2004466701 | $97,662 | $97,662 | $19.58 | | |
| SCH201MO | School 201 Enrichment | 1.8559231640 | $97,662 | $97,662 | $181.25 | | |
| ST | State School | 1.3035497053 | $97,662 | $97,662 | $127.31 | | |
| ST2 | State School Part 2 | 0.8169543533 | $97,662 | $97,662 | $79.79 | | |
| | Total Tax Rate: | 6.4385153325 | | | | | |
| | | | | Taxes w/Current Exemptions: | $628.81 | | |
| | | | | Taxes w/o Exemptions: | $628.81 | | |
Improvement / Building
Sketch
| No sketches available for this property. |
Property Image
Land
| 1 | 35 | AC (10.00-30.99) | 11.2100 | 488307.60 | 0.00 | 0.00 | 1.00 | $97,662 | $0 |
Roll Value History
| 2026 | N/A | N/A | N/A | N/A | N/A |
| 2025 | $0 | $97,662 | $0 | $97,662 | $97,662 |
| 2024 | $0 | $97,662 | $0 | $97,662 | $97,662 |
| 2023 | $0 | $97,662 | $0 | $97,662 | $97,662 |
| 2022 | $0 | $97,662 | $0 | $97,662 | $97,662 |
| 2021 | $0 | $97,662 | $0 | $97,662 | $97,662 |
| 2020 | $0 | $97,662 | $0 | $97,662 | $97,662 |
| 2019 | $0 | $97,662 | $0 | $97,662 | $97,662 |
| 2018 | $0 | $97,662 | $0 | $97,662 | $97,662 |
| 2017 | $0 | $150,000 | $0 | $150,000 | $150,000 |
| 2016 | $0 | $150,000 | $0 | $150,000 | $150,000 |
| 2015 | $0 | $150,000 | $0 | $150,000 | $150,000 |
| 2014 | $0 | $145,730 | $0 | $145,730 | $145,730 |
| 2013 | $0 | $145,730 | $0 | $145,730 | $145,730 |
| 2012 | $0 | $145,730 | $0 | $145,730 | $145,730 |
| 2011 | $0 | $145,730 | $0 | $145,730 | $145,730 |
| 2010 | $0 | $145,730 | $0 | $145,730 | $145,730 |
| 2009 | $0 | $224,200 | $0 | $224,200 | $224,200 |
| 2008 | $0 | $0 | $0 | $231,971 | $231,971 |
| 2007 | $0 | $0 | $0 | $115,986 | $115,986 |
Deed and Sales History
| 1 | 06/12/2025 | WD | Warranty Deed | KRIEG PROPERTIES LLC | MILES SAND AND GRAVEL COMPANY | | | $788,875.00 | 63835 | 4587116 |
|   | |
| 2 | 09/12/2008 | BLA | DNU - Boundary Line Adjustment | Unknown | KRIEG, KARL C | | | $0.00 | 80923 | 4084663 |
| 3 | 11/26/2007 | QCD | Quit Claim Deed | KRIEG, KARL C | KRIEG PROPERTIES LLC, | | | $0.00 | 73868 | 4216984 |
Payout Agreement
| No payout information available.. |