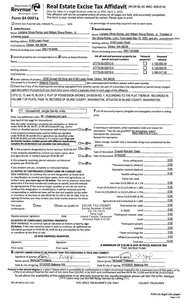
Property
Account |
| Property ID: | 809304 | Abbreviated Legal Description: | USE BAY 6 PT OF SD PLAT DESC: BG SECR LOT 83 SD PLAT CUR/L WLY ALG NLN CAPT VANCOUVER DR 198.68' NLY ALG CUR/L 29.21' NLY ALG CUR/R 77.99' TO NECR LOT 99 SD PLAT S81*W ALG NLN SD LOT 99 43.87' N66*W ALG SLN LOT 87 SD PLAT 60.26' N84.21' S72*E102.02' N81 |
| Geographic ID: | S8340-06-00083-1 | Agent Code: | |
| Type: | Real | | |
| Tax Area: | 752 - APPRAISER-S Whid Schl Dist, Special District, improved, greater than 1 acre | Land Use Code | 11 |
| Open Space: | N | DFL | N |
| Historic Property: | N | Remodel Property: | N |
| Multi-Family Redevelopment: | N | | |
| Township: | | Section: | |
| Range: | |
Location |
| Address: | 5818 CAPTAIN VANCOUVER DR LANGLEY, WA 98260 | Mapsco: | |
| Neighborhood: | Cycle 3 | Map ID: | 322 |
| Neighborhood CD: | 3 |
Owner |
| Name: | BUCHANAN, IAN | Owner ID: | 314690 |
| Mailing Address: | LOUANN HEPP 5818 CAPTAIN VANCOUVER DR LANGLEY, WA 98260 | % Ownership: | 100.0000000000% |
| | | Exemptions: | |
Taxes and Assessment Details
Values
| (+) Improvement Homesite Value: | + | $0 | |
| (+) Improvement Non-Homesite Value: | + | $837,240 | |
| (+) Land Homesite Value: | + | $0 | |
| (+) Land Non-Homesite Value: | + | $330,000 | |
| (+) Curr Use (HS): | + | $0 | $0 |
| (+) Curr Use (NHS): | + | $0 | $0 |
| | | -------------------------- | |
| (=) Market Value: | = | $1,167,240 | |
| (–) Productivity Loss: | – | $0 | |
| | | -------------------------- | |
| (=) Subtotal: | = | $1,167,240 | |
| (+) Senior Appraised Value: | + | $0 | |
| (+) Non-Senior Appraised Value: | + | $1,167,240 | |
| | | -------------------------- | |
| (=) Total Appraised Value: | = | $1,167,240 | |
| (–) Senior Exemption Loss: | – | $0 | |
| (–) Exemption Loss: | – | $0 | |
| | | -------------------------- | |
| (=) Taxable Value: | = | $1,167,240 | |
Taxing Jurisdiction
| Owner: | BUCHANAN, IAN | | |
| % Ownership: | 100.0000000000% | | |
| Total Value: | $1,167,240 | | |
| Tax Area: | 752 - APPRAISER-S Whid Schl Dist, Special District, improved, greater than 1 acre |
| CF | Conservation Futures | 0.0316035091 | $1,167,240 | $1,167,240 | $36.89 | | |
| FIRE3 | Fire & Rescue Dist #3 S Whidbey GEN | 1.2004855531 | $1,167,240 | $1,167,240 | $1,401.25 | | |
| HOBOND | Hospital BOND | 0.1910887512 | $1,167,240 | $1,167,240 | $223.05 | | |
| HOGEN | Hospital GEN | 0.3902502903 | $1,167,240 | $1,167,240 | $455.52 | | |
| CE | County Current Expense | 0.3708482477 | $1,167,240 | $1,167,240 | $432.87 | | |
| CR | County Roads | 0.4584763726 | $1,167,240 | $1,167,240 | $535.15 | | |
| ISLANDEMS | Hospital GEN (EMS) | 0.5000000000 | $1,167,240 | $1,167,240 | $583.62 | | |
| LIB | Library Sno-Isle GEN | 0.3153421757 | $1,167,240 | $1,167,240 | $368.08 | | |
| PORTWHID | Port of S Whidbey GEN | 0.1094540357 | $1,167,240 | $1,167,240 | $127.76 | | |
| SCH206BOND | School 206 BOND | 0.3161759235 | $1,167,240 | $1,167,240 | $369.05 | | |
| SCH206MO | School 206 Enrichment | 0.4547169547 | $1,167,240 | $1,167,240 | $530.76 | | |
| ST | State School | 1.3035497053 | $1,167,240 | $1,167,240 | $1,521.56 | | |
| ST2 | State School Part 2 | 0.8169543533 | $1,167,240 | $1,167,240 | $953.58 | | |
| SWHIDPRBD | P & R S Whidbey BOND | 0.0152817568 | $1,167,240 | $1,167,240 | $17.84 | | |
| SWHIDPRBD2 | P & R S Whidbey BOND2 | 0.0138911264 | $1,167,240 | $1,167,240 | $16.21 | | |
| SWHIDPRMT | P & R S Whidbey GEN | 0.2053334452 | $1,167,240 | $1,167,240 | $239.67 | | |
| | Total Tax Rate: | 6.6934522006 | | | | | |
| | | | | Taxes w/Current Exemptions: | $7,812.86 | | |
| | | | | Taxes w/o Exemptions: | $7,812.86 | | |
Improvement / Building
| Improvement #1: | RESIDENTIAL | State Code: | Y | 4274.1 sqft | Value: | $837,240 |
| Bathrooms: | 3.5 | Bedrooms: | 3 | | Ceiling: | DRYWALL PAINTED | Cooling: | HEAT PUMP/CONV/V | | Exterior Wall/Cover: | SHINGLE | Floor Covering: | HARDWOOD/CARP 20-80 | | Floor Structure: | WOOD W/SUBFLOOR | Foundation: | CONCRETE | | Interior Finish: | DRYWALL PAINT | Plumbing Fixture Cnt: | 18 | | Roof Slope: | 6" IN 12" | Roof Structure/Cover: | CJ ASPHALT |
|
| | Type | Description | Class CD | Sub Class CD | Year Built | Area |
| | BAS | BASE/MAIN FLOOR | 5 | 0 | 2006 | 3061.0 |
| | OP4 | OPEN PORCH W/CEILING-ROOF | 5 | 0 | 2006 | 89.8 |
| | OP4 | OPEN PORCH W/CEILING-ROOF | 5 | 0 | 2006 | 468.4 |
| | AGR | ATTACHED GARAGE | 5 | 0 | 2006 | 901.0 |
| | UPS | UPPER STORY | 5 | 0 | 2006 | 1113.1 |
| | OWP | OPEN WOOD PORCH W/STEPS | 5 | 0 | 2006 | 289.0 |
| | OWC | OPEN WOOD PORCH W/STEPS/ROOF/C | 5 | 0 | 2006 | 169.0 |
| | OWP | OPEN WOOD PORCH W/STEPS | 5 | 0 | 2006 | 89.8 |
| | OWP | OPEN WOOD PORCH W/STEPS | 5 | 0 | 2006 | 98.0 |
| | OWC | OPEN WOOD PORCH W/STEPS/ROOF/C | 5 | 0 | 2006 | 28.0 |
| | LOF | LOFT | 5 | 0 | 2006 | 100.0 |
Sketch
Property Image
Land
| 1 | 17 | AC (01.01-02.00) | 0.0000 | 0.00 | 0.00 | 0.00 | 1.00 | $330,000 | $0 |
Roll Value History
| 2026 | N/A | N/A | N/A | N/A | N/A |
| 2025 | $837,240 | $330,000 | $0 | $1,167,240 | $1,167,240 |
| 2024 | $821,555 | $270,000 | $0 | $1,091,555 | $1,091,555 |
| 2023 | $831,079 | $250,000 | $0 | $1,081,079 | $1,081,079 |
| 2022 | $761,176 | $250,000 | $0 | $1,011,176 | $1,011,176 |
| 2021 | $660,849 | $200,000 | $0 | $860,849 | $860,849 |
| 2020 | $642,444 | $165,000 | $0 | $807,444 | $807,444 |
| 2019 | $512,678 | $200,000 | $0 | $712,678 | $712,678 |
| 2018 | $514,147 | $170,000 | $0 | $684,147 | $684,147 |
| 2017 | $517,085 | $120,000 | $0 | $637,085 | $637,085 |
| 2016 | $522,961 | $82,370 | $0 | $605,331 | $605,331 |
| 2015 | $528,835 | $82,370 | $0 | $611,205 | $611,205 |
| 2014 | $534,714 | $82,370 | $0 | $617,084 | $617,084 |
| 2013 | $589,046 | $82,370 | $0 | $671,416 | $671,416 |
| 2012 | $595,361 | $82,370 | $0 | $677,731 | $677,731 |
| 2011 | $601,672 | $82,370 | $0 | $684,042 | $684,042 |
| 2010 | $624,265 | $93,600 | $0 | $717,865 | $717,865 |
| 2009 | $650,424 | $144,300 | $0 | $794,724 | $794,724 |
Deed and Sales History
| 1 | 11/19/2024 | WD | Warranty Deed | HATTAL, GARY R | BUCHANAN, IAN | | | $1,250,000.00 | 61933 | 4579827 |
|   | |
| 2 | 03/18/2014 | WD | Warranty Deed | HATTAL, GARY R | HATTAL, GARY R | | | $0.00 | 46125 | 4505234 |
| 3 | 03/11/2014 | WD | Warranty Deed | HATTAL, GARY R | HATTAL, GARY R | | | $575,000.00 | 14656 | 4356908 |
| 4 | 03/11/2014 | ESTSEPPROP | Establish Separate Property | OTEY, TERRY | OTEY, TERRY | | | $0.00 | 14655 | 4356907 |
| 5 | 10/03/2008 | BLA | DNU - Boundary Line Adjustment | Unknown | OTEY, TERRY | | | $0.00 | 80999 | 4186437 |
Payout Agreement
| No payout information available.. |