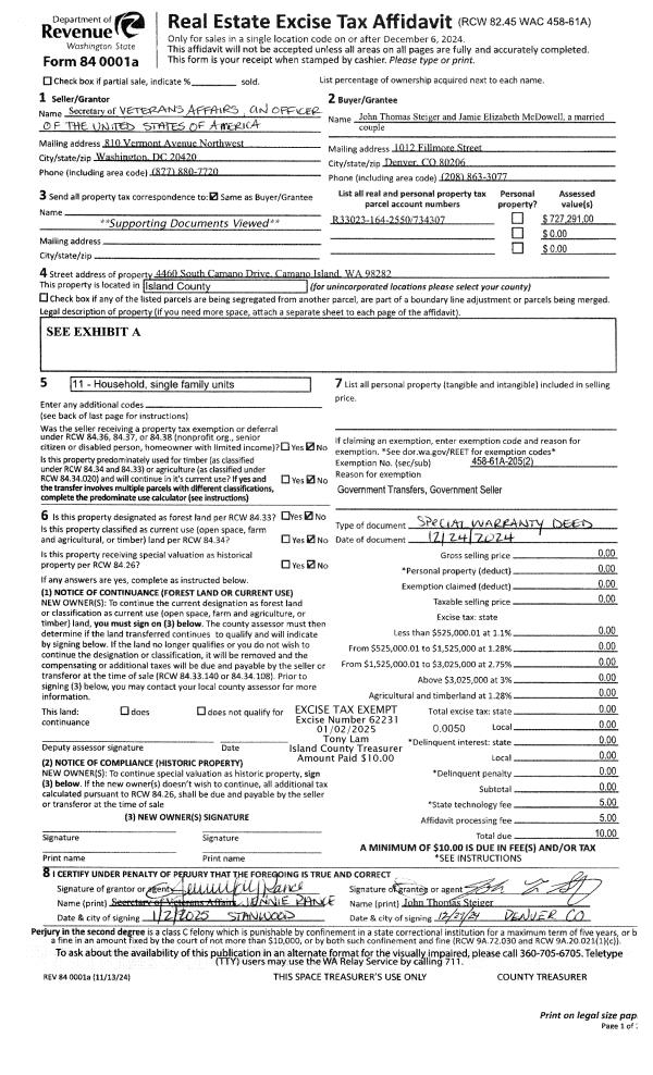
Property
Account |
| Property ID: | 809315 | Abbreviated Legal Description: | PT HASTIE DC: BG NECR SD DC S ON ELN OF HASTIE DC 1782' TPB W660' S PARA/W ELN HASTIE DC 1452' E660' N1452' TPB EX CO ROW EX DESC: BG NECR SD HASTIE DC S1*W ALG ELN SD HASTIE DC 2651.33' TO W/4 CR SD SEC 16 N83*W80.00' S78*W131.30' TPB N89*W133' N6*W115 |
| Geographic ID: | R13217-276-5060 | Agent Code: | |
| Type: | Real | | |
| Tax Area: | 112 - APPRAISER-OH Schl Dist, outside OH, improved, greater than 1 acre | Land Use Code | 11 |
| Open Space: | N | DFL | N |
| Historic Property: | N | Remodel Property: | N |
| Multi-Family Redevelopment: | N | | |
| Township: | 32 | Section: | 17 |
| Range: | R1 |
Location |
| Address: | | Mapsco: | |
| Neighborhood: | Cycle 1 | Map ID: | 135 |
| Neighborhood CD: | 1 |
Owner |
| Name: | CROWTHER, JOAN HILARY | Owner ID: | 313515 |
| Mailing Address: | 1633 HASTIE LAKE RD OAK HARBOR, WA 98277 | % Ownership: | 100.0000000000% |
| | | Exemptions: | |
Taxes and Assessment Details
Values
| (+) Improvement Homesite Value: | + | $0 | |
| (+) Improvement Non-Homesite Value: | + | $137,059 | |
| (+) Land Homesite Value: | + | $0 | |
| (+) Land Non-Homesite Value: | + | $350,000 | |
| (+) Curr Use (HS): | + | $0 | $0 |
| (+) Curr Use (NHS): | + | $0 | $0 |
| | | -------------------------- | |
| (=) Market Value: | = | $487,059 | |
| (–) Productivity Loss: | – | $0 | |
| | | -------------------------- | |
| (=) Subtotal: | = | $487,059 | |
| (+) Senior Appraised Value: | + | $0 | |
| (+) Non-Senior Appraised Value: | + | $487,059 | |
| | | -------------------------- | |
| (=) Total Appraised Value: | = | $487,059 | |
| (–) Senior Exemption Loss: | – | $0 | |
| (–) Exemption Loss: | – | $0 | |
| | | -------------------------- | |
| (=) Taxable Value: | = | $487,059 | |
Taxing Jurisdiction
| Owner: | CROWTHER, JOAN HILARY | | |
| % Ownership: | 100.0000000000% | | |
| Total Value: | $487,059 | | |
| Tax Area: | 112 - APPRAISER-OH Schl Dist, outside OH, improved, greater than 1 acre |
| CF | Conservation Futures | 0.0316035091 | $487,059 | $487,059 | $15.39 | | |
| CEM1 | Cemetery #1 | 0.0040320932 | $487,059 | $487,059 | $1.96 | | |
| FIRE2 | Fire & Rescue Dist #2 N Whidbey GEN | 0.5475949600 | $487,059 | $487,059 | $266.71 | | |
| HOBOND | Hospital BOND | 0.1910887512 | $487,059 | $487,059 | $93.07 | | |
| HOGEN | Hospital GEN | 0.3902502903 | $487,059 | $487,059 | $190.07 | | |
| CE | County Current Expense | 0.3708482477 | $487,059 | $487,059 | $180.62 | | |
| CR | County Roads | 0.4584763726 | $487,059 | $487,059 | $223.31 | | |
| ISLANDEMS | Hospital GEN (EMS) | 0.5000000000 | $487,059 | $487,059 | $243.53 | | |
| LIB | Library Sno-Isle GEN | 0.3153421757 | $487,059 | $487,059 | $153.59 | | |
| NWHIDPRMT | P & R N Whidbey GEN | 0.2004466701 | $487,059 | $487,059 | $97.63 | | |
| SCH201MO | School 201 Enrichment | 1.8559231640 | $487,059 | $487,059 | $903.94 | | |
| ST | State School | 1.3035497053 | $487,059 | $487,059 | $634.91 | | |
| ST2 | State School Part 2 | 0.8169543533 | $487,059 | $487,059 | $397.90 | | |
| | Total Tax Rate: | 6.9861102925 | | | | | |
| | | | | Taxes w/Current Exemptions: | $3,402.63 | | |
| | | | | Taxes w/o Exemptions: | $3,402.63 | | |
Improvement / Building
| Improvement #1: | RESIDENTIAL | State Code: | Y | 1062.0 sqft | Value: | $137,059 |
| Bathrooms: | 1 | Bedrooms: | 0 | | Ceiling: | DRYWALL PAINTED | Exterior Wall/Cover: | WOOD SIDING | | Floor Covering: | CARPET/VINYL 60-40 | Floor Structure: | WOOD W/SUBFLOOR | | Foundation: | CONCRETE | Heating: | FHA OIL | | Interior Finish: | DRYWALL PAINT | Plumbing Fixture Cnt: | 7 | | Roof Slope: | 6" IN 12" | Roof Structure/Cover: | BEAM ASPHALT |
|
| | Type | Description | Class CD | Sub Class CD | Year Built | Area |
| | BAS | BASE/MAIN FLOOR | 3 | 0 | 1935 | 1062.0 |
| | UTY | STORAGE/UTILITY | 3 | 0 | 1935 | 579.8 |
| | OWP | OPEN WOOD PORCH W/STEPS | 3 | 0 | 1935 | 66.0 |
Sketch
Property Image
Land
| 1 | 91 | UNDEVELOPED LAND-METES AND BOUNDS | 10.7900 | 470012.40 | 11.79 | 0.00 | 1.00 | $130,000 | $0 |
| 2 | HS | HOMESITE | 1.0000 | 43560.00 | 0.00 | 0.00 | 1.00 | $220,000 | $0 |
Roll Value History
| 2026 | N/A | N/A | N/A | N/A | N/A |
| 2025 | $137,059 | $350,000 | $0 | $487,059 | $487,059 |
| 2024 | $139,842 | $310,000 | $0 | $449,842 | $449,842 |
| 2023 | $120,040 | $290,000 | $0 | $410,040 | $410,040 |
| 2022 | $111,101 | $270,000 | $0 | $381,101 | $381,101 |
| 2021 | $98,699 | $255,000 | $0 | $353,699 | $353,699 |
| 2020 | $97,010 | $200,000 | $0 | $297,010 | $297,010 |
| 2019 | $69,455 | $230,000 | $0 | $299,455 | $299,455 |
| 2018 | $69,807 | $170,000 | $0 | $239,807 | $239,807 |
| 2017 | $71,166 | $160,000 | $0 | $231,166 | $231,166 |
| 2016 | $72,590 | $160,000 | $0 | $232,590 | $232,590 |
| 2015 | $74,012 | $150,000 | $0 | $224,012 | $224,012 |
| 2014 | $75,436 | $150,000 | $0 | $225,436 | $225,436 |
| 2013 | $76,859 | $142,330 | $0 | $219,189 | $219,189 |
| 2012 | $78,284 | $142,330 | $0 | $220,614 | $220,614 |
| 2011 | $67,861 | $158,020 | $0 | $225,881 | $225,881 |
| 2010 | $71,268 | $158,020 | $0 | $229,288 | $229,288 |
| 2009 | $74,619 | $231,240 | $0 | $305,859 | $305,859 |
| 2008 | $0 | $0 | $0 | $243,573 | $243,573 |
Deed and Sales History
| 1 | 07/28/2024 | QCD | Quit Claim Deed | KIRSCHNER TTEE, RUTH M | CROWTHER, JOAN HILARY | | | $0.00 | 60952 | 4575856 |
| 2 | 08/20/2019 | QCD | Quit Claim Deed | KIRSCHNER, HARRY J | KIRSCHNER TTEE, RUTH M | | | $0.00 | 40181 | 4471046 |
| 3 | 10/14/2008 | BLA | DNU - Boundary Line Adjustment | Unknown | KIRSCHNER, HARRY J | | | $0.00 | 80959 | 4089723 |
Payout Agreement
| No payout information available.. |