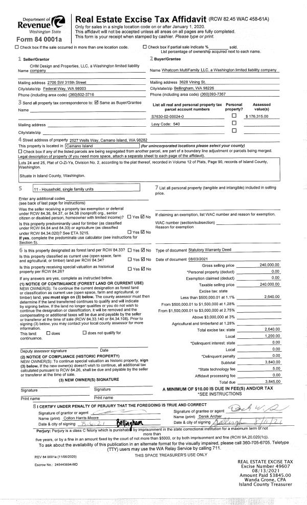
Property
Account |
| Property ID: | 809342 | Abbreviated Legal Description: | S 150' OF FOLL DESC: PT OF W/2 SW NE DESC: BG NECR W/2 SW NE S482' S297' N70' W16' N412' E313' TPB TGW 16' RD R/W DESC: BG 120'N OF SWCR OF ABOVE TR TPB SD CLN W200' N185' NWLY 350' TP 150W OF NW CR SD TR TERM SD LN |
| Geographic ID: | R32925-343-3020 | Agent Code: | |
| Type: | Real | | |
| Tax Area: | 722 - APPRAISER-S Whid Schl Dist, Special District, improved, greater than 1 acre | Land Use Code | 11 |
| Open Space: | N | DFL | N |
| Historic Property: | N | Remodel Property: | N |
| Multi-Family Redevelopment: | N | | |
| Township: | 29 | Section: | 25 |
| Range: | R3 |
Location |
| Address: | 6537 ROBIN LN CLINTON, WA 98236 | Mapsco: | |
| Neighborhood: | Cycle 4 | Map ID: | 815 |
| Neighborhood CD: | 4 |
Owner |
| Name: | EASTERN, DAVID | Owner ID: | 308258 |
| Mailing Address: | DEENA EASTERN 6537 ROBIN LN CLINTON, WA 98236 | % Ownership: | 100.0000000000% |
| | | Exemptions: | |
Taxes and Assessment Details
Values
| (+) Improvement Homesite Value: | + | $0 | |
| (+) Improvement Non-Homesite Value: | + | $1,306,336 | |
| (+) Land Homesite Value: | + | $0 | |
| (+) Land Non-Homesite Value: | + | $420,000 | |
| (+) Curr Use (HS): | + | $0 | $0 |
| (+) Curr Use (NHS): | + | $0 | $0 |
| | | -------------------------- | |
| (=) Market Value: | = | $1,726,336 | |
| (–) Productivity Loss: | – | $0 | |
| | | -------------------------- | |
| (=) Subtotal: | = | $1,726,336 | |
| (+) Senior Appraised Value: | + | $0 | |
| (+) Non-Senior Appraised Value: | + | $1,726,336 | |
| | | -------------------------- | |
| (=) Total Appraised Value: | = | $1,726,336 | |
| (–) Senior Exemption Loss: | – | $0 | |
| (–) Exemption Loss: | – | $0 | |
| | | -------------------------- | |
| (=) Taxable Value: | = | $1,726,336 | |
Taxing Jurisdiction
| Owner: | EASTERN, DAVID | | |
| % Ownership: | 100.0000000000% | | |
| Total Value: | $1,726,336 | | |
| Tax Area: | 722 - APPRAISER-S Whid Schl Dist, Special District, improved, greater than 1 acre |
| CF | Conservation Futures | 0.0316035091 | $1,726,336 | $1,726,336 | $54.56 | | |
| FIRE3 | Fire & Rescue Dist #3 S Whidbey GEN | 1.2004855531 | $1,726,336 | $1,726,336 | $2,072.44 | | |
| HOBOND | Hospital BOND | 0.1910887512 | $1,726,336 | $1,726,336 | $329.88 | | |
| HOGEN | Hospital GEN | 0.3902502903 | $1,726,336 | $1,726,336 | $673.70 | | |
| CE | County Current Expense | 0.3708482477 | $1,726,336 | $1,726,336 | $640.21 | | |
| CR | County Roads | 0.4584763726 | $1,726,336 | $1,726,336 | $791.48 | | |
| ISLANDEMS | Hospital GEN (EMS) | 0.5000000000 | $1,726,336 | $1,726,336 | $863.17 | | |
| LIB | Library Sno-Isle GEN | 0.3153421757 | $1,726,336 | $1,726,336 | $544.39 | | |
| PORTWHID | Port of S Whidbey GEN | 0.1094540357 | $1,726,336 | $1,726,336 | $188.95 | | |
| SCH206BOND | School 206 BOND | 0.3161759235 | $1,726,336 | $1,726,336 | $545.83 | | |
| SCH206MO | School 206 Enrichment | 0.4547169547 | $1,726,336 | $1,726,336 | $784.99 | | |
| ST | State School | 1.3035497053 | $1,726,336 | $1,726,336 | $2,250.36 | | |
| ST2 | State School Part 2 | 0.8169543533 | $1,726,336 | $1,726,336 | $1,410.34 | | |
| SWHIDPRBD | P & R S Whidbey BOND | 0.0152817568 | $1,726,336 | $1,726,336 | $26.38 | | |
| SWHIDPRBD2 | P & R S Whidbey BOND2 | 0.0138911264 | $1,726,336 | $1,726,336 | $23.98 | | |
| SWHIDPRMT | P & R S Whidbey GEN | 0.2053334452 | $1,726,336 | $1,726,336 | $354.47 | | |
| | Total Tax Rate: | 6.6934522006 | | | | | |
| | | | | Taxes w/Current Exemptions: | $11,555.13 | | |
| | | | | Taxes w/o Exemptions: | $11,555.13 | | |
Improvement / Building
| Improvement #1: | RESIDENTIAL | State Code: | Y | 4641.0 sqft | Value: | $1,306,336 |
| Bathrooms: | 3.5 | Bedrooms: | 3 | | Ceiling: | DRYWALL PAINTED | Cooling: | HEAT PUMP/CONV/V | | Exterior Wall/Cover: | CEMENT FIBER | Floor Covering: | HARDWOOD/CARP 80-20 | | Floor Structure: | WOOD W/SUBFLOOR | Foundation: | CONCRETE | | Interior Finish: | DRYWALL PAINT | Plumbing Fixture Cnt: | 18 | | Roof Slope: | 8" IN 12" | Roof Structure/Cover: | CJ ASPHALT |
|
| | Type | Description | Class CD | Sub Class CD | Year Built | Area |
| | BAS | BASE/MAIN FLOOR | 6 | 0 | 2019 | 3313.0 |
| | AGR | ATTACHED GARAGE | 6 | 0 | 2019 | 624.0 |
| | DWN | DOWNSTAIRS LIVING AREA | 6 | 0 | 2019 | 1328.0 |
| | OP4 | OPEN PORCH W/CEILING-ROOF | 6 | 0 | 2019 | 217.0 |
| | OCP | OPEN CARPORT | 6 | 0 | 2019 | 320.0 |
| | DGR | DETACHED GARAGE | 6 | 0 | 2019 | 768.0 |
| | OCP | OPEN CARPORT | 6 | 0 | 2019 | 320.0 |
| | OP3 | OPEN PORCH W/ROOF | 6 | 0 | 2019 | 56.0 |
| | OP4 | OPEN PORCH W/CEILING-ROOF | 6 | 0 | 2019 | 584.5 |
| | OP2 | OPEN PORCH W/STEPS | 6 | 0 | 2019 | 666.6 |
Sketch
Property Image
Land
| 1 | 17 | AC (01.01-02.00) | 0.0000 | 0.00 | 0.00 | 0.00 | 1.00 | $420,000 | $0 |
Roll Value History
| 2026 | N/A | N/A | N/A | N/A | N/A |
| 2025 | $1,306,336 | $420,000 | $0 | $1,726,336 | $1,726,336 |
| 2024 | $1,316,873 | $400,000 | $0 | $1,716,873 | $1,716,873 |
| 2023 | $1,069,924 | $380,000 | $0 | $1,449,924 | $1,449,924 |
| 2022 | $976,505 | $360,000 | $0 | $1,336,505 | $1,336,505 |
| 2021 | $858,058 | $300,000 | $0 | $1,158,058 | $1,158,058 |
| 2020 | $819,933 | $270,000 | $0 | $1,089,933 | $1,089,933 |
| 2019 | $120,448 | $220,000 | $0 | $340,448 | $340,448 |
| 2018 | $0 | $200,000 | $0 | $200,000 | $200,000 |
| 2017 | $0 | $200,000 | $0 | $200,000 | $200,000 |
| 2016 | $0 | $200,000 | $0 | $200,000 | $200,000 |
| 2015 | $0 | $200,000 | $0 | $200,000 | $200,000 |
| 2014 | $0 | $200,000 | $0 | $200,000 | $200,000 |
| 2013 | $0 | $200,000 | $0 | $200,000 | $200,000 |
| 2012 | $0 | $200,000 | $0 | $200,000 | $200,000 |
| 2011 | $0 | $200,000 | $0 | $200,000 | $200,000 |
| 2010 | $0 | $200,000 | $0 | $200,000 | $200,000 |
| 2009 | $0 | $250,000 | $0 | $250,000 | $250,000 |
| 2008 | $0 | $0 | $0 | $65,400 | $65,400 |
Deed and Sales History
| 1 | 04/10/2023 | WD | Warranty Deed | HEGGENES, GARTH | EASTERN, DAVID | | | $2,550,000.00 | 56374 | 4558681 |
| 2 | 04/06/2016 | WD | Warranty Deed | HEGGENES, ROY & JOYCE | HEGGENES, GARTH | | | $220,000.00 | 23866 | 4397421 |
| 3 | 10/17/2008 | BLA | DNU - Boundary Line Adjustment | Unknown | HEGGENES, ROY & JOYCE | | | $0.00 | 80971 | 4103945 |
Payout Agreement
| No payout information available.. |