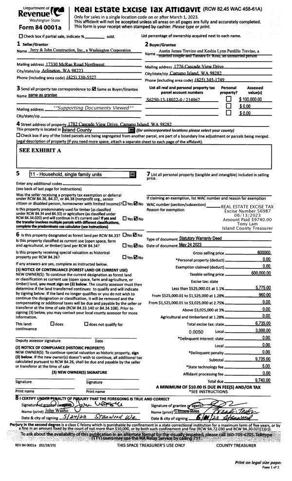
Property
Account |
| Property ID: | 809372 | Abbreviated Legal Description: | HIGHLAND VIEW ESTATES PRD LOT 2 |
| Geographic ID: | S8534-00-00002-0 | Agent Code: | |
| Type: | Real | | |
| Tax Area: | 590 - APPRAISER-Stan/Cam Schl Dist, Special Dist, improved & less than 1 acre | Land Use Code | 11 |
| Open Space: | N | DFL | N |
| Historic Property: | N | Remodel Property: | N |
| Multi-Family Redevelopment: | N | | |
| Township: | | Section: | |
| Range: | |
Location |
| Address: | 792 HIGHLAND VIEW LN CAMANO ISLAND, WA 98282 | Mapsco: | |
| Neighborhood: | North Camano | Map ID: | 991 |
| Neighborhood CD: | 06-C |
Owner |
| Name: | HALL, BRUCE M | Owner ID: | 261201 |
| Mailing Address: | RAMONA B HALL 792 HIGHLAND VIEW LN CAMANO ISLAND, WA 98282 | % Ownership: | 100.0000000000% |
| | | Exemptions: | |
Taxes and Assessment Details
Values
| (+) Improvement Homesite Value: | + | $0 | |
| (+) Improvement Non-Homesite Value: | + | $622,508 | |
| (+) Land Homesite Value: | + | $0 | |
| (+) Land Non-Homesite Value: | + | $360,000 | |
| (+) Curr Use (HS): | + | $0 | $0 |
| (+) Curr Use (NHS): | + | $0 | $0 |
| | | -------------------------- | |
| (=) Market Value: | = | $982,508 | |
| (–) Productivity Loss: | – | $0 | |
| | | -------------------------- | |
| (=) Subtotal: | = | $982,508 | |
| (+) Senior Appraised Value: | + | $0 | |
| (+) Non-Senior Appraised Value: | + | $982,508 | |
| | | -------------------------- | |
| (=) Total Appraised Value: | = | $982,508 | |
| (–) Senior Exemption Loss: | – | $0 | |
| (–) Exemption Loss: | – | $0 | |
| | | -------------------------- | |
| (=) Taxable Value: | = | $982,508 | |
Taxing Jurisdiction
| Owner: | HALL, BRUCE M | | |
| % Ownership: | 100.0000000000% | | |
| Total Value: | $982,508 | | |
| Tax Area: | 590 - APPRAISER-Stan/Cam Schl Dist, Special Dist, improved & less than 1 acre |
| CF | Conservation Futures | 0.0316035091 | $982,508 | $982,508 | $31.05 | | |
| EMS1 | Fire & Rescue Dist #1 Camano GEN (EMS) | 0.3677864386 | $982,508 | $982,508 | $361.35 | | |
| FIRE1 | Fire & Rescue Dist #1 Camano GEN | 1.2502910536 | $982,508 | $982,508 | $1,228.42 | | |
| FIRE1BOND | Fire & Rescue Dist #1 Camano BOND | 0.1570001679 | $982,508 | $982,508 | $154.25 | | |
| CE | County Current Expense | 0.3708482477 | $982,508 | $982,508 | $364.36 | | |
| CR | County Roads | 0.4584763726 | $982,508 | $982,508 | $450.46 | | |
| LCIB | Library Sno-Isle BOND (Camano Island) | 0.0396325772 | $982,508 | $982,508 | $38.94 | | |
| LIB | Library Sno-Isle GEN | 0.3153421757 | $982,508 | $982,508 | $309.83 | | |
| SCH205_401 | School 205-401 Enrichment | 1.2698420524 | $982,508 | $982,508 | $1,247.63 | | |
| SCH205BOND | School 205-401 BOND | 0.9396497583 | $982,508 | $982,508 | $923.21 | | |
| ST | State School | 1.3035497053 | $982,508 | $982,508 | $1,280.75 | | |
| ST2 | State School Part 2 | 0.8169543533 | $982,508 | $982,508 | $802.66 | | |
| | Total Tax Rate: | 7.3209764117 | | | | | |
| | | | | Taxes w/Current Exemptions: | $7,192.91 | | |
| | | | | Taxes w/o Exemptions: | $7,192.91 | | |
Improvement / Building
| Improvement #1: | RESIDENTIAL | State Code: | Y | 2363.2 sqft | Value: | $622,508 |
| Bathrooms: | 3 | Bedrooms: | 3 | | Ceiling: | DRYWALL PAINTED | Exterior Wall/Cover: | CEMENT FIBER | | Floor Covering: | HARDWOOD/CARP 80-20 | Floor Structure: | WOOD W/SUBFLOOR | | Foundation: | CONCRETE | Heating: | FHA GAS | | Interior Finish: | DRYWALL PAINT | Plumbing Fixture Cnt: | 14 | | Roof Slope: | 6" IN 12" | Roof Structure/Cover: | CJ ASPHALT |
|
| | Type | Description | Class CD | Sub Class CD | Year Built | Area |
| | BAS | BASE/MAIN FLOOR | 4 | 0 | 2013 | 2363.2 |
| | DGR | DETACHED GARAGE | 4 | 0 | 2013 | 950.0 |
| | OWC | OPEN WOOD PORCH W/STEPS/ROOF/C | 4 | 0 | 2013 | 111.6 |
| | AGR | ATTACHED GARAGE | 4 | 0 | 2013 | 840.0 |
| | ATU | ATTIC UNFINISHED | 4 | 0 | 2013 | 384.0 |
| | OP4 | OPEN PORCH W/CEILING-ROOF | 4 | 0 | 2013 | 144.5 |
| | OWP | OPEN WOOD PORCH W/STEPS | 4 | 0 | 2013 | 112.0 |
Sketch
Property Image
Land
| 1 | 16 | AC (00.51-01.00) | 0.0000 | 0.00 | 0.00 | 0.00 | 1.00 | $360,000 | $0 |
Roll Value History
| 2026 | N/A | N/A | N/A | N/A | N/A |
| 2025 | $622,508 | $360,000 | $0 | $982,508 | $982,508 |
| 2024 | $627,570 | $360,000 | $0 | $987,570 | $987,570 |
| 2023 | $632,629 | $360,000 | $0 | $992,629 | $992,629 |
| 2022 | $554,836 | $260,000 | $0 | $814,836 | $814,836 |
| 2021 | $486,181 | $200,000 | $0 | $686,181 | $686,181 |
| 2020 | $471,939 | $190,000 | $0 | $661,939 | $661,939 |
| 2019 | $353,061 | $230,000 | $0 | $583,061 | $583,061 |
| 2018 | $352,131 | $180,000 | $0 | $532,131 | $532,131 |
| 2017 | $353,994 | $150,000 | $0 | $503,994 | $503,994 |
| 2016 | $357,720 | $130,000 | $0 | $487,720 | $487,720 |
| 2015 | $361,446 | $125,000 | $0 | $486,446 | $486,446 |
| 2014 | $365,173 | $120,000 | $0 | $485,173 | $485,173 |
| 2013 | $170,014 | $150,000 | $0 | $320,014 | $320,014 |
| 2012 | $0 | $150,000 | $0 | $150,000 | $150,000 |
| 2011 | $0 | $120,000 | $0 | $120,000 | $120,000 |
| 2010 | $0 | $150,000 | $0 | $150,000 | $150,000 |
| 2009 | $0 | $175,000 | $0 | $175,000 | $175,000 |
| 2008 | $0 | $0 | $0 | $54,546 | $54,546 |
Deed and Sales History
| 1 | 03/15/2013 | WD | Warranty Deed | TMCK CAMANO LLC | HALL, BRUCE M | | | $130,000.00 | 10727 | 4335835 |
| 2 | 01/01/1900 | OTHER | Other - Misc. Documents | Unknown | TMCK CAMANO LLC, | | | $0.00 | 0 | 0 |
Payout Agreement
| No payout information available.. |