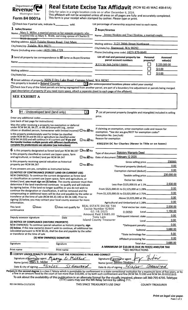
Property
Account |
| Property ID: | 809398 | Abbreviated Legal Description: | BARRINGTON HEIGHTS #2 LOT 13 |
| Geographic ID: | S8518-02-00013-0 | Agent Code: | |
| Type: | Real | | |
| Tax Area: | 100 - APPRAISER-OH Schl Dist, in OH | Land Use Code | 11 |
| Open Space: | N | DFL | N |
| Historic Property: | N | Remodel Property: | N |
| Multi-Family Redevelopment: | N | | |
| Township: | | Section: | |
| Range: | |
Location |
| Address: | 630 SW FOUNDERS DR OAK HARBOR, WA 98277 | Mapsco: | |
| Neighborhood: | Cycle 1 | Map ID: | 91 |
| Neighborhood CD: | 1 |
Owner |
| Name: | ENCINAS, JOHN | Owner ID: | 311758 |
| Mailing Address: | TAMARA MH ENCINAS 630 SE FOUNDERS DR OAK HARBOR, WA 98277 | % Ownership: | 100.0000000000% |
| | | Exemptions: | |
Taxes and Assessment Details
Values
| (+) Improvement Homesite Value: | + | $0 | |
| (+) Improvement Non-Homesite Value: | + | $626,117 | |
| (+) Land Homesite Value: | + | $0 | |
| (+) Land Non-Homesite Value: | + | $250,000 | |
| (+) Curr Use (HS): | + | $0 | $0 |
| (+) Curr Use (NHS): | + | $0 | $0 |
| | | -------------------------- | |
| (=) Market Value: | = | $876,117 | |
| (–) Productivity Loss: | – | $0 | |
| | | -------------------------- | |
| (=) Subtotal: | = | $876,117 | |
| (+) Senior Appraised Value: | + | $0 | |
| (+) Non-Senior Appraised Value: | + | $876,117 | |
| | | -------------------------- | |
| (=) Total Appraised Value: | = | $876,117 | |
| (–) Senior Exemption Loss: | – | $0 | |
| (–) Exemption Loss: | – | $0 | |
| | | -------------------------- | |
| (=) Taxable Value: | = | $876,117 | |
Taxing Jurisdiction
| Owner: | ENCINAS, JOHN | | |
| % Ownership: | 100.0000000000% | | |
| Total Value: | $876,117 | | |
| Tax Area: | 100 - APPRAISER-OH Schl Dist, in OH |
| CF | Conservation Futures | 0.0316035091 | $876,117 | $876,117 | $27.69 | | |
| CEM1 | Cemetery #1 | 0.0040320932 | $876,117 | $876,117 | $3.53 | | |
| COH | City of Oak Harbor | 2.3001546061 | $876,117 | $876,117 | $2,015.20 | | |
| OAKBOND | City of Oak Harbor BOND | 0.1926904192 | $876,117 | $876,117 | $168.82 | | |
| HOBOND | Hospital BOND | 0.1910887512 | $876,117 | $876,117 | $167.42 | | |
| HOGEN | Hospital GEN | 0.3902502903 | $876,117 | $876,117 | $341.90 | | |
| CE | County Current Expense | 0.3708482477 | $876,117 | $876,117 | $324.91 | | |
| ISLANDEMS | Hospital GEN (EMS) | 0.5000000000 | $876,117 | $876,117 | $438.06 | | |
| LIB | Library Sno-Isle GEN | 0.3153421757 | $876,117 | $876,117 | $276.28 | | |
| NWHIDPRMT | P & R N Whidbey GEN | 0.2004466701 | $876,117 | $876,117 | $175.61 | | |
| SCH201MO | School 201 Enrichment | 1.8559231640 | $876,117 | $876,117 | $1,626.01 | | |
| ST | State School | 1.3035497053 | $876,117 | $876,117 | $1,142.06 | | |
| ST2 | State School Part 2 | 0.8169543533 | $876,117 | $876,117 | $715.75 | | |
| | Total Tax Rate: | 8.4728839852 | | | | | |
| | | | | Taxes w/Current Exemptions: | $7,423.24 | | |
| | | | | Taxes w/o Exemptions: | $7,423.24 | | |
Improvement / Building
| Improvement #1: | RESIDENTIAL | State Code: | Y | 3600.0 sqft | Value: | $626,117 |
| Bathrooms: | 3.5 | Bedrooms: | 4 | | Ceiling: | DRYWALL PAINTED | Cooling: | HEAT PUMP/CONV/V | | Exterior Wall/Cover: | CEMENT FIBER | Floor Covering: | HARDWOOD/CARP 80-20 | | Floor Structure: | WOOD W/SUBFLOOR | Foundation: | CONCRETE | | Interior Finish: | DRYWALL PAINT | Plumbing Fixture Cnt: | 16 | | Roof Slope: | 5" IN 12" | Roof Structure/Cover: | CJ ASPHALT |
|
| | Type | Description | Class CD | Sub Class CD | Year Built | Area |
| | BAS | BASE/MAIN FLOOR | 4 | 0 | 2019 | 1860.0 |
| | AGR | ATTACHED GARAGE | 4 | 0 | 2019 | 728.0 |
| | DWN | DOWNSTAIRS LIVING AREA | 4 | 0 | 2019 | 1740.0 |
| | OWP | OPEN WOOD PORCH W/STEPS | 4 | 0 | 2019 | 460.0 |
Sketch
Property Image
Land
| 1 | 14 | SQ (08001-12000) | 0.2300 | 10018.80 | 0.00 | 0.00 | 1.00 | $250,000 | $0 |
Roll Value History
| 2026 | N/A | N/A | N/A | N/A | N/A |
| 2025 | $626,117 | $250,000 | $0 | $876,117 | $876,117 |
| 2024 | $631,086 | $250,000 | $0 | $881,086 | $881,086 |
| 2023 | $626,117 | $250,000 | $0 | $876,117 | $876,117 |
| 2022 | $571,432 | $240,000 | $0 | $811,432 | $811,432 |
| 2021 | $502,135 | $175,000 | $0 | $677,135 | $677,135 |
| 2020 | $493,170 | $150,000 | $0 | $643,170 | $643,170 |
| 2019 | $398,873 | $200,000 | $0 | $598,873 | $598,873 |
| 2018 | $0 | $135,000 | $0 | $135,000 | $135,000 |
| 2017 | $0 | $115,000 | $0 | $115,000 | $115,000 |
| 2016 | $0 | $125,000 | $0 | $125,000 | $125,000 |
| 2015 | $0 | $121,500 | $0 | $121,500 | $121,500 |
| 2014 | $0 | $121,500 | $0 | $121,500 | $121,500 |
| 2013 | $0 | $121,500 | $0 | $121,500 | $121,500 |
| 2012 | $0 | $121,500 | $0 | $121,500 | $121,500 |
| 2011 | $0 | $135,000 | $0 | $135,000 | $135,000 |
| 2010 | $0 | $135,000 | $0 | $135,000 | $135,000 |
| 2009 | $0 | $165,000 | $0 | $165,000 | $165,000 |
| 2008 | $0 | $0 | $0 | $27,487 | $27,487 |
Deed and Sales History
| 1 | 02/29/2024 | QCD | Quit Claim Deed | ENCINAS, TAMARA M H | ENCINAS, JOHN | | | $0.00 | 59326 | 4569906 |
| 2 | 10/11/2018 | QCD | Quit Claim Deed | SEAS HOLDING, LLC | ENCINAS, TAMARA M H | | | $0.00 | 36259 | 4453294 |
| 3 | 05/09/2018 | WD | Warranty Deed | MAPLE HILL INVESTMENTS LLC | SEAS HOLDING, LLC | | | $129,400.00 | 34321 | 4445315 |
| 4 | 07/02/2013 | CHGOFIDENT | DNU - Change In Identity | FREUND, CARL R | MAPLE HILL INVESTMENTS LLC | | | $0.00 | 11965 | 4343716 |
| 5 | 11/15/2012 | DEEDINLIEU | Deed In Lieu Of Foreclosure | MAPLE HILL DEVELOPMENT INC | FREUND, CARL R | | | $0.00 | 9547 | 4327785 |
| 6 | 01/01/1900 | OTHER | Other - Misc. Documents | Unknown | MAPLE HILL DEVELOPMENT INC, | | | $0.00 | 0 | 0 |
Payout Agreement
| No payout information available.. |