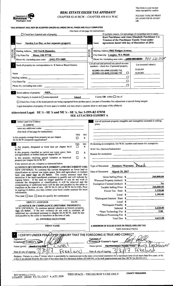
Property
Account |
| Property ID: | 809417 | Abbreviated Legal Description: | THE HIGHLANDS LOT 7 |
| Geographic ID: | S8525-00-00007-0 | Agent Code: | |
| Type: | Real | | |
| Tax Area: | 700 - APPRAISER-S Whid Schl Dist, in town of Langley | Land Use Code | 11 |
| Open Space: | N | DFL | N |
| Historic Property: | N | Remodel Property: | N |
| Multi-Family Redevelopment: | N | | |
| Township: | | Section: | |
| Range: | |
Location |
| Address: | 259 LAUREL LOOP LANGLEY, WA 98260 | Mapsco: | |
| Neighborhood: | City of Langley | Map ID: | 726 |
| Neighborhood CD: | 04-L |
Owner |
| Name: | MOFFITT, THOMAS KNIGHT | Owner ID: | 279766 |
| Mailing Address: | SHARI JOY MOFFITT 4759 FELDSPAR LN PLACERVILLE, CA 95667 | % Ownership: | 100.0000000000% |
| | | Exemptions: | |
Taxes and Assessment Details
Values
| (+) Improvement Homesite Value: | + | $0 | |
| (+) Improvement Non-Homesite Value: | + | $353,399 | |
| (+) Land Homesite Value: | + | $0 | |
| (+) Land Non-Homesite Value: | + | $390,000 | |
| (+) Curr Use (HS): | + | $0 | $0 |
| (+) Curr Use (NHS): | + | $0 | $0 |
| | | -------------------------- | |
| (=) Market Value: | = | $743,399 | |
| (–) Productivity Loss: | – | $0 | |
| | | -------------------------- | |
| (=) Subtotal: | = | $743,399 | |
| (+) Senior Appraised Value: | + | $0 | |
| (+) Non-Senior Appraised Value: | + | $743,399 | |
| | | -------------------------- | |
| (=) Total Appraised Value: | = | $743,399 | |
| (–) Senior Exemption Loss: | – | $0 | |
| (–) Exemption Loss: | – | $0 | |
| | | -------------------------- | |
| (=) Taxable Value: | = | $743,399 | |
Taxing Jurisdiction
| Owner: | MOFFITT, THOMAS KNIGHT | | |
| % Ownership: | 100.0000000000% | | |
| Total Value: | $743,399 | | |
| Tax Area: | 700 - APPRAISER-S Whid Schl Dist, in town of Langley |
| CF | Conservation Futures | 0.0316035091 | $743,399 | $743,399 | $23.49 | | |
| LANG | City of Langley | 1.0093520762 | $743,399 | $743,399 | $750.35 | | |
| LANGBOND | City of Langley BOND | 1.0326110892 | $743,399 | $743,399 | $767.64 | | |
| FIRE3 | Fire & Rescue Dist #3 S Whidbey GEN | 1.2004855531 | $743,399 | $743,399 | $892.44 | | |
| HOBOND | Hospital BOND | 0.1910887512 | $743,399 | $743,399 | $142.06 | | |
| HOGEN | Hospital GEN | 0.3902502903 | $743,399 | $743,399 | $290.11 | | |
| CE | County Current Expense | 0.3708482477 | $743,399 | $743,399 | $275.69 | | |
| ISLANDEMS | Hospital GEN (EMS) | 0.5000000000 | $743,399 | $743,399 | $371.70 | | |
| LIB | Library Sno-Isle GEN | 0.3153421757 | $743,399 | $743,399 | $234.43 | | |
| PORTWHID | Port of S Whidbey GEN | 0.1094540357 | $743,399 | $743,399 | $81.37 | | |
| SCH206BOND | School 206 BOND | 0.3161759235 | $743,399 | $743,399 | $235.04 | | |
| SCH206MO | School 206 Enrichment | 0.4547169547 | $743,399 | $743,399 | $338.04 | | |
| ST | State School | 1.3035497053 | $743,399 | $743,399 | $969.06 | | |
| ST2 | State School Part 2 | 0.8169543533 | $743,399 | $743,399 | $607.32 | | |
| SWHIDPRBD | P & R S Whidbey BOND | 0.0152817568 | $743,399 | $743,399 | $11.36 | | |
| SWHIDPRBD2 | P & R S Whidbey BOND2 | 0.0138911264 | $743,399 | $743,399 | $10.33 | | |
| SWHIDPRMT | P & R S Whidbey GEN | 0.2053334452 | $743,399 | $743,399 | $152.64 | | |
| | Total Tax Rate: | 8.2769389934 | | | | | |
| | | | | Taxes w/Current Exemptions: | $6,153.07 | | |
| | | | | Taxes w/o Exemptions: | $6,153.07 | | |
Improvement / Building
| Improvement #1: | RESIDENTIAL | State Code: | Y | 1556.0 sqft | Value: | $353,399 |
| Bathrooms: | 2 | Bedrooms: | 3 | | Ceiling: | DRYWALL PAINTED | Cooling: | HEAT PUMP/CONV/V | | Exterior Wall/Cover: | CEMENT FIBER | Floor Covering: | HARDWOOD 100% | | Floor Structure: | WOOD W/SUBFLOOR | Foundation: | CONCRETE | | Interior Finish: | DRYWALL PAINT | Plumbing Fixture Cnt: | 11 | | Roof Slope: | 6" IN 12" | Roof Structure/Cover: | CJ ASPHALT |
|
| | Type | Description | Class CD | Sub Class CD | Year Built | Area |
| | BAS | BASE/MAIN FLOOR | 3 | 0 | 2014 | 1556.0 |
| | AGR | ATTACHED GARAGE | 3 | 0 | 2014 | 280.0 |
| | OWR | OPEN WOOD PORCH W/STEPS/ROOF | 3 | 0 | 2014 | 150.0 |
| | OWP | OPEN WOOD PORCH W/STEPS | 3 | 0 | 2014 | 38.0 |
| | OWR | OPEN WOOD PORCH W/STEPS/ROOF | 3 | 0 | 2014 | 52.0 |
Sketch
Property Image
Land
| 1 | 12 | SQ (00000-06000) | 0.0000 | 0.00 | 0.00 | 0.00 | 1.00 | $390,000 | $0 |
Roll Value History
| 2026 | N/A | N/A | N/A | N/A | N/A |
| 2025 | $353,399 | $390,000 | $0 | $743,399 | $743,399 |
| 2024 | $356,123 | $390,000 | $0 | $746,123 | $746,123 |
| 2023 | $359,042 | $380,000 | $0 | $739,042 | $739,042 |
| 2022 | $327,755 | $325,000 | $0 | $652,755 | $652,755 |
| 2021 | $287,303 | $300,000 | $0 | $587,303 | $587,303 |
| 2020 | $264,662 | $300,000 | $0 | $564,662 | $564,662 |
| 2019 | $194,087 | $325,000 | $0 | $519,087 | $519,087 |
| 2018 | $194,597 | $250,000 | $0 | $444,597 | $444,597 |
| 2017 | $191,853 | $225,000 | $0 | $416,853 | $416,853 |
| 2016 | $193,852 | $185,000 | $0 | $378,852 | $378,852 |
| 2015 | $195,850 | $180,000 | $0 | $375,850 | $375,850 |
| 2014 | $103,968 | $90,000 | $0 | $193,968 | $193,968 |
| 2013 | $0 | $90,000 | $0 | $90,000 | $90,000 |
| 2012 | $0 | $90,000 | $0 | $90,000 | $90,000 |
| 2011 | $0 | $90,000 | $0 | $90,000 | $90,000 |
| 2010 | $0 | $90,000 | $0 | $90,000 | $90,000 |
| 2009 | $0 | $90,000 | $0 | $90,000 | $90,000 |
| 2008 | $0 | $0 | $0 | $6,981 | $6,981 |
Deed and Sales History
| 1 | 05/01/2017 | WD | Warranty Deed | CLAUS, RONALD E | MOFFITT, THOMAS KNIGHT | | | $489,000.00 | 29171 | 4421979 |
| 2 | 10/30/2014 | WD | Warranty Deed | THE HIGHLANDS AT LANGLEY | CLAUS, RONALD E | | | $354,000.00 | 17494 | 4368221 |
| 3 | 01/01/1900 | OTHER | Other - Misc. Documents | Unknown | THE HIGHLANDS AT LANGLEY, | | | $0.00 | 0 | 0 |
Payout Agreement
| No payout information available.. |