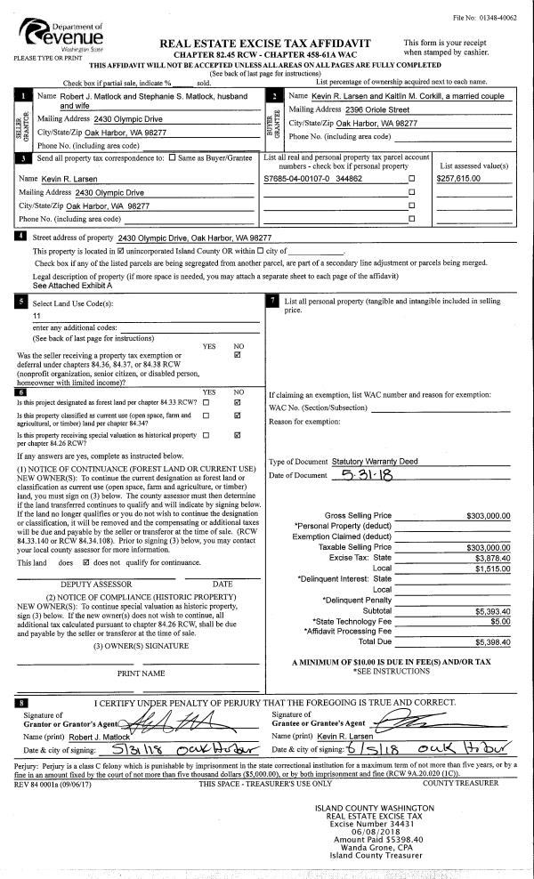
Property
Account |
| Property ID: | 809423 | Abbreviated Legal Description: | THE HIGHLANDS LOT 13 |
| Geographic ID: | S8525-00-00013-0 | Agent Code: | |
| Type: | Real | | |
| Tax Area: | 700 - APPRAISER-S Whid Schl Dist, in town of Langley | Land Use Code | 11 |
| Open Space: | N | DFL | N |
| Historic Property: | N | Remodel Property: | N |
| Multi-Family Redevelopment: | N | | |
| Township: | | Section: | |
| Range: | |
Location |
| Address: | 225 BOWERY LOOP LANGLEY, WA 98260 | Mapsco: | |
| Neighborhood: | City of Langley | Map ID: | 726 |
| Neighborhood CD: | 04-L |
Owner |
| Name: | LAMMERS, SUZANNE | Owner ID: | 285994 |
| Mailing Address: | JOSEPH B BAAR 225 BOWERY LOOP LANGLEY, WA 98260 | % Ownership: | 100.0000000000% |
| | | Exemptions: | |
Taxes and Assessment Details
Values
| (+) Improvement Homesite Value: | + | $0 | |
| (+) Improvement Non-Homesite Value: | + | $359,450 | |
| (+) Land Homesite Value: | + | $0 | |
| (+) Land Non-Homesite Value: | + | $390,000 | |
| (+) Curr Use (HS): | + | $0 | $0 |
| (+) Curr Use (NHS): | + | $0 | $0 |
| | | -------------------------- | |
| (=) Market Value: | = | $749,450 | |
| (–) Productivity Loss: | – | $0 | |
| | | -------------------------- | |
| (=) Subtotal: | = | $749,450 | |
| (+) Senior Appraised Value: | + | $0 | |
| (+) Non-Senior Appraised Value: | + | $749,450 | |
| | | -------------------------- | |
| (=) Total Appraised Value: | = | $749,450 | |
| (–) Senior Exemption Loss: | – | $0 | |
| (–) Exemption Loss: | – | $0 | |
| | | -------------------------- | |
| (=) Taxable Value: | = | $749,450 | |
Taxing Jurisdiction
| Owner: | LAMMERS, SUZANNE | | |
| % Ownership: | 100.0000000000% | | |
| Total Value: | $749,450 | | |
| Tax Area: | 700 - APPRAISER-S Whid Schl Dist, in town of Langley |
| CF | Conservation Futures | 0.0316035091 | $749,450 | $749,450 | $23.69 | | |
| LANG | City of Langley | 1.0093520762 | $749,450 | $749,450 | $756.46 | | |
| LANGBOND | City of Langley BOND | 1.0326110892 | $749,450 | $749,450 | $773.89 | | |
| FIRE3 | Fire & Rescue Dist #3 S Whidbey GEN | 1.2004855531 | $749,450 | $749,450 | $899.70 | | |
| HOBOND | Hospital BOND | 0.1910887512 | $749,450 | $749,450 | $143.21 | | |
| HOGEN | Hospital GEN | 0.3902502903 | $749,450 | $749,450 | $292.47 | | |
| CE | County Current Expense | 0.3708482477 | $749,450 | $749,450 | $277.93 | | |
| ISLANDEMS | Hospital GEN (EMS) | 0.5000000000 | $749,450 | $749,450 | $374.73 | | |
| LIB | Library Sno-Isle GEN | 0.3153421757 | $749,450 | $749,450 | $236.33 | | |
| PORTWHID | Port of S Whidbey GEN | 0.1094540357 | $749,450 | $749,450 | $82.03 | | |
| SCH206BOND | School 206 BOND | 0.3161759235 | $749,450 | $749,450 | $236.96 | | |
| SCH206MO | School 206 Enrichment | 0.4547169547 | $749,450 | $749,450 | $340.79 | | |
| ST | State School | 1.3035497053 | $749,450 | $749,450 | $976.95 | | |
| ST2 | State School Part 2 | 0.8169543533 | $749,450 | $749,450 | $612.27 | | |
| SWHIDPRBD | P & R S Whidbey BOND | 0.0152817568 | $749,450 | $749,450 | $11.45 | | |
| SWHIDPRBD2 | P & R S Whidbey BOND2 | 0.0138911264 | $749,450 | $749,450 | $10.41 | | |
| SWHIDPRMT | P & R S Whidbey GEN | 0.2053334452 | $749,450 | $749,450 | $153.89 | | |
| | Total Tax Rate: | 8.2769389934 | | | | | |
| | | | | Taxes w/Current Exemptions: | $6,203.16 | | |
| | | | | Taxes w/o Exemptions: | $6,203.16 | | |
Improvement / Building
| Improvement #1: | RESIDENTIAL | State Code: | Y | 1482.8 sqft | Value: | $359,450 |
| Bathrooms: | 2 | Bedrooms: | 2 | | Ceiling: | DRYWALL PAINTED | Cooling: | HEAT PUMP/CONV/V | | Exterior Wall/Cover: | CEMENT FIBER | Floor Covering: | HARDWOOD 100% | | Floor Structure: | WOOD W/SUBFLOOR | Foundation: | CONCRETE | | Interior Finish: | DRYWALL PAINT | Plumbing Fixture Cnt: | 9 | | Roof Slope: | 5" IN 12" | Roof Structure/Cover: | CJ ASPHALT |
|
| | Type | Description | Class CD | Sub Class CD | Year Built | Area |
| | BAS | BASE/MAIN FLOOR | 4 | 0 | 2016 | 930.0 |
| | UPS | UPPER STORY | 4 | 0 | 2016 | 552.8 |
| | DGR | DETACHED GARAGE | 4 | 0 | 2016 | 484.0 |
| | OWP | OPEN WOOD PORCH W/STEPS | 4 | 0 | 2016 | 108.0 |
| | OWP | OPEN WOOD PORCH W/STEPS | 4 | 0 | 2016 | 108.0 |
Sketch
Property Image
Land
| 1 | 13 | SQ (06001-08000) | 0.0000 | 0.00 | 0.00 | 0.00 | 1.00 | $390,000 | $0 |
Roll Value History
| 2026 | N/A | N/A | N/A | N/A | N/A |
| 2025 | $359,450 | $390,000 | $0 | $749,450 | $749,450 |
| 2024 | $362,221 | $390,000 | $0 | $752,221 | $752,221 |
| 2023 | $365,189 | $380,000 | $0 | $745,189 | $745,189 |
| 2022 | $333,382 | $375,000 | $0 | $708,382 | $708,382 |
| 2021 | $292,230 | $350,000 | $0 | $642,230 | $642,230 |
| 2020 | $283,616 | $350,000 | $0 | $633,616 | $633,616 |
| 2019 | $211,355 | $325,000 | $0 | $536,355 | $536,355 |
| 2018 | $191,115 | $225,000 | $0 | $416,115 | $416,115 |
| 2017 | $192,096 | $225,000 | $0 | $417,096 | $417,096 |
| 2016 | $128,178 | $90,000 | $0 | $218,178 | $218,178 |
| 2015 | $0 | $90,000 | $0 | $90,000 | $90,000 |
| 2014 | $0 | $90,000 | $0 | $90,000 | $90,000 |
| 2013 | $0 | $90,000 | $0 | $90,000 | $90,000 |
| 2012 | $0 | $90,000 | $0 | $90,000 | $90,000 |
| 2011 | $0 | $90,000 | $0 | $90,000 | $90,000 |
| 2010 | $0 | $90,000 | $0 | $90,000 | $90,000 |
| 2009 | $0 | $90,000 | $0 | $90,000 | $90,000 |
| 2008 | $0 | $0 | $0 | $6,981 | $6,981 |
Deed and Sales History
| 1 | 07/09/2018 | WD | Warranty Deed | TERAO TRUSTEE, DONALD | LAMMERS, SUZANNE | | | $550,000.00 | 34979 | 4447928 |
| 2 | 08/15/2016 | WD | Warranty Deed | THE HIGHLANDS AT LANGLEY | TERAO TRUSTEE, DONALD | | | $428,342.00 | 25748 | 4405532 |
| 3 | 01/01/1900 | OTHER | Other - Misc. Documents | Unknown | THE HIGHLANDS AT LANGLEY, | | | $0.00 | 0 | 0 |
Payout Agreement
| No payout information available.. |